| ||||||||||||||||||||||||
Скачать Серия 3.016.1-9 Выпуск 3. Электротехническая часть. Рабочие чертежиДата актуализации: 10.08.2017
|
| Обозначение: | Серия 3.016.1-9 |
| Обозначение англ: | Series 3.016.1-9 |
| Статус: | не определен законодательством |
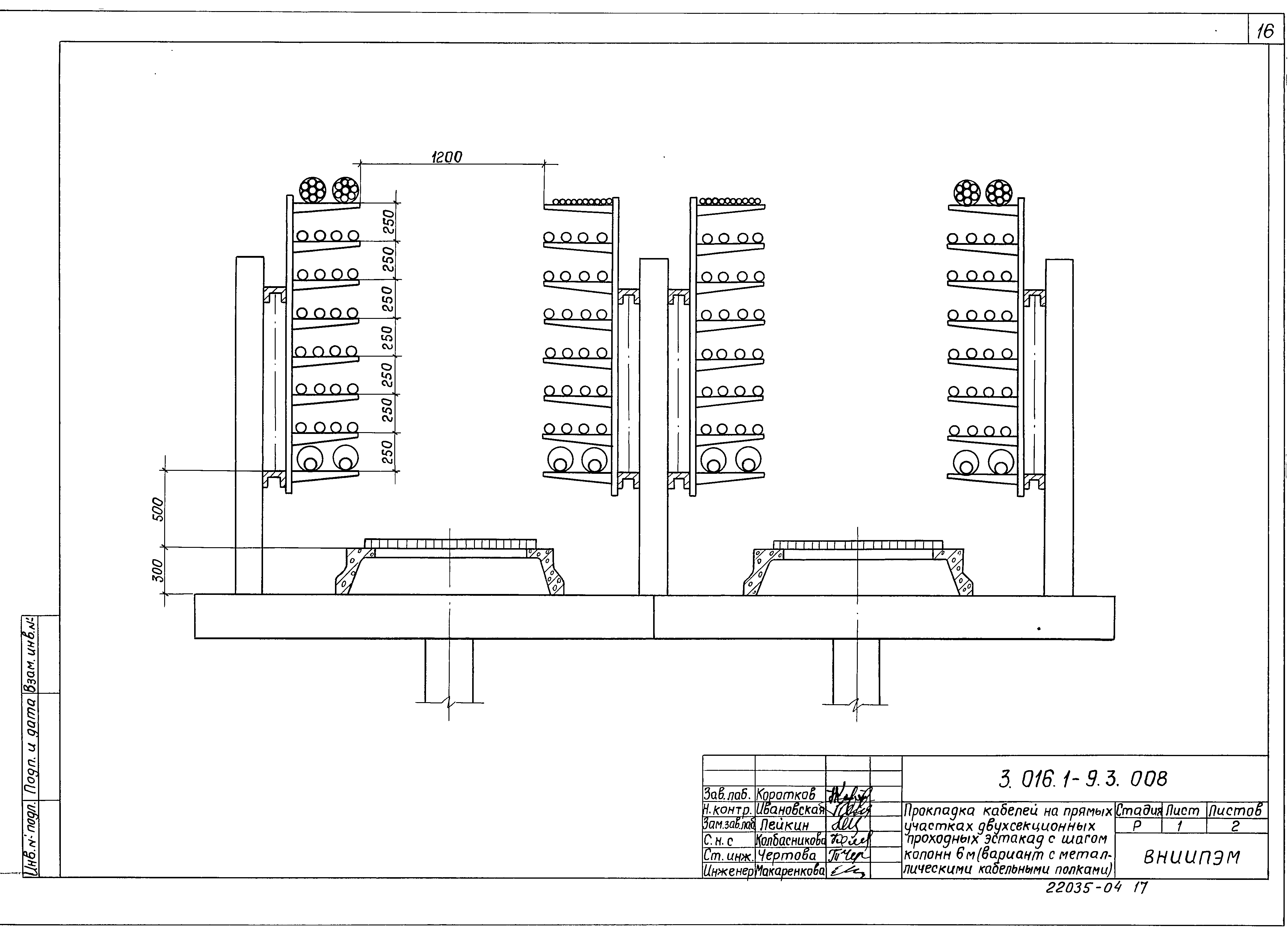
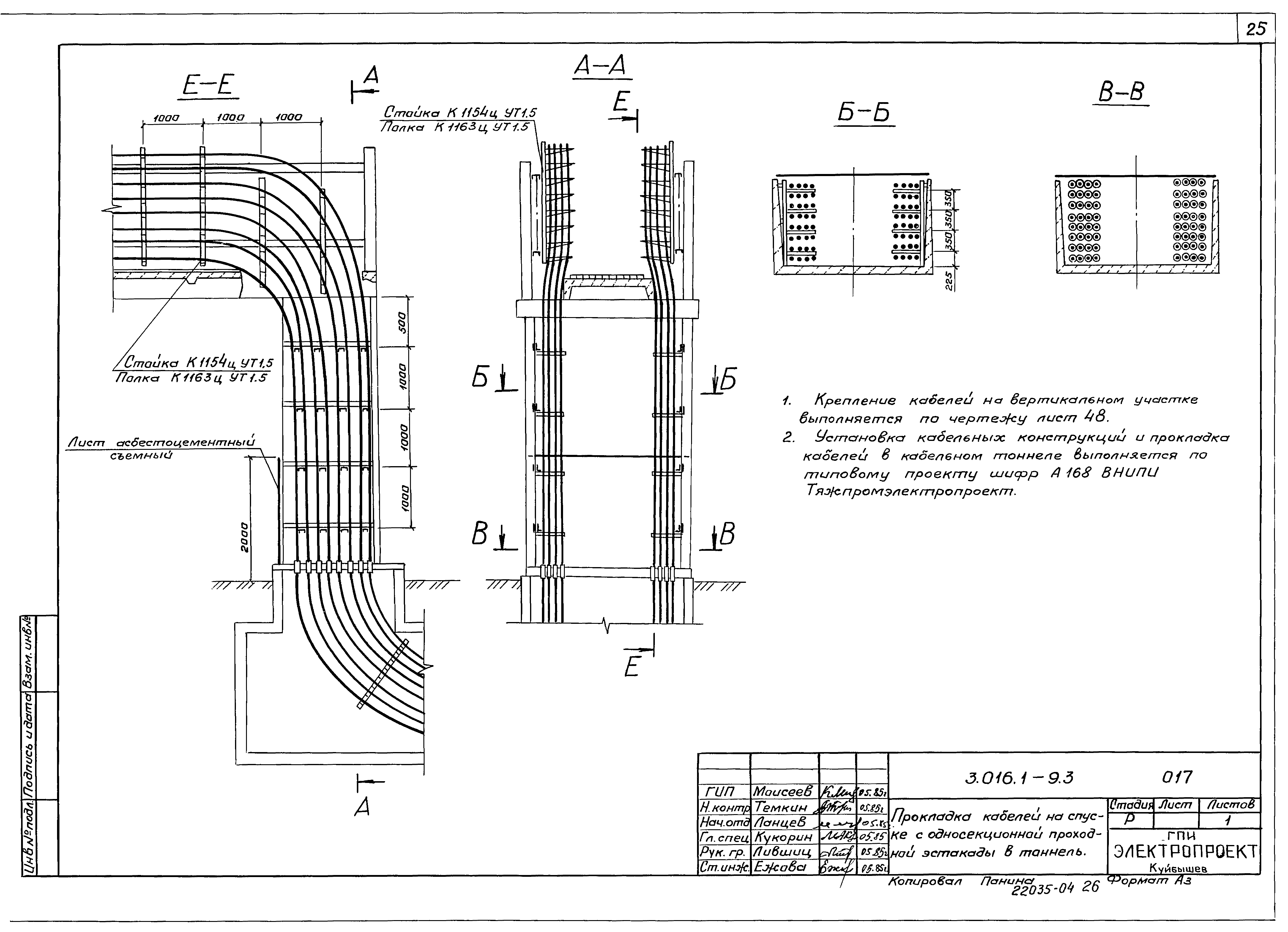
| Название рус.: | Выпуск 3. Электротехническая часть. Рабочие чертежи |
| Дата добавления в базу: | 01.09.2013 |
| Дата актуализации: | 05.05.2017 |
| Дата введения: | 01.10.1986 |
| Разработан: | ВНИИПроектэлектромонтаж Электропроект Минмонтажспецстроя СССР |
| Утверждён: | 01.10.1986 Главпроект Госстроя СССР (2/3-43) |
| Расположен в: |



















































