Информационная система
«Ёшкин Кот»

Скачать базу одним архивом
Скачать обновления
История создания базы
Карта сайта

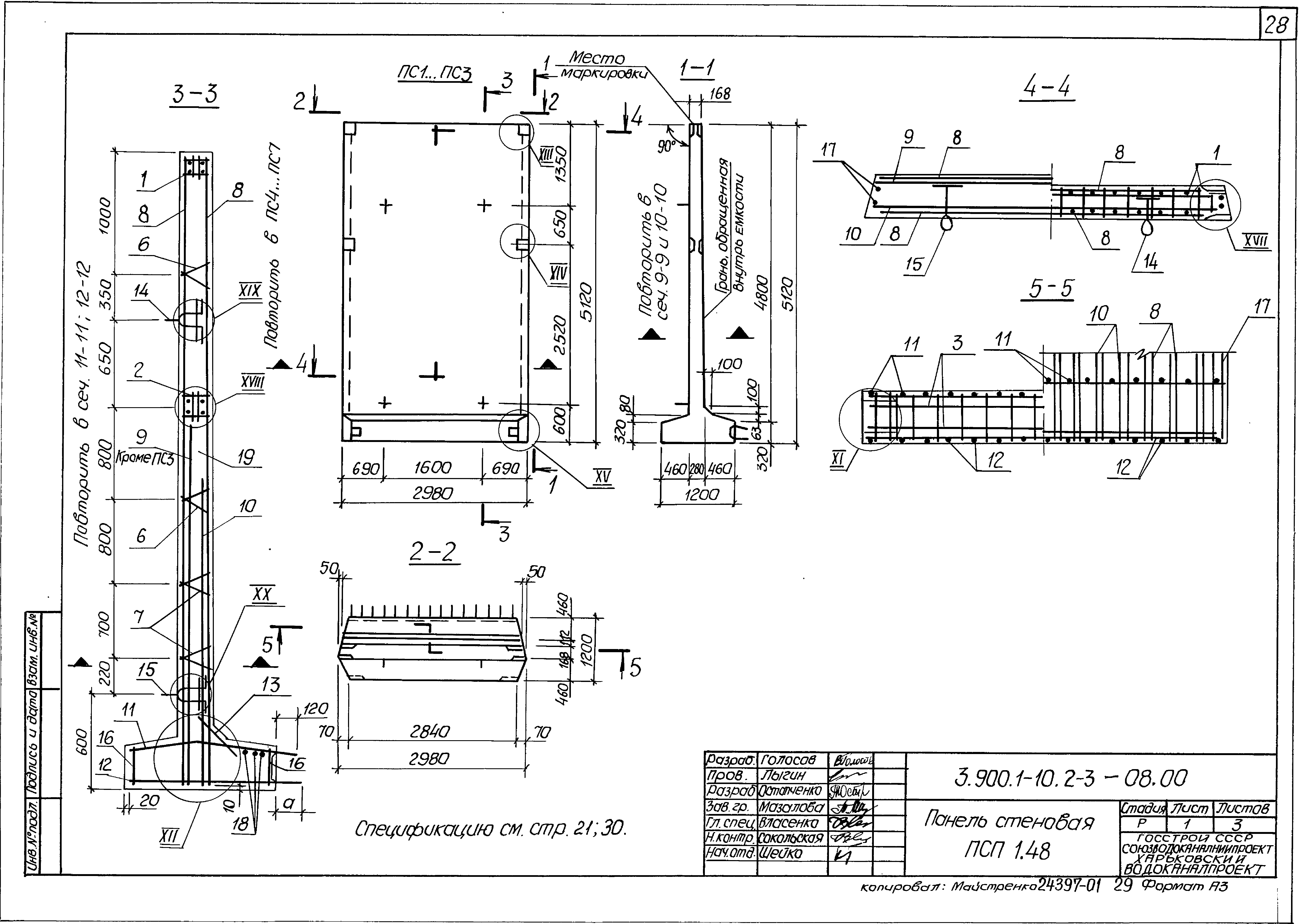
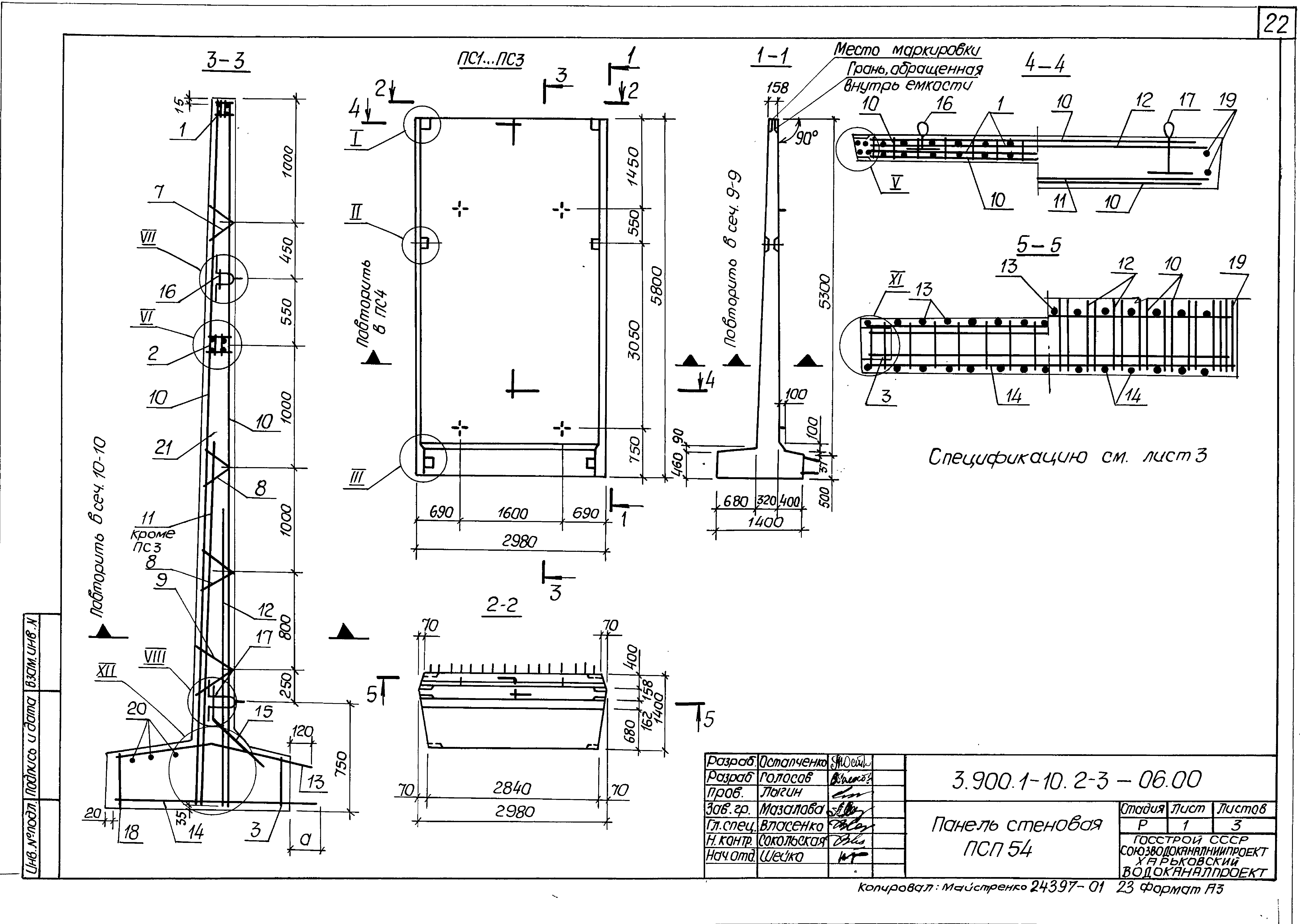
Скачать Серия 3.900.1-10 Выпуск 2-3. Панели стеновые консольные с опорной пятой с клиновидным стыком. Рабочие чертежи

Дата актуализации: 10.08.2017

Серия 3.900.1-10

Выпуск 2-3. Панели стеновые консольные с опорной пятой с клиновидным стыком. Рабочие чертежи

Обозначение: Серия 3.900.1-10
Обозначение англ: Series 3.900.1-10
Статус:не определен законодательством
Название рус.:Выпуск 2-3. Панели стеновые консольные с опорной пятой с клиновидным стыком. Рабочие чертежи
Дата добавления в базу:01.09.2013
Дата актуализации:05.05.2017
Дата введения:01.10.1990
Разработан: ЦНИИпромзданий
НИИЖБ
Союзводоканалниипроект Харьковский водоканалпроект
Утверждён:29.03.1990 Госстрой СССР (Государственный комитет Совета Министров СССР по делам строительства) (USSR Gosstroy 5/5-289)
Расположен в:Техническая документация Строительство Справочные документы Типовые строительные конструкции, изделия и узлы Общероссийский строительный каталог Строительные конструкции, изделия и узлы зданий и сооружений для всех видов строительства Конструкции и изделия сооружений и оборудования зданий Подземные сооружения Емкостные сооружения
Заменяет собой:
Серия 3.900.1-10Серия 3.900.1-10Серия 3.900.1-10Серия 3.900.1-10Серия 3.900.1-10Серия 3.900.1-10Серия 3.900.1-10Серия 3.900.1-10Серия 3.900.1-10Серия 3.900.1-10Серия 3.900.1-10Серия 3.900.1-10Серия 3.900.1-10Серия 3.900.1-10Серия 3.900.1-10Серия 3.900.1-10Серия 3.900.1-10Серия 3.900.1-10Серия 3.900.1-10Серия 3.900.1-10Серия 3.900.1-10Серия 3.900.1-10Серия 3.900.1-10Серия 3.900.1-10Серия 3.900.1-10Серия 3.900.1-10Серия 3.900.1-10Серия 3.900.1-10Серия 3.900.1-10Серия 3.900.1-10Серия 3.900.1-10Серия 3.900.1-10Серия 3.900.1-10Серия 3.900.1-10Серия 3.900.1-10Серия 3.900.1-10Серия 3.900.1-10Серия 3.900.1-10Серия 3.900.1-10Серия 3.900.1-10Серия 3.900.1-10Серия 3.900.1-10Серия 3.900.1-10Серия 3.900.1-10Серия 3.900.1-10Серия 3.900.1-10Серия 3.900.1-10Серия 3.900.1-10Серия 3.900.1-10Серия 3.900.1-10Серия 3.900.1-10Серия 3.900.1-10Серия 3.900.1-10Серия 3.900.1-10

© 2013 Ёшкин Кот :-) Карта сайта