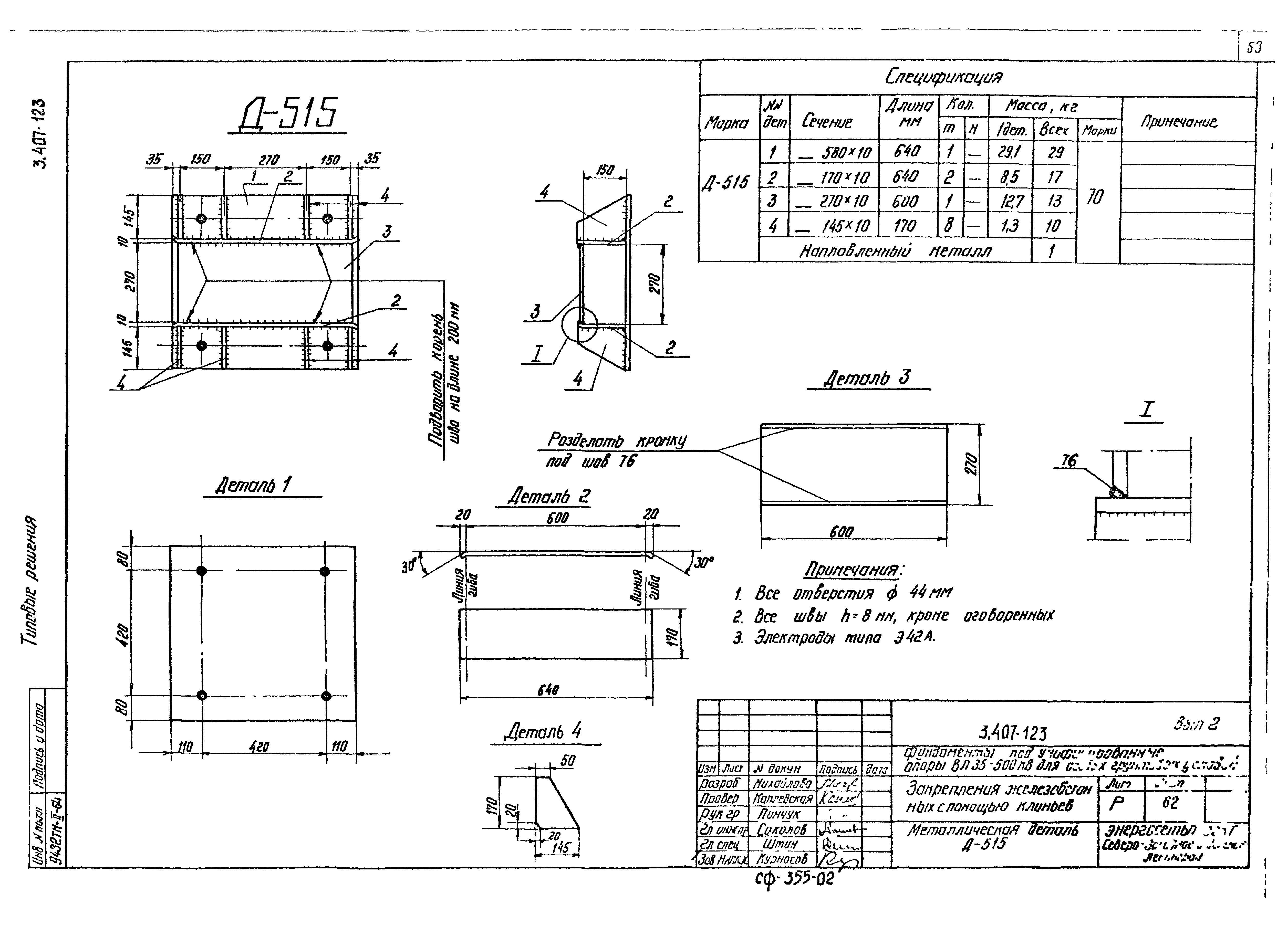
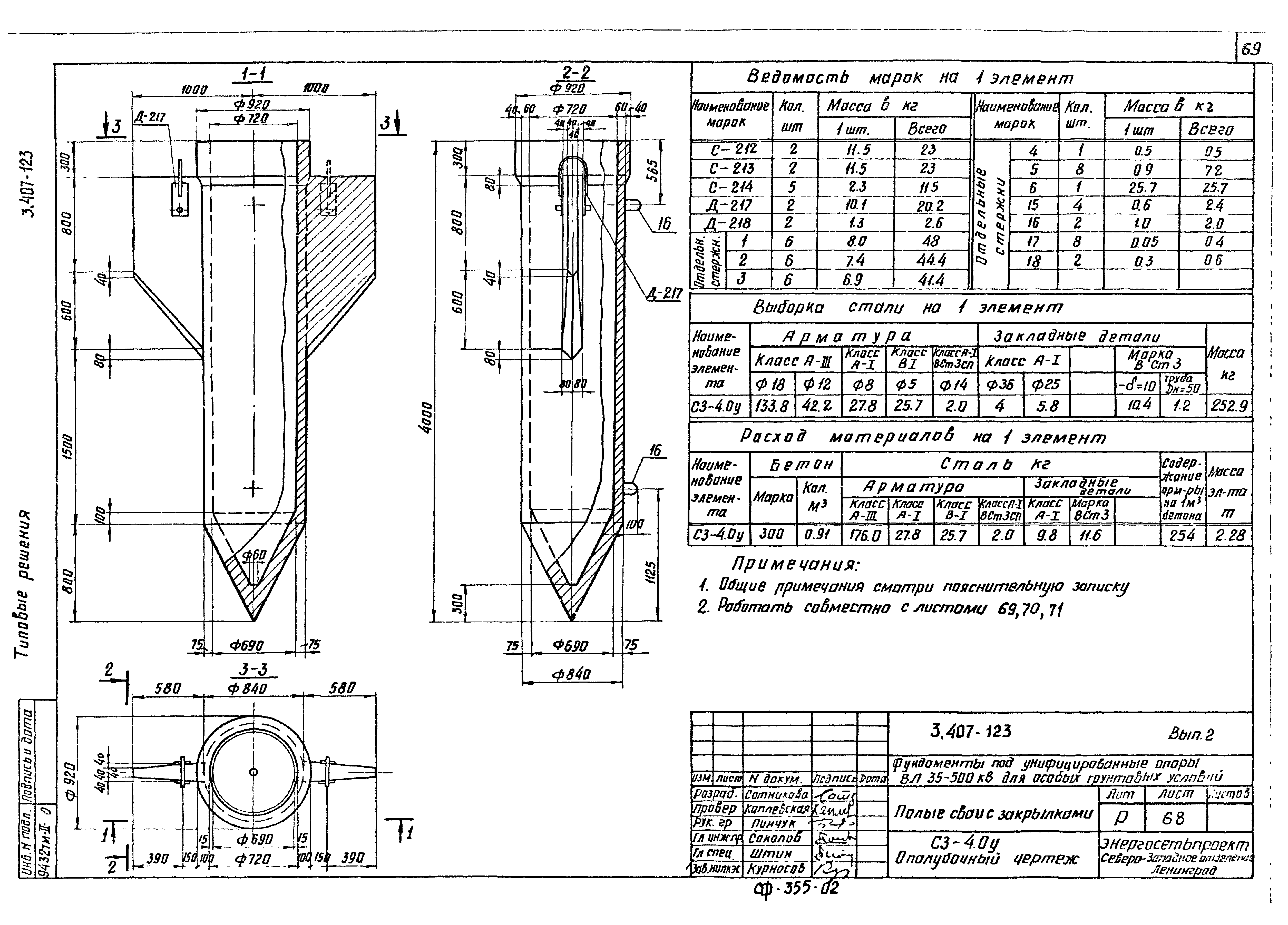
Скачать Серия 3.407-123 Выпуск 2. Новые конструкции свай, специальные конструкции закреплений железобетонных опорДата актуализации: 10.08.2017 Серия 3.407-123
Выпуск 2. Новые конструкции свай, специальные конструкции закреплений железобетонных опор| Обозначение: | Серия 3.407-123 | | Обозначение англ: | Series 3.407-123 | | Статус: | действует | | Название рус.: | Выпуск 2. Новые конструкции свай, специальные конструкции закреплений железобетонных опор | | Дата добавления в базу: | 01.09.2013 | | Дата актуализации: | 05.05.2017 | | Дата введения: | 01.01.1978 | | Разработан: | Северо-западное отделение института Энергосетьпроект
| | Утверждён: | 01.10.1975 Минэнерго СССР (USSR Minenergo 172)
| | Расположен в: |
|
                                                                                
|