| ||||||||||||||||||||||||||
Скачать Серия 1.481.3-2 Выпуск 1. Материалы для проектирования. Узлы. Рабочие чертежиДата актуализации: 10.08.2017
|
| Обозначение: | Серия 1.481.3-2 |
| Обозначение англ: | Series 1.481.3-2 |
| Статус: | не определен законодательством |
| Название рус.: | Выпуск 1. Материалы для проектирования. Узлы. Рабочие чертежи |
| Дата добавления в базу: | 01.09.2013 |
| Дата актуализации: | 05.05.2017 |
| Дата введения: | 15.06.1989 |
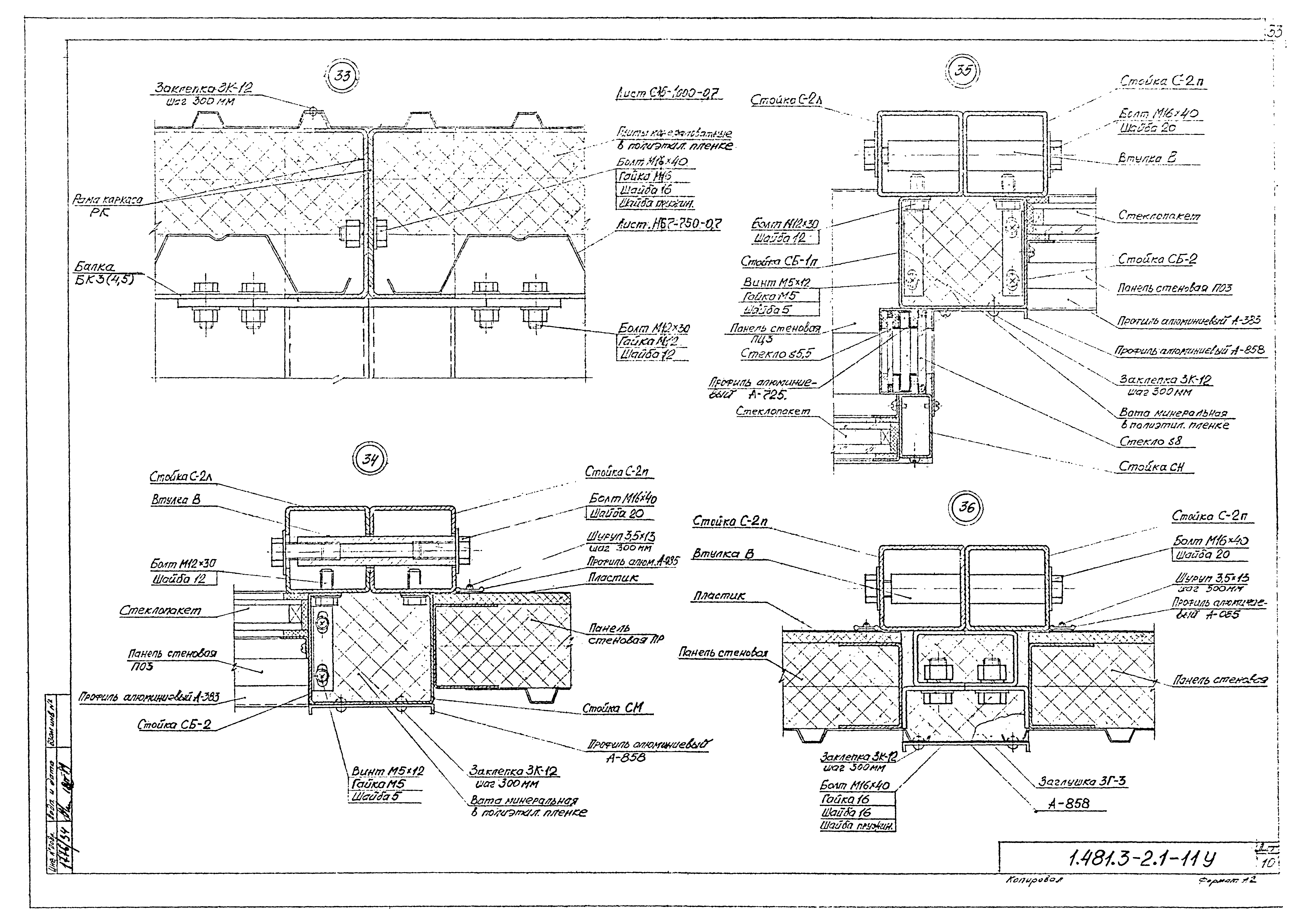
| Оглавление: | 1.481.3-2.1-ПЗ Пояснительная записка 1.481.3-2.1-01НИ Номенклатура изделий (отправочные марки) 1.481.3-2.1-02Д Фасад поста управления ПУ3; ПУ4,5; ПУ6 по стороне длиной 3м. Схема, условное обозначение 1.481.3-2.1-03Д Фасад поста управления ПУ6 по стороне длиной 6 м. Схема, условное обозначение 1.481.3-2.1-04Д Номенклатура комплектов конструкций КП (комплект поставки) 1.481.3-2.1-05Д Пост управления ПУ3. Схема расположения фасадов 1.481.3-2.1-06Д Пост управления ПУ4,5. Схема расположения фасадов 1.481.3-2.1-07Д Пост управления ПУ6. Схема расположения фасадов 1.481.3-2.1-08 Пост управления из комплекта КП3-1.1.2.6. Схема расположения элементов 1.481.3-2.1-09 Пост управления из комплекта КП4,5-1.2.9.14. Схема расположения элементов 1.481.3-2.1-10 Пост управления из комплекта КП6-1.1.2.2.4.8. Схема расположения элементов 1.481.3-2.1-11У Узлы 1 - 36 1.481.3-2.1-12 Потолок подвесной ПП3х3; ПП3х4,5; ПП3х6. Схема расположения элементов 1.481.3-2.1-13 ВМ Комплект конструкций КП3-1.1.2.6. Ведомость материалов 1.481.3-2.1-14 ВМ Комплект конструкций КП4,5-1.2.9.14. Ведомость материалов 1.481.3-2.1-15 ВМ Комплект конструкций КП6-1.1.2.2.4.8. Ведомость материалов |
| Разработан: | ВНИПИ Тяжпромэлектропроект ЦНИИПроектлегконструкция |
| Утверждён: | 05.05.1988 Союзлегконструкция |
| Расположен в: |








































