| ||||||||||||||||||||||||||
Скачать Серия 1.481.3-1 Выпуск 1. Материалы для проектирования. Узлы. Рабочие чертежиДата актуализации: 10.08.2017
|
| Обозначение: | Серия 1.481.3-1 |
| Обозначение англ: | Series 1.481.3-1 |
| Статус: | не определен законодательством |
| Название рус.: | Выпуск 1. Материалы для проектирования. Узлы. Рабочие чертежи |
| Дата добавления в базу: | 01.09.2013 |
| Дата актуализации: | 05.05.2017 |
| Дата введения: | 15.06.1989 |
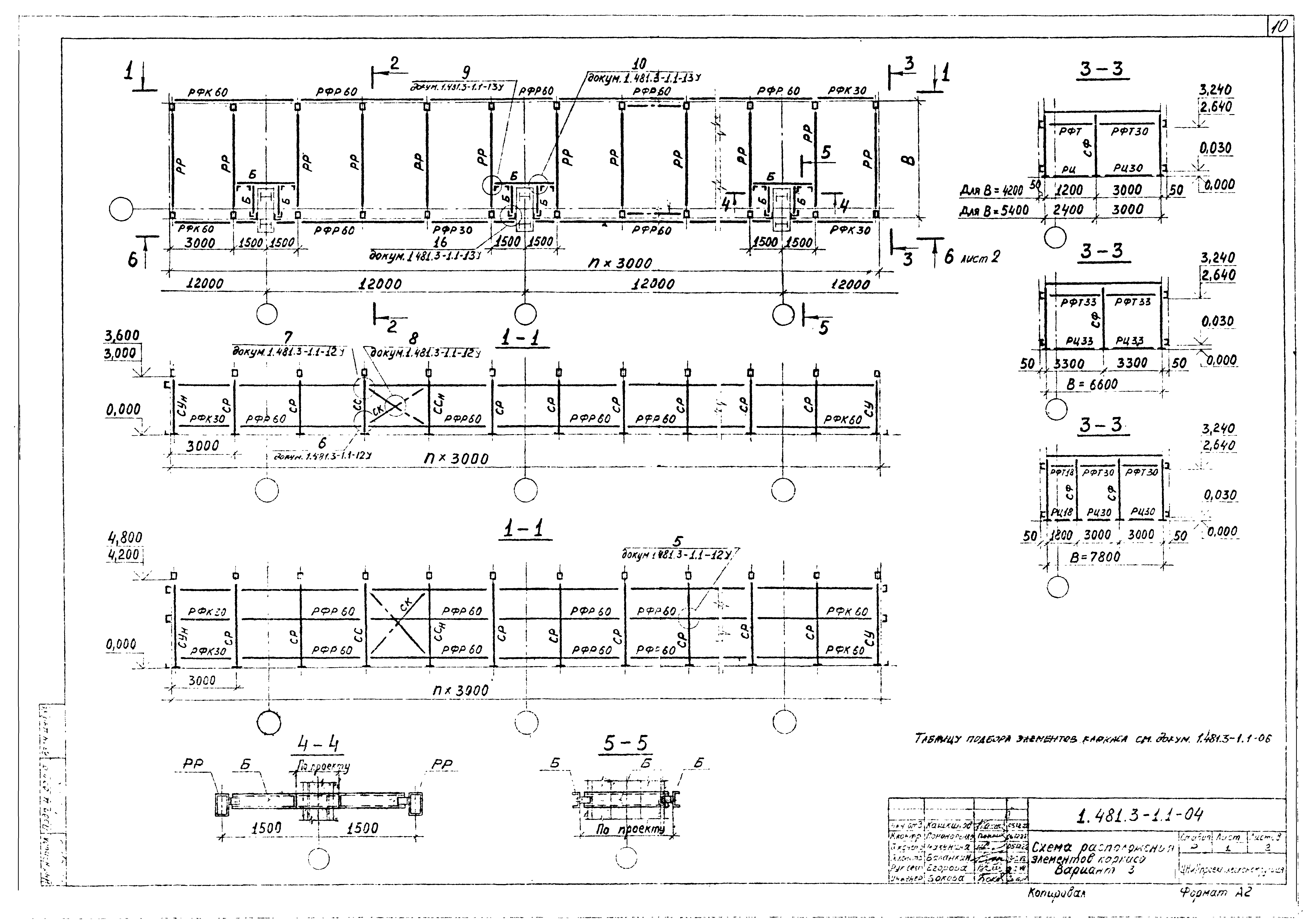
| Оглавление: | 1.481.3-1.1-ПЗ Пояснительная записка 1.481.3-1.1-01НИ Номенклатура изделий 1.481.3-1.1-02Д Варианты размещения ЭП в цехе 1 - 4 1.481.3-1.1-03 Схема расположения элементов каркаса. Вариант 1, 2 1.481.3-1.1-04 Схема расположения элементов каркаса. Вариант 3 1.481.3-1.1-05 Схема расположения элементов каркаса. Вариант 4. Таблица подбора элементов каркаса 1.481.3-1.1-06 Схема расположения стеновых панелей. Вариант 1, 2. Таблица подбора стеновых панелей 1.481.3-1.1-07 Схема расположения стеновых панелей. Вариант 3 1.481.3-1.1-08 Схема расположения стеновых панелей. Вариант 4 1.481.3-1.1-09 Схема расположения профилированного настила покрытия. Вариант 1, 2, 3 1.481.3-1.1-10 Схема расположения профилированного настила покрытия. Вариант 4 1.481.3-1.1-11У Узлы 1 - 3 1.481.3-1.1-12У Узлы 4 - 8 1.481.3-1.1-13У Узлы 9 - 17 1.481.3-1.1-14У Узлы 18 - 24 1.481.3-1.1-15У Узлы 25 - 28 1.481.3-1.1-16У Узлы 29 - 32 |
| Разработан: | ВНИПИ Тяжпромэлектропроект ЦНИИПроектлегконструкция |
| Утверждён: | 05.05.1988 Союзлегконструкция |
| Расположен в: |

























