| ||||||||||||||||||||||||||
Скачать Серия 1.273.9-5 Выпуск 6. Облицовки из гипсоволокнистых листов на металлическом каркасе. Рабочие чертежиДата актуализации: 10.08.2017
|
| Обозначение: | Серия 1.273.9-5 |
| Обозначение англ: | Series 1.273.9-5 |
| Статус: | не определен законодательством |
| Название рус.: | Выпуск 6. Облицовки из гипсоволокнистых листов на металлическом каркасе. Рабочие чертежи |
| Дата добавления в базу: | 01.09.2013 |
| Дата актуализации: | 05.05.2017 |
| Дата введения: | 01.07.1987 |
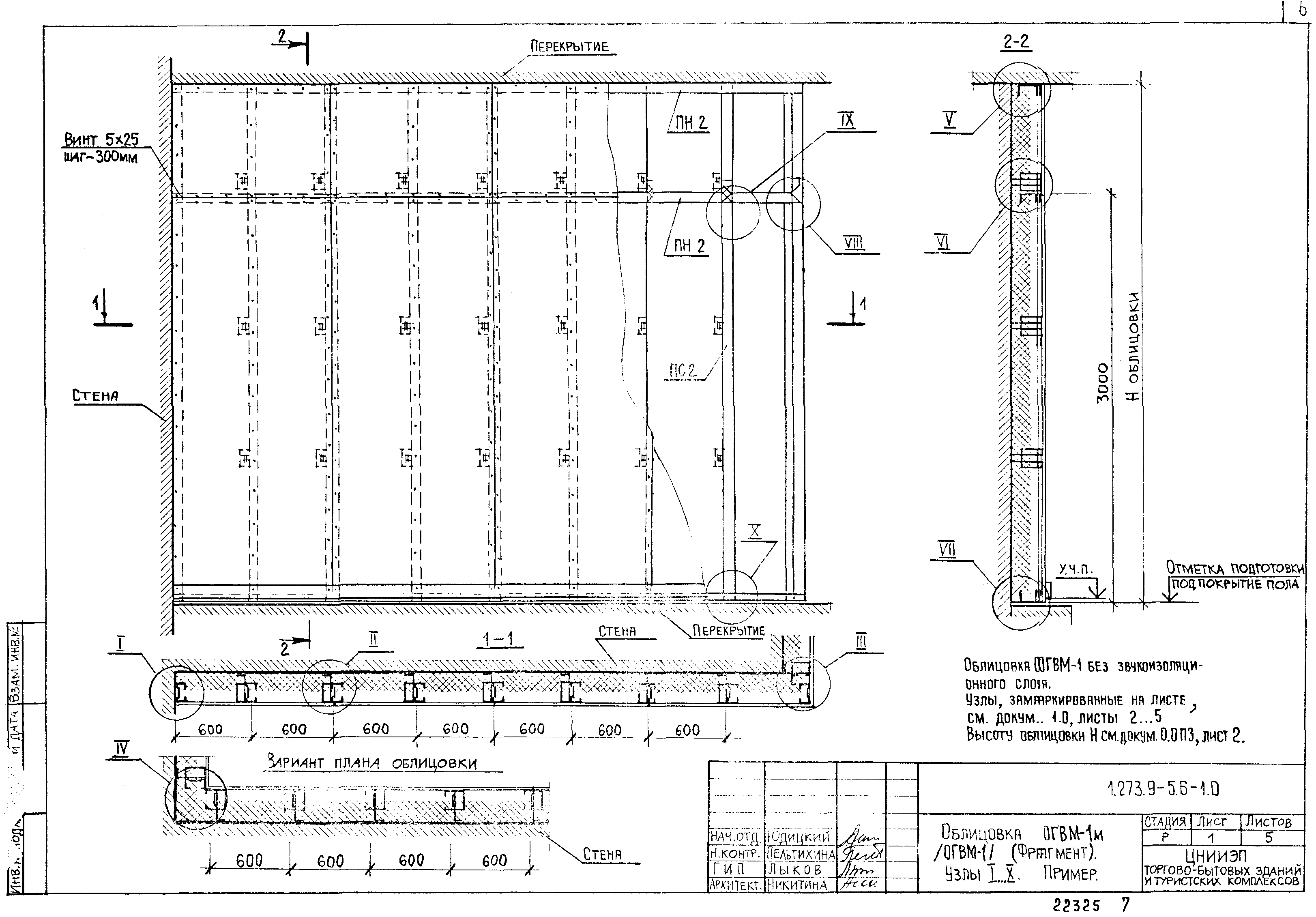
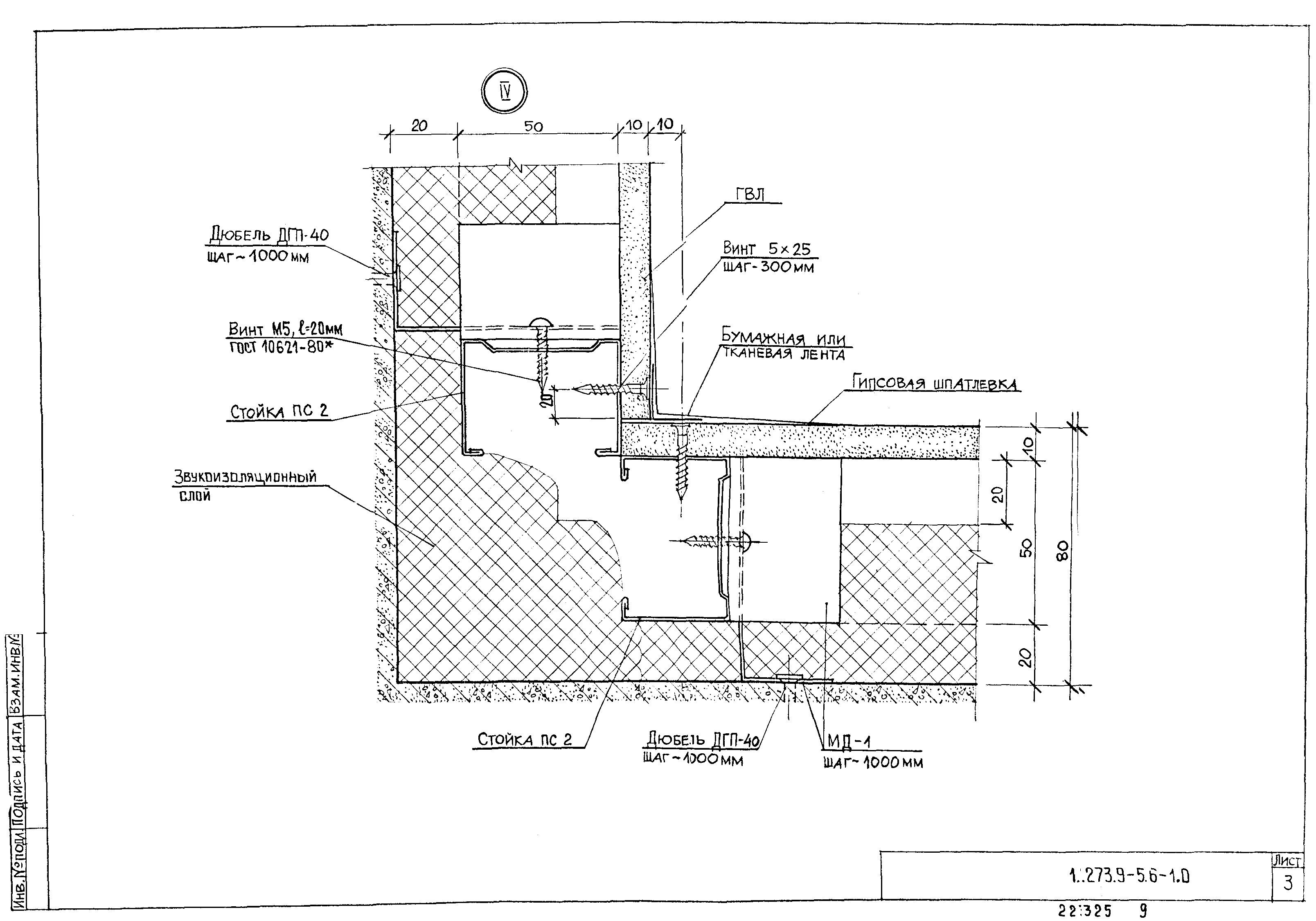
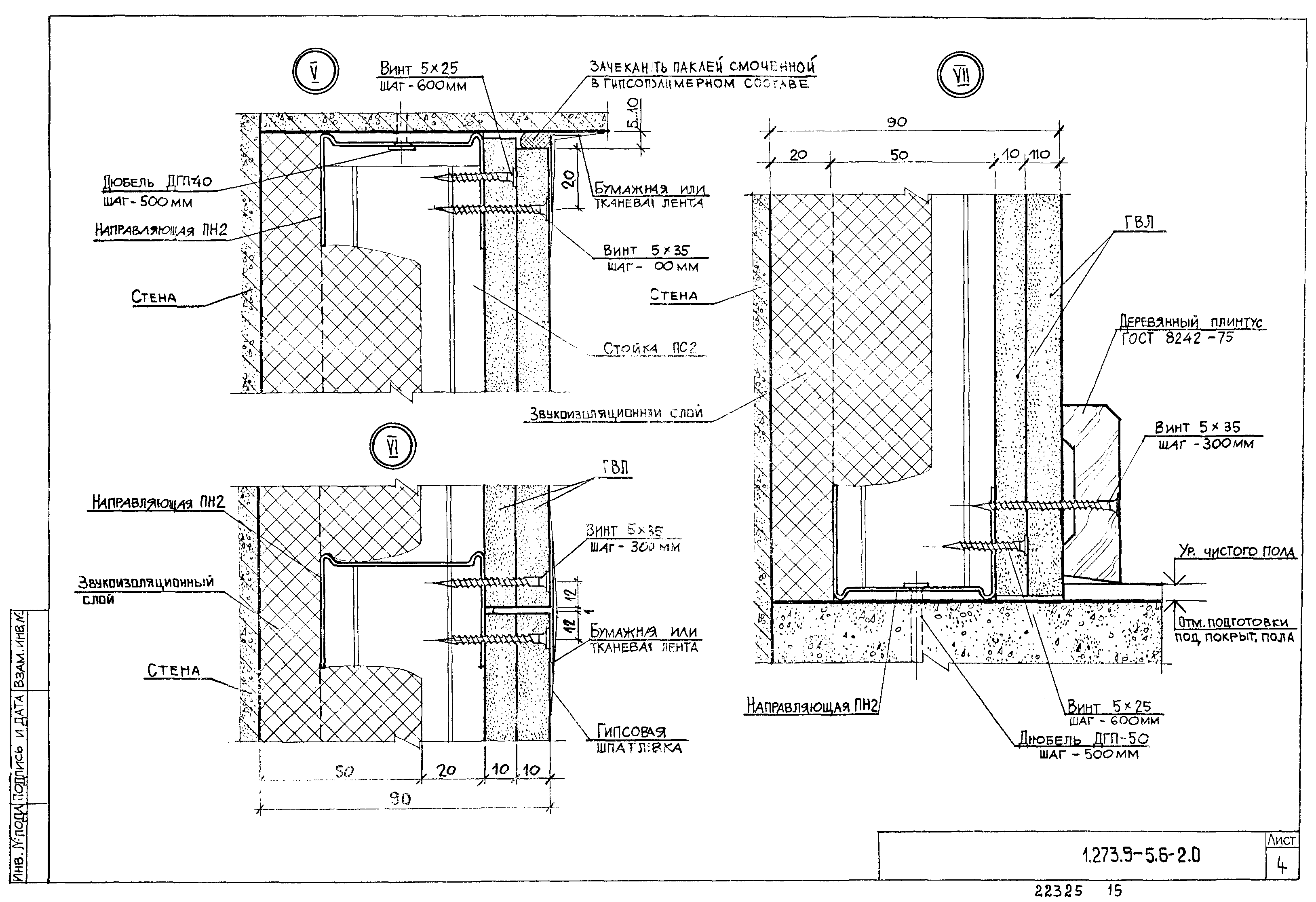
| Оглавление: | 1.273.9-5.6-0.0ПЗ Пояснительная записка 1.273.9-5.6-0.0ВД Ведомость ссылочных документов 1.273.9-5.6-1.0 Облицовка ОГВМ-1м/ОГВМ-1/ (фрагмент). Узлы I…X. Пример 1.273.9-5.6-2.0 Облицовка ОГВМ-2 /ОГВМ-2/ (фрагмент). Узлы I…VII. Пример 1.273.9-5.6-3.0 Примеры установки анкера падающего, крючка, анкера проходного и дюбеля разжимного 1.273.9-5.6-0.1 Профиль стойки ПС2 1.273.9-5.6-0.2 Профиль направляющий ПН2 1.273.9-5.6-0.3 Винт 1.273.9-5.6-0.4 Монтажная деталь МД-1 (обрезок ПС2, L = 100 мм) 1.273.9-5.6-0.5 Анкер падающий 1.273.9-5.6-0.6 Дюбель разжимной 1.273.9-5.6-0.7 Крючок 1.273.9-5.6-0.8 Анкер проходной 1.273.9-5.6-0.9 Дюбель-гвоздь пистолетный |
| Разработан: | ЦНИИЭП торгово-бытовых зданий и туристских комплексов |
| Утверждён: | 19.05.1987 Государственный комитет по гражданскому строительству и архитектуре при Госстрое СССР (161) |
| Расположен в: |





















