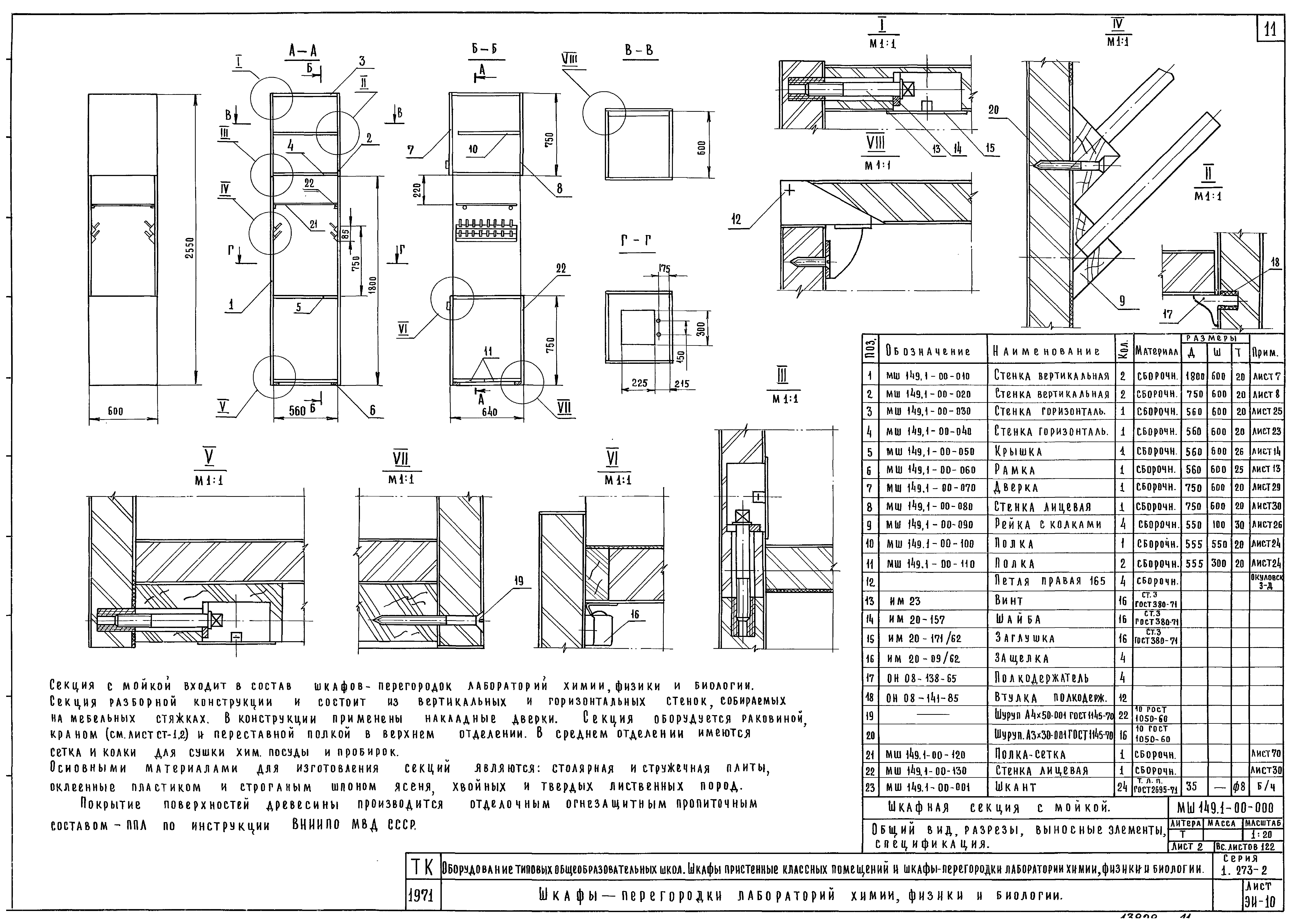
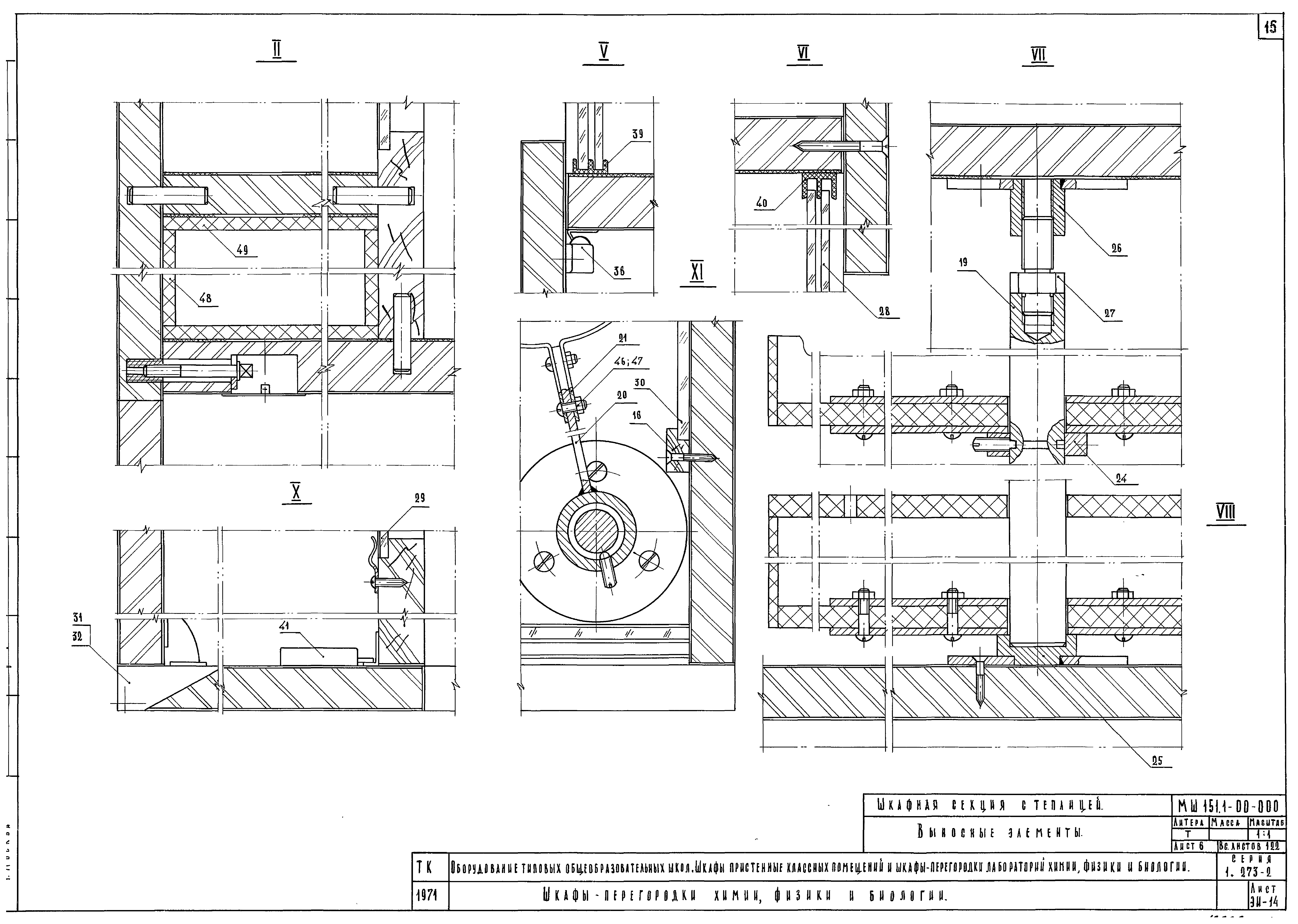
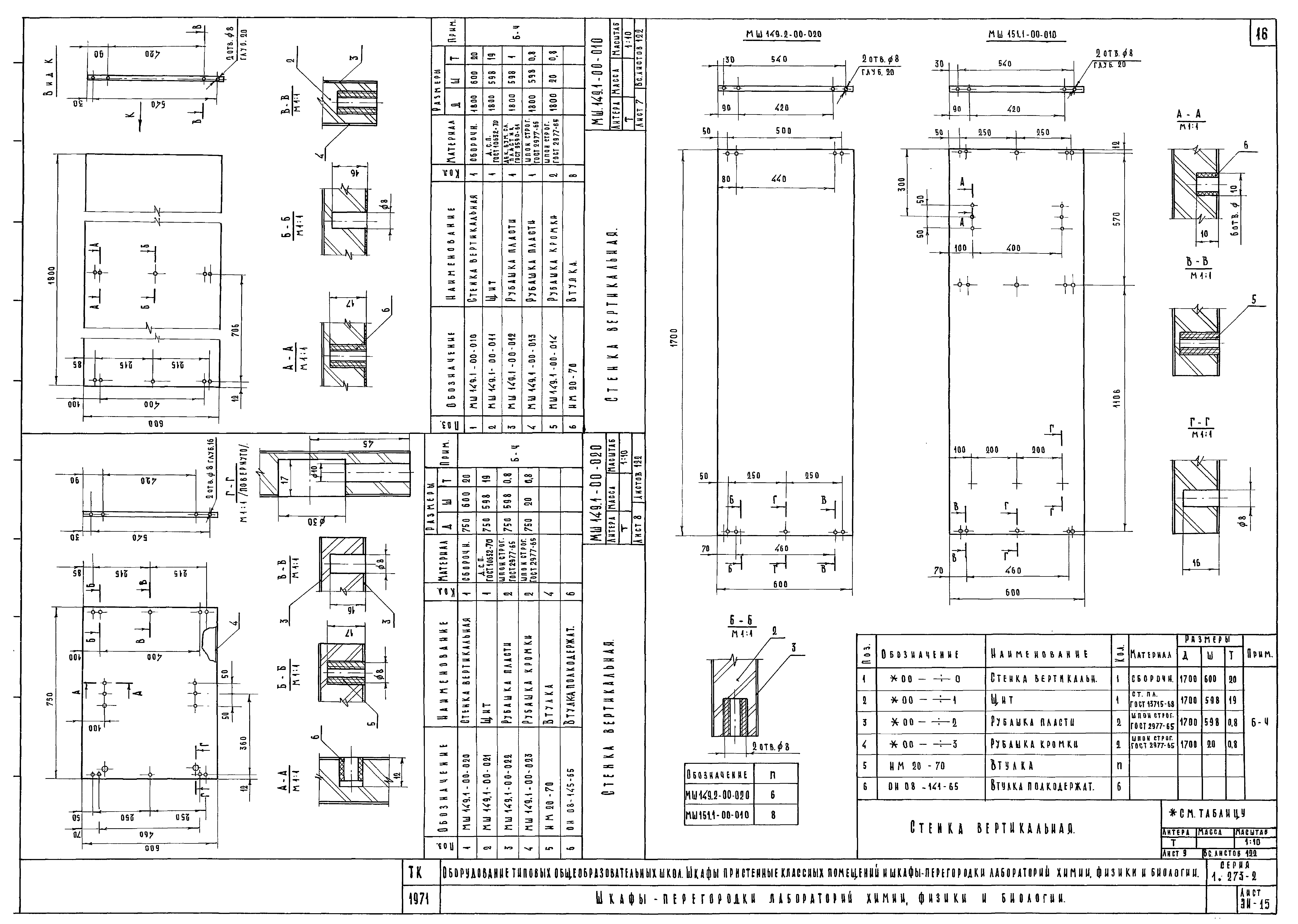
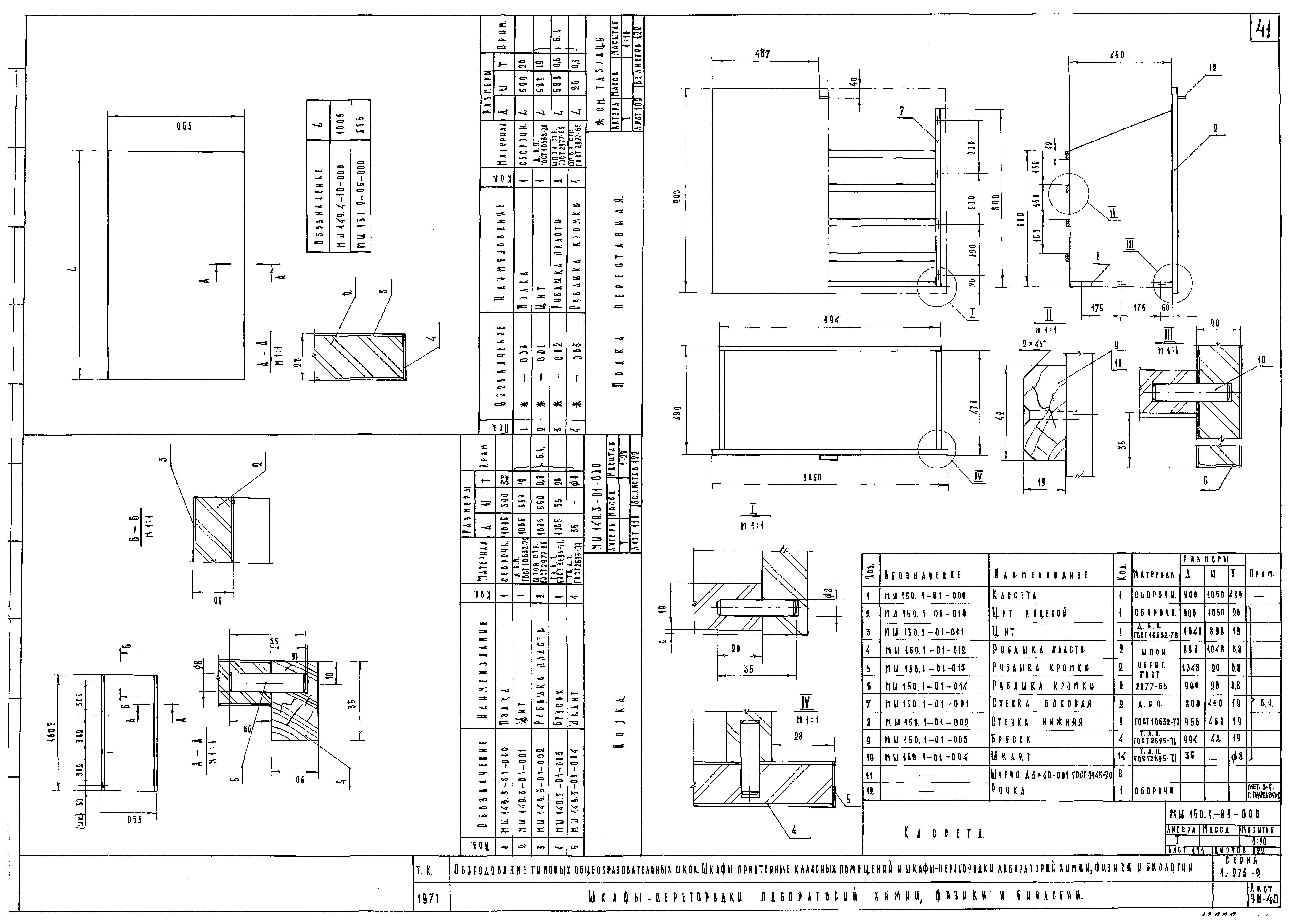
Скачать Серия 1.273-2 Оборудование типовых общеобразовательных школ. Шкафы пристенные классных помещений и шкафы-перегородки лабораторий химии, физики и биологии. Рабочие чертежиДата актуализации: 10.08.2017 Серия 1.273-2
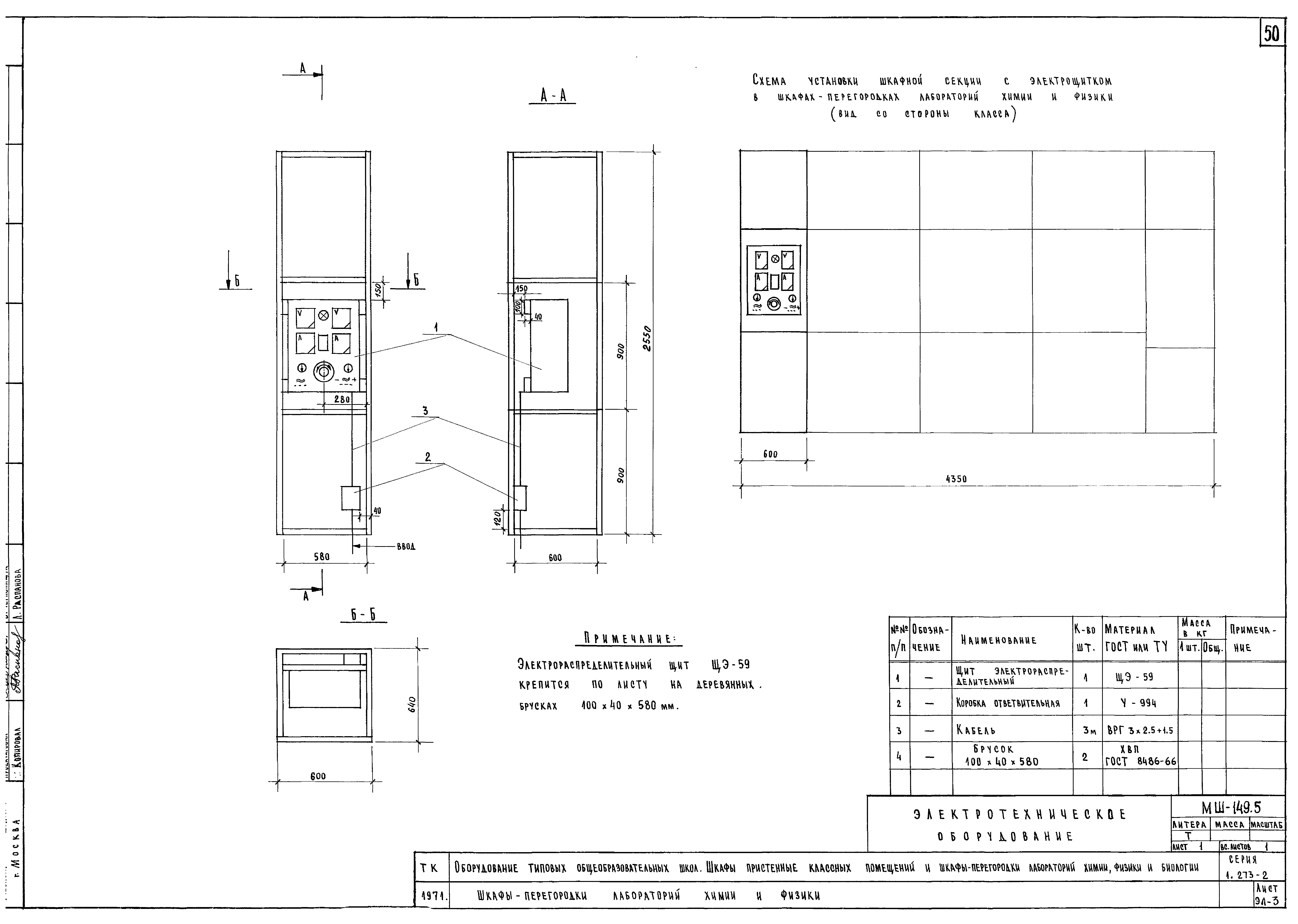
Оборудование типовых общеобразовательных школ. Шкафы пристенные классных помещений и шкафы-перегородки лабораторий химии, физики и биологии. Рабочие чертежи| Обозначение: | Серия 1.273-2 | | Обозначение англ: | Series 1.273-2 | | Статус: | не определен законодательством | | Название рус.: | Оборудование типовых общеобразовательных школ. Шкафы пристенные классных помещений и шкафы-перегородки лабораторий химии, физики и биологии. Рабочие чертежи | | Дата добавления в базу: | 01.09.2013 | | Дата актуализации: | 05.05.2017 | | Дата введения: | 01.12.1975 | | Разработан: | ЦНИИЭП учебных зданий Госгражданстроя
| | Утверждён: | 10.12.1975 Госгражданстрой (Gosgrazhdanstroy 278)
| | Расположен в: |
|
                                                     
|