Информационная система
«Ёшкин Кот»

Скачать базу одним архивом
Скачать обновления
История создания базы
Карта сайта

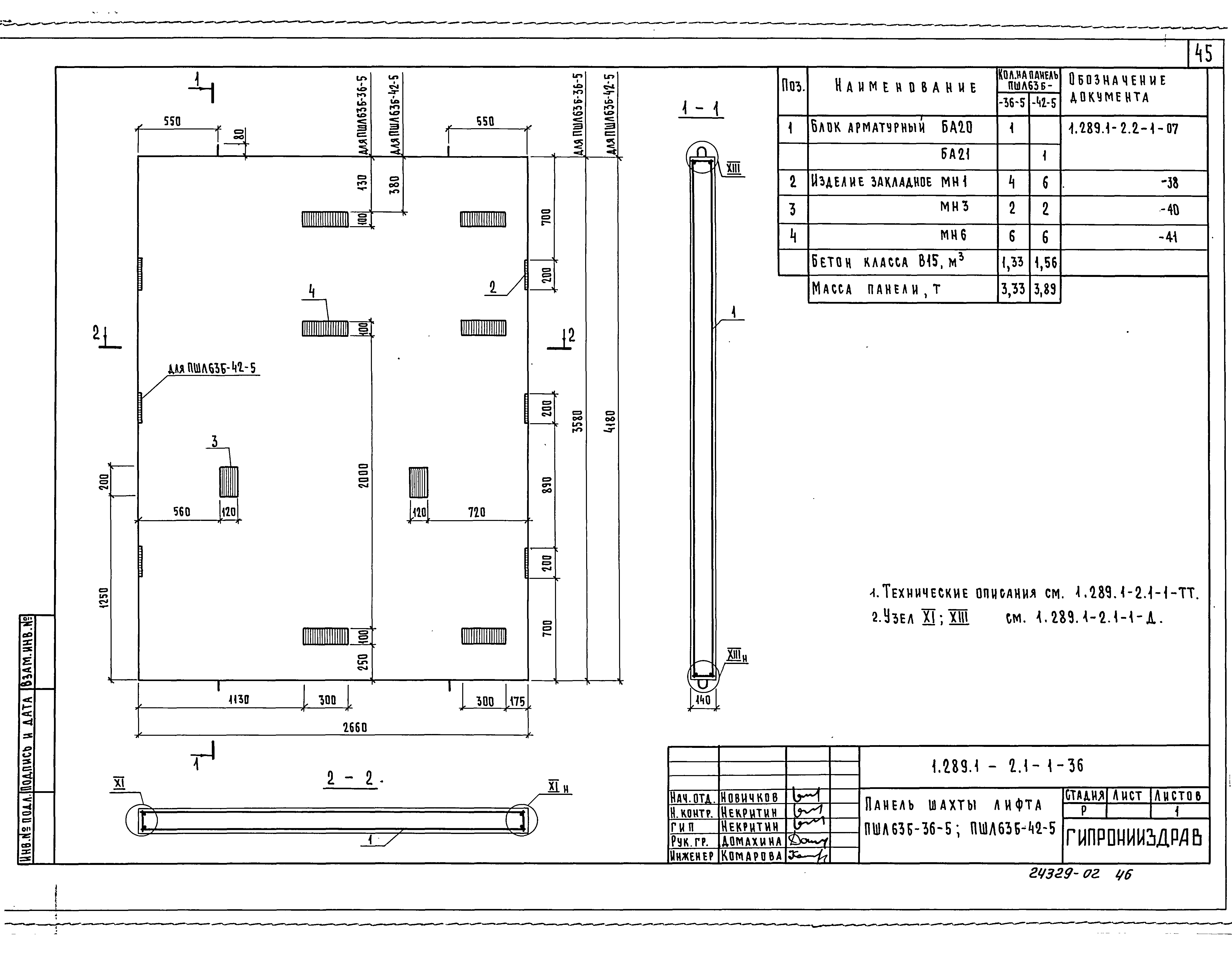
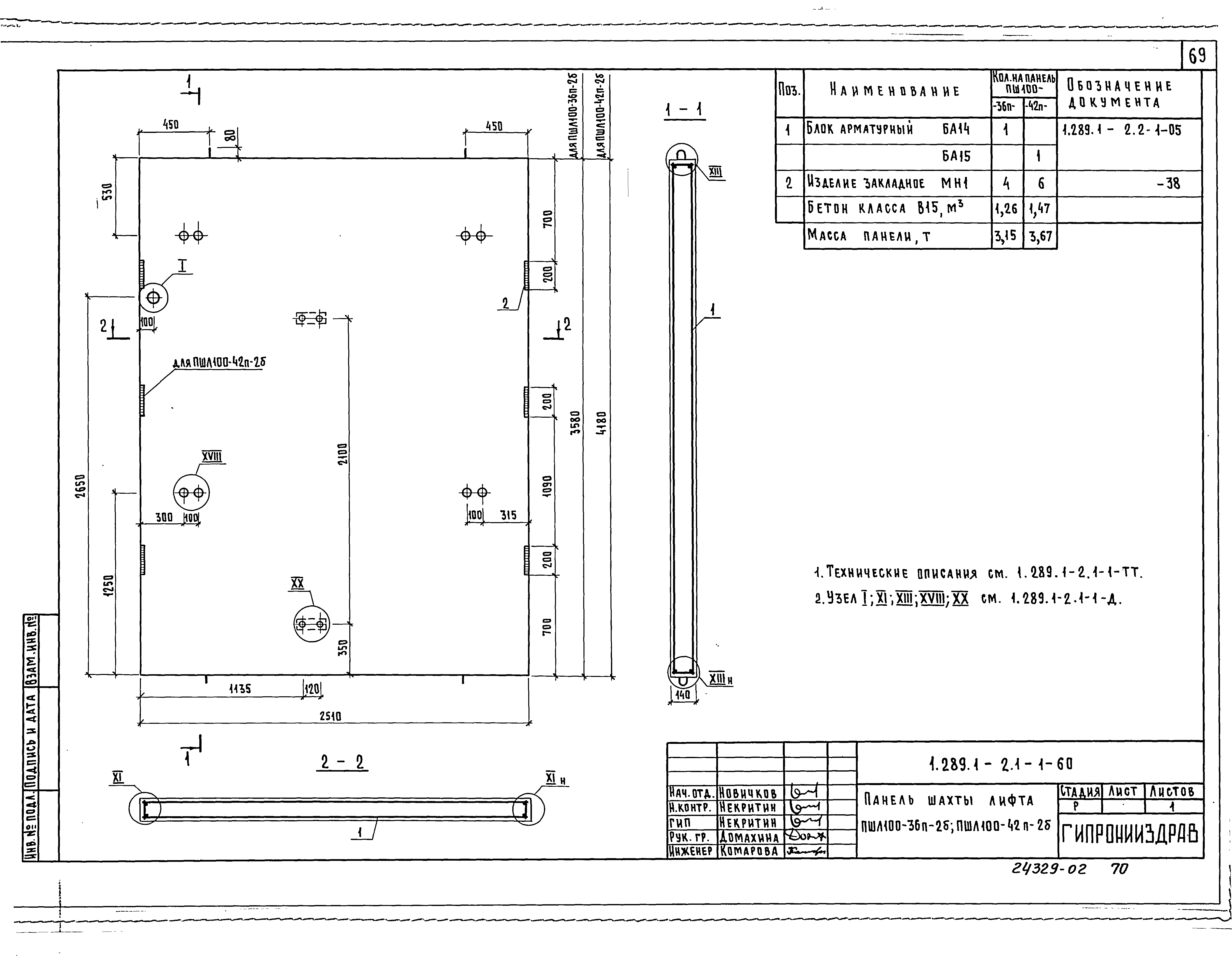
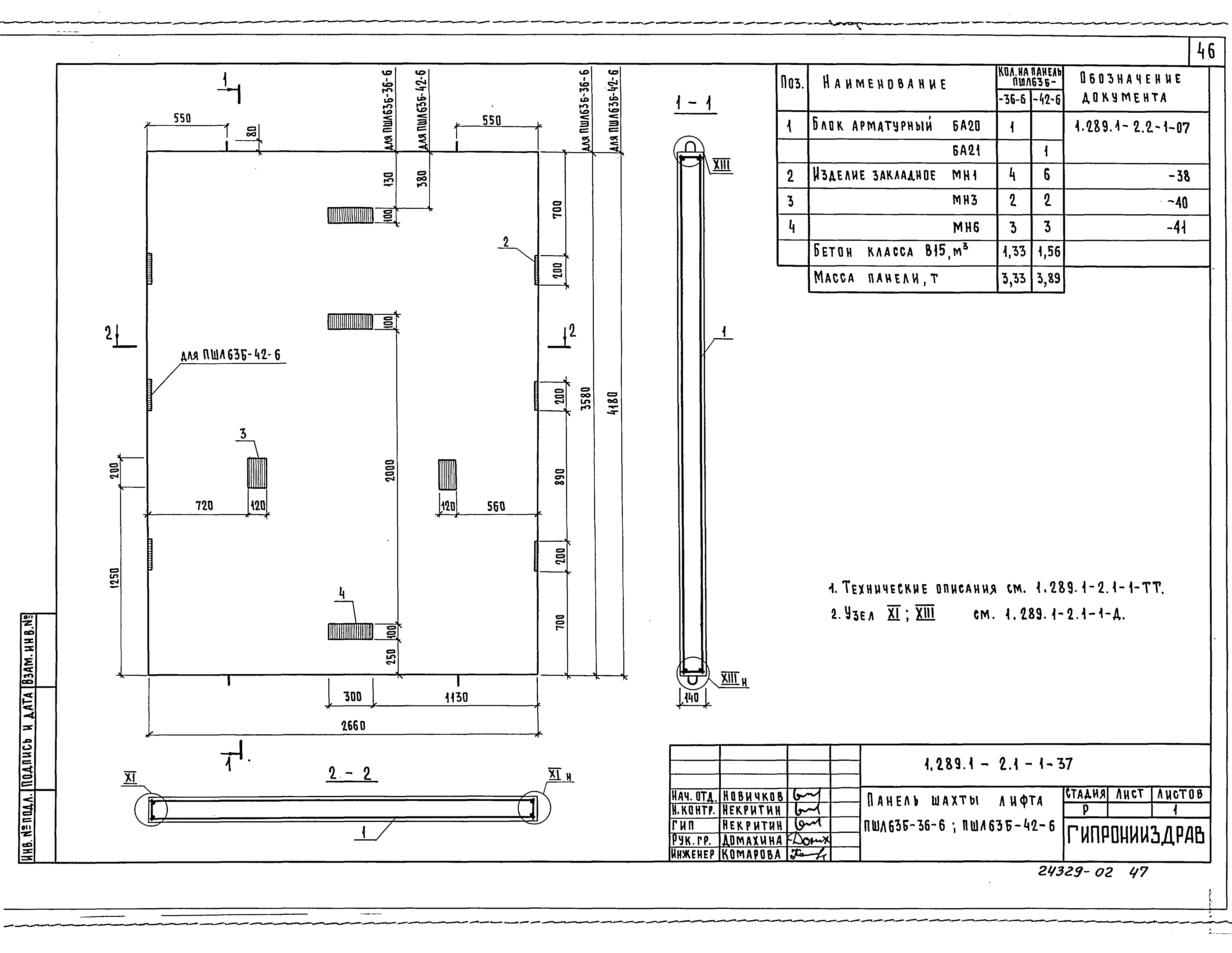
Скачать Серия 1.289.1-2 Выпуск 1-1. Панели шахт пассажирских лифтов по ГОСТ 5746-83. Рабочие чертежи

Дата актуализации: 10.08.2017

Серия 1.289.1-2

Выпуск 1-1. Панели шахт пассажирских лифтов по ГОСТ 5746-83. Рабочие чертежи

Обозначение: Серия 1.289.1-2
Обозначение англ: Series 1.289.1-2
Статус:не определен законодательством
Название рус.:Выпуск 1-1. Панели шахт пассажирских лифтов по ГОСТ 5746-83. Рабочие чертежи
Дата добавления в базу:01.09.2013
Дата актуализации:05.05.2017
Дата введения:01.10.1990
Разработан: ГипроНИИздрав Минздрава СССР
Утверждён:21.02.1990 Госкомархитектура (ЮШ-2-270)
Расположен в:Техническая документация Строительство Справочные документы Типовые строительные конструкции, изделия и узлы Общероссийский строительный каталог Строительные конструкции, изделия и узлы зданий и сооружений для всех видов строительства Конструкции, изделия и узлы зданий Несущие конструкции двухэтажных и многоэтажных зданий Шахты лифтов
Заменяет собой:
Нормативные ссылки:
Серия 1.289.1-2Серия 1.289.1-2Серия 1.289.1-2Серия 1.289.1-2Серия 1.289.1-2Серия 1.289.1-2Серия 1.289.1-2Серия 1.289.1-2Серия 1.289.1-2Серия 1.289.1-2Серия 1.289.1-2Серия 1.289.1-2Серия 1.289.1-2Серия 1.289.1-2Серия 1.289.1-2Серия 1.289.1-2Серия 1.289.1-2Серия 1.289.1-2Серия 1.289.1-2Серия 1.289.1-2Серия 1.289.1-2Серия 1.289.1-2Серия 1.289.1-2Серия 1.289.1-2Серия 1.289.1-2Серия 1.289.1-2Серия 1.289.1-2Серия 1.289.1-2Серия 1.289.1-2Серия 1.289.1-2Серия 1.289.1-2Серия 1.289.1-2Серия 1.289.1-2Серия 1.289.1-2Серия 1.289.1-2Серия 1.289.1-2Серия 1.289.1-2Серия 1.289.1-2Серия 1.289.1-2Серия 1.289.1-2Серия 1.289.1-2Серия 1.289.1-2Серия 1.289.1-2Серия 1.289.1-2Серия 1.289.1-2Серия 1.289.1-2Серия 1.289.1-2Серия 1.289.1-2Серия 1.289.1-2Серия 1.289.1-2Серия 1.289.1-2Серия 1.289.1-2Серия 1.289.1-2Серия 1.289.1-2Серия 1.289.1-2Серия 1.289.1-2Серия 1.289.1-2Серия 1.289.1-2Серия 1.289.1-2Серия 1.289.1-2Серия 1.289.1-2Серия 1.289.1-2Серия 1.289.1-2Серия 1.289.1-2Серия 1.289.1-2Серия 1.289.1-2Серия 1.289.1-2Серия 1.289.1-2Серия 1.289.1-2Серия 1.289.1-2Серия 1.289.1-2Серия 1.289.1-2Серия 1.289.1-2Серия 1.289.1-2Серия 1.289.1-2Серия 1.289.1-2Серия 1.289.1-2Серия 1.289.1-2Серия 1.289.1-2Серия 1.289.1-2Серия 1.289.1-2Серия 1.289.1-2Серия 1.289.1-2Серия 1.289.1-2Серия 1.289.1-2Серия 1.289.1-2Серия 1.289.1-2Серия 1.289.1-2Серия 1.289.1-2Серия 1.289.1-2

© 2013 Ёшкин Кот :-) Карта сайта