| ||||||||||||||||||||||||||
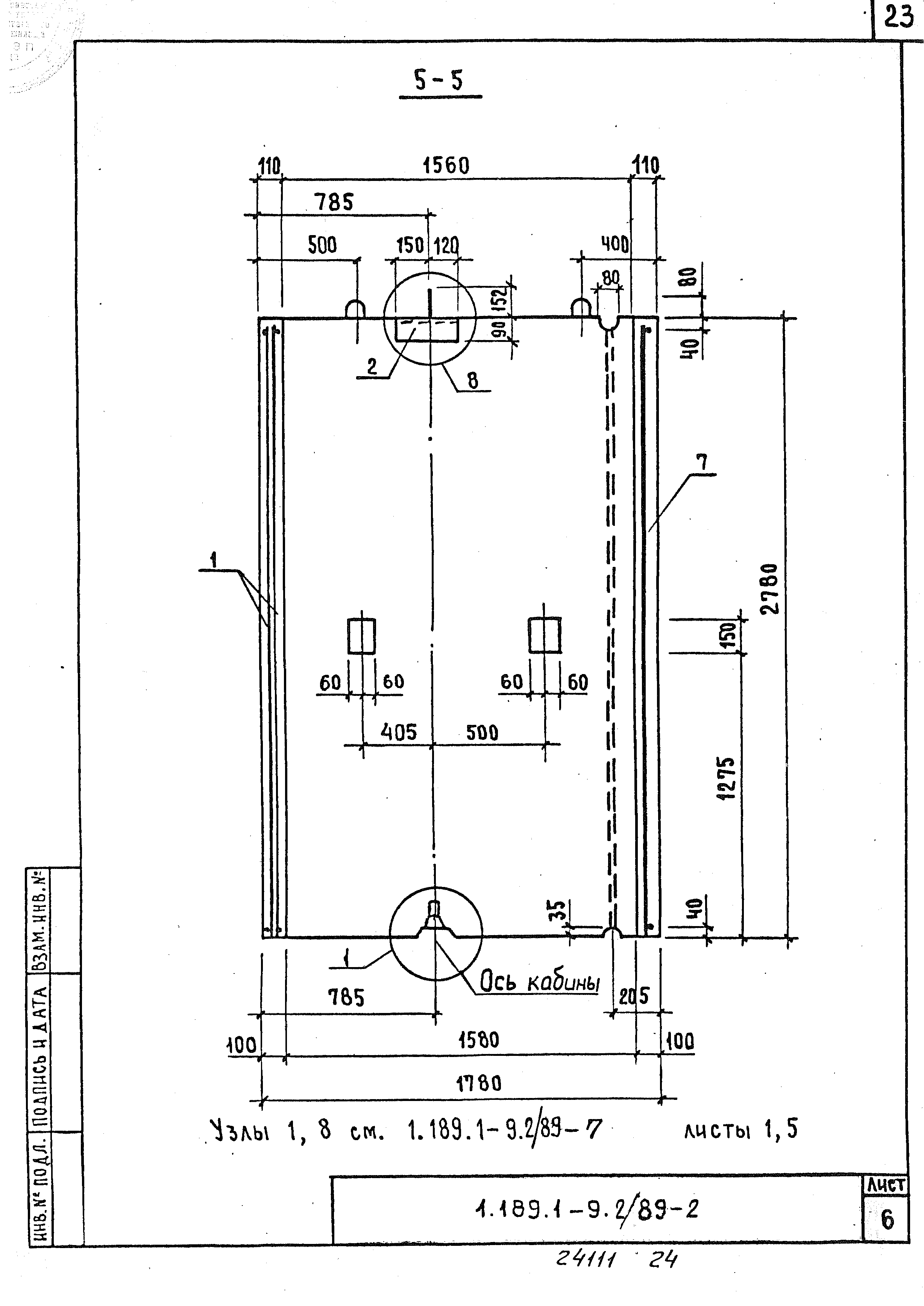
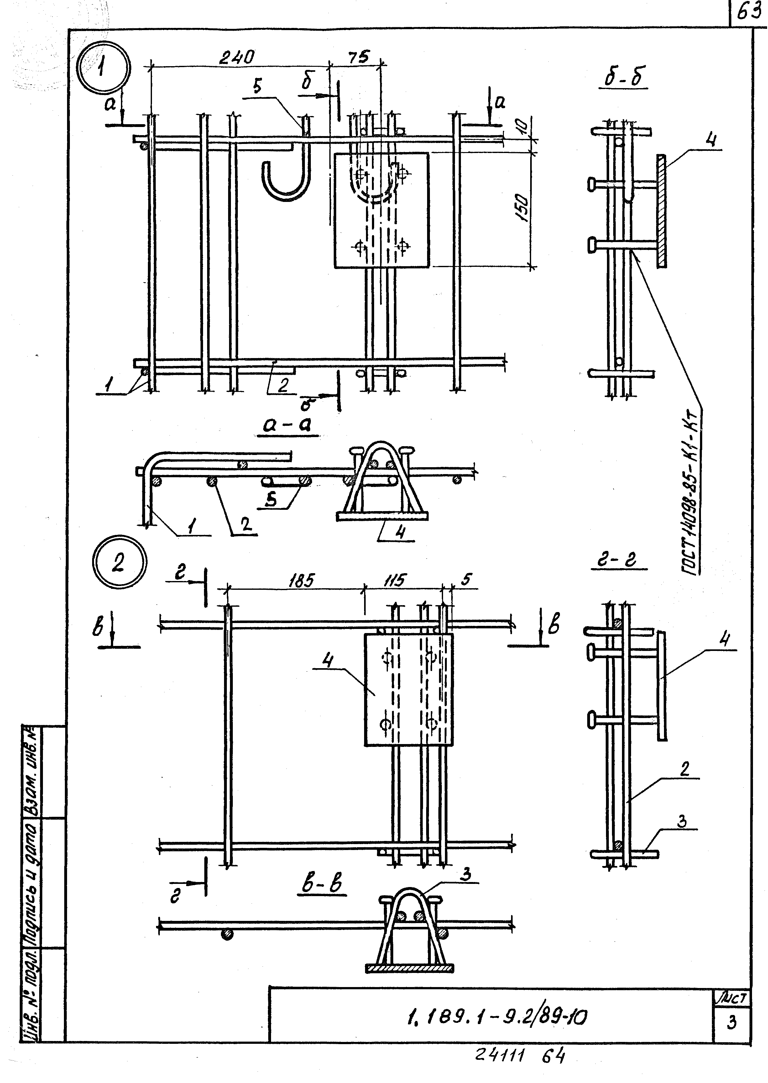
Скачать Серия 1.189.1-9 Выпуск 2/89. Конструкции шахт лифтов грузоподъемностью 400 кг с противовесом сзади кабины (номинальные внутренние размеры шахт 1730х1580 мм) для зданий высотой до 10 этажей. Рабочие чертежиДата актуализации: 10.08.2017
|
| Обозначение: | Серия 1.189.1-9 |
| Обозначение англ: | Series 1.189.1-9 |
| Статус: | не определен законодательством |
| Название рус.: | Выпуск 2/89. Конструкции шахт лифтов грузоподъемностью 400 кг с противовесом сзади кабины (номинальные внутренние размеры шахт 1730х1580 мм) для зданий высотой до 10 этажей. Рабочие чертежи |
| Дата добавления в базу: | 01.09.2013 |
| Дата актуализации: | 05.05.2017 |
| Дата введения: | 01.11.1989 |
| Разработан: | ЦНИИЭП жилища |
| Утверждён: | 08.09.1989 Госкомархитектура (166) |
| Расположен в: | |
| Заменяет собой: |






















































































