| ||||||||||||||||||||||||||
Скачать Серия 1.089.1-2 Выпуск 1-1. Панели шахт пассажирских и грузовых лифтов по альбому АТ-6 и плиты перекрытий. Рабочие чертежиДата актуализации: 10.08.2017
|
| Обозначение: | Серия 1.089.1-2 |
| Обозначение англ: | Series 1.089.1-2 |
| Статус: | не определен законодательством |
| Название рус.: | Выпуск 1-1. Панели шахт пассажирских и грузовых лифтов по альбому АТ-6 и плиты перекрытий. Рабочие чертежи |
| Дата добавления в базу: | 01.09.2013 |
| Дата актуализации: | 05.05.2017 |
| Дата введения: | 01.01.1993 |
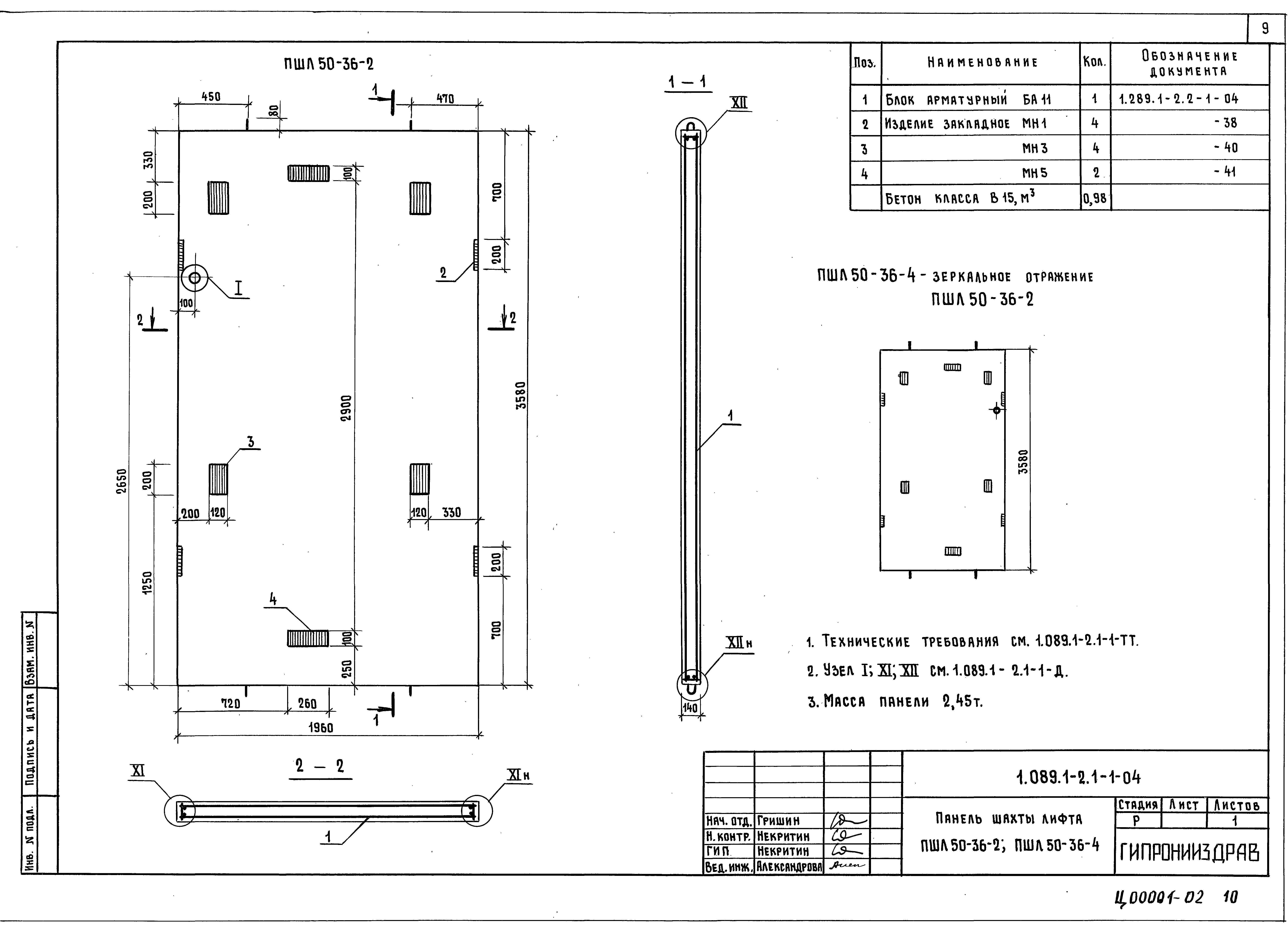
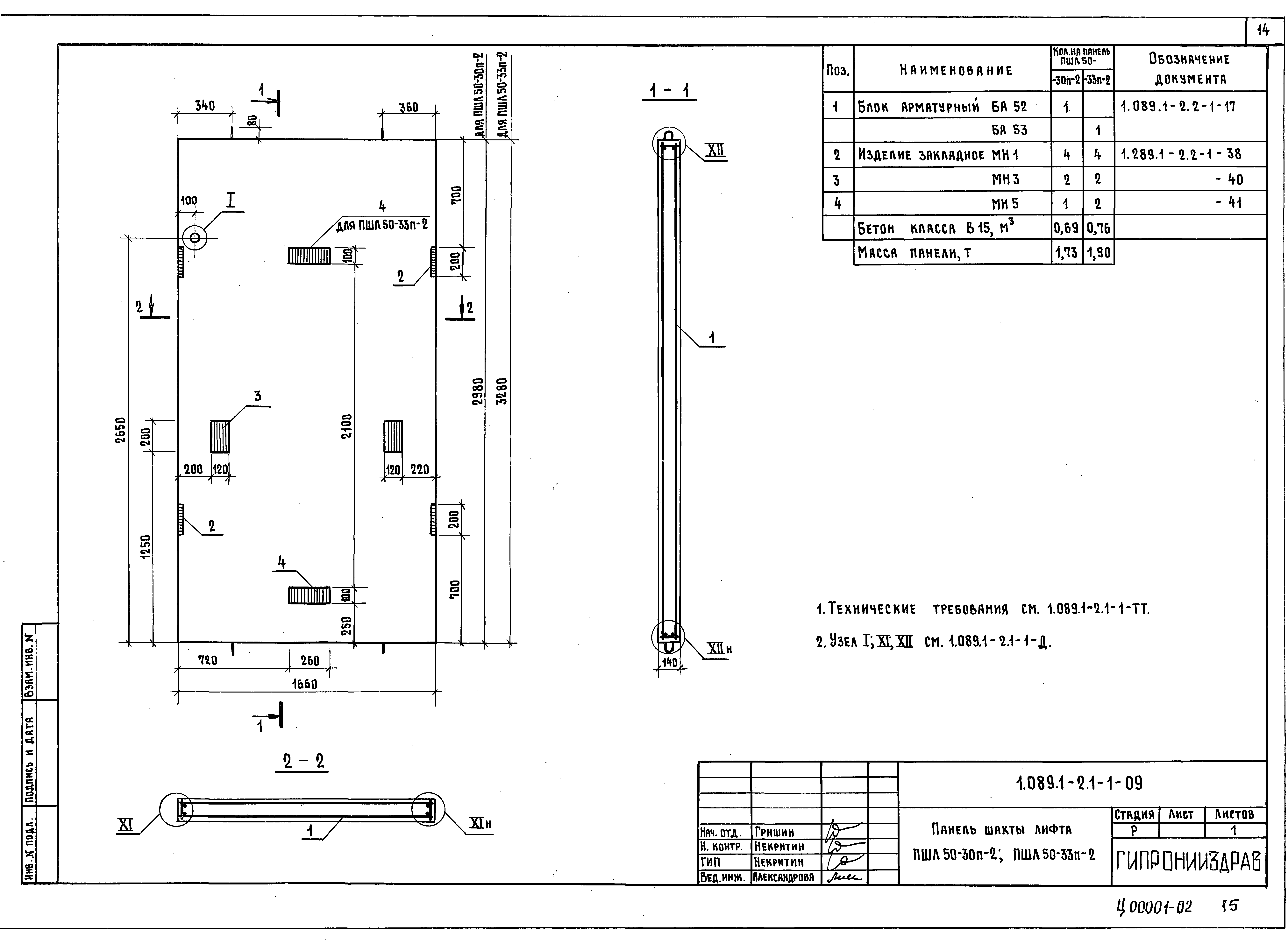
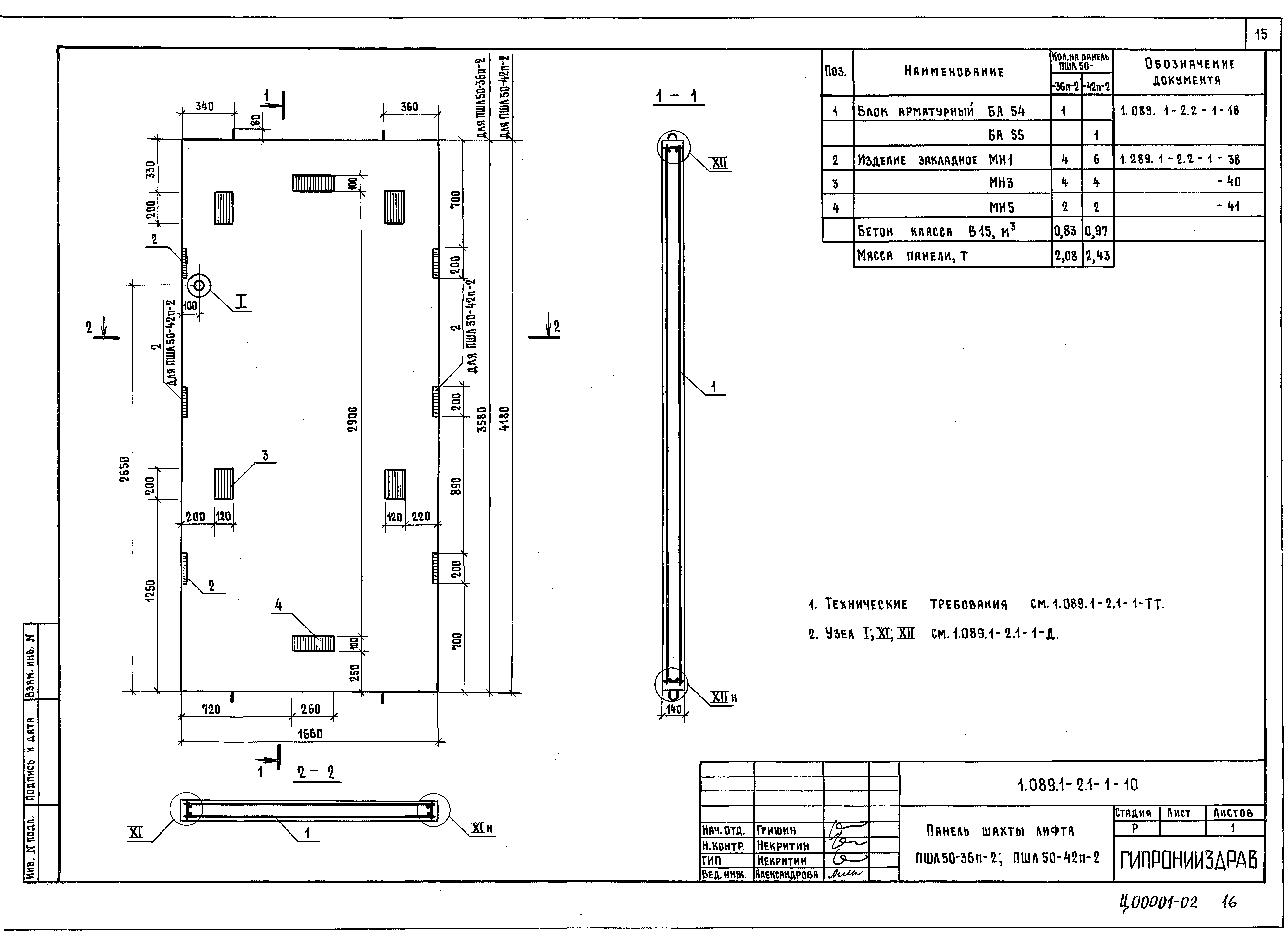
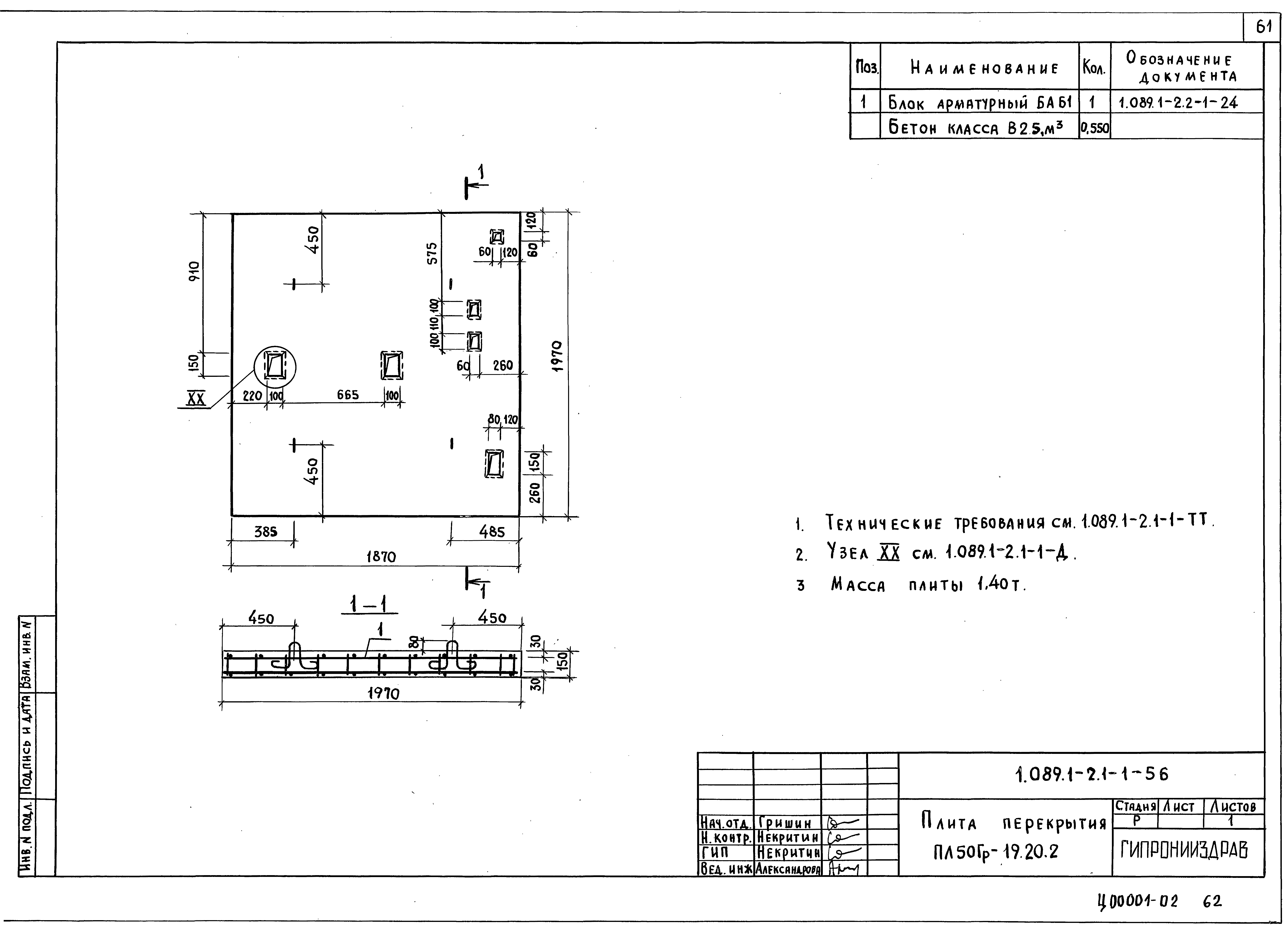
| Оглавление: | 1.089.1-2.1-1-ТТ Технические требования 1.089.1-2.1-1-01 Панель шахты лифта ПШЛ50-30-1;ПШЛ50-33-1;ПШЛ50-36-1;ПШЛ50-42-1 1.089.1-2.1-1-02 Панель шахты лифта ПШЛ50-30-2;ПШЛ50-30-4 1.089.1-2.1-1-03 Панель шахты лифта ПШЛ50-33-2;ПШЛ50-33-4 1.089.1-2.1-1-04 Панель шахты лифта ПШЛ50-36-2;ПШЛ50-36-4 1.089.1-2.1-1-05 Панель шахты лифта ПШЛ50-42-2;ПШЛ50-42-4 1.089.1-2.1-1-06 Панель шахты лифта ПШЛ50-30-3;ПШЛ50-33-3 1.089.1-2.1-1-07 Панель шахты лифта ПШЛ50-36-3;ПШЛ50-42-3 1.089.1-2.1-1-08 Панель шахты лифта ПШЛ50-30п-1;ПШЛ50-33п-1;ПШЛ50-36п-1;ПШЛ50-42п-1 1.089.1-2.1-1-09 Панель шахты лифта ПШЛ50-30п-2;ПШЛ50-33п-2 1.089.1-2.1-1-10 Панель шахты лифта ПШЛ50-36п-2;ПШЛ50-42п-2 1.089.1-2.1-1-11 Панель шахты лифта ПШЛ50-30п-3;ПШЛ50-33п-3;ПШЛ50-36п-3;ПШЛ50-42п-3 1.089.1-2.1-1-12 Панель шахты лифта ПШЛ50-30п-4;ПШЛ50-33п-4 1.089.1-2.1-1-13 Панель шахты лифта ПШЛ50-36п-4;ПШЛ50-42п-4 1.089.1-2.1-1-14 Панель шахты лифта ПШЛ100-30-1;ПШЛ100-33-1;ПШЛ100-36-1;ПШЛ100-42-1 1.089.1-2.1-1-15 Панель шахты лифта ПШЛ100-30-2;ПШЛ100-30-4 1.089.1-2.1-1-16 Панель шахты лифта ПШЛ100-33-2;ПШЛ100-33-4 1.089.1-2.1-1-17 Панель шахты лифта ПШЛ100-36-2;ПШЛ100-36-4 1.089.1-2.1-1-18 Панель шахты лифта ПШЛ100-42-2;ПШЛ100-42-4 1.089.1-2.1-1-19 Панель шахты лифта ПШЛ100-30-3;ПШЛ100-33-3;ПШЛ100-36-3 1.089.1-2.1-1-20 Панель шахты лифта ПШЛ100-42-3 1.089.1-2.1-1-21 Панель шахты лифта ПШЛ50Г-30п-2;ПШЛ50Г-33п-2 1.089.1-2.1-1-22 Панель шахты лифта ПШЛ50Г-36п-2;ПШЛ50Г-42п-2 1.089.1-2.1-1-23 Панель шахты лифта ПШЛ50Г-30п-4;ПШЛ50Г-33п-4 1.089.1-2.1-1-24 Панель шахты лифта ПШЛ50Г-36п-4;ПШЛ50Г-42п-4 1.089.1-2.1-1-25 Панель шахты лифта ПШЛ50Б-33-1;ПШЛ50Б-36-1;ПШЛ50Б-42-1 1.089.1-2.1-1-26 Панель шахты лифта ПШЛ50Б-33-2 1.089.1-2.1-1-27 Панель шахты лифта ПШЛ50Б-36-2;ПШЛ50Б-42-2 1.089.1-2.1-1-28 Панель шахты лифта ПШЛ50Б-33-4 1.089.1-2.1-1-29 Панель шахты лифта ПШЛ50Б-36-4;ПШЛ50Б-42-4 1.089.1-2.1-1-30 Панель шахты лифта ПШЛ50Б-33-5;ПШЛ50Б-36-5;ПШЛ50Б-42-5 1.089.1-2.1-1-31 Панель шахты лифта ПШЛ50Гр-30-1;ПШЛ50Гр-33-1;ПШЛ50Гр-36-1;ПШЛ50Гр-42-1 1.089.1-2.1-1-32 Панель шахты лифта ПШЛ50Гр-30-2;ПШЛ50Гр-33-2 1.089.1-2.1-1-33 Панель шахты лифта ПШЛ50Гр-36-2;ПШЛ50Гр-42-2 1.089.1-2.1-1-34 Панель шахты лифта ПШЛ50Гр-30-3;ПШЛ50Гр-33-3;ПШЛ50Гр-36-3;ПШЛ50Гр-42-3 1.089.1-2.1-1-35 Панель шахты лифта ПШЛ50Гр-30-4;ПШЛ50Гр-33-4 1.089.1-2.1-1-36 Панель шахты лифта ПШЛ50Гр-36-4;ПШЛ50Гр-42-4 1.089.1-2.1-1-37 Панель шахты лифта ПШЛ50Гр-30-5;ПШЛ50Гр-33-5;ПШЛ50Гр-36-5;ПШЛ50Гр-42-5 1.089.1-2.1-1-38 Панель шахты лифта ПШЛ50Гр.б-30-1;ПШЛ50Гр.б-33-1;ПШЛ50Гр.б-36-1;ПШЛ50Гр.б-42-1 1.089.1-2.1-1-39 Панель шахты лифта ПШЛ50Гр.б-30-2;ПШЛ50Гр.б-33-2 1.089.1-2.1-1-40 Панель шахты лифта ПШЛ50Гр.б-36-2;ПШЛ50Гр.б-42-2 1.089.1-2.1-1-41 Панель шахты лифта ПШЛ50Гр.б-30-3 1.089.1-2.1-1-42 Панель шахты лифта ПШЛ50Гр.б-30-4;ПШЛ50Гр.б-33-4 1.089.1-2.1-1-43 Панель шахты лифта ПШЛ50Гр.б-36-4;ПШЛ50Гр.б-42-4 1.089.1-2.1-1-44 Панель шахты лифта ПШЛ50Гр.б-30-5;ПШЛ50Гр.б-33-5;ПШЛ50Гр.б-36-5;ПШЛ50Гр.б-42-5 1.089.1-2.1-1-45 Панель шахты лифта ПШЛ100Гр-30-1;ПШЛ100Гр-33-1;ПШЛ100Гр-36-1;ПШЛ100Гр-42-1 1.089.1-2.1-1-46 Панель шахты лифта ПШЛ100Гр-30-2;ПШЛ100Гр-33-2 1.089.1-2.1-1-47 Панель шахты лифта ПШЛ100Гр-36-2;ПШЛ100-42-2 1.089.1-2.1-1-48 Панель шахты лифта ПШЛ100Гр-30-4;ПШЛ100Гр-33-4 1.089.1-2.1-1-49 Панель шахты лифта ПШЛ100Гр-36-4;ПШЛ100Гр-42-4 1.089.1-2.1-1-50 Панель шахты лифта ПШЛ50Гр-30-5;ПШЛ50Гр-33-5;ПШЛ50Гр-36-5;ПШЛ50Гр-42-5 1.089.1-2.1-1-51 Панель шахты лифта ПШЛ50Гр-36-6 1.089.1-2.1-1-52 Панель шахты лифта ПШЛ50Гр-36-7 1.089.1-2.1-1-53 Плита перекрытия ПЛ50-20.23.2 1.089.1-2.1-1-54 Плита перекрытия ПЛ50-22.20.2п 1.089.1-2.1-1-55 Плита перекрытия ПЛ50Г-21.28.2п 1.089.1-2.1-1-56 Плита перекрытия ПЛ50Гр-19.20.2 1.089.1-2.1-1-57 Плита перекрытия ПЛ50Гр.б-24.25.2 1.089.1-2.1-1-58 Плита перекрытия ПЛ50Гр-24.25.2 1.089.1-2.1-1-Д Узел 1…20 1.089.1-2.1-1-РС Ведомость расхода стали |
| Разработан: | ГипроНИИздрав Минздрава СССР |
| Утверждён: | 06.10.1992 Минстрой России (Russian Federation Minstroy 9-1/303) |
| Расположен в: |






































































