| ||||||||||||||||||||||||||||
Скачать Серия 1.089.1-1 Выпуск 0-3. Шахты пассажирских и грузовых лифтов по альбому АТ-6. Материалы для проектирования. Указания по монтажуДата актуализации: 10.08.2017
|
| Обозначение: | Серия 1.089.1-1 |
| Обозначение англ: | Series 1.089.1-1 |
| Статус: | не определен законодательством |
| Название рус.: | Выпуск 0-3. Шахты пассажирских и грузовых лифтов по альбому АТ-6. Материалы для проектирования. Указания по монтажу |
| Дата добавления в базу: | 01.09.2013 |
| Дата актуализации: | 05.05.2017 |
| Дата введения: | 01.01.1992 |
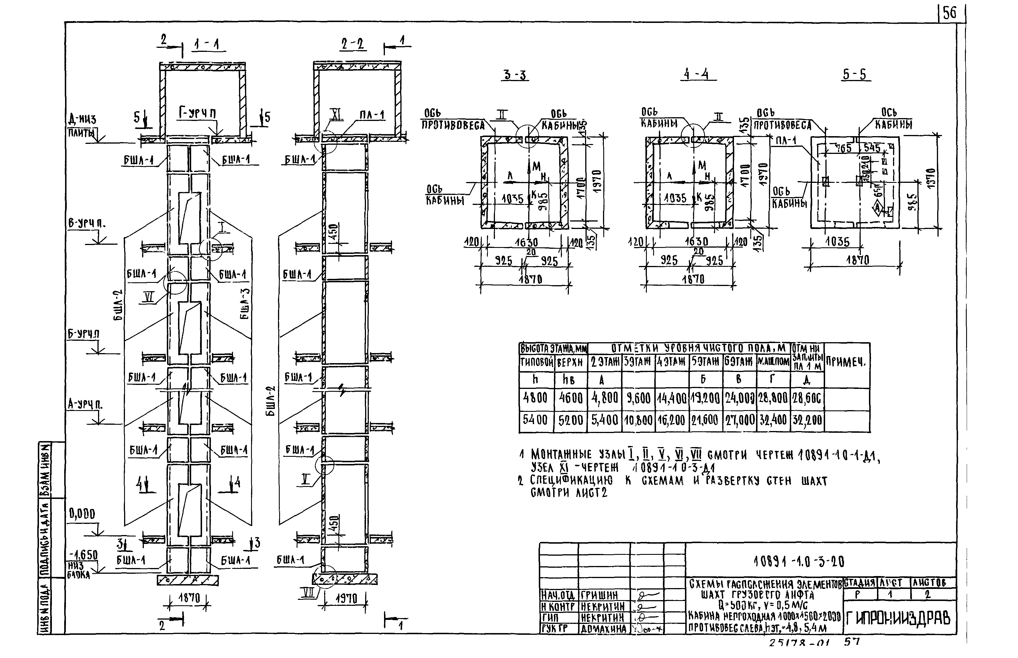
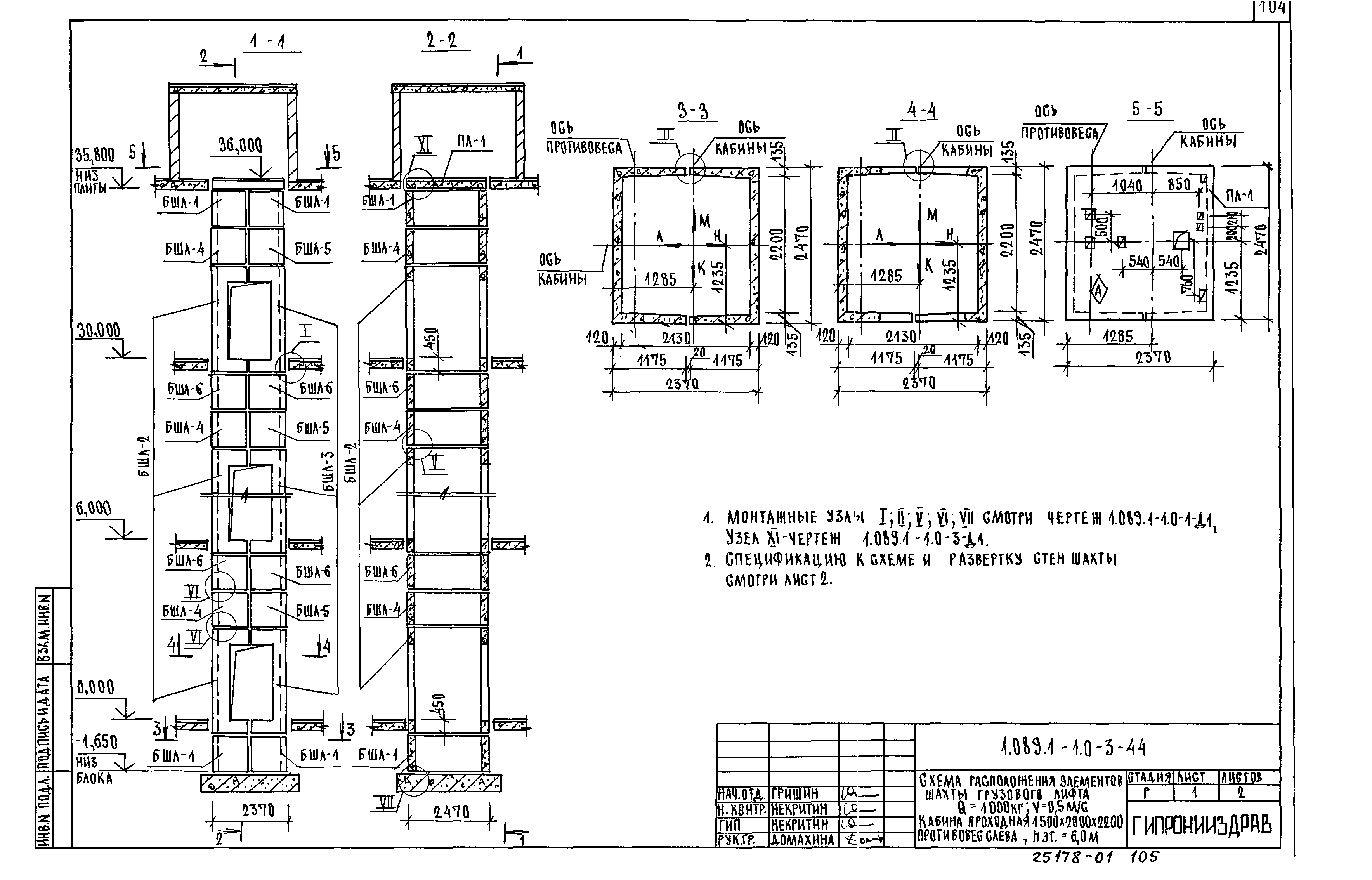
| Оглавление: | 1.089.1-1.0-3-ПЗ Пояснительная записка 1.089.1-1.0-3-НИ Номенклатура изделий 1.089.1-1.0-3-01 Схема расположения элементов шахты пассажирского лифта Q = 500 кг, V = 1,0 м/с противовес сзади, hэт. = 3,0 м 1.089.1-1.0-3-02 Схема расположения элементов шахты пассажирского лифта Q = 500 кг, V = 1,0 м/с противовес сзади, hэт. = 3,3; 3,6; 4,2 м 1.089.1-1.0-3-03 Схема расположения элементов шахты пассажирского лифта Q = 500 кг, V = 1,0 м/с противовес сзади, hэт. = 4,8; 5,4 м 1.089.1-1.0-3-04 Схема расположения элементов шахты пассажирского лифта Q = 500 кг, V = 1,0 м/с противовес сзади, hэт. = 6,0 м 1.089.1-1.0-3-05 Схема расположения элементов шахты пассажирского лифта Q = 500 кг, V = 1,0 м/с противовес сзади, hэт. = 6,6; 7,2 м 1.089.1-1.0-3-06 Схема расположения элементов шахты пассажирского лифта Q = 500 кг, V = 1,0 м/с противовес справа, hэт. = 3,0 м 1.089.1-1.0-3-07 Схема расположения элементов шахты пассажирского лифта Q = 500 кг, V = 1,0 м/с противовес справа, hэт. = 3,3; 3,6; 4,2 м 1.089.1-1.0-3-08 Схема расположения элементов шахты пассажирского лифта Q = 500 кг, V = 1,0 м/с противовес справа, hэт. =4 ,8; 5,4 м 1.089.1-1.0-3-09 Схема расположения элементов шахты пассажирского лифта Q = 500 кг, V = 1,0 м/с противовес справа, hэт. = 6,0 м 1.089.1-1.0-3-10 Схема расположения элементов шахты пассажирского лифта Q = 500 кг, V = 1,0 м/с противовес справа, hэт. = 6,6; 7,2 м 1.089.1-1.0-3-11 Схема расположения элементов шахты пассажирского лифта Q = 1000 кг, V = 1,0 м/с противовес сзади, hэт. = 3,0 м 1.089.1-1.0-3-12 Схема расположения элементов шахты пассажирского лифта Q = 1000 кг, V = 1,0 м/с противовес сзади, hэт. = 3,3; 3,6; 4,2 м 1.089.1-1.0-3-13 Схема расположения элементов шахты пассажирского лифта Q = 1000 кг, V = 1,0 м/с противовес сзади, hэт. = 4,8; 5,4 м 1.089.1-1.0-3-14 Схема расположения элементов шахты пассажирского лифта Q = 1000 кг, V = 1,0 м/с противовес сзади, hэт. = 6,0 м 1.089.1-1.0-3-15 Схема расположения элементов шахты пассажирского лифта Q = 1000 кг, V = 1,0 м/с противовес сзади, hэт. = 6,6; 7,2 м 1.089.1-1.0-3-16 Схема расположения элементов шахты больничного лифта Q = 500 кг, V = 0,5 м/с кабина непроходная противовес слева, hэт. = 3,3; 3,6; 4,2 м 1.089.1-1.0-3-17 Схема расположения элементов шахты больничного лифта Q = 500 кг, V = 0,5 м/с кабина проходная противовес слева, hэт. = 3,3; 3,6; 4,2 м 1.089.1-1.0-3-18 Схема расположения элементов шахты грузового лифта Q = 500 кг, V = 0,5 м/с кабина непроходная 1000х1500х2000 противовес слева, hэт. = 3,0 м 1.089.1-1.0-3-19 Схема расположения элементов шахты грузового лифта Q = 500 кг, V = 0,5 м/с кабина непроходная 1000х1500х2000 противовес слева, hэт. = 3,3; 3,6; 4,2 м 1.089.1-1.0-3-20 Схема расположения элементов шахты грузового лифта Q = 500 кг, V = 0,5 м/с кабина непроходная 1000х1500х2000 противовес слева, hэт. = 4,8; 5,4 м 1.089.1-1.0-3-21 Схема расположения элементов шахты грузового лифта Q = 500 кг, V = 0,5 м/с кабина непроходная 1000х1500х2000 противовес слева, hэт. = 6,0 м 1.089.1-1.0-3-22 Схема расположения элементов шахты грузового лифта Q = 500 кг, V = 0,5 м/с кабина непроходная 1000х1500х2000 противовес слева,hэт. = 6,6; 7,2 м 1.089.1-1.0-3-23 Схема расположения элементов шахты грузового лифта Q = 500 кг, V = 0,5 м/с кабина проходная 1000х1500х2000 противовес слева, hэт. = 3,0 м 1.089.1-1.0-3-24 Схема расположения элементов шахты грузового лифта Q = 500кг, V = 0,5 м/с кабина проходная 1000х1500х2000 противовес слева, hэт. = 3,3; 3,6; 4,2 м 1.089.1-1.0-3-25 Схема расположения элементов шахты грузового лифта Q = 500 кг, V = 0,5 м/с кабина проходная 1000х1500х2000 противовес слева, hэт. = 4,8; 5,4 м 1.089.1-1.0-3-26 Схема расположения элементов шахты грузового лифта Q = 500 кг, V = 0,5 м/с кабина проходная 1000х1500х2000 противовес слева, hэт. = 6,0 м 1.089.1-1.0-3-27 Схема расположения элементов шахты грузового лифта Q = 500 кг, V = 0,5 м/с кабина проходная 1000х1500х2000 противовес слева, hэт. = 6,6; 7,2 м 1.089.1-1.0-3-28 Схема расположения элементов шахты грузового лифта Q = 500 кг, V = 0,5 м/с кабина непроходная 1500х2000х2000 противовес слева, hэт .= 3,0 м 1.089.1-1.0-3-29 Схема расположения элементов шахты грузового лифта Q = 500 кг, V = 0,5 м/с кабина непроходная 1500х2000х2000 противовес слева, hэт. = 3,3; 3,6; 4,2 м 1.089.1-1.0-3-30 Схема расположения элементов шахты грузового лифта Q = 500 кг, V = 0,5 м/с кабина непроходная 1500х2000х2000 противовес слева, hэт. = 4,8; 5,4 м 1.089.1-1.0-3-31 Схема расположения элементов шахты грузового лифта Q = 500 кг, V = 0,5 м/с кабина непроходная 1500х2000х2000 противовес слева, hэт. = 6,0 м 1.089.1-1.0-3-32 Схема расположения элементов шахты грузового лифта Q = 500 кг, V = 0,5 м/с кабина непроходная 1500х2000х2000 противовес слева, hэт. = 6,6; 7,2м 1.089.1-1.0-3-33 Схема расположения элементов шахты грузового лифта Q = 500 кг, V = 0,5 м/с кабина проходная 1500х2000х2000 противовес слева, hэт. = 3,0 м 1.089.1-1.0-3-34 Схема расположения элементов шахты грузового лифта Q = 500 кг, V = 0,5 м/с кабина проходная 1500х2000х2000 противовес слева, hэт. = 3,3; 3,6; 4,2 м 1.089.1-1.0-3-35 Схема расположения элементов шахты грузового лифта Q = 500 кг, V = 0,5 м/с кабина проходная 1000х2000х2000 противовес слева, hэт. = 4,8; 5,4 м 1.089.1-1.0-3-36 Схема расположения элементов шахты грузового лифта Q = 500 кг, V = 0,5 м/с кабина проходная 1000х2000х2000 противовес слева, hэт. = 6,0 м 1.089.1-1.0-3-37 Схема расположения элементов шахты грузового лифта Q = 500 кг, V = 0,5 м/с кабина проходная 1000х2000х2000 противовес слева, hэт .= 6,6; 7,2 м 1.089.1-1.0-3-38 Схема расположения элементов шахты грузового лифта Q = 1000 кг, V = 0,5 м/с кабина непроходная 1500х2000х2000 противовес слева, hэт. = 3,3; 3,6; 4,2 м 1.089.1-1.0-3-39 Схема расположения элементов шахты грузового лифта Q = 1000 кг, V = 0,5 м/с кабина непроходная 1500х2000х2000 противовес слева, hэт. = 4,8; 5,4 м 1.089.1-1.0-3-40 Схема расположения элементов шахты грузового лифта Q = 1000 кг, V = 0,5 м/с кабина непроходная 1500х2000х2000 противовес слева, hэт. = 6,0 м 1.089.1-1.0-3-41 Схема расположения элементов шахты грузового лифта Q = 1000 кг, V = 0,5 м/с кабина непроходная 1500х2000х2000 противовес слева, hэт. = 6,6; 7,2 м 1.089.1-1.0-3-42 Схема расположения элементов шахты грузового лифта Q = 1000 кг, V = 0,5 м/с кабина проходная 1500х2000х2000 противовес слева, hэт. = 3,3; 3,6; 4,2 м 1.089.1-1.0-3-43 Схема расположения элементов шахты грузового лифта Q = 1000кг, V = 0,5 м/с кабина проходная 1500х2000х2000 противовес слева, hэт. = 4,8; 5,4 м 1.089.1-1.0-3-44 Схема расположения элементов шахты грузового лифта Q = 1000кг, V = 0,5 м/с кабина проходная 1500х2000х2000 противовес слева, hэт. = 6,0 м 1.089.1-1.0-3-45 Схема расположения элементов шахты грузового лифта Q = 1000 кг, V = 0,5 м/с кабина проходная 1500х2000х2000 противовес слева, hэт. = 6,6; 7,2 м 1.089.1-1.0-3-46 Участок монолитный УМ5 1.089.1-1.0-3-47 Участок монолитный УМ6, УМ8 1.089.1-1.0-3-48 Участок монолитный УМ7 1.089.1-1.0-3-49 Участок монолитный УМ9 1.089.1-1.0-3-50 Сетка С1…С3 1.089.1-1.0-3-РС Ведомость расхода стали на монолитный участок УМ5…УМ9 1.089.1-1.0-3-Д1 Узел 10, 11 1.089.1-1.0-3-Д2 Монтажные узлы при групповой установке шахт (пример) |
| Разработан: | ГипроНИИздрав Минздрава СССР |
| Утверждён: | 15.04.1991 Главпроект Госстроя СССР |
| Издан: | ЦИТП Госстроя СССР (CITP, Gosstroy (USSR) 1991 г. ) |
| Расположен в: |















































































































