| ||||||||||||||||||||||||||
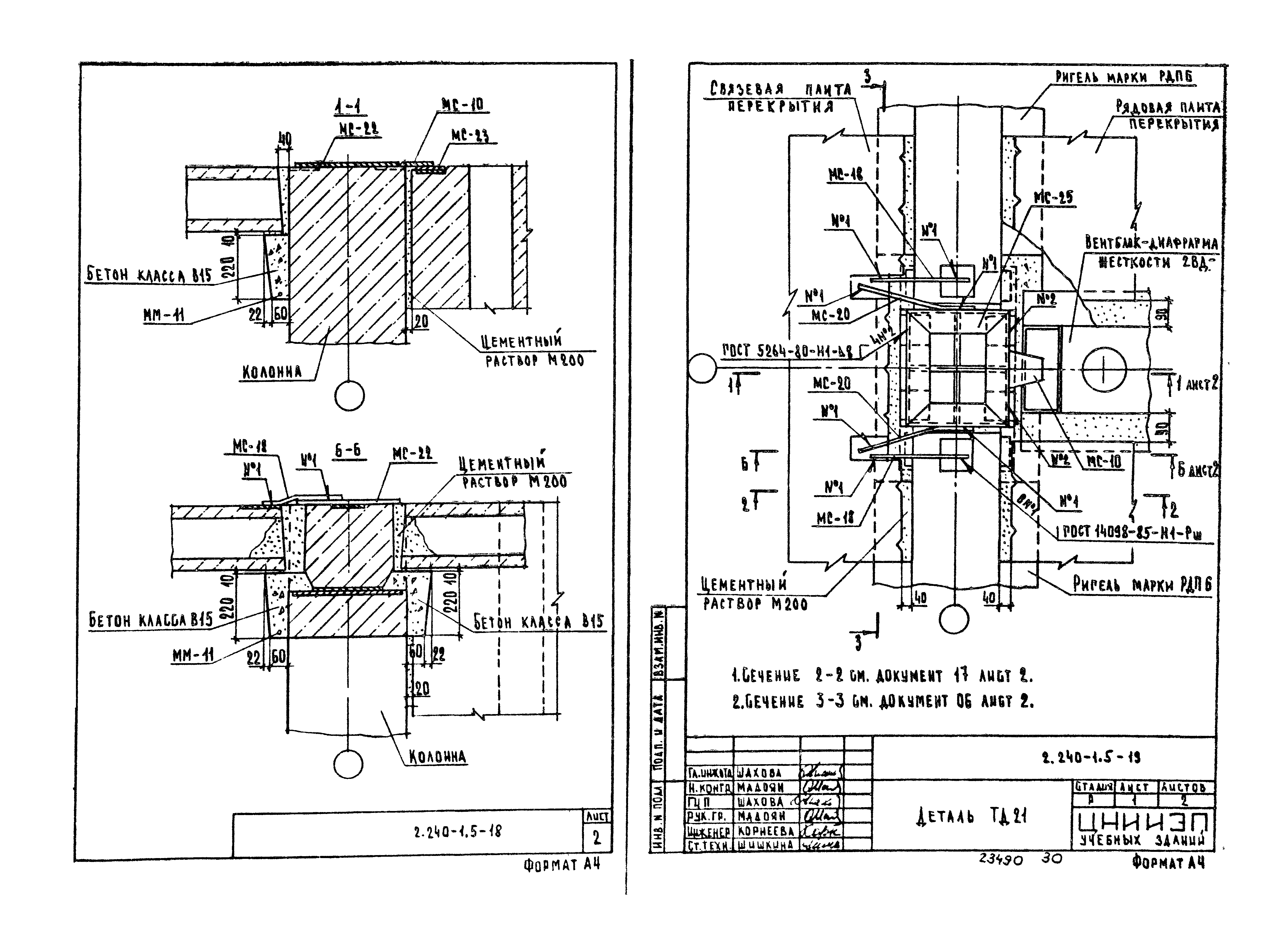
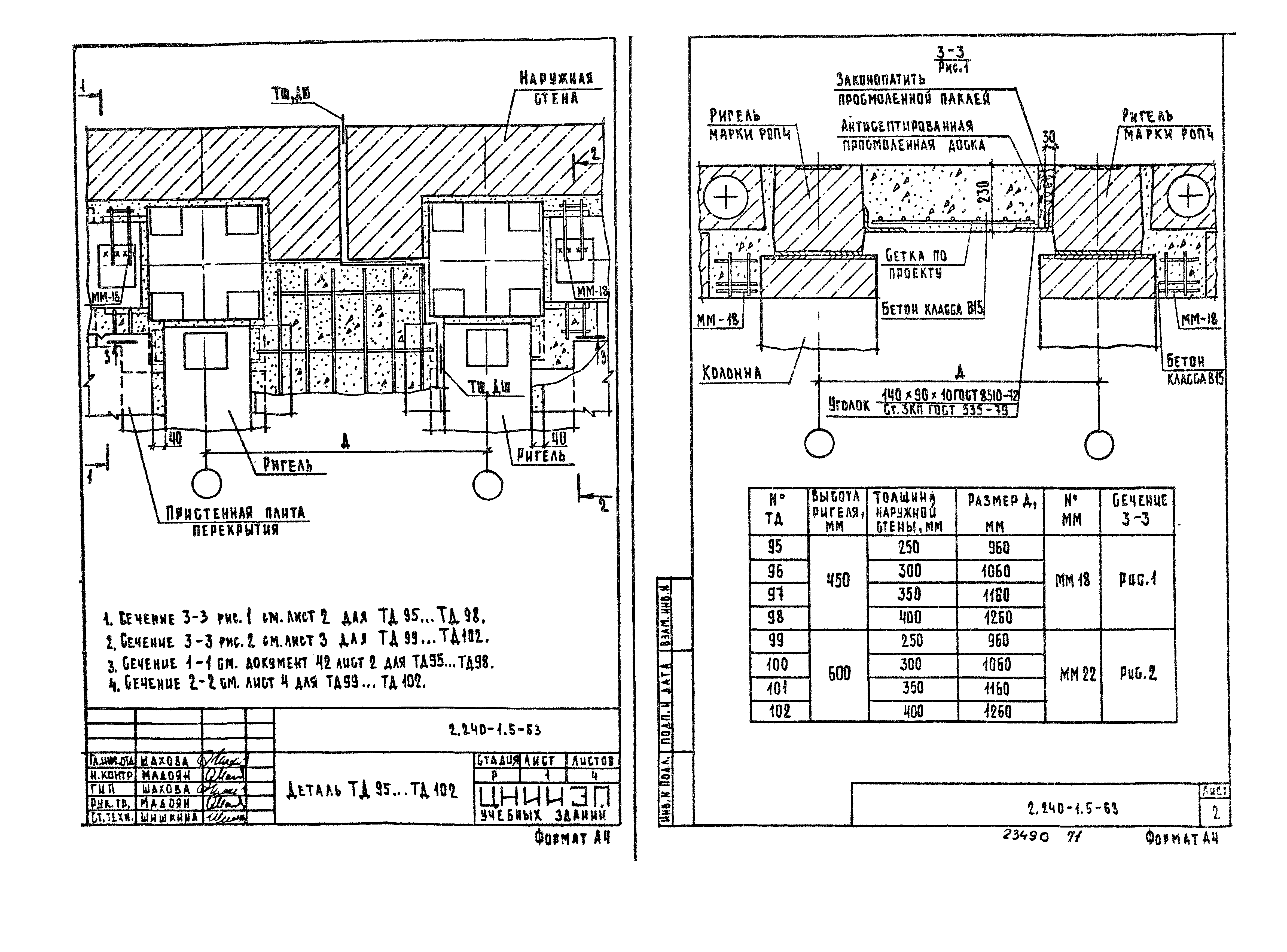
Скачать Серия 2.240-1 Выпуск 5. Перекрытия верхнего этажа каркасно-панельных зданий в конструкциях серии 1.020-1/83. Рабочие чертежиДата актуализации: 10.08.2017
|
| Обозначение: | Серия 2.240-1 |
| Обозначение англ: | Series 2.240-1 |
| Статус: | действует |
| Название рус.: | Выпуск 5. Перекрытия верхнего этажа каркасно-панельных зданий в конструкциях серии 1.020-1/83. Рабочие чертежи |
| Дата добавления в базу: | 01.09.2013 |
| Дата актуализации: | 05.05.2017 |
| Дата введения: | 01.01.1989 |
| Разработан: | ЦНИИЭП учебных зданий Госгражданстроя |
| Утверждён: | 27.09.1988 Госкомархитектура (АВ-4-2109) |
| Издан: | ЦИТП Госстроя СССР (CITP, Gosstroy (USSR) 1989 г. ) |
| Расположен в: |











































































