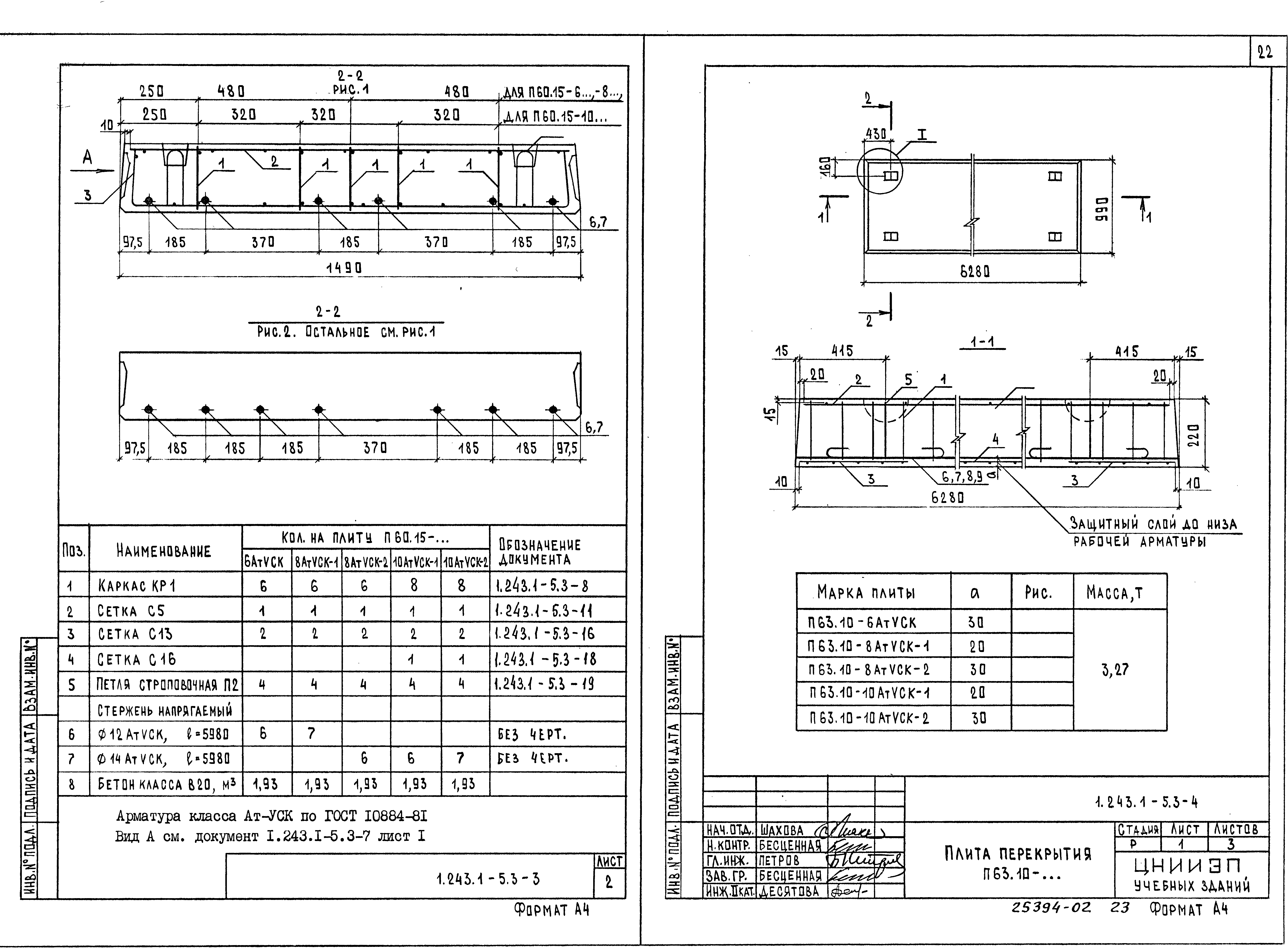
Скачать Серия 1.243.1-5 Выпуск 3. Предварительно напряженные плиты длиной 628 и 598 см, шириной 99, 119 и 149 см, армированные стержнями из стали класса Ат-VCK. Метод натяжения - электротермический. Рабочие чертежиДата актуализации: 10.08.2017 Серия 1.243.1-5
Выпуск 3. Предварительно напряженные плиты длиной 628 и 598 см, шириной 99, 119 и 149 см, армированные стержнями из стали класса Ат-VCK. Метод натяжения - электротермический. Рабочие чертежи| Обозначение: | Серия 1.243.1-5 | | Обозначение англ: | Series 1.243.1-5 | | Статус: | не определен законодательством | | Название рус.: | Выпуск 3. Предварительно напряженные плиты длиной 628 и 598 см, шириной 99, 119 и 149 см, армированные стержнями из стали класса Ат-VCK. Метод натяжения - электротермический. Рабочие чертежи | | Дата добавления в базу: | 01.09.2013 | | Дата актуализации: | 05.05.2017 | | Дата введения: | 01.07.1992 | | Разработан: | НИИЖБ ЦНИИЭП учебных зданий Госгражданстроя
| | Утверждён: | 30.01.1992 ЦНИИЭП учебных зданий (TsNIIEP of Educational Buildings 6)
| | Расположен в: |
| | Заменяет собой: | |
                                  
|