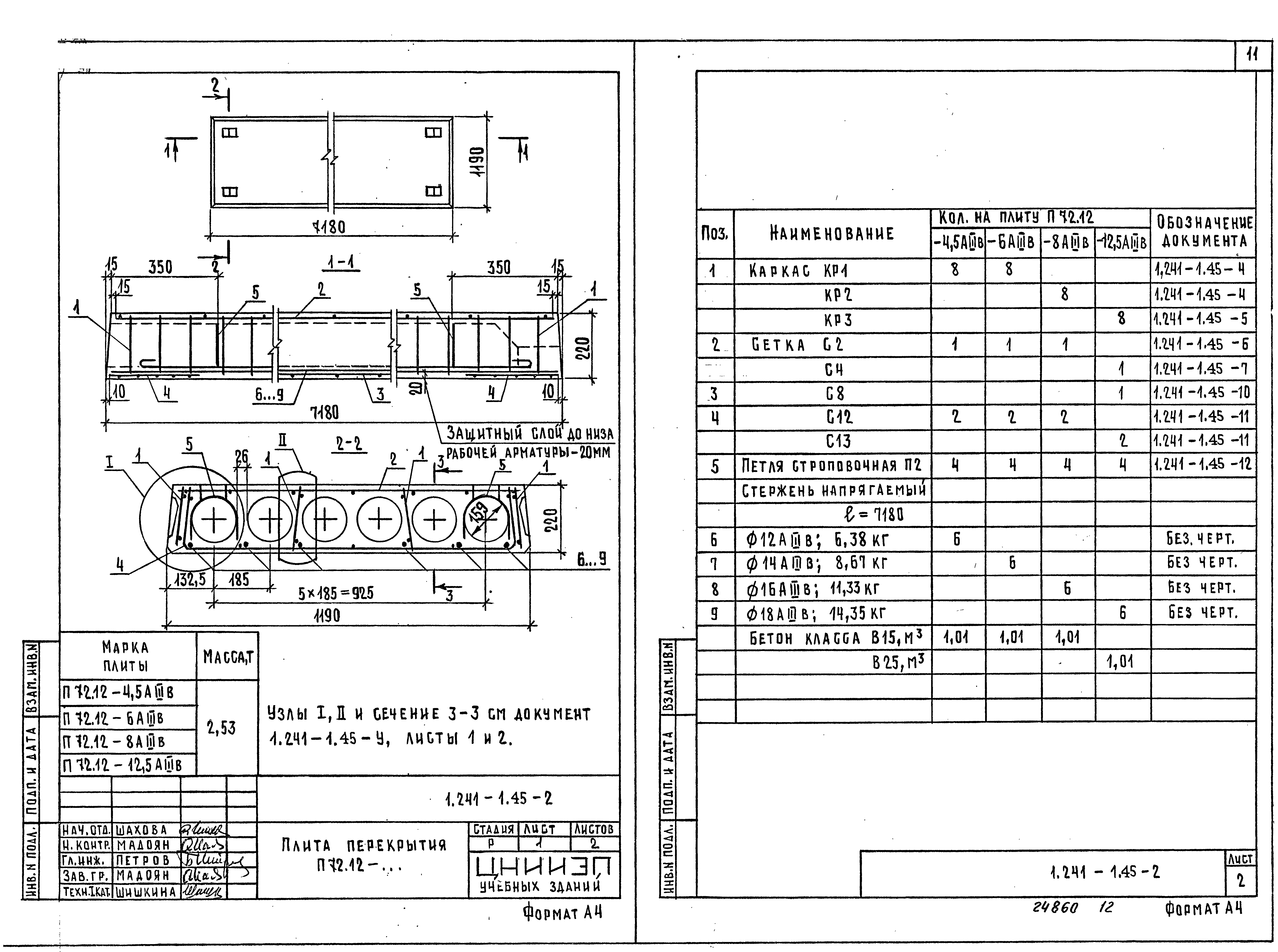
Скачать Серия 1.241-1 Выпуск 45. Предварительно напряженные плиты длиной 718 см, шириной 99, 119 и 149 см, армированные стержнями из стали класса А-IIIв. Метод натяжения - электротермический. Рабочие чертежиДата актуализации: 10.08.2017 Серия 1.241-1
Выпуск 45. Предварительно напряженные плиты длиной 718 см, шириной 99, 119 и 149 см, армированные стержнями из стали класса А-IIIв. Метод натяжения - электротермический. Рабочие чертежи| Обозначение: | Серия 1.241-1 | | Обозначение англ: | Series 1.241-1 | | Статус: | не определен законодательством | | Название рус.: | Выпуск 45. Предварительно напряженные плиты длиной 718 см, шириной 99, 119 и 149 см, армированные стержнями из стали класса А-IIIв. Метод натяжения - электротермический. Рабочие чертежи | | Дата добавления в базу: | 01.09.2013 | | Дата актуализации: | 05.05.2017 | | Дата введения: | 01.04.1991 | | Разработан: | НИИЖБ Госстроя СССР ЦНИИЭП учебных зданий Госгражданстроя
| | Утверждён: | 28.12.1990 Госкомархитектура (ЮШ-2-1711)
| | Расположен в: |
|
                 
|