Скачать Типовой проект 801-2-114.90 Альбом 1. Пояснительная записка. Технология производства. Архитектурные решения. Конструкции железобетонные. Конструкции деревянные. Внутренние водопровод и канализация. Отопление и вентиляция. Электроосвещение и силовое электрооборудование. Автоматизация систем отопления и вентиляцииДата актуализации: 10.08.2017 Типовой проект 801-2-114.90
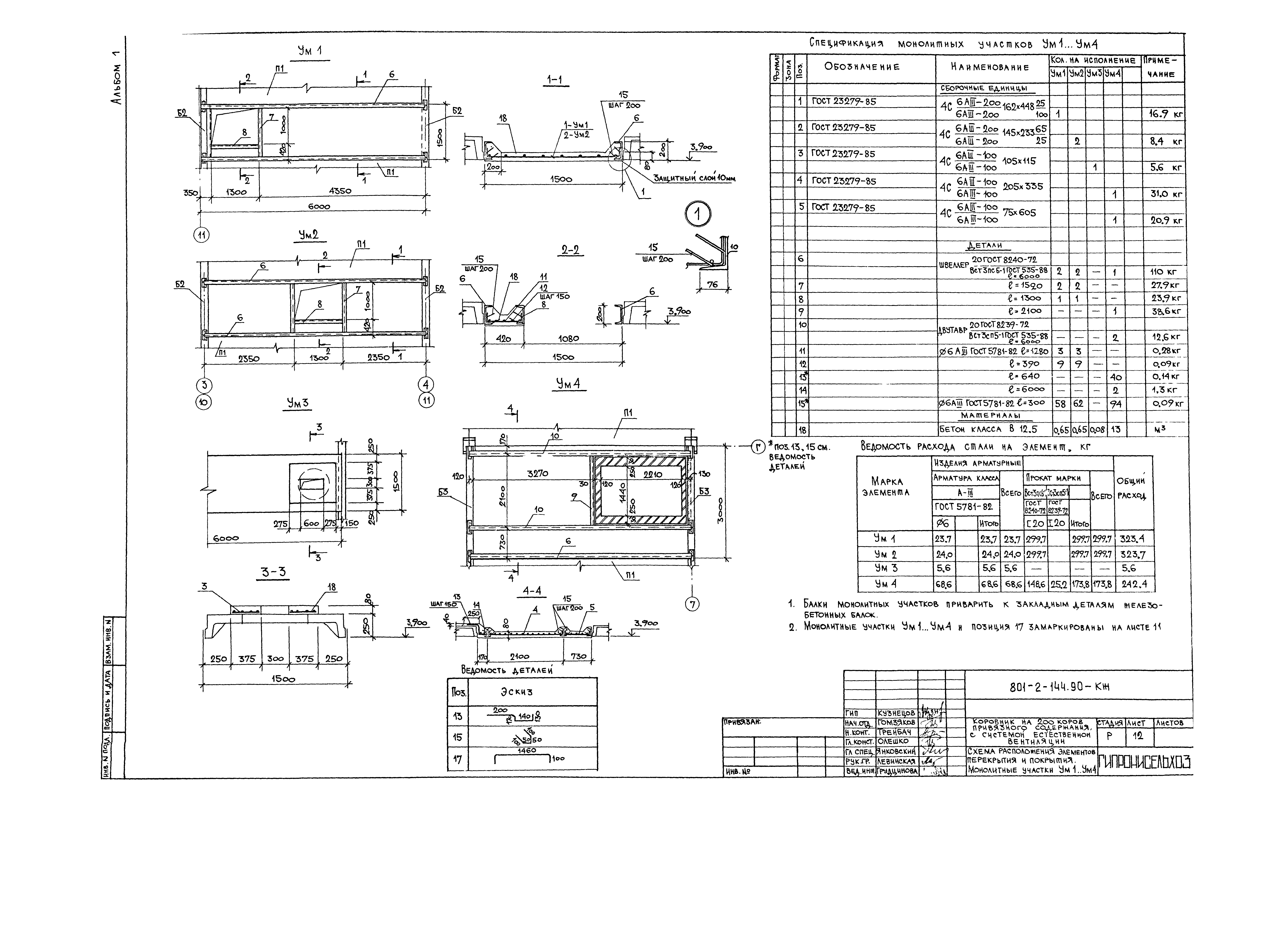
Альбом 1. Пояснительная записка. Технология производства. Архитектурные решения. Конструкции железобетонные. Конструкции деревянные. Внутренние водопровод и канализация. Отопление и вентиляция. Электроосвещение и силовое электрооборудование. Автоматизация систем отопления и вентиляцииОбозначение: | Типовой проект 801-2-114.90 | Обозначение англ: | 801-2-114.90 | Статус: | не определен законодательством | Название рус.: | Альбом 1. Пояснительная записка. Технология производства. Архитектурные решения. Конструкции железобетонные. Конструкции деревянные. Внутренние водопровод и канализация. Отопление и вентиляция. Электроосвещение и силовое электрооборудование. Автоматизация систем отопления и вентиляции | Дата добавления в базу: | 01.09.2013 | Дата актуализации: | 05.05.2017 | Дата введения: | 20.12.1989 | Оглавление: | Содержание Пояснительная записка Основной комплект рабочих чертежей марки ТХ Общие данные (начало) Общие данные (окончание) План. Разрез 1-1. Схема молокопроводов и вакуумпроводов Разрезы 2-2…6-6. Узлы 1,2 Разрезы 7-7…10-10. Узел 3 Фрагмент плана. Разрезы 11-11,…12-12. Сечения 13-13…18-18 План чердака. Разрезы 18-18,19-19. Узлы 4,5 Основной комплект рабочих чертежей марки АР Общие данные План на отм. 0.000 План чердака. Вентшахта ВШ1 Разрезы 7-7,8-8,9-9 Фасады 1-13,13-1,А-Д,Д-А План полов и отверстий на отм.0.000 План кровли. Вентшахта тВШ-2 Основной комплект рабочих чертежей марки КЖ Общие данные (начало) Общие данные (продолжение) Общие данные (окончание) Схема расположения элементов фундаментов Схема расположения элементов фундаментов. Узлы 1…3. Сечение 4-4…6-6 Схема расположения элементов каналов навозоудаления и кормушек Схема расположения элементов каналов навозоудаления и кормушек. Фрагмент 1 Схема расположения элементов каналов навозоудаления и кормушек. Узлы 1…3 Фундамент монолитный фом1, приямник ПЯм1, ПЯм2 Схема расположения элементов каркаса Схема расположения элементов перекрытия и покрытия Схема расположения элементов перекрытия и покрытия. Монолитные участки УМ1…УМ4 Основной комплект рабочих чертежей марки КД Общие данные Схема расположения элементов покрытия в осях 1…14,Б,Д. Разрезы 1-1,2-2 Схема расположения элементов покрытия. Разрез 3-3. Узлы 1…7 Схема расположения элементов покрытия. Узлы 8…12 Спецификация к схеме расположения элементов покрытия Основной комплект рабочих чертежей марки ВК Общие данные План на отм. 0.000. Сети В1,Т3,Т31 Схемы систем В1,Т3,Т31 Основной комплект рабочих чертежей марки ОВ Общие данные План на отм. 0.000. Разрез 1-1. Схемы систем ПЕ1…ПЕ22,ВЕ1,ВЕ2 Основной комплект рабочих чертежей марки ЭМ Общие данные Электроосвещение. План расположения. Фрагмент плана Электроосвещение. План расположения. Расчет схема сети электроосвещения 380/220В (начало) Силовое электрооборудование. План расположения. Фрагмент 1. План трубных проводок Силовое электрооборудование. Принципиальная схема распределительной сети 380/220В (начало) Силовое электрооборудование. Принципиальная схема распределительной сети 380/220В (окончание) Молниезащита. План кровли Основной комплект рабочих чертежей марки АОВ Общие данные Схема электрическая принципиальная управления Схемы соединений внешних проводок План расположения | Разработан: | Институт Гипронисельхоз
| Утверждён: | 20.12.1989 Гипронисельхоз (Giproniselkhoz 288-П)
| Издан: | ЦИТП Госстроя СССР (CITP, Gosstroy (USSR) 1990 г. )
| Расположен в: |
|
                                                   
|