| ||||||||||||||||||||||||||||||
Скачать Серия КЭ-01-57 Выпуск IV. Стальные неразрезные подкрановые балки (из двух марок стали) пролетами 6 и 12 м под мостовые электрические краны грузоподъемностью 5-75 т. Чертежи КМДата актуализации: 10.08.2017
|
| Обозначение: | Серия КЭ-01-57 |
| Обозначение англ: | Series КЭ-01-57 |
| Статус: | заменен |
| Название рус.: | Выпуск IV. Стальные неразрезные подкрановые балки (из двух марок стали) пролетами 6 и 12 м под мостовые электрические краны грузоподъемностью 5-75 т. Чертежи КМ |
| Дата добавления в базу: | 01.09.2013 |
| Дата актуализации: | 05.05.2017 |
| Дата введения: | 01.03.1975 |
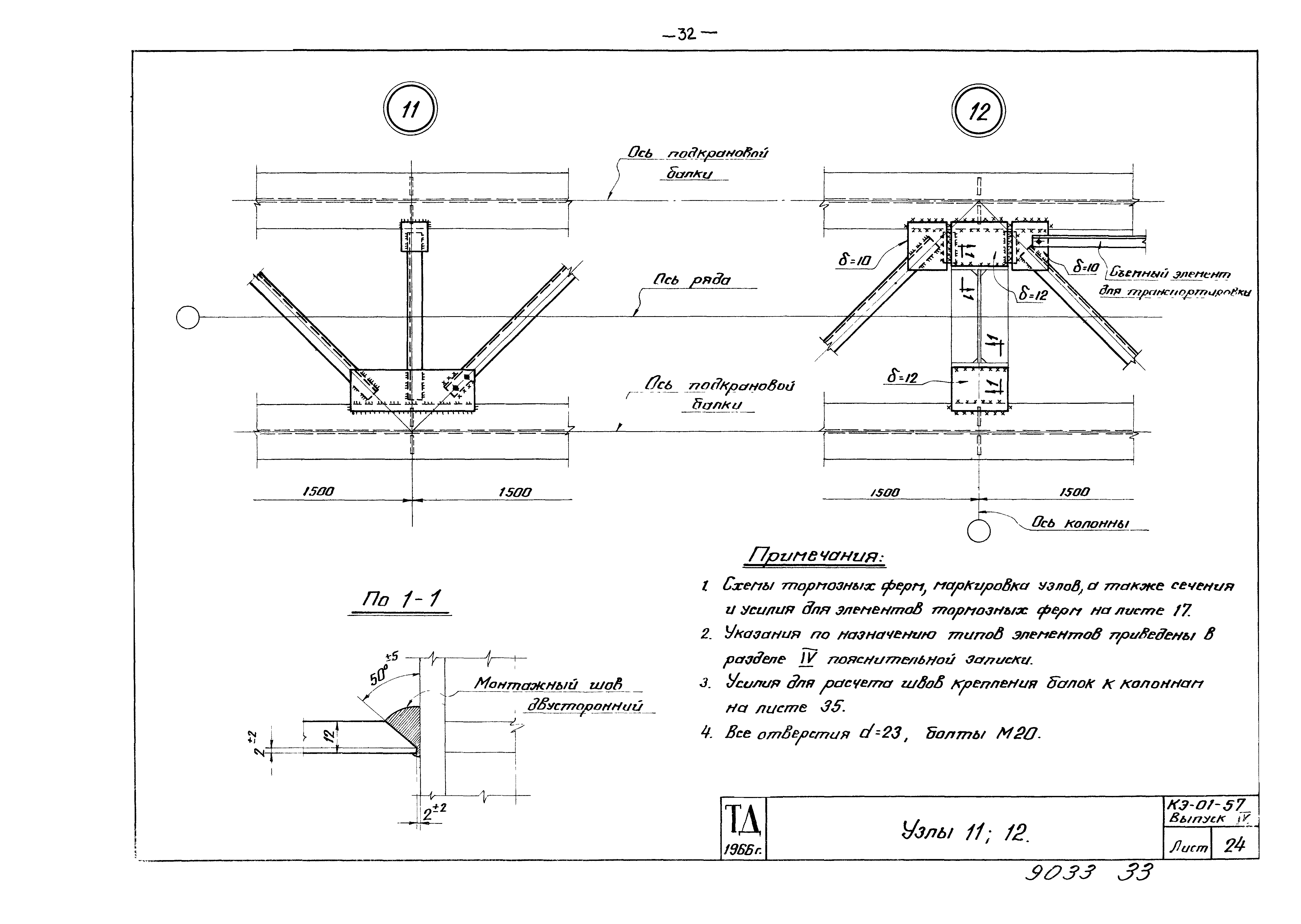
| Оглавление: | Пояснительная записка Крановые нагрузки Ключ для выбора сечений подкрановых балок пролетом 6м Ключ для выбора сечений подкрановых балок пролетом 12м Сортамент сечений подкрановых балок - двутавры с поясами одинаковой ширины Сортамент сечений подкрановых балок - двутавры с развитой шириной верхнего пояса Общий вид подкрановой балки пролетом 6м Общий вид подкрановой балки пролетом 12м Опорные части подкрановых балок. Узлы 1;2 Узлы опирания подкрановых балок на стальные колонны Узлы опирания подкрановых балок на железобетонные колонны Узлы опирания подкрановых балок на железобетонные колонны с подставкой Крепление верхнего пояса подкрановой балки пролетами 6м. К стальным колоннам при отсутствии тормозного устройства Крепление верхнего пояса подкрановой балки пролетами 6м. К железобетонным колоннам при отсутствии тормозного устройства Схемы тормозных ферм подкрановых балок пролетами 12м по крайним рядам Схемы тормозных ферм подкрановых балок пролетами 12м по средним рядам Узлы 3,4 Узлы 3(в степени ж), 4(в степени ж), 5(в степени ж) Узлы 5,6 Узлы 7,8 Узлы 7(в степени ж), 8(в степени ж) Узлы 9,10 Узлы 11,12 Узлы 13,14 Узлы 9(в степени ж), 12(в степени ж), 14(в степени ж) Расположение отверстий в верхних поясах балок для крепления рельса на планках и отверстий в ж.д. рельсах Р38 и Р43 для крепления на крюках Детали крепления кранового рельса к подкрановой балке Типы заводских стыков подкрановых балок Типы монтажных стыков подкрановых балок Концевые упоры Узлы крепления вертикальных связей к подкрановым балкам Расчетные значения вертикальных нагрузок на колонны от кранов (в тоннах) Расчетные значения отрывающих вертикальных нагрузок на колонны от кранов (в тоннах) Расчетные усилия от горизонтального воздействия кранов для крепления балок к колоннам. Сечения опорных ребер, толщина распределительных планок и несущая способность болтов Весовые показателя подкрановых балок пролетами 6 м Весовые показателя подкрановых балок пролетами 12 м |
| Разработан: | Проектстальконструкция Госстроя СССР |
| Утверждён: | 15.09.1966 Госстрой СССР (Государственный комитет Совета Министров СССР по делам строительства) (USSR Gosstroy 165) |
| Издан: | ЦИТП Госстроя СССР (CITP, Gosstroy (USSR) 1966 г. ) |
| Расположен в: | |
| Чем заменён: |














































