| ||||||||||||||||||||||||||||
Скачать Серия 1.420.1-24с Выпуск 1. Книга 1. Железобетонные колонны. Рабочие чертежиДата актуализации: 10.08.2017
|
| Обозначение: | Серия 1.420.1-24с |
| Обозначение англ: | Series 1.420.1-24с |
| Статус: | не определен законодательством |
| Название рус.: | Выпуск 1. Книга 1. Железобетонные колонны. Рабочие чертежи |
| Дата добавления в базу: | 01.09.2013 |
| Дата актуализации: | 05.05.2017 |
| Дата введения: | 30.03.1990 |
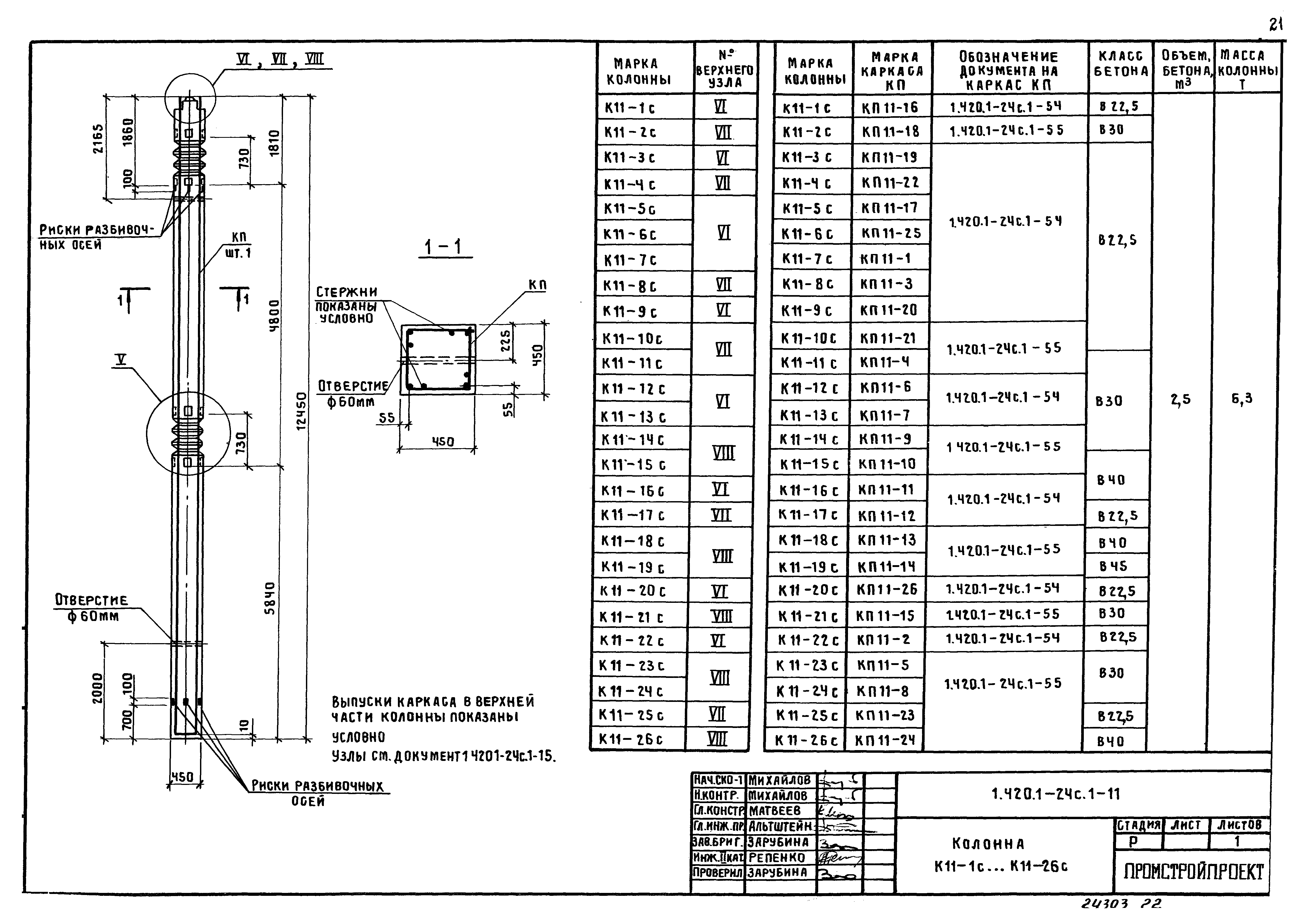
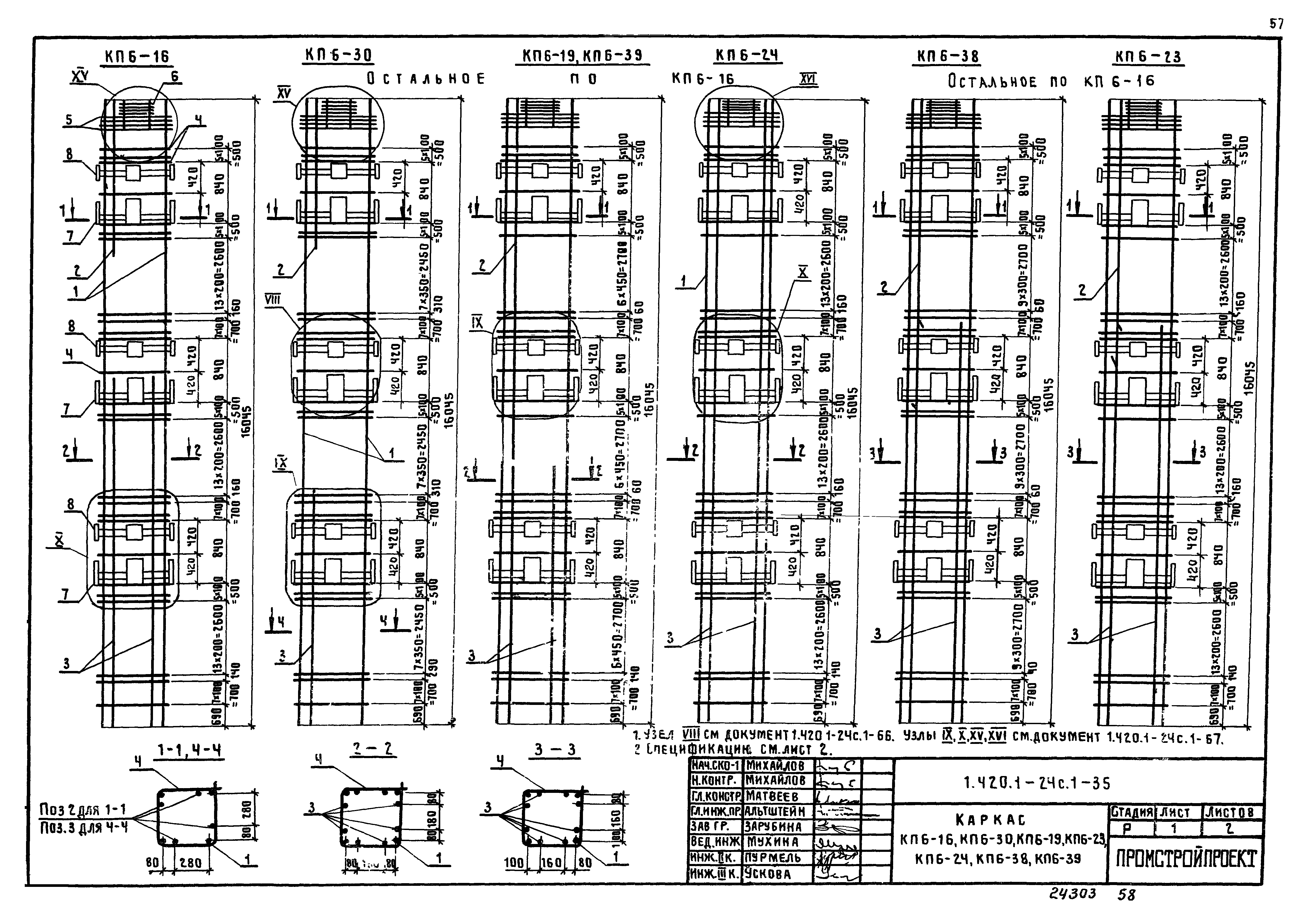
| Оглавление: | 1.420.1-24с.1-ТТ Технические требования 1.420.1-24с.1-1 Колонна К1-1с … К1-33с 1.420.1-24с.1-2 Колонна К2-1с … К2-35с 1.420.1-24с.1-3 Колонна К3-1с … К3-29с 1.420.1-24с.1-4 Колонна К4-1с … К4-19с 1.420.1-24с.1-5 Колонна К5-1с … К5-30с 1.420.1-24с.1-6 Колонна К6-1с … К6-46с 1.420.1-24с.1-7 Колонна К7-1с … К7-30с 1.420.1-24с.1-8 Колонна К10-1с … К10-35с 1.420.1-24с.1-9 Колонна К8-1с … К8-20с 1.420.1-24с.1-10 Колонна К9-1с … К9-22с 1.420.1-24с.1-11 Колонна К11-1с … К11-26с 1.420.1-24с.1-12 Колонна К12-1с … К12-55с 1.420.1-24с.1-13 Колонна К13-1с … К13-23с 1.420.1-24с.1-14 Колонна К14-1с … К14-16с 1.420.1-24с.1-15 Узлы I ... VIII 1.420.1-24с.1-16 Каркас КП1-1 … КП1-7, КП1-10, КП1-11, КП1-13, КП1-14, КП1-17 … КП1-19, КП1-23, КП1-26, КП1-27 1.420.1-24с.1-17 Каркас КП1-8, КП1-9, КП1-12, КП1-15, КП1-16, КП1-20, КП1-21, КП1-22, КП1-24, КП1-25, КП1-28, КП1-29 1.420.1-24с.1-18 Каркас КП2-1 … КП2-8 1.420.1-24с.1-19 Каркас КП2-9 … КП2-16 1.420.1-24с.1-20 Каркас КП2-17 … КП2-24 1.420.1-24с.1-21 Каркас КП2-25 … КП2-32 1.420.1-24с.1-22 Каркас КП2-33, КП2-34,КП2-35 1.420.1-24с.1-23 Каркас КП3-1 … КП3-8, КП3-11, КП3-13, КП3-17, КП3-18, КП3-22, КП3-25, КП3-29 1.420.1-24с.1-24 Каркас КП3-9, КП3-10, КП3-12, КП3-14 … КП3-16, КП3-19 … КП3-21, КП3-23, КП3-24, КП3-26 … КП3-28 1.420.1-24с.1-25 Каркас КП4-1, КП4-2, КП4-4, КП4-7, КП4-10 1.420.1-24с.1-26 Каркас КП4-3, КП4-5, КП4-6, КП4-8, КП4-11 … КП4-16 1.420.1-24с.1-27 Каркас КП4-7, КП4-16, КП4-19 1.420.1-24с.1-28 Каркас КП4-9, КП4-17, КП4-18 1.420.1-24с.1-29 Каркас КП5-1 … КП5-5, КП5-16 1.420.1-24с.1-30 Каркас КП5-6, КП5-12, КП5-14, КП5-22 1.420.1-24с.1-31 Каркас КП5-7, КП5-8, КП5-10, КП5-11, КП5-13, КП5-15 1.420.1-24с.1-32 Каркас КП5-9, КП5-19 1.420.1-24с.1-33 Каркас КП5-17, КП5-18, КП5-20, КП5-21, КП5-23 1.420.1-24с.1-34 Каркас КП6-1 … КП6-4, КП6-7, КП6-10, КП6-22 1.420.1-24с.1-35 Каркас КП6-16, КП6-30, КП6-19, КП6-23, КП6-24, КП6-38, КП6-39 1.420.1-24с.1-36 Каркас КП6-5, КП6-8, КП6-12, КП6-13, КП6-17, КП6-35, КП6-37 1.420.1-24с.1-37 Каркас КП6-11, КП6-14, КП6-25, КП6-27, КП6-28, КП6-29, КП6-31, КП6-32, КП6-34 1.420.1-24с.1-38 Каркас КП6-15, КП6-41, КП6-42 |
| Разработан: | ЦНИИпромзданий НИИЖБ ГПИ Промстройпроект Узгипротяжпром |
| Утверждён: | 30.11.1989 Главоргпроект Госстроя СССР (4/5-1470) |
| Издан: | ЦИТП Госстроя СССР (CITP, Gosstroy (USSR) 1990 г. ) |
| Расположен в: |
































































