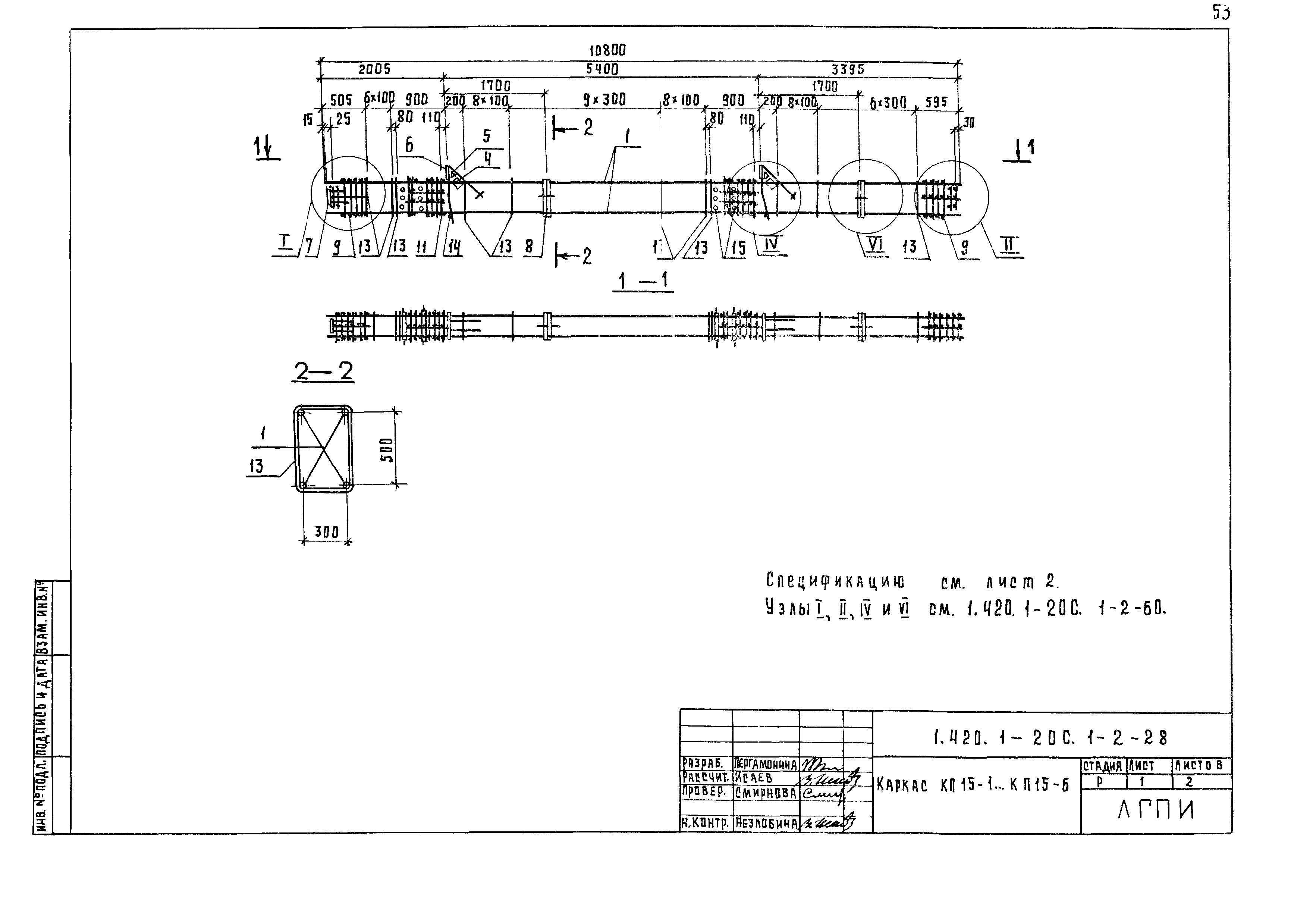
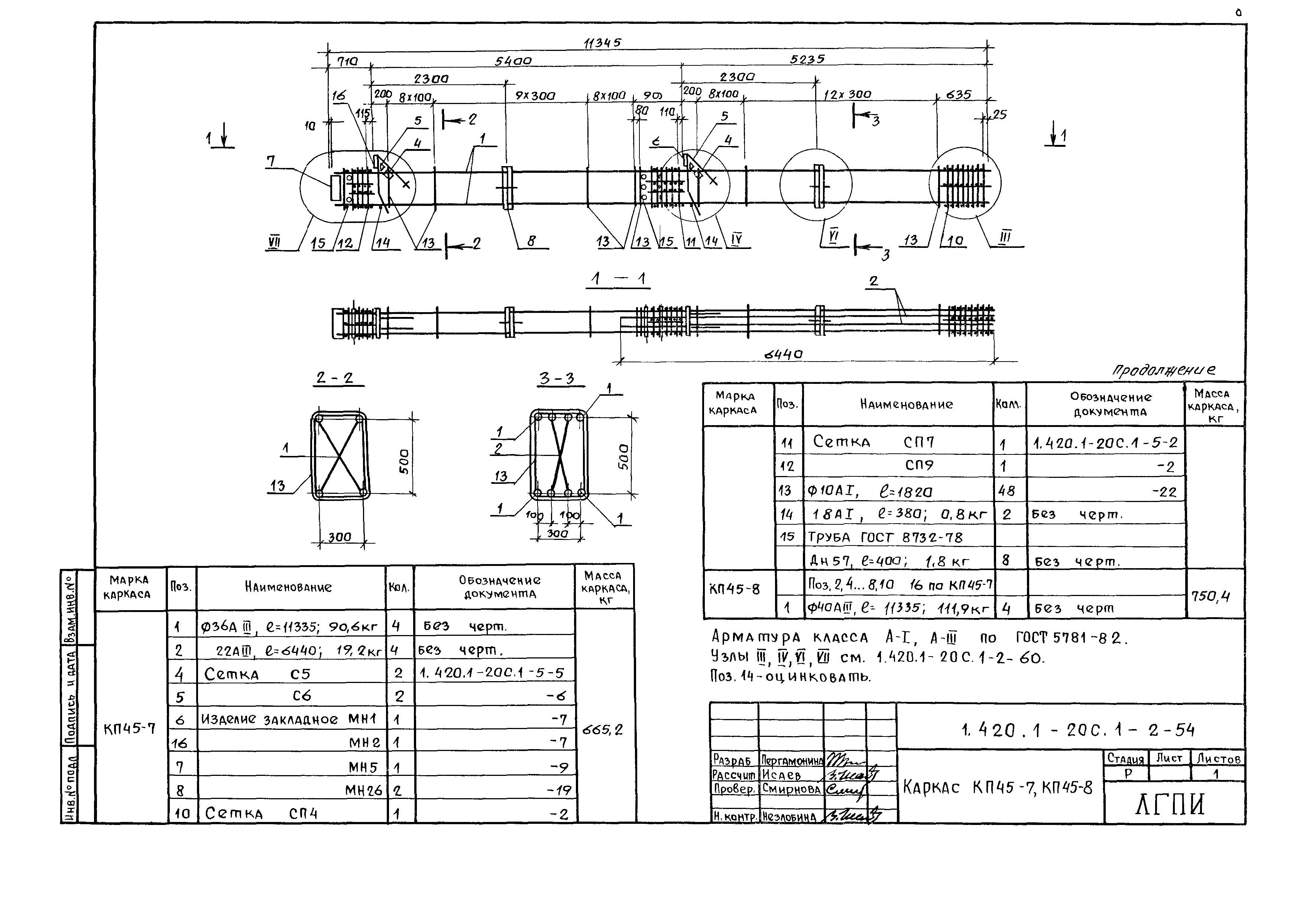
Скачать Серия 1.420.1-20с Выпуск 1-2. Колонны высотой 5,4 м. Армирование и пространственные каркасы. Рабочие чертежиДата актуализации: 10.08.2017 Серия 1.420.1-20с
Выпуск 1-2. Колонны высотой 5,4 м. Армирование и пространственные каркасы. Рабочие чертежиОбозначение: | Серия 1.420.1-20с | Обозначение англ: | Series 1.420.1-20с | Статус: | не определен законодательством | Название рус.: | Выпуск 1-2. Колонны высотой 5,4 м. Армирование и пространственные каркасы. Рабочие чертежи | Дата добавления в базу: | 01.09.2013 | Дата актуализации: | 05.05.2017 | Дата введения: | 01.03.1991 | Разработан: | НИИЖБ АО ЦНИИпромзданий ЛГПИ
| Утверждён: | 19.09.1990 Госстрой СССР (Государственный комитет Совета Министров СССР по делам строительства) (USSR Gosstroy 5/6-796)
| Издан: | АПП ЦИТП (1991 г. )
| Расположен в: |
|
                                                                                                                        
|