| ||||||||||||||||||||||||||||
Скачать Типовые проектные решения 901-09-11.84 Альбом III. Колодцы круглые из кирпича и из бетона для труб Ду=50-600 ммДата актуализации: 10.08.2017
|
| Обозначение: | Типовые проектные решения 901-09-11.84 |
| Обозначение англ: | 901-09-11.84 |
| Статус: | cправочные материалы, мп, тпр |
| Название рус.: | Альбом III. Колодцы круглые из кирпича и из бетона для труб Ду=50-600 мм |
| Дата добавления в базу: | 01.09.2013 |
| Дата актуализации: | 05.05.2017 |
| Дата введения: | 20.05.1983 |
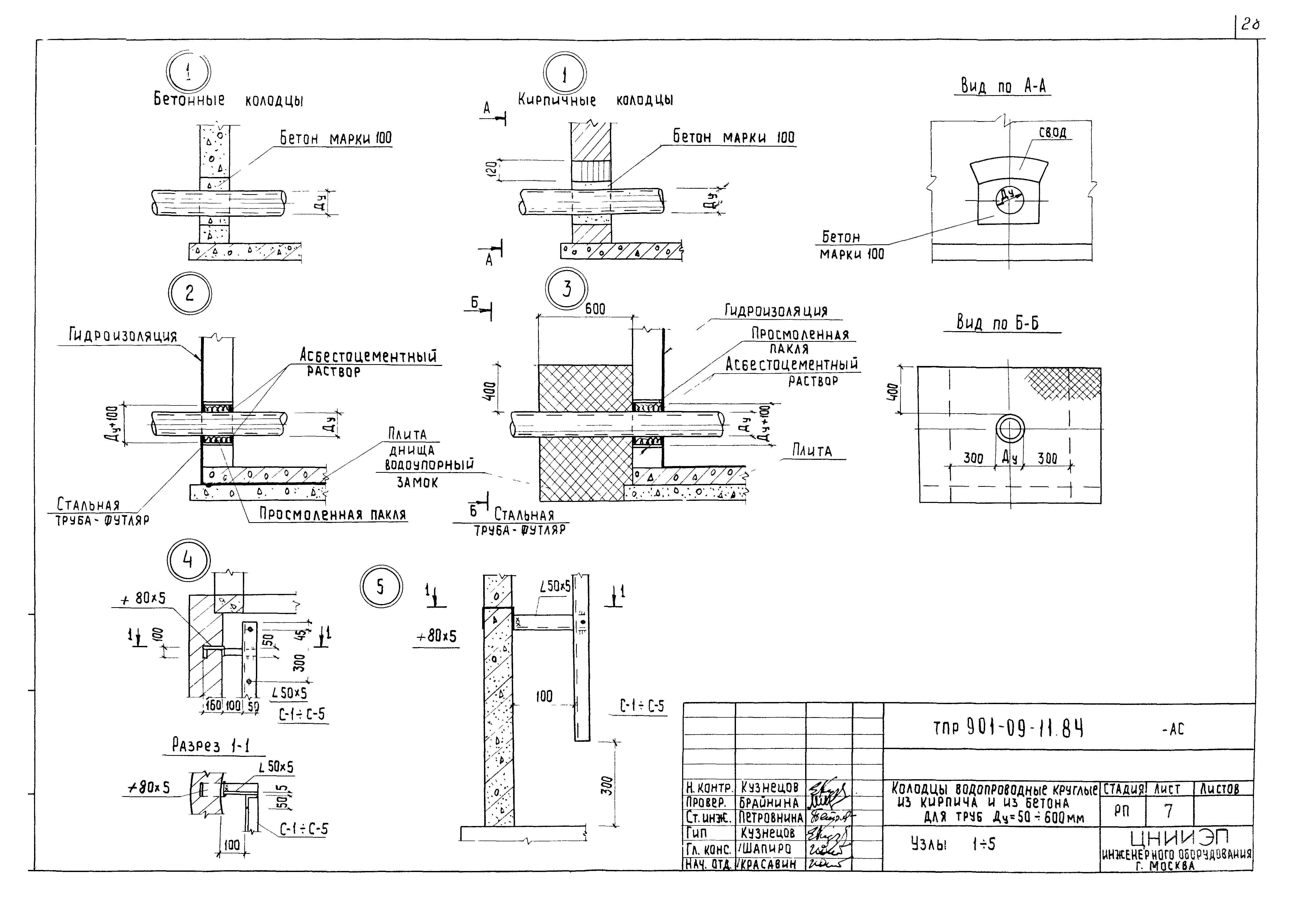
| Оглавление: | Обложка Титульный лист Содержание Наружные сети водоснабжения НВ-1 Общие данные НВ-2 Расстояния от элементов оборудования до внутренних поверхностей колодца. Таблицы 1;2;3 НВ-3 Схемы узлов с задвижками и с гидрантами НВ-4 Параметры колодцев для схем узлов с задвижками и с гидрантами. Таблица 4 НВ-5-НВ-8 Продолжение таблицы 4 НВ-9 Продолжение таблицы 4. Примеры подсчета потребных размеров колодцев для схем узлов У-2;У-2а;У-3 НВ-10 Схемы узлов с затворками и с гидрантами НВ-11 Параметры колодцев для схем узлов с затворами и с гидрантами. Таблица 7 НВ-12-НВ-14 Продолжение таблицы 7 НВ-15 Продолжение таблицы 7. Примеры подсчета потребных размеров колодцев для схем узлов У-1; У-3; У-9 НВ-16 Типы и схемы колодцев НВ-17 Пример крепления гидранта и лестницы в колодце НВ-18 Форма таблицы, заполняемой при привязке. Таблица 11. Пример расчета 1219.01.000 Проставки монтажные ДУ100-600мм Архитектурно-строительная часть АС-1 Кирпичные колодцы В1; В3 с конусным переходом (для узлов без гидрантов). Планы. Разрезы АС-2 Кирпичные колодцы В1; В3 с конусным переходом (для узлов с гидрантами). Планы. Разрезы АС-3 Кирпичные конусы АС-4 Кирпичные колодцы В1;В3 с плоским перекрытием. Планы. Разрезы АС-5 Бетонные колодцы В-1;В-2 и В-3. Планы. Разрезы АС-6 Спецификация сборных железобетонных элементов днища и перекрытия. Спецификация стремянок колодцев В1;В2;В3 АС-7 Узлы 1-5 АС-8 Бетонные упоры АС-9 Горловины d=700мм АС-10 Таблица горловин из сборных железобетонных элементов АС-11 Таблица горловин из кирпича и из бетона d=700мм Сметная часть СМ-1 Объемы основных конструкций колодцев. Таблицы 1;2 СМ-2 Объемы основных конструкций колодцев. Таблицы 3 СМ-3 Объемы основных конструкций колодцев. Таблицы 4,5 |
| Разработан: | ЦНИИЭП инженерного оборудования Госгражданстроя |
| Утверждён: | 20.05.1983 Госгражданстрой (Gosgrazhdanstroy 146) |
| Издан: | ЦИТП Госстроя СССР (CITP, Gosstroy (USSR) 1988 г. ) |
| Расположен в: |




































