Информационная система
«Ёшкин Кот»

Скачать базу одним архивом
Скачать обновления
История создания базы
Карта сайта

Скачать Серия 1.420-35.95 Выпуск 2-2. Ригели железобетонные пролетом 9,0 м с полками для опирания плит. Армирование и пространственные каркасы. Рабочие чертежи

Дата актуализации: 10.08.2017

Серия 1.420-35.95

Выпуск 2-2. Ригели железобетонные пролетом 9,0 м с полками для опирания плит. Армирование и пространственные каркасы. Рабочие чертежи

Обозначение: Серия 1.420-35.95
Обозначение англ: Series 1.420-35.95
Статус:не определен законодательством
Название рус.:Выпуск 2-2. Ригели железобетонные пролетом 9,0 м с полками для опирания плит. Армирование и пространственные каркасы. Рабочие чертежи
Дата добавления в базу:01.09.2013
Дата актуализации:05.05.2017
Дата введения:01.03.1998
Оглавление:1.420-35.95.2-2-1ТТ Технические требования
1.420-35.95.2-2-2 Ригель ИБ4-1АIV…ИБ4-4АIV
1.420-35.95.2-2-3 Ригель ИБ4-1АIV…ИБ4-4АIV. Армирование
1.420-35.95.2-2-4 Каркас пространственный КП1…КП4
1.420-35.95.2-2-5 Ригель ИБ5-1АIV…ИБ5-3АIV, ИБ5-7АIV
1.420-35.95.2-2-6 Ригель ИБ5-1АIV…ИБ5-3АIV, ИБ5-7АIV. Армирование
1.420-35.95.2-2-7 Каркас пространственный КП5…КП8
1.420-35.95.2-2-8 Ригель ИБ5-4АIV, ИБ5-6АIV, ИБ5-28АIV, ИБ5-30АIV
1.420-35.95.2-2-9 Ригель ИБ5-4АIV, ИБ5-6АIV, ИБ5-28АIV, ИБ5-30АIV. Армирование
1.420-35.95.2-2-10 Каркас пространственный КП9…КП12
1.420-35.95.2-2-11 Ригель ИБ6-1АIV, ИБ6-3АIV, ИБ6-15АIV, ИБ6-17АIV
1.420-35.95.2-2-12 Ригель ИБ6-1АIV, ИБ6-3АIV, ИБ6-15АIV, ИБ6-17АIV. Армирование
1.420-35.95.2-2-13 Каркас пространственный КП13…КП16
1.420-35.95.2-2-14 Ригель ИБ24пр(в степени лев)-1АIV…ИБ27пр(в степени лев)-1АIV, ИБ24пр(в степени лев)-2АIV…ИБ27пр(в степени лев)-2АIV
1.420-35.95.2-2-15 Ригель ИБ24пр(в степени лев)-1АIV…ИБ27пр(в степени лев)-1АIV, ИБ24пр(в степени лев)-2АIV…ИБ27пр(в степени лев)-2АIV. Армирование
1.420-35.95.2-2-16 Каркас пространственный КП17лев…КП24лев; КП17пр…КП24пр
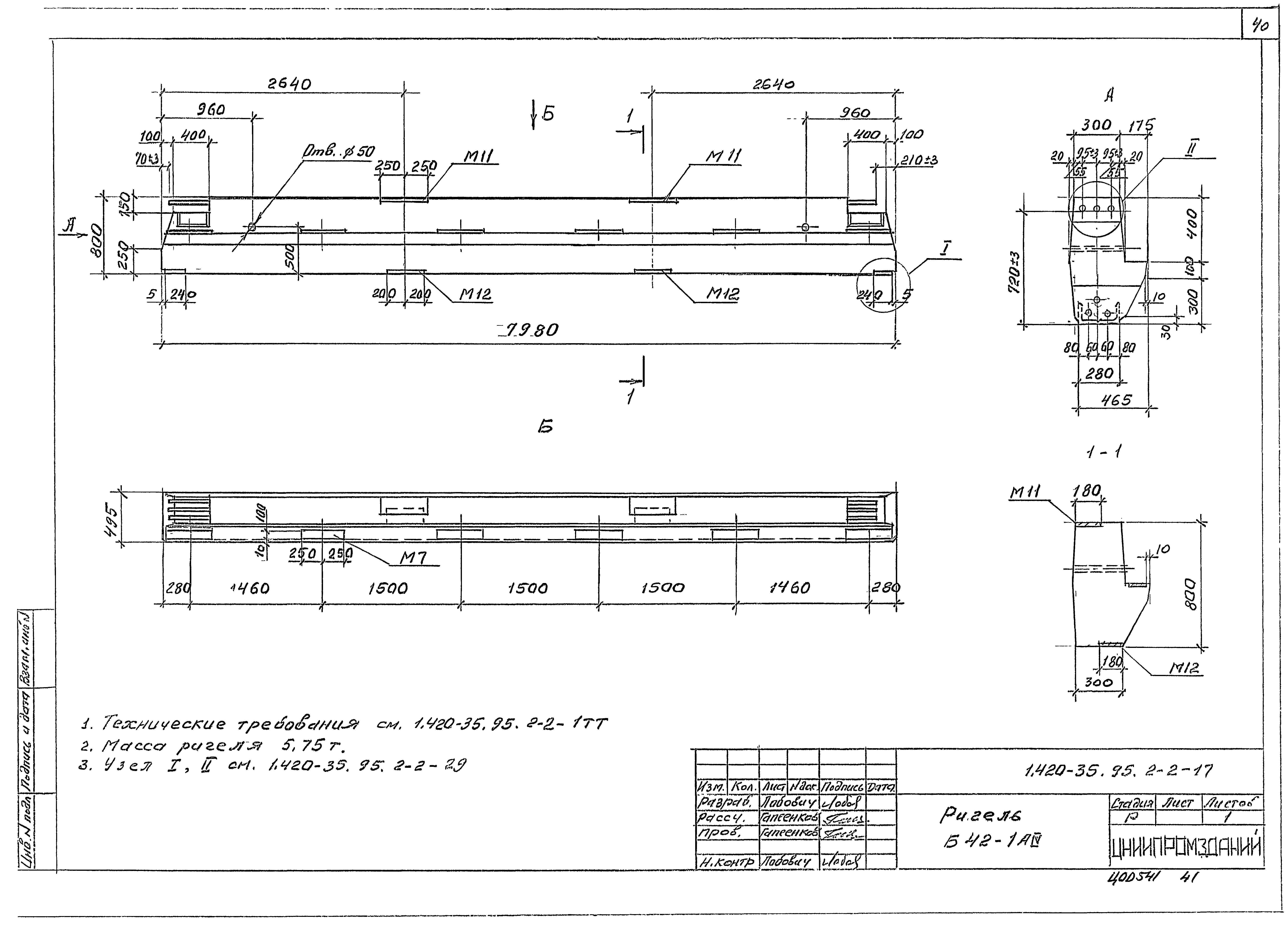
1.420-35.95.2-2-17 Ригель Б42-1АIV
1.420-35.95.2-2-18 Ригель Б42-1АIV. Армирование
1.420-35.95.2-2-19 Каркас пространственный КП25
1.420-35.95.2-2-20 Ригель Б43-1АIV
1.420-35.95.2-2-21 Ригель Б43-1АIV. Армирование
1.420-35.95.2-2-22 Каркас пространственный КП26
1.420-35.95.2-2-23 Ригель Б43-2АIV
1.420-35.95.2-2-24 Ригель Б43-2АIV. Армирование
1.420-35.95.2-2-25 Каркас пространственный КП27
1.420-35.95.2-2-26 Ригель Б44-1АIV
1.420-35.95.2-2-27 Ригель Б44-1АIV. Армирование
1.420-35.95.2-2-28 Каркас пространственный КП28
1.420-35.95.2-2-29 Узел 1,2. Опалубочный
1.420-35.95.2-2-30 Узел 1,2. Армированная. Пример установки закладного изделия М3. Расположение напрягаемой арматуры
1.420-35.95.2-2-31 Узел 1,2. пространственных каркасов
1.420-35.95.2-2-32РС Ведомость расхода стали, кг
1.420-35.95.2-2-33СМ Справочный материал
Разработан: АО ЦНИИпромзданий
Утверждён:09.12.1997 Департамент развития научно-технической политики и проектно-изыскательских работ Госстроя России (Department of Technical Research Policy and Design and Survey Operations, Russian Federation Gosstroy 9-1-1/160)
Расположен в:Техническая документация Строительство Справочные документы Типовые строительные конструкции, изделия и узлы Общероссийский строительный каталог Строительные конструкции, изделия и узлы зданий и сооружений для всех видов строительства Конструкции, изделия и узлы зданий Несущие конструкции двухэтажных и многоэтажных зданий Каркасные здания
Заменяет собой:
Серия 1.420-35.95Серия 1.420-35.95Серия 1.420-35.95Серия 1.420-35.95Серия 1.420-35.95Серия 1.420-35.95Серия 1.420-35.95Серия 1.420-35.95Серия 1.420-35.95Серия 1.420-35.95Серия 1.420-35.95Серия 1.420-35.95Серия 1.420-35.95Серия 1.420-35.95Серия 1.420-35.95Серия 1.420-35.95Серия 1.420-35.95Серия 1.420-35.95Серия 1.420-35.95Серия 1.420-35.95Серия 1.420-35.95Серия 1.420-35.95Серия 1.420-35.95Серия 1.420-35.95Серия 1.420-35.95Серия 1.420-35.95Серия 1.420-35.95Серия 1.420-35.95Серия 1.420-35.95Серия 1.420-35.95Серия 1.420-35.95Серия 1.420-35.95Серия 1.420-35.95Серия 1.420-35.95Серия 1.420-35.95Серия 1.420-35.95Серия 1.420-35.95Серия 1.420-35.95Серия 1.420-35.95Серия 1.420-35.95Серия 1.420-35.95Серия 1.420-35.95Серия 1.420-35.95Серия 1.420-35.95Серия 1.420-35.95Серия 1.420-35.95Серия 1.420-35.95Серия 1.420-35.95Серия 1.420-35.95Серия 1.420-35.95Серия 1.420-35.95Серия 1.420-35.95Серия 1.420-35.95Серия 1.420-35.95Серия 1.420-35.95Серия 1.420-35.95Серия 1.420-35.95Серия 1.420-35.95Серия 1.420-35.95Серия 1.420-35.95Серия 1.420-35.95Серия 1.420-35.95Серия 1.420-35.95Серия 1.420-35.95Серия 1.420-35.95Серия 1.420-35.95

© 2013 Ёшкин Кот :-) Карта сайта