Информационная система
«Ёшкин Кот»

Скачать базу одним архивом
Скачать обновления
История создания базы
Карта сайта

Скачать Серия 1.420-35.95 Выпуск 2-1. Ригели железобетонные пролетом 6,0 м с полками для опирания плит. Армирование и пространственные каркасы. Рабочие чертежи

Дата актуализации: 10.08.2017

Серия 1.420-35.95

Выпуск 2-1. Ригели железобетонные пролетом 6,0 м с полками для опирания плит. Армирование и пространственные каркасы. Рабочие чертежи

Обозначение: Серия 1.420-35.95
Обозначение англ: Series 1.420-35.95
Статус:не определен законодательством
Название рус.:Выпуск 2-1. Ригели железобетонные пролетом 6,0 м с полками для опирания плит. Армирование и пространственные каркасы. Рабочие чертежи
Дата добавления в базу:01.09.2013
Дата актуализации:05.05.2017
Дата введения:01.03.1998
Оглавление:1.420-35.95.2-1-1ТТ Технические требования
1.420-35.95.2-1-2 Ригель ИБ1-1, ИБ1-2, ИБ1-4, ИБ1-5, ТБ1-12
1.420-35.95.2-1-3 Ригель ИБ1-1, ИБ1-2, ИБ1-4, ИБ1-5, ТБ1-12. Армирование
1.420-35.95.2-1-4 Каркас пространственный. КП1…КП5
1.420-35.95.2-1-5 Ригель ИБ2-1, ИБ2-2, ИБ2-4, ИБ2-20...ТБ2-23
1.420-35.95.2-1-6 Ригель ИБ2-1, ИБ2-2, ИБ2-4, ИБ2-20...ТБ2-23. Армирование
1.420-35.95.2-1-7 Каркас пространственный. КП6…КП12
1.420-35.95.2-1-8 Ригель ИБ2-6, ИБ2-8, ИБ2-8, ИБ2-9, ИБ2-24
1.420-35.95.2-1-9 Ригель ИБ2-6, ИБ2-8, ИБ2-8, ИБ2-9, ИБ2-24. Армирование
1.420-35.95.2-1-10 Каркас пространственный КП13…КП16
1.420-35.95.2-1-11 Ригель ИБ3-2…ИБ3-5, ИБ3-13…ИБ3-17
1.420-35.95.2-1-12 Ригель ИБ3-2…ИБ3-5, ИБ3-13…ИБ3-17. Армирование
1.420-35.95.2-1-13 Каркас пространственный КП17…КП25
1.420-35.95.2-1-14 Ригель ИБ20лев-1…ИБ23лев-1, ИБ20пр-1…ИБ23пр-1
1.420-35.95.2-1-15 Ригель ИБ20лев-1…ИБ23лев-1, ИБ20пр-1…ИБ23пр-1. Армирование
1.420-35.95.2-1-16 Каркас пространственный КП27лев…КП30лев, КП27пр…КП30пр
1.420-35.95.2-1-17 Ригель Б39-1
1.420-35.95.2-1-18 Ригель Б39-1. Армирование
1.420-35.95.2-1-19 Каркас пространственный КП31
1.420-35.95.2-1-20 Ригель Б40-1
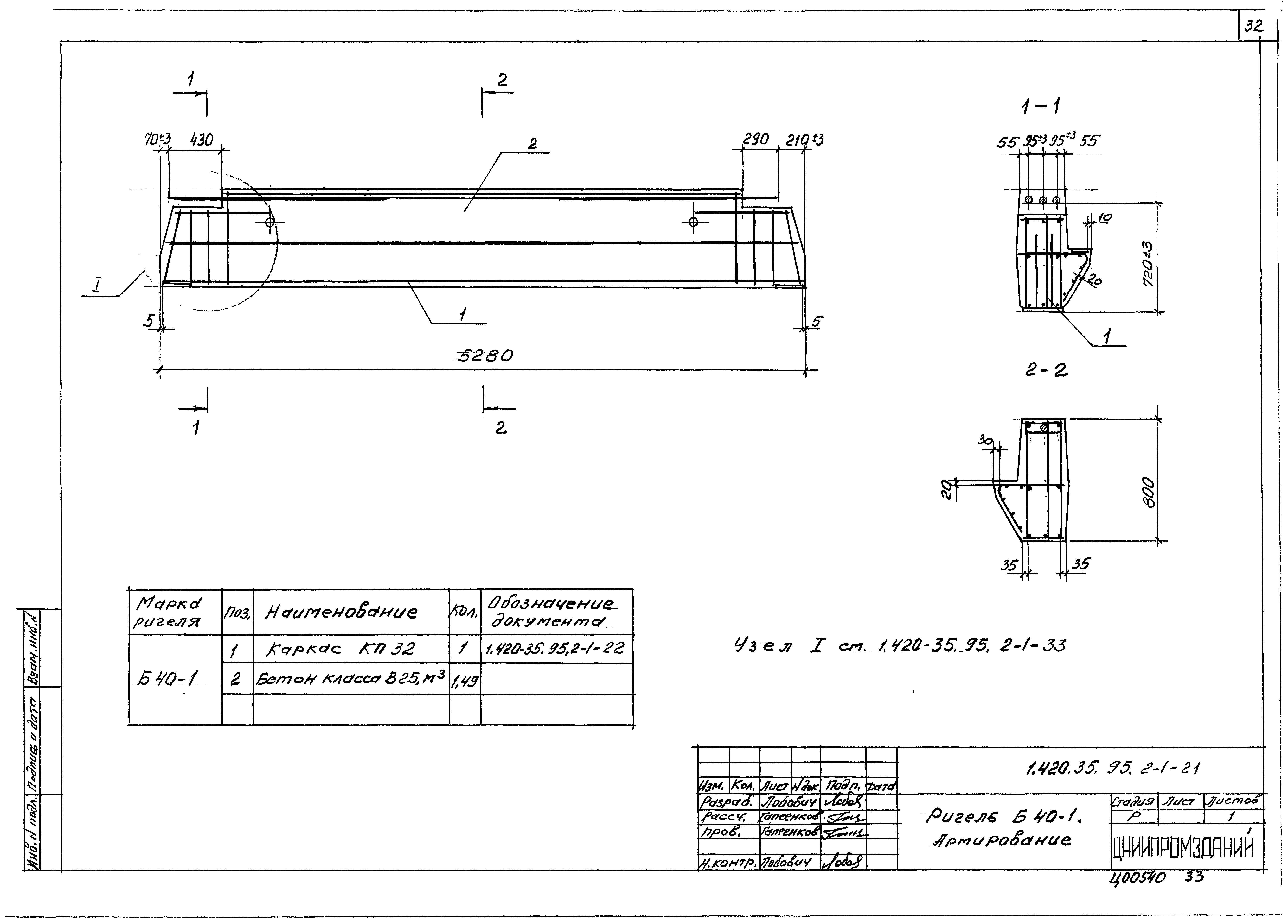
1.420-35.95.2-1-21 Ригель Б40-1. Армирование
1.420-35.95.2-1-22 Каркас пространственный КП32
1.420-35.95.2-1-23 Ригель Б41-1
1.420-35.95.2-1-24 Ригель Б41-1. Армирование
1.420-35.95.2-1-25 Каркас пространственный КП33
1.420-35.95.2-1-26 Ригель Б39лев-1…Б41лев-1, Б39пр-1…Б41пр-1
1.420-35.95.2-1-27 Ригель Б39пр(в степени лев)-1, Б40Кпр(в степени лев)-1, Б40Спр(в степени лев)-1, Б41пр(в степени лев)-1. Армирование
1.420-35.95.2-1-28 Каркас пространственный КП31лев, КП31пр
1.420-35.95.2-1-29 Каркас пространственный КП32лев, КП32пр
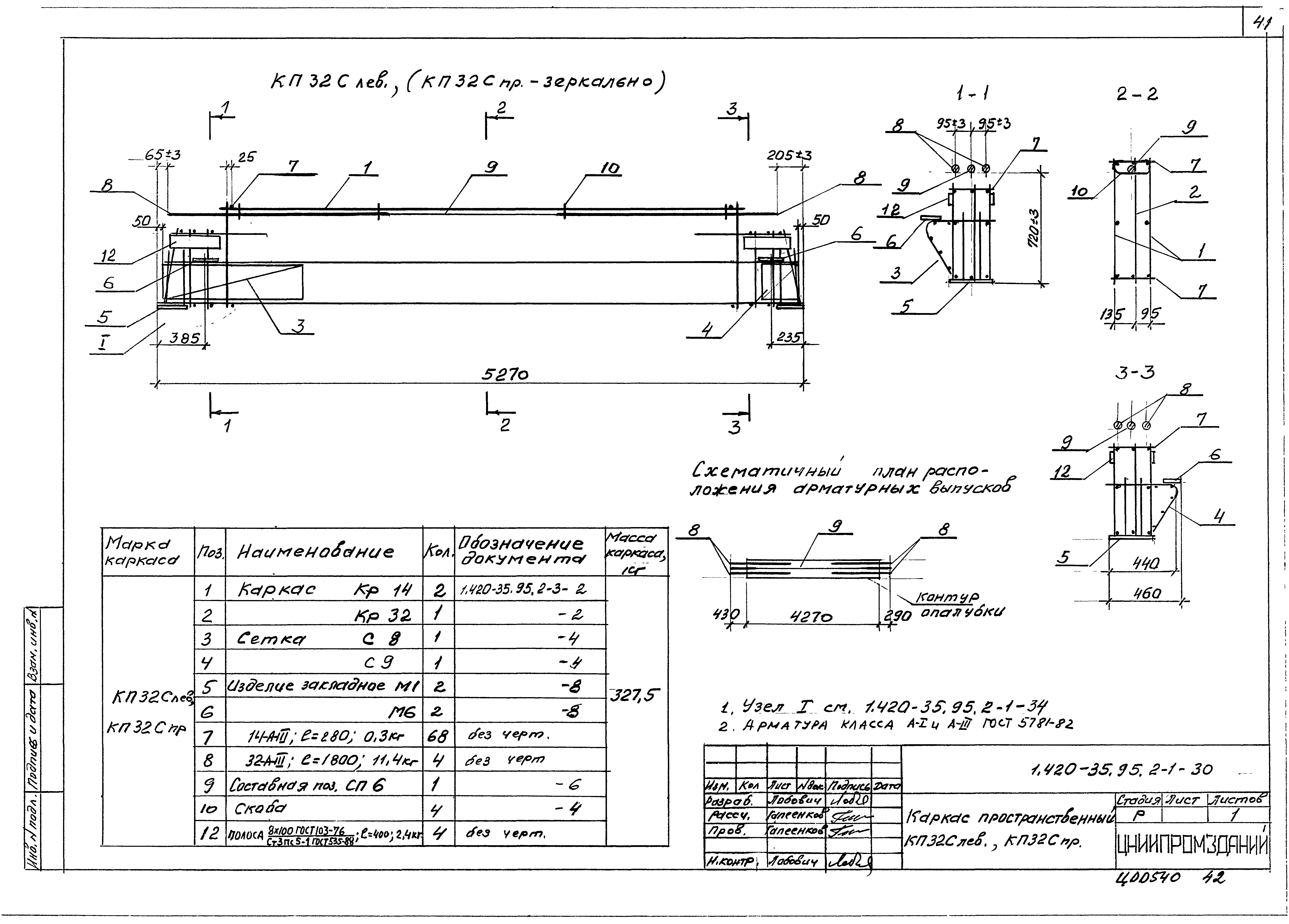
1.420-35.95.2-1-30 Каркас пространственный КП32Слев, КП32Спр
1.420-35.95.2-1-31 Каркас пространственный КП33лев, КП33пр
1.420-35.95.2-1-32 Узел 1,2. Опалубочный
1.420-35.95.2-1-33 Узел 1. Армирование. Пример установки закладных изделий М2…М4
1.420-35.95.2-1-34 Узел 1,2. пространственных каркасов
1.420-35.95.2-1-35РС Ведомость расхода стали, кг
1.420-35.95.2-1-36СМ Справочный материал
Разработан: АО ЦНИИпромзданий
Утверждён:09.12.1997 Департамент развития научно-технической политики и проектно-изыскательских работ Госстроя России (Department of Technical Research Policy and Design and Survey Operations, Russian Federation Gosstroy 9-1-1/160)
Расположен в:Техническая документация Строительство Справочные документы Типовые строительные конструкции, изделия и узлы Общероссийский строительный каталог Строительные конструкции, изделия и узлы зданий и сооружений для всех видов строительства Конструкции, изделия и узлы зданий Несущие конструкции двухэтажных и многоэтажных зданий Каркасные здания
Заменяет собой:
Серия 1.420-35.95Серия 1.420-35.95Серия 1.420-35.95Серия 1.420-35.95Серия 1.420-35.95Серия 1.420-35.95Серия 1.420-35.95Серия 1.420-35.95Серия 1.420-35.95Серия 1.420-35.95Серия 1.420-35.95Серия 1.420-35.95Серия 1.420-35.95Серия 1.420-35.95Серия 1.420-35.95Серия 1.420-35.95Серия 1.420-35.95Серия 1.420-35.95Серия 1.420-35.95Серия 1.420-35.95Серия 1.420-35.95Серия 1.420-35.95Серия 1.420-35.95Серия 1.420-35.95Серия 1.420-35.95Серия 1.420-35.95Серия 1.420-35.95Серия 1.420-35.95Серия 1.420-35.95Серия 1.420-35.95Серия 1.420-35.95Серия 1.420-35.95Серия 1.420-35.95Серия 1.420-35.95Серия 1.420-35.95Серия 1.420-35.95Серия 1.420-35.95Серия 1.420-35.95Серия 1.420-35.95Серия 1.420-35.95Серия 1.420-35.95Серия 1.420-35.95Серия 1.420-35.95Серия 1.420-35.95Серия 1.420-35.95Серия 1.420-35.95Серия 1.420-35.95Серия 1.420-35.95Серия 1.420-35.95Серия 1.420-35.95Серия 1.420-35.95

© 2013 Ёшкин Кот :-) Карта сайта