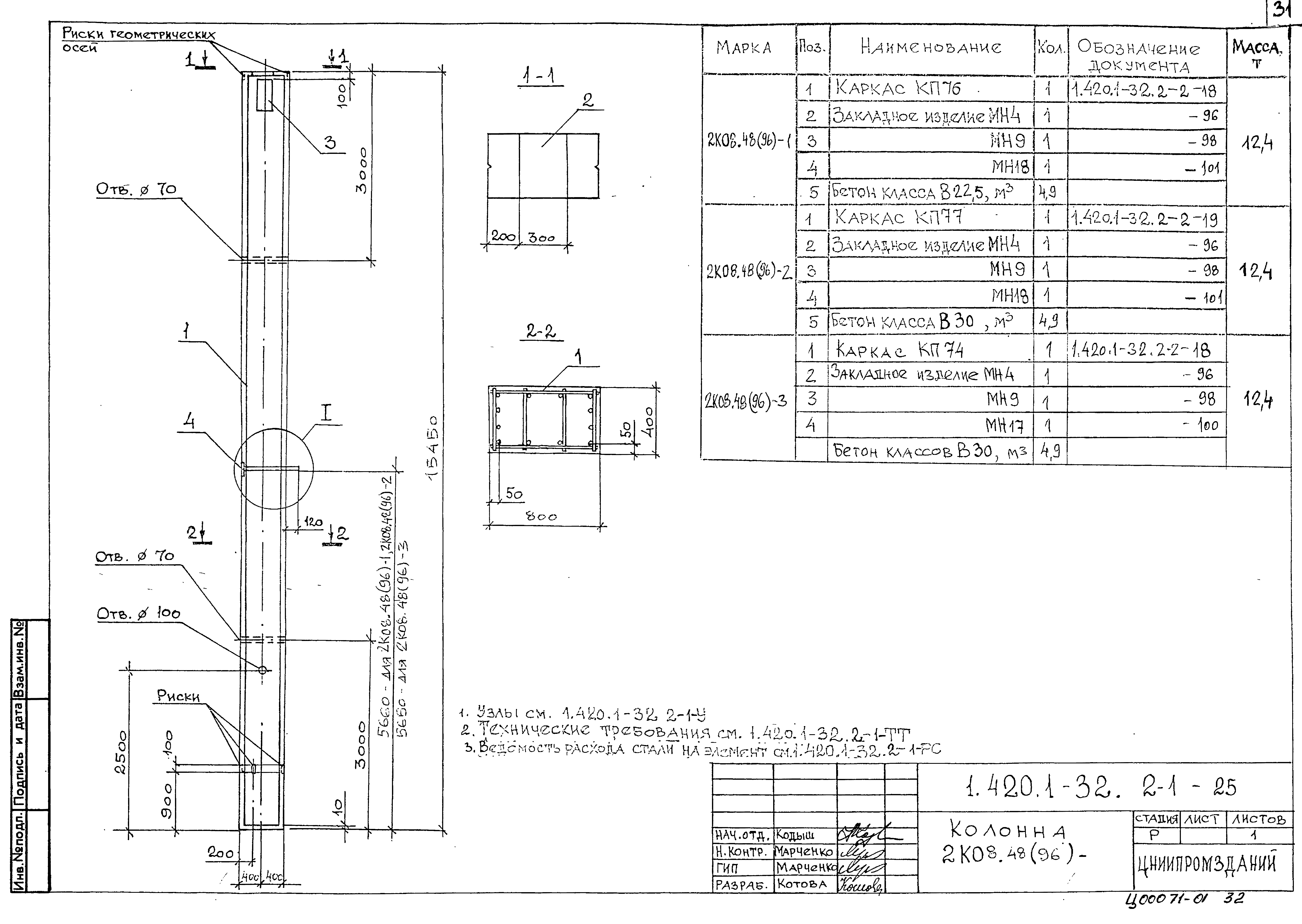
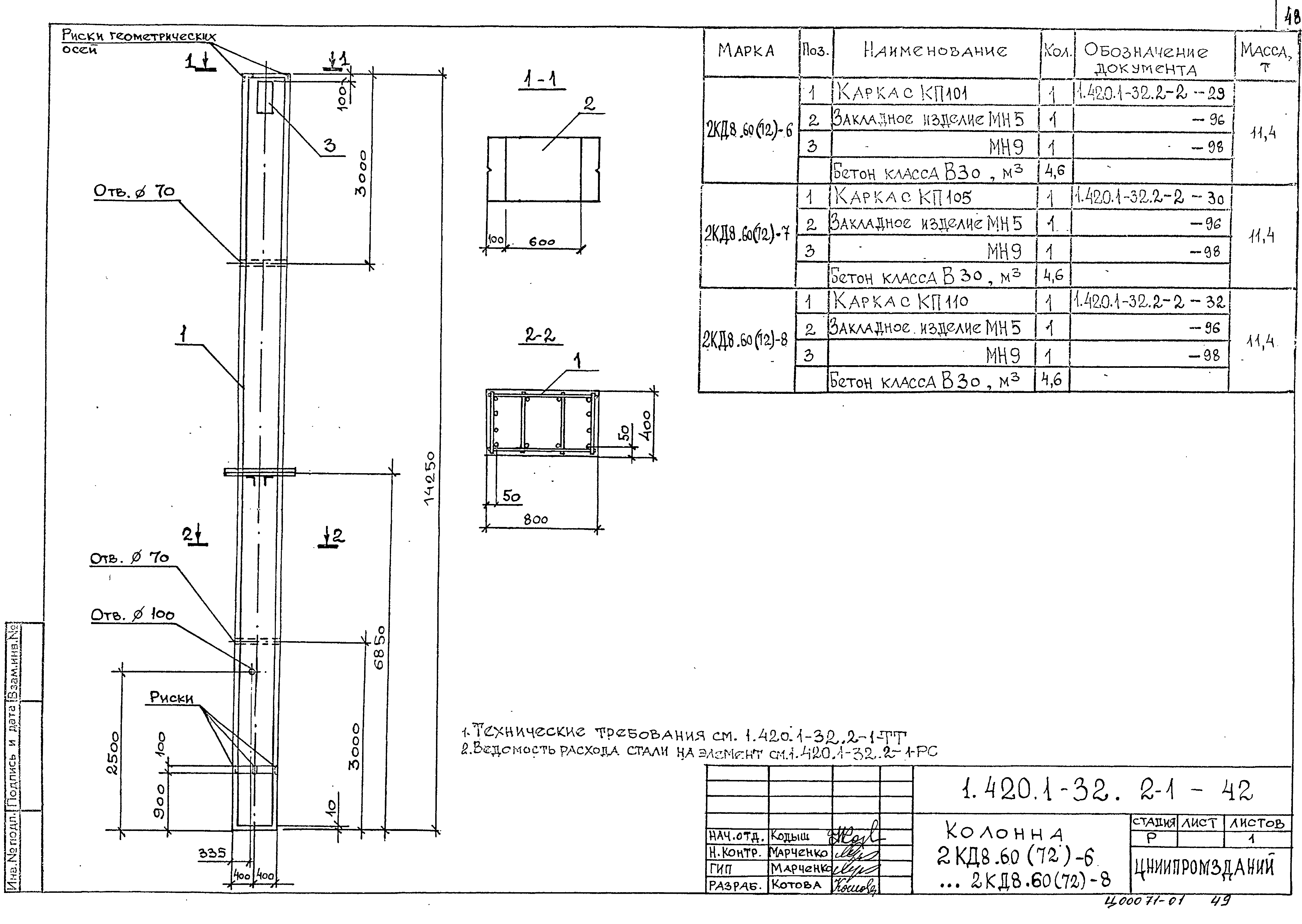
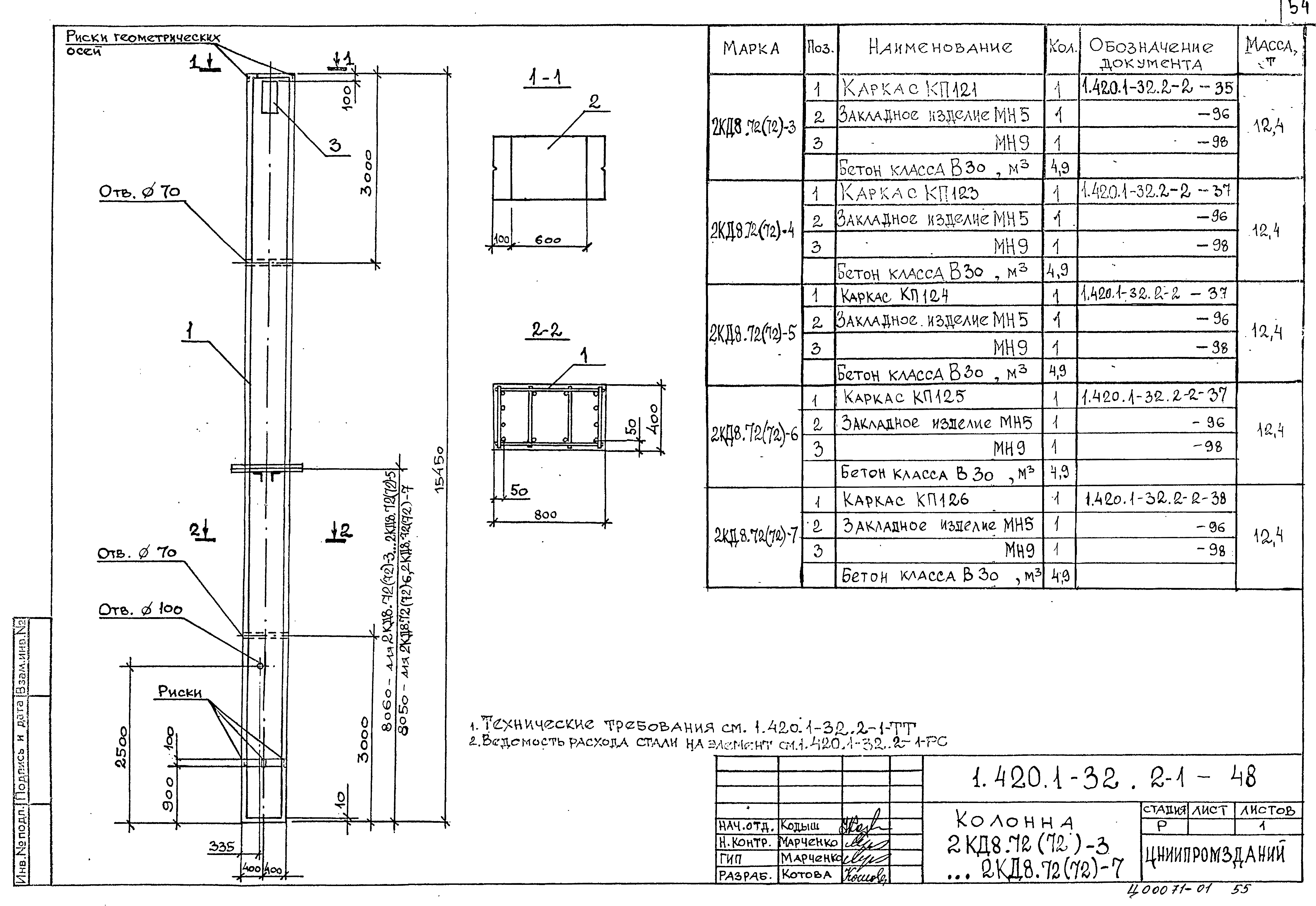
Скачать Серия 1.420.1-32 Выпуск 2-1. Колонны двухэтажные для зданий высотой 10,8; 12,0; 13,2 и 14,4 м. Рабочие чертежиДата актуализации: 10.08.2017 Серия 1.420.1-32
Выпуск 2-1. Колонны двухэтажные для зданий высотой 10,8; 12,0; 13,2 и 14,4 м. Рабочие чертежи| Обозначение: | Серия 1.420.1-32 | | Обозначение англ: | Series 1.420.1-32 | | Статус: | не определен законодательством | | Название рус.: | Выпуск 2-1. Колонны двухэтажные для зданий высотой 10,8; 12,0; 13,2 и 14,4 м. Рабочие чертежи | | Дата добавления в базу: | 01.09.2013 | | Дата актуализации: | 05.05.2017 | | Дата введения: | 01.01.1994 | | Разработан: | ЦНИИпромзданий
| | Утверждён: | 21.12.1992 Минстрой России (Russian Federation Minstroy 9-1/395)
| | Расположен в: |
|
                                                                          
|