Информационная система
«Ёшкин Кот»

Скачать базу одним архивом
Скачать обновления
История создания базы
Карта сайта

Скачать Серия 1.020.1-3пв Выпуск 1-3. Колонны и обвязочные балки нулевого цикла для сборного варианта. Рабочие чертежи

Дата актуализации: 10.08.2017

Серия 1.020.1-3пв

Выпуск 1-3. Колонны и обвязочные балки нулевого цикла для сборного варианта. Рабочие чертежи

Обозначение: Серия 1.020.1-3пв
Обозначение англ: Series 1.020.1-3пв
Статус:действует
Название рус.:Выпуск 1-3. Колонны и обвязочные балки нулевого цикла для сборного варианта. Рабочие чертежи
Дата добавления в базу:01.09.2013
Дата актуализации:05.05.2017
Дата введения:01.11.1985
Оглавление:1.020.1-3ВП.1-3 00ТО Техническое описание
1.020.1-3ВП.1-3 01 Балка обвязочная БО 73.4
1.020.1-3ВП.1-3 02 Балка обвязочная БО 91.4
1.020.1-3ВП.1-3 03 Балка обвязочная БО 99.4
1.020.1-3ВП.1-3 04 Балка обвязочная БО109.4
1.020.1-3ВП.1-3 05 Балка обвязочная БО 113.4
1.020.1-3ВП.1-3 06 Балка обвязочная БО 129.4
1.020.1-3ВП.1-3 07 Балка обвязочная БО 97.4
1.020.1-3ВП.1-3 08 Балка обвязочная БО 20.4
1.020.1-3ВП.1-3 09 Балка обвязочная БО 50.4
1.020.1-3ВП.1-3 10 Балка обвязочная БО 62.4
1.020.1-3ВП.1-3 11 Балка обвязочная БО 64.4
1.020.1-3ВП.1-3 12 Колонка К4
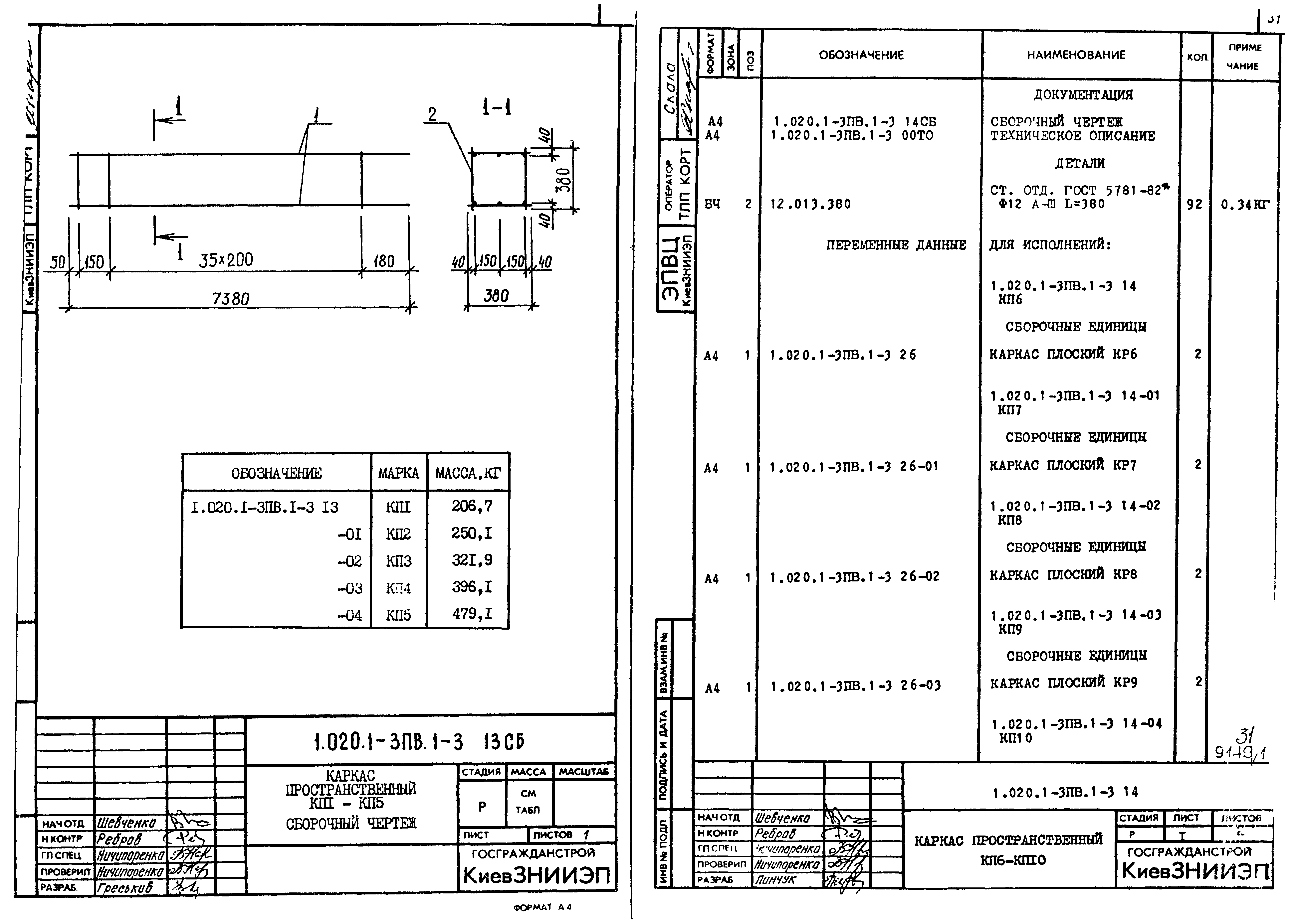
1.020.1-3ВП.1-3 13 Каркас пространственный КП1-КП5
1.020.1-3ВП.1-3 14 Каркас пространственный КП6-КП10
1.020.1-3ВП.1-3 15 Каркас пространственный КП11-КП15
1.020.1-3ВП.1-3 16 Каркас пространственный КП16-КП20
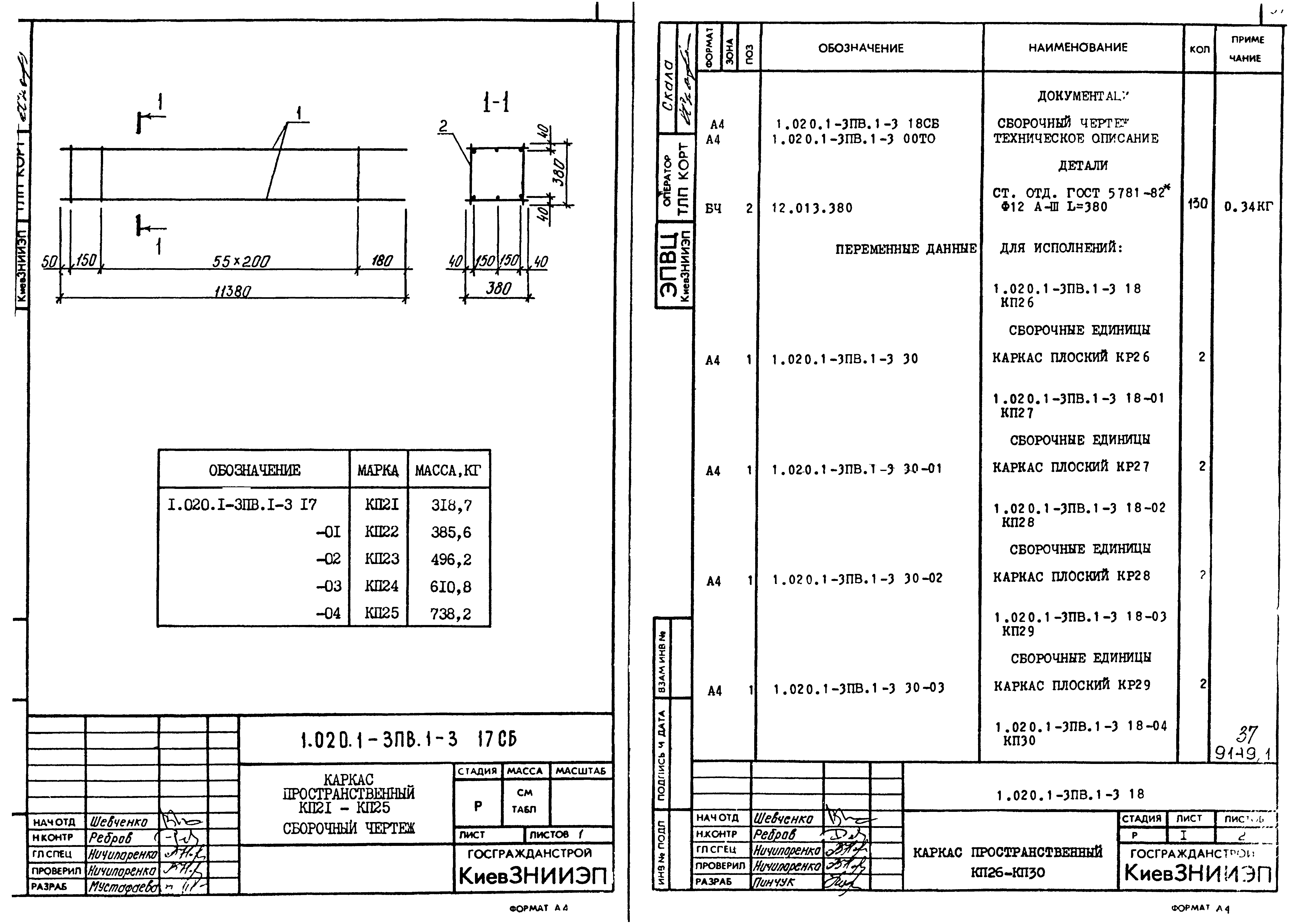
1.020.1-3ВП.1-3 17 Каркас пространственный КП21-КП25
1.020.1-3ВП.1-3 18 Каркас пространственный КП26-КП30
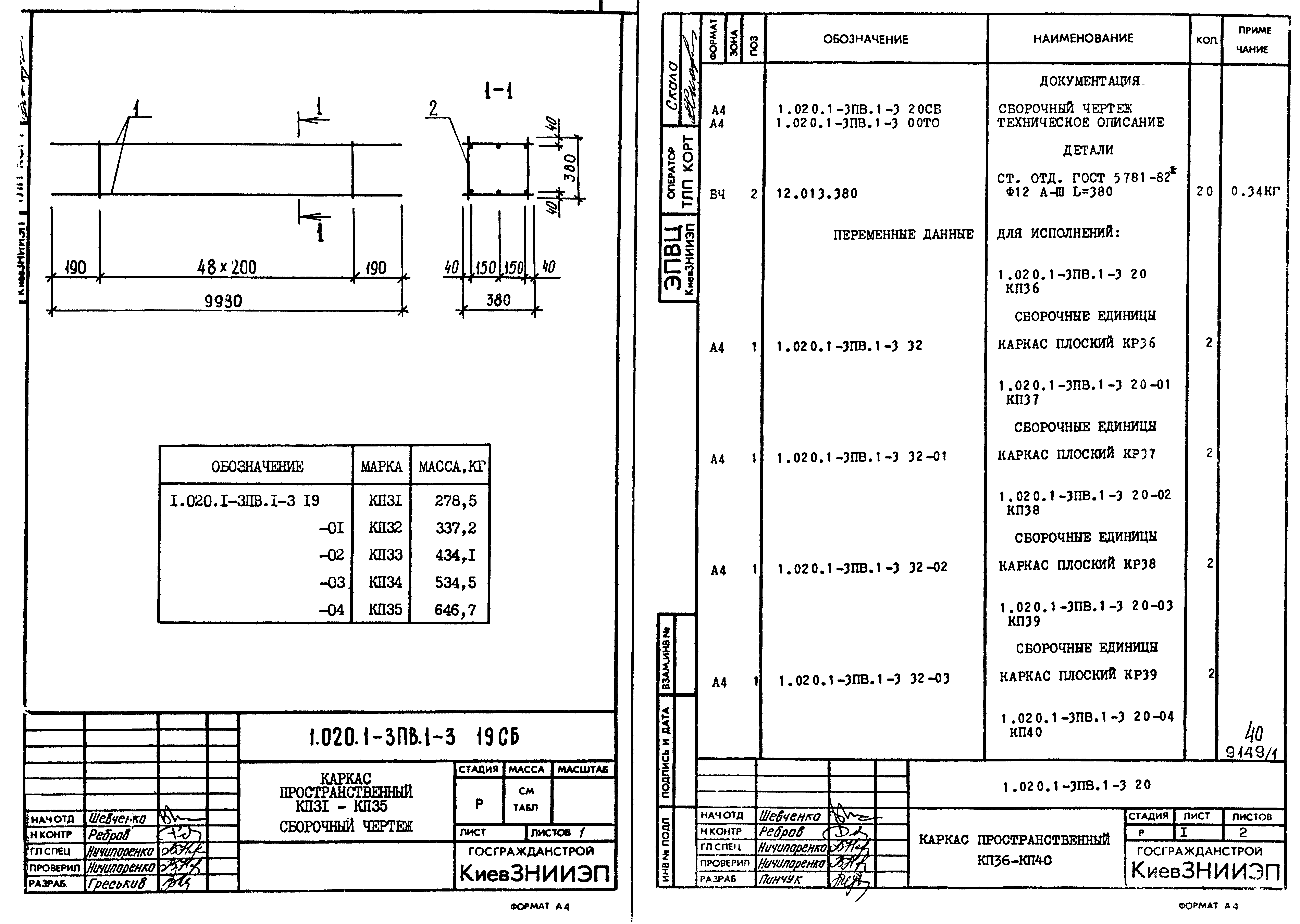
1.020.1-3ВП.1-3 19 Каркас пространственный КП31-КП35
1.020.1-3ВП.1-3 20 Каркас пространственный КП36-КП40
1.020.1-3ВП.1-3 21 Каркас пространственный КП41-КП45
1.020.1-3ВП.1-3 22 Каркас пространственный КП46-КП50
1.020.1-3ВП.1-3 23 Каркас пространственный КП51
1.020.1-3ВП.1-3 24 Каркас пространственный КП52-КП55
1.020.1-3ВП.1-3 25 Каркас плоский КР1-КР2
1.020.1-3ВП.1-3 26 Каркас плоский КР6-КР10
1.020.1-3ВП.1-3 27 Каркас плоский КР11-КР15
1.020.1-3ВП.1-3 28 Каркас плоский КР16-КР20
1.020.1-3ВП.1-3 29 Каркас плоский КР21-КР25
1.020.1-3ВП.1-3 30 Каркас плоский КР26-КР30
1.020.1-3ВП.1-3 31 Каркас плоский КР31-КР35
1.020.1-3ВП.1-3 32 Каркас плоский КР36-КР40
1.020.1-3ВП.1-3 33 Каркас плоский КР41-КР45
1.020.1-3ВП.1-3 34 Каркас плоский КР46-КР50
1.020.1-3ВП.1-3 35 Стержень отдельный
1.020.1-3ВП.1-3 36 Изделие закладное МН-53
1.020.1-3ВП.1-3 37 Сетка косвенного армирования СКА-5
1.020.1-3ВП.1-3 38 Изделие закладное МН-54-МН-65
1.020.1-3ВП.1-3 39 Изделие закладное МН-66
1.020.1-3ВП.1-3 00Д1 Узлы
1.020.1-3ВП.1-3 00РС Ведомость расхода стали на элемент, кг
Разработан: КиевЗНИИЭП
ЦНИИЭП торгово-бытовых зданий и туристских комплексов
Утверждён:30.07.1985 Госстрой СССР (Государственный комитет Совета Министров СССР по делам строительства) (USSR Gosstroy АЧ-30)
Расположен в:Техническая документация Строительство Справочные документы Типовые строительные конструкции, изделия и узлы Общероссийский строительный каталог Строительные конструкции, изделия и узлы зданий и сооружений для всех видов строительства Конструкции, изделия и узлы зданий Несущие конструкции двухэтажных и многоэтажных зданий Каркасные здания
Заменяет собой:
Серия 1.020.1-3пвСерия 1.020.1-3пвСерия 1.020.1-3пвСерия 1.020.1-3пвСерия 1.020.1-3пвСерия 1.020.1-3пвСерия 1.020.1-3пвСерия 1.020.1-3пвСерия 1.020.1-3пвСерия 1.020.1-3пвСерия 1.020.1-3пвСерия 1.020.1-3пвСерия 1.020.1-3пвСерия 1.020.1-3пвСерия 1.020.1-3пвСерия 1.020.1-3пвСерия 1.020.1-3пвСерия 1.020.1-3пвСерия 1.020.1-3пвСерия 1.020.1-3пвСерия 1.020.1-3пвСерия 1.020.1-3пвСерия 1.020.1-3пвСерия 1.020.1-3пвСерия 1.020.1-3пвСерия 1.020.1-3пвСерия 1.020.1-3пвСерия 1.020.1-3пвСерия 1.020.1-3пвСерия 1.020.1-3пвСерия 1.020.1-3пвСерия 1.020.1-3пвСерия 1.020.1-3пвСерия 1.020.1-3пвСерия 1.020.1-3пвСерия 1.020.1-3пвСерия 1.020.1-3пвСерия 1.020.1-3пвСерия 1.020.1-3пвСерия 1.020.1-3пвСерия 1.020.1-3пвСерия 1.020.1-3пвСерия 1.020.1-3пвСерия 1.020.1-3пвСерия 1.020.1-3пвСерия 1.020.1-3пвСерия 1.020.1-3пвСерия 1.020.1-3пвСерия 1.020.1-3пвСерия 1.020.1-3пвСерия 1.020.1-3пвСерия 1.020.1-3пвСерия 1.020.1-3пвСерия 1.020.1-3пвСерия 1.020.1-3пвСерия 1.020.1-3пвСерия 1.020.1-3пвСерия 1.020.1-3пвСерия 1.020.1-3пвСерия 1.020.1-3пвСерия 1.020.1-3пвСерия 1.020.1-3пвСерия 1.020.1-3пвСерия 1.020.1-3пвСерия 1.020.1-3пвСерия 1.020.1-3пвСерия 1.020.1-3пвСерия 1.020.1-3пвСерия 1.020.1-3пвСерия 1.020.1-3пвСерия 1.020.1-3пвСерия 1.020.1-3пвСерия 1.020.1-3пвСерия 1.020.1-3пвСерия 1.020.1-3пвСерия 1.020.1-3пвСерия 1.020.1-3пвСерия 1.020.1-3пвСерия 1.020.1-3пв

© 2013 Ёшкин Кот :-) Карта сайта