Информационная система
«Ёшкин Кот»

Скачать базу одним архивом
Скачать обновления
История создания базы
Карта сайта

Скачать Серия 1.020.1-2с/89 Выпуск 3-3. Часть 2. Ригели. Пространственные и плоские каркасы. Рабочие чертежи для несейсмических районов

Дата актуализации: 10.08.2017

Серия 1.020.1-2с/89

Выпуск 3-3. Часть 2. Ригели. Пространственные и плоские каркасы. Рабочие чертежи для несейсмических районов

Обозначение: Серия 1.020.1-2с/89
Обозначение англ: Series 1.020.1-2с/89
Статус:не определен законодательством
Название рус.:Выпуск 3-3. Часть 2. Ригели. Пространственные и плоские каркасы. Рабочие чертежи для несейсмических районов
Дата добавления в базу:01.09.2013
Дата актуализации:05.05.2017
Дата введения:01.07.1990
Оглавление:1.020.1-20/89 3-3 Содержание
1.020.1-20/89 ТТ Технические требования
1.020.1-20/89 К97 Каркас пространственный КП1…КП3
1.020.1-20/89 К98 Каркас пространственный КП4…КП9
1.020.1-20/89 К99 Каркас пространственный КП10…КП13
1.020.1-20/89 К100 Каркас пространственный КП14…КП18
1.020.1-20/89 К101 Каркас пространственный КП19…КП23
1.020.1-20/89 К102 Каркас пространственный КП24…КП27
1.020.1-20/89 К103 Каркас пространственный КП28…КП31
1.020.1-20/89 К104 Каркас пространственный КП32, КП35, КП39
1.020.1-20/89 К105 Каркас пространственный КП36…КП38
1.020.1-20/89 К106 Каркас пространственный КП40…КП42
1.020.1-20/89 К107 Каркас пространственный КП42…КП45
1.020.1-20/89 К108 Каркас пространственный КП46…КП49
1.020.1-20/89 К109 Каркас пространственный КП50…КП53
1.020.1-20/89 К110 Каркас пространственный КП54…КП56
1.020.1-20/89 К11 Каркас пространственный КП57…КП58
1.020.1-20/89 К112 Каркас пространственный КП59…КП64
1.020.1-20/89 К113 Каркас пространственный КП65…КП68
1.020.1-20/89 К114 Каркас пространственный КП69…КП74
1.020.1-20/89 К115 Каркас пространственный КП75…КП78
1.020.1-20/89 К116 Каркас пространственный КП79…КП81
1.020.1-20/89 К117 Каркас пространственный КП82…КП84, КП121
1.020.1-20/89 К118 Каркас пространственный КП85…КП87
1.020.1-20/89 К119 Каркас пространственный КП88…КП90
1.020.1-20/89 К120 Каркас пространственный КП91…КП93
1.020.1-20/89 К121 Каркас пространственный КП94…КП97
1.020.1-20/89 К122 Каркас пространственный КП98…КП101
1.020.1-20/89 К123 Каркас пространственный КП102…КП105
1.020.1-20/89 К124 Каркас пространственный КП106, КП107
1.020.1-20/89 К125 Каркас пространственный КП108…КП113
1.020.1-20/89 К126 Каркас пространственный КП114…КП117
1.020.1-20/89 К3127 Каркас пространственный КП118…КП120
1.020.1-20/89 К128 Каркас пространственный КП122…КП124
1.020.1-20/89 К129 Каркас пространственный КП125…КП128
1.020.1-20/89 К130 Каркас пространственный КП129…КП131
1.020.1-20/89 К131 Каркас пространственный КП132, КП133
1.020.1-20/89 К132 Каркас пространственный КП134, КП135
1.020.1-20/89 К133 Каркас пространственный КП136…КП139
1.020.1-20/89 К134 Каркас пространственный КП140…КП143
1.020.1-20/89 К135 Каркас пространственный КП144…КП147
1.020.1-20/89 К136 Каркас плоский КР1…КР6
1.020.1-20/89 К137 Каркас плоский КР7…КР11
1.020.1-20/89 К138 Каркас плоский КР12…КР15
1.020.1-20/89 К139 Каркас плоский КР16…КР19
1.020.1-20/89 К140 Каркас плоский КР20…КР23
1.020.1-20/89 К141 Каркас плоский КР24…КР29
1.020.1-20/89 К142 Каркас плоский КР30…КР34
1.020.1-20/89 К143 Каркас плоский КР35…КР41
1.020.1-20/89 К144 Каркас плоский КР42…КР48
1.020.1-20/89 К145 Каркас плоский КР49, КР50
1.020.1-20/89 К146 Каркас плоский КР51…КР54
1.020.1-20/89 К147 Каркас плоский КР55…КР60
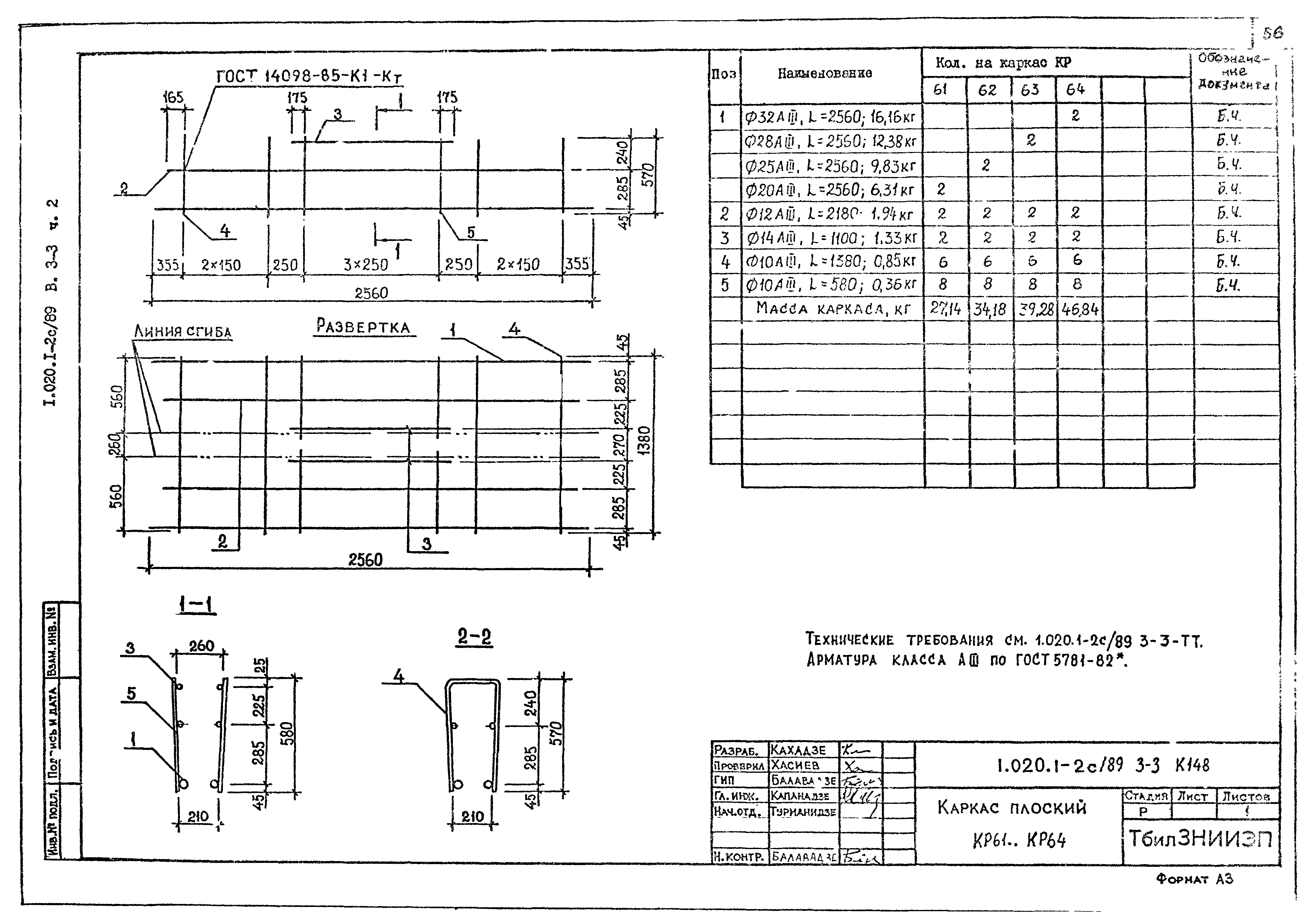
1.020.1-20/89 К148 Каркас плоский КР61…КР64
1.020.1-20/89 К149 Каркас плоский КР65…КР68
1.020.1-20/89 К150 Каркас плоский КР69...КР72
1.020.1-20/89 К151 Каркас плоский КР73…КР76
1.020.1-20/89 К152 Каркас плоский КР77…КР83
1.020.1-20/89 К153 Каркас плоский КР84…КР90
1.020.1-20/89 К154 Каркас плоский КР91…КР94
1.020.1-20/89 К155 Каркас плоский КР95…КР101
1.020.1-20/89 К156 Каркас плоский КР102…КР104
1.020.1-20/89 К157 Каркас плоский КР105, КР106
1.020.1-20/89 К158 Каркас плоский КР107…КР109
1.020.1-20/89 К159 Каркас плоский КР110…КР112
1.020.1-20/89 К160 Каркас плоский КР113…КР115
1.020.1-20/89 К161 Каркас плоский КР116, КР117
1.020.1-20/89 К162 Каркас плоский КР118…КР120
1.020.1-20/89 К163 Каркас плоский КР121…КР123
1.020.1-20/89 К164 Каркас плоский КР124…КР126
1.020.1-20/89 К165 Каркас плоский КР127, КР128
1.020.1-20/89 К166 Каркас плоский КР129…КР131
1.020.1-20/89 К167 Каркас плоский КР132…КР134
1.020.1-20/89 К168 Каркас плоский КР135, КР136
1.020.1-20/89 К169 Каркас плоский КР137…КР140
1.020.1-20/89 К170 Каркас плоский КР141…КР144
1.020.1-20/89 К171 Каркас плоский КР145, КР146
1.020.1-20/89 К172 Каркас плоский КР147, КР148
1.020.1-20/89 К173 Узел 1…4
Разработан: НИИЖБ Госстроя СССР
ТбилЗНИИЭП
Утверждён:25.12.1989 Госкомархитектура (244)
Принят: ЦНИИСК им.Кучеренко (Kucherenko TsNIISK )
Расположен в:Техническая документация Строительство Справочные документы Типовые строительные конструкции, изделия и узлы Общероссийский строительный каталог Строительные конструкции, изделия и узлы зданий и сооружений для всех видов строительства Конструкции, изделия и узлы зданий Несущие конструкции двухэтажных и многоэтажных зданий Каркасные здания
Заменяет собой:
  • Серия 1.020.1-2с
Серия 1.020.1-2с/89Серия 1.020.1-2с/89Серия 1.020.1-2с/89Серия 1.020.1-2с/89Серия 1.020.1-2с/89Серия 1.020.1-2с/89Серия 1.020.1-2с/89Серия 1.020.1-2с/89Серия 1.020.1-2с/89Серия 1.020.1-2с/89Серия 1.020.1-2с/89Серия 1.020.1-2с/89Серия 1.020.1-2с/89Серия 1.020.1-2с/89Серия 1.020.1-2с/89Серия 1.020.1-2с/89Серия 1.020.1-2с/89Серия 1.020.1-2с/89Серия 1.020.1-2с/89Серия 1.020.1-2с/89Серия 1.020.1-2с/89Серия 1.020.1-2с/89Серия 1.020.1-2с/89Серия 1.020.1-2с/89Серия 1.020.1-2с/89Серия 1.020.1-2с/89Серия 1.020.1-2с/89Серия 1.020.1-2с/89Серия 1.020.1-2с/89Серия 1.020.1-2с/89Серия 1.020.1-2с/89Серия 1.020.1-2с/89Серия 1.020.1-2с/89Серия 1.020.1-2с/89Серия 1.020.1-2с/89Серия 1.020.1-2с/89Серия 1.020.1-2с/89Серия 1.020.1-2с/89Серия 1.020.1-2с/89Серия 1.020.1-2с/89Серия 1.020.1-2с/89Серия 1.020.1-2с/89Серия 1.020.1-2с/89Серия 1.020.1-2с/89Серия 1.020.1-2с/89Серия 1.020.1-2с/89Серия 1.020.1-2с/89Серия 1.020.1-2с/89Серия 1.020.1-2с/89Серия 1.020.1-2с/89Серия 1.020.1-2с/89Серия 1.020.1-2с/89Серия 1.020.1-2с/89Серия 1.020.1-2с/89Серия 1.020.1-2с/89Серия 1.020.1-2с/89Серия 1.020.1-2с/89Серия 1.020.1-2с/89Серия 1.020.1-2с/89Серия 1.020.1-2с/89Серия 1.020.1-2с/89Серия 1.020.1-2с/89Серия 1.020.1-2с/89Серия 1.020.1-2с/89Серия 1.020.1-2с/89Серия 1.020.1-2с/89Серия 1.020.1-2с/89Серия 1.020.1-2с/89Серия 1.020.1-2с/89Серия 1.020.1-2с/89Серия 1.020.1-2с/89Серия 1.020.1-2с/89Серия 1.020.1-2с/89Серия 1.020.1-2с/89Серия 1.020.1-2с/89Серия 1.020.1-2с/89Серия 1.020.1-2с/89

© 2013 Ёшкин Кот :-) Карта сайта