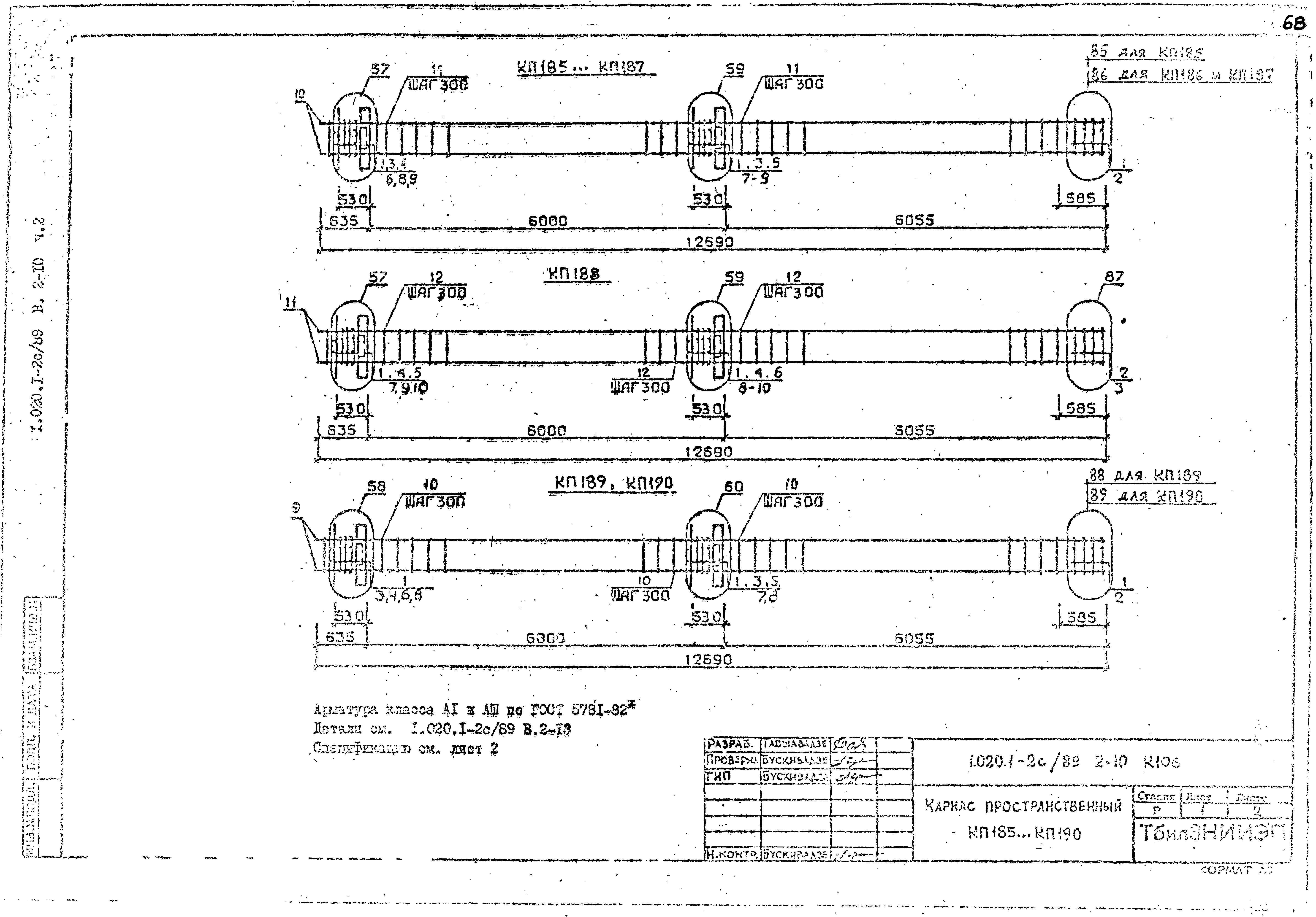
Скачать Серия 1.020.1-2с/89 Выпуск 2-10. Часть 2. Колонны сечением 400х400 мм для зданий с высотами этажей 5,4; 6,0 и 6,0 (7,2) м. Пространственные каркасы. Рабочие чертежи для несейсмических районовДата актуализации: 10.08.2017 Серия 1.020.1-2с/89
Выпуск 2-10. Часть 2. Колонны сечением 400х400 мм для зданий с высотами этажей 5,4; 6,0 и 6,0 (7,2) м. Пространственные каркасы. Рабочие чертежи для несейсмических районовОбозначение: | Серия 1.020.1-2с/89 | Обозначение англ: | Series 1.020.1-2с/89 | Статус: | не определен законодательством | Название рус.: | Выпуск 2-10. Часть 2. Колонны сечением 400х400 мм для зданий с высотами этажей 5,4; 6,0 и 6,0 (7,2) м. Пространственные каркасы. Рабочие чертежи для несейсмических районов | Дата добавления в базу: | 01.09.2013 | Дата актуализации: | 05.05.2017 | Дата введения: | 01.07.1990 | Разработан: | ТбилЗНИИЭП
| Утверждён: | 25.12.1989 Госкомархитектура (244)
| Расположен в: |
|
                                                                                                                        
|