Скачать Серия 1.020.1-2с/89 Выпуск 2-2. Часть 1. Колонны сечением 400х400 мм для зданий с высотой этажа 3,3 м. Пространственные каркасы. Рабочие чертежи для районов сейсмичностью 7, 8, 9 балловДата актуализации: 10.08.2017 Серия 1.020.1-2с/89
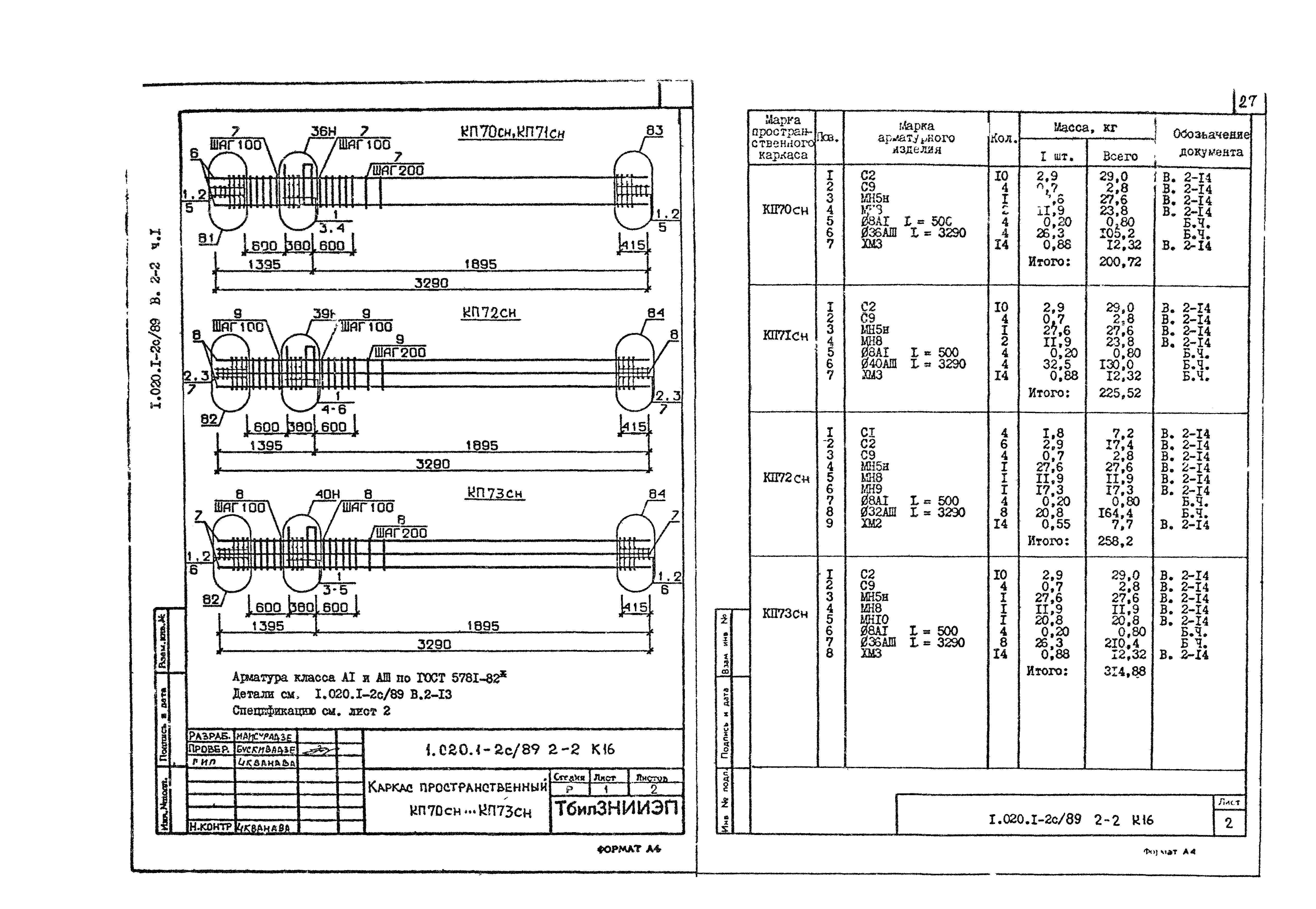
Выпуск 2-2. Часть 1. Колонны сечением 400х400 мм для зданий с высотой этажа 3,3 м. Пространственные каркасы. Рабочие чертежи для районов сейсмичностью 7, 8, 9 балловОбозначение: | Серия 1.020.1-2с/89 | Обозначение англ: | Series 1.020.1-2с/89 | Статус: | не определен законодательством | Название рус.: | Выпуск 2-2. Часть 1. Колонны сечением 400х400 мм для зданий с высотой этажа 3,3 м. Пространственные каркасы. Рабочие чертежи для районов сейсмичностью 7, 8, 9 баллов | Дата добавления в базу: | 01.09.2013 | Дата актуализации: | 05.05.2017 | Дата введения: | 01.07.1990 | Разработан: | НИИЖБ Госстроя СССР ТбилЗНИИЭП
| Утверждён: | 25.12.1989 Госкомархитектура (244)
| Принят: | ЦНИИСК им.Кучеренко (Kucherenko TsNIISK )
| Расположен в: |
| Заменяет собой: | |
                                                                                                                                                                                                              
|