| ||||||||||||||||||||||||||||
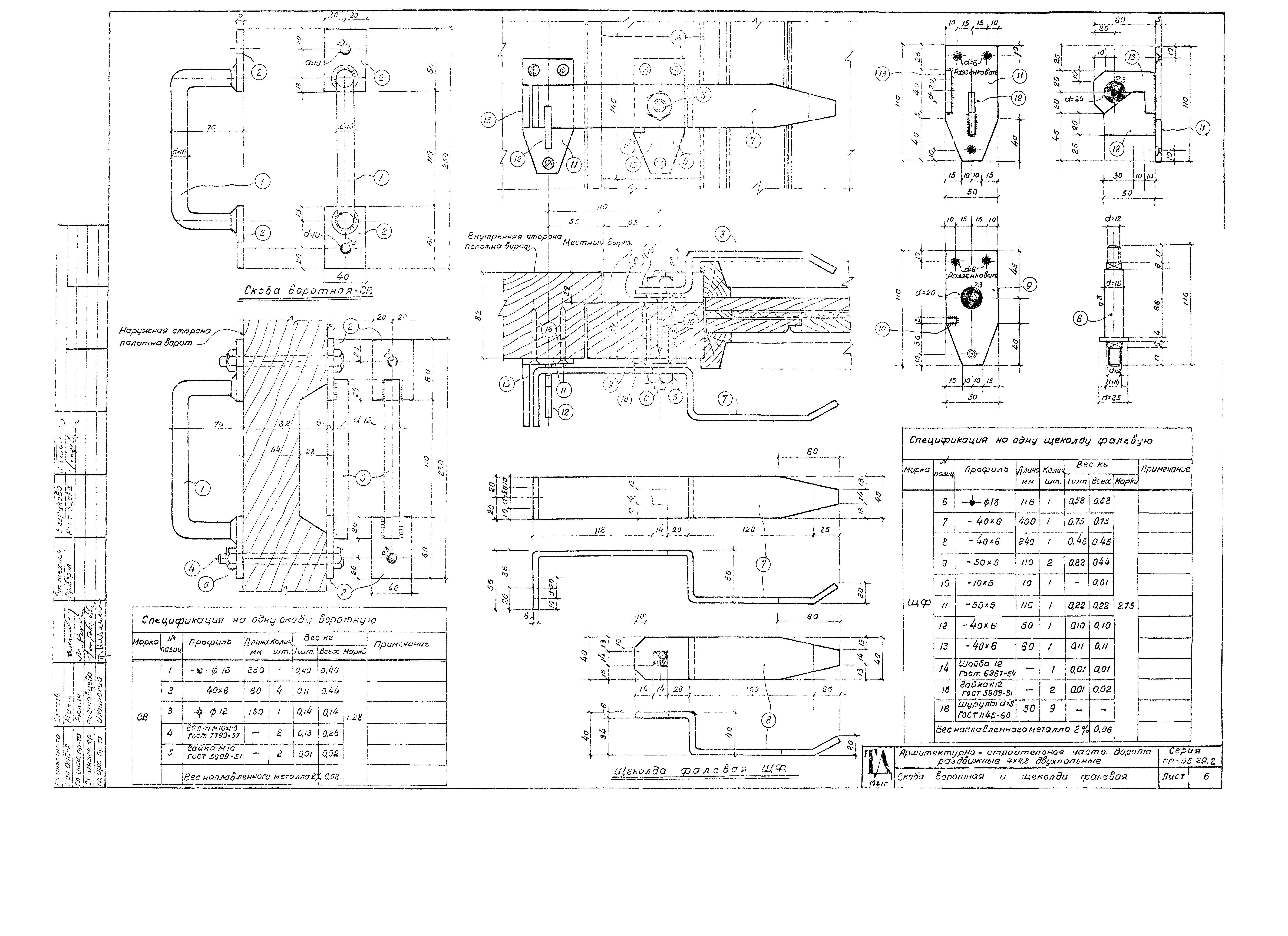
Скачать Серия ПР-05-39.2 Архитектурно-строительная частьДата актуализации: 10.08.2017
|
| Обозначение: | Серия ПР-05-39.2 |
| Обозначение англ: | Series ПР-05-39.2 |
| Статус: | действует |
| Название рус.: | Архитектурно-строительная часть |
| Дата добавления в базу: | 01.09.2013 |
| Дата актуализации: | 05.05.2017 |
| Дата введения: | 30.12.1961 |
| Разработан: | Гипротис |
| Утверждён: | 30.12.1961 Гипротис (265) |
| Издан: | ЦИТП Госстроя СССР (CITP, Gosstroy (USSR) 1962 г. ) |
| Расположен в: | |
| Заменяет собой: |
|











