| ||||||||||||||||||||||||||
Скачать Серия 5.416-2 Выпуск 4. Тележки и другое оборудование. Рабочие чертежиДата актуализации: 10.08.2017
|
| Обозначение: | Серия 5.416-2 |
| Обозначение англ: | Series 5.416-2 |
| Статус: | не определен законодательством |
| Название рус.: | Выпуск 4. Тележки и другое оборудование. Рабочие чертежи |
| Дата добавления в базу: | 01.09.2013 |
| Дата актуализации: | 05.05.2017 |
| Дата введения: | 01.08.1988 |
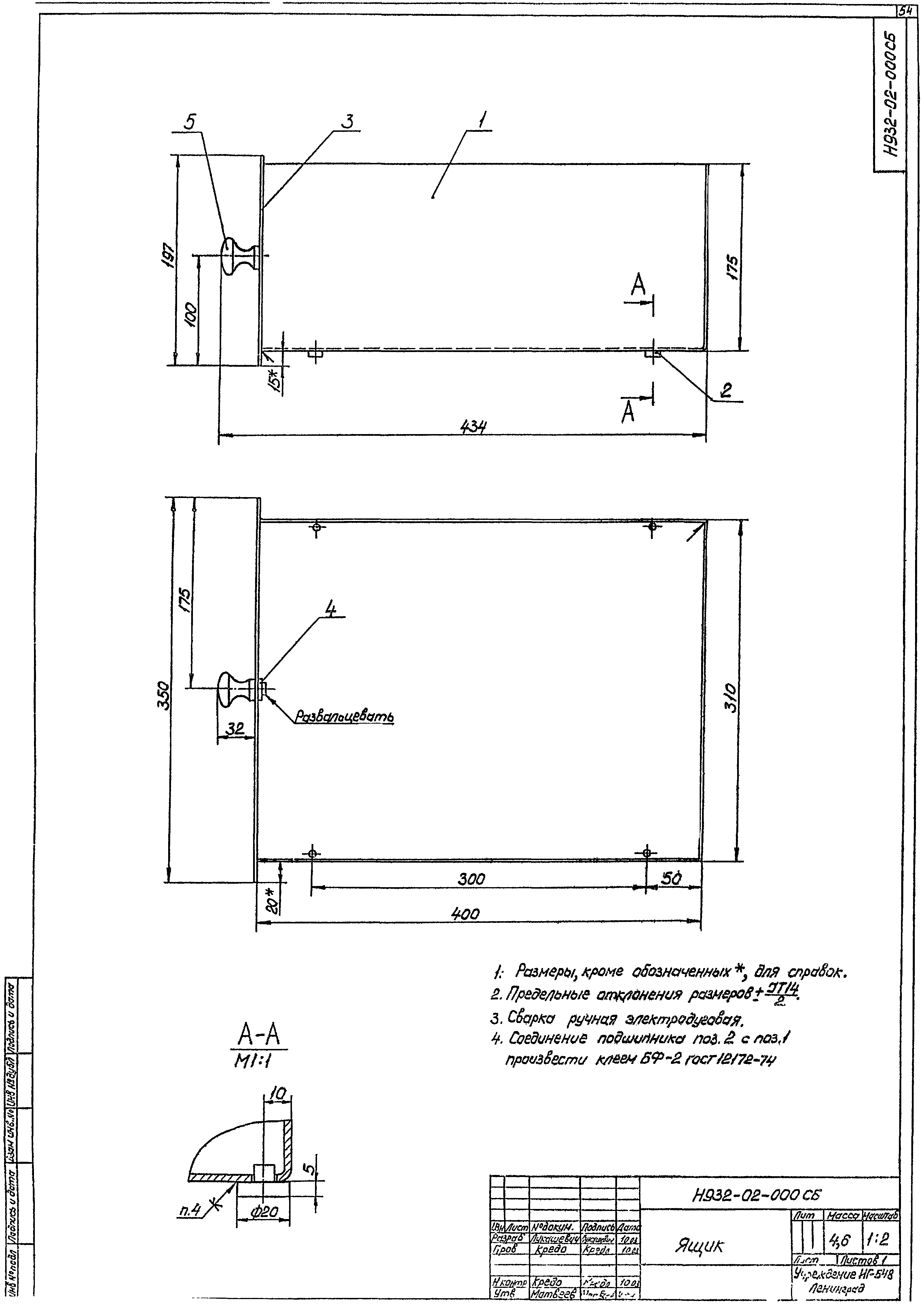
| Оглавление: | Содержание альбома Н928-00-000ВС Тележка грузоподъемностью 100 кг. Ведомость спецификаций Н928-00-000ВП Тележка грузоподъемностью 100 кг. Ведомость покупных изделий Н928-00-000 Тележка грузоподъемностью 100 кг Н928-01-000 Рама Н928-00-001 Прокладка Н928-00-000СБ Тележка грузоподъемностью 100 кг. Сборочный чертеж Н928-01-000СБ Рама Н928-01-001 Косынка Н928-01-002 Втулка Н928-01-003 Косынка Н928-01-004 Косынка Н928-01-005 Лист Н928-01-006 Ребро Н928-01-007 Ребро Н928-01-008 Связь Н928-01-009 Планка Н928-01-010 Рукоятка Н928-02-000 Колесо в сборе Н928-02-001 Ось Н928-02-000СБ Колесо в сборе. Сборочный чертеж Н928-02-100 Вилка Н928-02-101 Щека Н928-02-100СБ Вилка. Сборочный чертеж Н928-02-200 Колесо Н928-02-201 Диск Н928-02-200СБ Колесо. Сборочный чертеж Н928-03-000 Колесо поворотное Н928-03-100 Вилка Н928-03-000СБ Колесо поворотное. Сборочный чертеж Н928-03-100СБ Вилка. Сборочный чертеж Н928-03-101 Щека Н928-03-102 Палец Н933-00-000ВС Тележка грузоподъемностью 0,5 т. Ведомость спецификаций Н933-00-000ВП Тележка грузоподъемностью 0,5 т. Ведомость покупных изделий Н933-00-000 Тележка грузоподъемностью 0,5 т Н933-01-001 Косынка Н933-01-000 Рама Н933-00-000СБ Тележка грузоподъемностью 0,5 т. Сборочный чертеж Н933-01-000СБ Рама. Сборочный чертеж Н933-01-002 Штырь Н933-01-003 Рукоятка Н933-01-004 Ребро Н933-01-005 Перекладина Н933-01-006 Стойка Н933-02-000 Колесо поворотное Н933-02-000СБ Колесо поворотное. Сборочный чертеж Н933-02-001 Крышка Н933-02-002 Втулка Н933-02-003 Крышка Н933-02-004 Ось Н933-02-005 Втулка Н933-02-006 Прокладка Н933-02-007 Кольцо Н933-02-100 Основание Н933-02-100СБ Основание. Сборочный чертеж Н933-02-101 Плита Н933-02-102 Ось Н933-02-200 Вилка Н933-02-200СБ Вилка. Сборочный чертеж Н933-02-201 Шайба Н933-02-202 Щека Н933-02-203 Косынка Н933-02-300 Колесо Н933-02-300СБ Колесо. Сборочный чертеж Н933-02-301 Втулка Н933-02-400 Кольцо Н933-02-400СБ Кольцо. Сборочный чертеж Н933-03-000 Колесо глухое Н933-03-000СБ Колесо глухое. Сборочный чертеж Н933-03-100 Вилка Н933-03-101 Щека Н933-03-100СБ Вилка. Сборочный чертеж Н911-00-000 Подставка под настольное оборудование Н911-00-001 Косынка Н911-00-002 Поперечина Н911-00-000СБ Подставка под настольное оборудование. Сборочный чертеж Н912-00-000ВС Подставка под плиту. Ведомость спецификаций Н912-00-000ВП Подставка под плиту. Ведомость покупных изделий Н912-00-000 Подставка под плиту Н912-01-000 Каркас Н912-00-000СБ Подставка под плиту. Сборочный чертеж Н912-01-000СБ Каркас. Сборочный чертеж Н912-01-002 Косынка Н912-01-001 Бобышка Н912-01-003 Косынка Н912-01-004 Связь Н912-01-100 Рамка Н912-01-100СБ Рамка. Сборочный чертеж Н912-01-101 Уголок Н912-02-000 Опора Н912-02-000СБ Опора. Сборочный чертеж Н912-02-001 Винт Н912-02-002 Пята Н912-03-000 Ящик Н912-03-000СБ Ящик. Сборочный чертеж Н912-03-001 Корпус ящика Н912-03-002 Стенка Н912-03-003 Ручка Н913-00-000 Подставка под выпрямитель Н913-00-001 Поперечина Н913-00-002 Косынка Н913-00-000СБ Подставка под выпрямитель. Сборочный чертеж Н932-00-000ВС Подставка под весы. Ведомость спецификаций Н932-00-000ВП Подставка под весы. Ведомость покупных изделий Н932-00-000 Подставка под весы Н932-01-000 Каркас Н932-00-000СБ Подставка под весы. Сборочный чертеж Н932-01-000СБ Каркас. Сборочный чертеж Н932-01-001 Уголок Н932-01-002 Бобышка Н932-02-001 Каркас Н932-02-000 Ящик Н932-02-000СБ Ящик. Сборочный чертеж Н932-02-002 Подпятник Н932-02-003 Стенка Н932-02-003 Шайба Н932-02-004 Ручка Н932-02-005 Опора Н932-03-000 Опора Н932-03-001 Винт Н932-03-002 Пята Н929-0-000ВС Ларь для обтирочных материалов. Ведомость спецификаций Н929-00-000 Ларь для обтирочных материалов Н929-00-001 Ушко Н929-00-000СБ Ларь для обтирочных материалов. Сборочный чертеж Н929-01-000 Каркас Н929-01-001 Уголок Н929-01-000СБ Каркас. Сборочный чертеж Н929-01-002 Уголок Н929-01-003 Уголок Н929-01-004 Уголок Н929-01-005 Платик Н929-01-006 Уголок Н929-01-007 Ручка Н929-01-008 Лист Н929-02-000 Петля Н929-02-001 Стержень Н929-02-000СБ Петля. Сборочный чертеж Н929-02-002 Петля левая Н929-02-003 Петля правая Н929-03-000 Петля Н929-03-001 Петля левая Н929-03-000СБ Петля. Сборочный чертеж Н929-03-002 Петля правая Н929-04-000 Крышка Н929-04-000СБ Крышка. Сборочный чертеж |
| Разработан: | Учреждение ИГ-548 |
| Утверждён: | 17.06.1988 МВД СССР (USSR Ministry of Internal Affairs 49-88) |
| Расположен в: |



































































