Скачать Серия 1.020.1-7 Выпуск 0-1. Указания по применению изделийДата актуализации: 10.08.2017 Серия 1.020.1-7
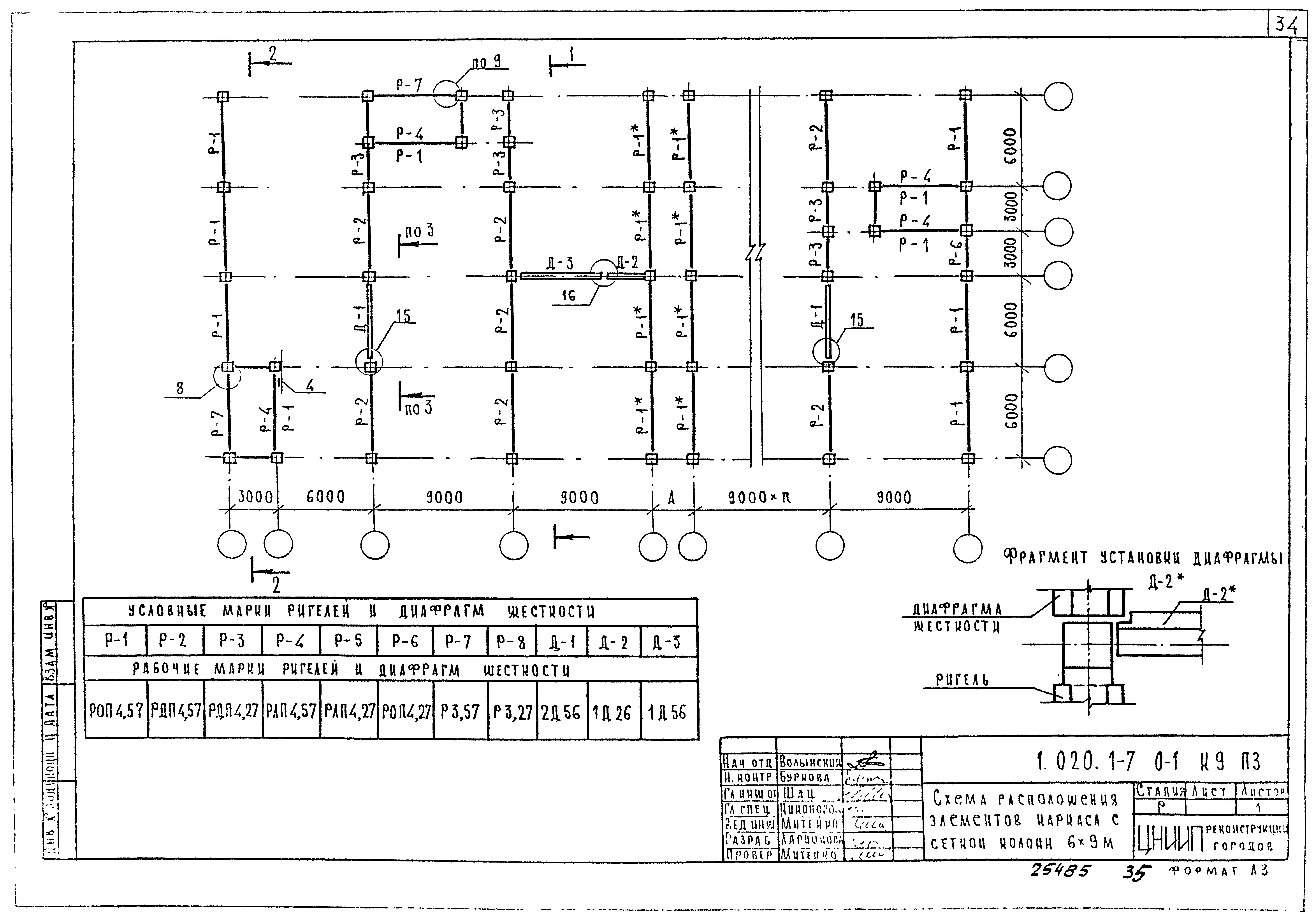
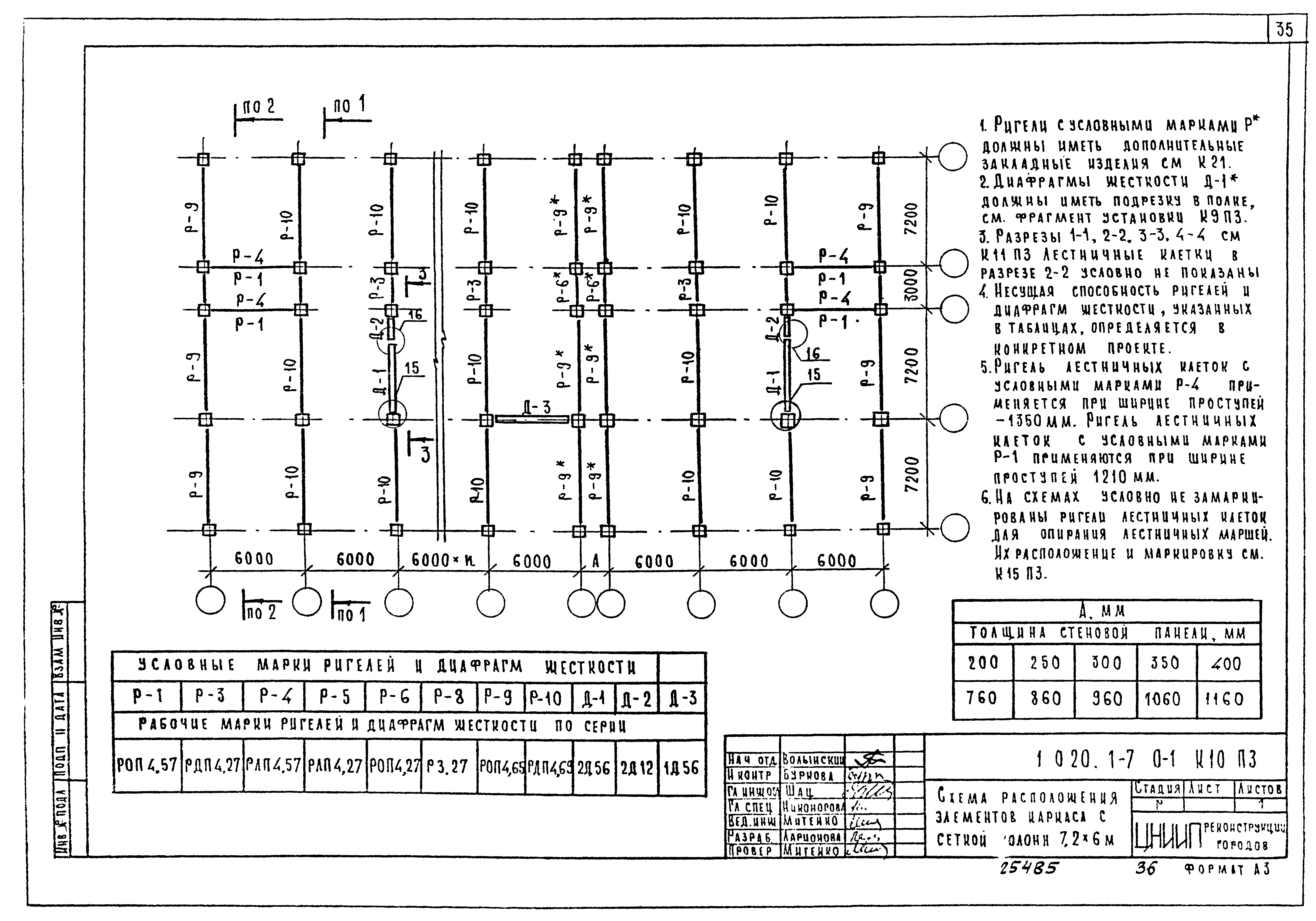
Выпуск 0-1. Указания по применению изделийОбозначение: | Серия 1.020.1-7 | Обозначение англ: | Series 1.020.1-7 | Статус: | не определен законодательством | Название рус.: | Выпуск 0-1. Указания по применению изделий | Дата добавления в базу: | 01.09.2013 | Дата актуализации: | 05.05.2017 | Дата введения: | 01.12.1991 | Область применения: | Сборные железобетонные индустриальные изделия серии 1.020.1-7 предназначены для применения в строительстве общественных зданий малой этажности (высотой до 5 этажей) различного назначения | Оглавление: | 1.020.1-7 0-1 00 Содержание 1.020.1-7 0-1 К1 ПЗ Пояснительная записка 1.020.1-7 0-1 К2 ПЗ Монтажные схемы колонн для зданий с высотой этажа 3,3 м 1.020.1-7 0-1 К3 ПЗ Монтажные схемы колонн для зданий с высотой этажа 3,6 и 4,2 м 1.020.1-7 0-1 К4 ПЗ Таблицы расположения расчетных сечений колонн для высот этажей 3,3; 3,6 и 4,2 м 1.020.1-7 0-1 К5 ПЗ Схемы армирования колонн 1.020.1-7 0-1 К6 ПЗ Пример компоновки ленточных фундаментов под диафрагмы жесткости 1.020.1-7 0-1 К7 ПЗ Схемы компоновки диафрагм жесткости для различных высот этажей и пролетов 1.020.1-7 0-1 К8 ПЗ Схема расположения элементов каркаса с сеткой колонн 6х6 м 1.020.1-7 0-1 К9 ПЗ Схема расположения элементов каркаса с сеткой колонн 6х9 м 1.020.1-7 0-1 К10 ПЗ Схема расположения элементов каркаса с сеткой колонн 7,2х6 м 1.020.1-7 0-1 К11 ПЗ Разрезы к схемам расположения элементов каркаса 1.020.1-7 0-1 К12 ПЗ Пример расположения плит перекрытия и покрытия для зданий с сеткой колонн 6х6 м 1.020.1-7 0-1 К13 ПЗ Пример расположения плит перекрытия и покрытия для зданий с сеткой колонн 6х9 м 1.020.1-7 0-1 К14 ПЗ Пример расположения плит перекрытия и покрытия для зданий с сеткой колонн 7,2х6 м 1.020.1-7 0-1 К15 ПЗ Схемы расположения элементов лестничных клеток 1.020.1-7 0-1 К16 ПЗ Пример расположения дополнительных закладных изделий в колоннах для крепления диафрагм жесткости 1.020.1-7 0-1 К17 ПЗ Пример расположения дополнительных закладных изделий в колоннах 1.020.1-7 0-1 К18 ПЗ Пример расположения дополнительных закладных изделий в колоннах для крепления стеновых панелей 1.020.1-7 0-1 К19 ПЗ Пример расположения дополнительных закладных изделий в колоннах для крепления ригелей лестничных маршей 1.020.1-7 0-1 К20 ПЗ Расчетные схемы дополнительных закладных изделий в колоннах 1.020.1-7 0-1 К21 ПЗ Примеры расположения дополнительных закладных изделий в ригелях и диафрагмах жесткости. Примеры опалубочных чертежей ригелей и диафрагм жесткости, имеющих дополнительные вырезы 1.020.1-7 0-1 К22 ПЗ Примеры устройства монолитного участка перекрытия. Пример устройства деформационного шва | Разработан: | НИИЖБ Госстроя СССР ЦНИИП реконструкции городов Госкомархитектуры
| Утверждён: | 14.12.1990 Госкомархитектура Госстроя СССР (Goskomarkhitektura, USSR Gosstroy 246)
| Расположен в: |
|
                                                           
|