| ||||||||||||||||||||||||||||
Скачать Серия 5.407-84 Выпуск 1. Монтажные чертежиДата актуализации: 10.08.2017
|
| Обозначение: | Серия 5.407-84 |
| Обозначение англ: | Series 5.407-84 |
| Статус: | не определен законодательством |
| Название рус.: | Выпуск 1. Монтажные чертежи |
| Дата добавления в базу: | 01.09.2013 |
| Дата актуализации: | 05.05.2017 |
| Дата введения: | 30.11.1987 |
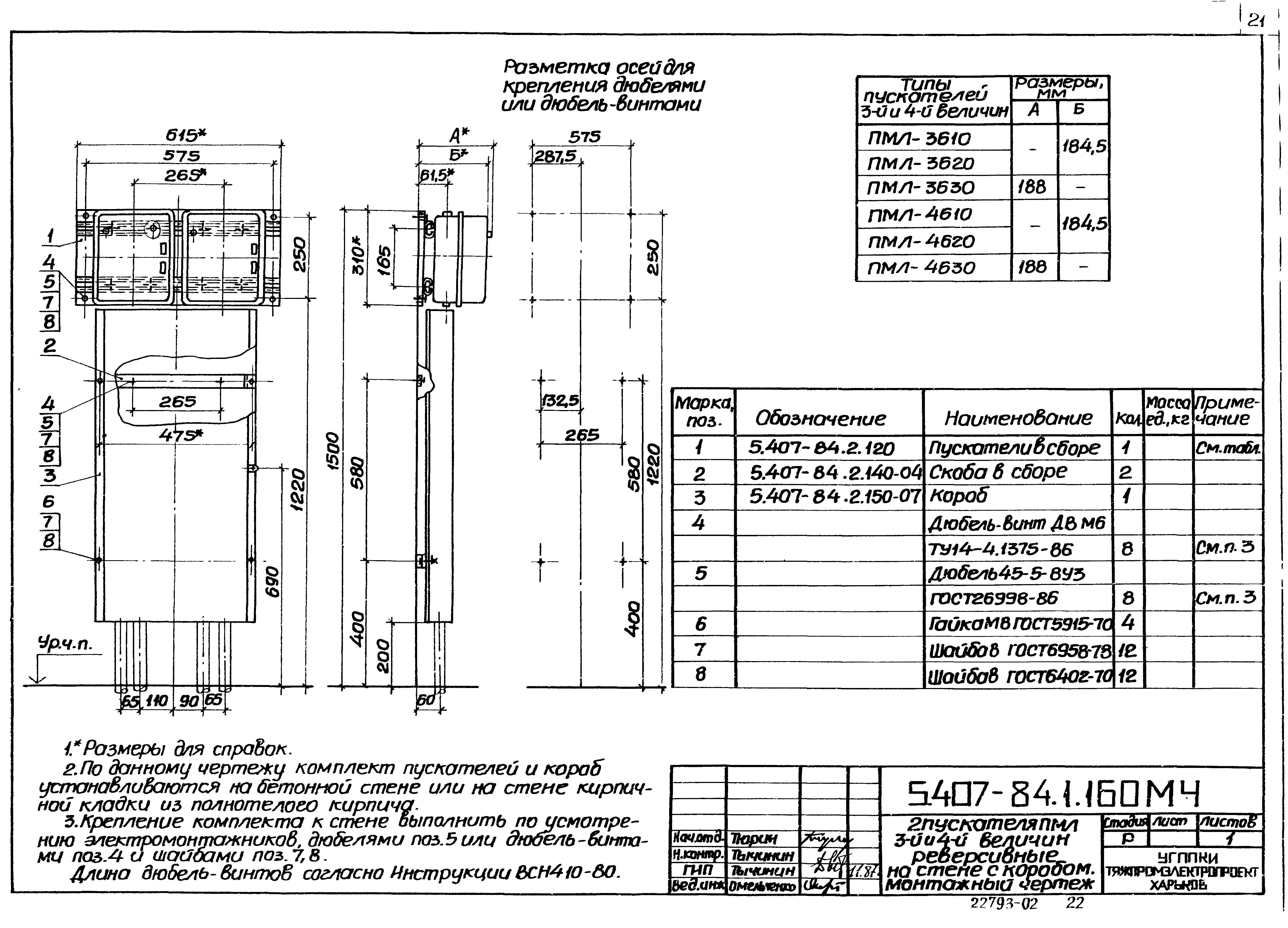
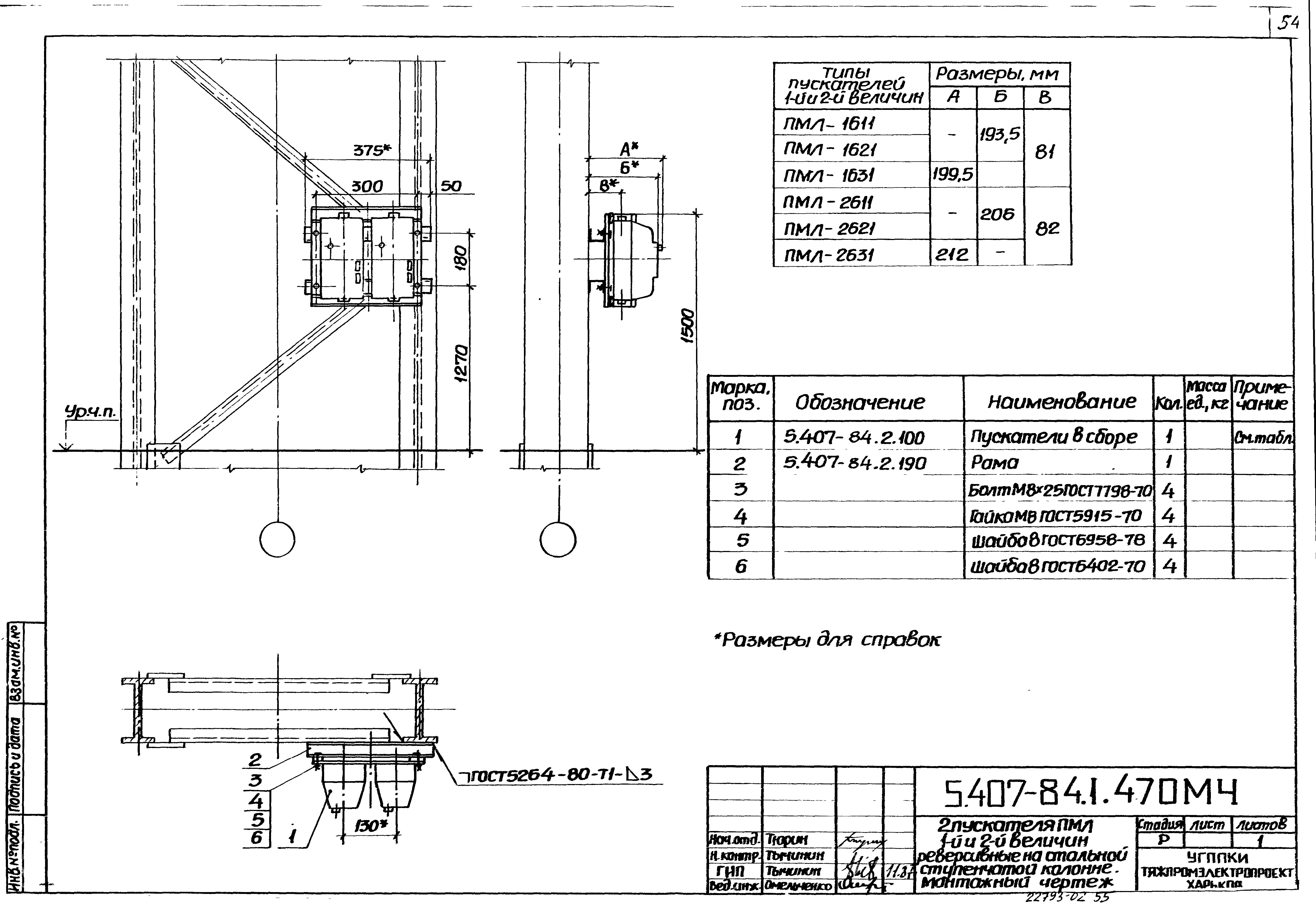
| Оглавление: | Титульный лист Содержание 5.407-84.1.10МЧ 2 пускателя ПМЛ 1-й величины нереверсивные на стене. Монтажный чертеж 5.407-84.1.20МЧ 3 пускателя ПМЛ 1-й величины нереверсивные на стене. Монтажный чертеж 5.407-84.1.30МЧ 2 пускателя ПМЛ 2-й величины нереверсивные на стене. Монтажный чертеж 5.407-84.1.40МЧ 3 пускателя ПМЛ 2-й величины нереверсивные на стене. Монтажный чертеж 5.407-84.1.50МЧ 2 пускателя ПМЛ 3-й и 4-й величин нереверсивные на стене. Монтажный чертеж 5.407-84.1.60МЧ 3 пускателя ПМЛ 3-й и 4-й величин нереверсивные на стене. Монтажный чертеж 5.407-84.1.70МЧ 2 пускателя ПМЛ 1-й и 2-й величин реверсивные на стене. Монтажный чертеж 5.407-84.1.80МЧ 2 пускателя ПМЛ 3-й и 4-й величин реверсивные на стене. Монтажный чертеж 5.407-84.1.90МЧ 2 пускателя ПМЛ 1-й величины нереверсивные на стене с коробом. Монтажный чертеж 5.407-84.1.100МЧ 3 пускателя ПМЛ 1-й величины нереверсивные на стене с коробом. Монтажный чертеж 5.407-84.1.110МЧ 2 пускателя ПМЛ 2-й величины нереверсивные на стене с коробом. Монтажный чертеж 5.407-84.1.120МЧ 3 пускателя ПМЛ 2-й величины нереверсивные на стене с коробом. Монтажный чертеж 5.407-84.1.130МЧ 2 пускателя ПМЛ 3-й и 4-й величин нереверсивные на стене с коробом. Монтажный чертеж 5.407-84.1.140МЧ 3 пускателя ПМЛ 3-й и 4-й величин нереверсивные на стене с коробом. Монтажный чертеж 5.407-84.1.150МЧ 2 пускателя ПМЛ 1-й и 2-й величин реверсивные на стене с коробом. Монтажный чертеж 5.407-84.1.160МЧ 2 пускателя ПМЛ 3-й и 4-й величин реверсивные на стене с коробом. Монтажный чертеж 5.407-84.1.170МЧ 2 пускателя ПМЛ 1-й величины нереверсивные на ж.-б. колонне среднего ряда. Монтажный чертеж 5.407-84.1.180МЧ 3 пускателя ПМЛ 1-й величины нереверсивные на ж.-б. колонне среднего ряда. Монтажный чертеж 5.407-84.1.190МЧ 2 пускателя ПМЛ 2-й величины нереверсивные на ж.-б. колонне среднего ряда. Монтажный чертеж 5.407-84.1.200МЧ 3 пускателя ПМЛ 2-й величины нереверсивные на ж.-б. колонне среднего ряда. Монтажный чертеж 5.407-84.1.210МЧ 2 пускателя ПМЛ 3-й и 4-й величин нереверсивные на ж.-б. колонне среднего ряда. Монтажный чертеж 5.407-84.1.220МЧ 3 пускателя ПМЛ 3-й и 4-й величин нереверсивные на ж.-б. колонне среднего ряда. Монтажный чертеж 5.407-84.1.230МЧ 2 пускателя ПМЛ 1-й и 2-й величин реверсивные на ж.-б. колонне среднего ряда. Монтажный чертеж 5.407-84.1.240МЧ 2 пускателя ПМЛ 3-й и 4-й величин реверсивные на ж.-б. колонне среднего ряда. Монтажный чертеж 5.407-84.1.250МЧ 2 пускателя ПМЛ 1-й величины нереверсивные на ж.-б. колонне. Монтажный чертеж 5.407-84.1.260МЧ 3 пускателя ПМЛ 1-й величины нереверсивные на ж.-б. колонне. Монтажный чертеж 5.407-84.1.270МЧ 2 пускателя ПМЛ 2-й величины нереверсивные на ж.-б. колонне. Монтажный чертеж 5.407-84.1.280МЧ 3 пускателя ПМЛ 2-й величины нереверсивные на ж.-б. колонне. Монтажный чертеж 5.407-84.1.290МЧ 2 пускателя ПМЛ 3-й и 4-й величин нереверсивные на ж.-б. колонне. Монтажный чертеж 5.407-84.1.300МЧ 3 пускателя ПМЛ 3-й и 4-й величин нереверсивные на ж.-б. колонне. Монтажный чертеж 5.407-84.1.310МЧ 2 пускателя ПМЛ 1-й и 2-й величин реверсивные на ж.-б. колонне. Монтажный чертеж 5.407-84.1.320МЧ 2 пускателя ПМЛ 3-й и 4-й величин реверсивные на ж.-б. колонне. Монтажный чертеж 5.407-84.1.330МЧ 2 пускателя ПМЛ 1-й величины нереверсивные на стальной колонне. Монтажный чертеж 5.407-84.1.340МЧ 3 пускателя ПМЛ 1-й величины нереверсивные на стальной колонне. Монтажный чертеж 5.407-84.1.350МЧ 2 пускателя ПМЛ 2-й величины нереверсивные на стальной колонне. Монтажный чертеж 5.407-84.1.360МЧ 3 пускателя ПМЛ 2-й величины нереверсивные на стальной колонне. Монтажный чертеж 5.407-84.1.370МЧ 2 пускателя ПМЛ 3-й и 4-й величин нереверсивные на стальной колонне. Монтажный чертеж 5.407-84.1.380МЧ 3 пускателя ПМЛ 3-й и 4-й величин нереверсивные на стальной колонне. Монтажный чертеж 5.407-84.1.390МЧ 2 пускателя ПМЛ 1-й и 2-й величин реверсивные на стальной колонне. Монтажный чертеж 5.407-84.1.400МЧ 2 пускателя ПМЛ 3-й и 4-й величин реверсивные на стальной колонне. Монтажный чертеж 5.407-84.1.410МЧ 2 пускателя ПМЛ 1-й величины нереверсивные на стальной ступенчатой колонне. Монтажный чертеж 5.407-84.1.420МЧ 3 пускателя ПМЛ 1-й величины нереверсивные на стальной ступенчатой колонне. Монтажный чертеж 5.407-84.1.430МЧ 2 пускателя ПМЛ 2-й величины нереверсивные на стальной ступенчатой колонне. Монтажный чертеж 5.407-84.1.440МЧ 3 пускателя ПМЛ 2-й величины нереверсивные на стальной ступенчатой колонне. Монтажный чертеж 5.407-84.1.450МЧ 2 пускателя ПМЛ 3-й и 4-й величин нереверсивные на стальной ступенчатой колонне. Монтажный чертеж 5.407-84.1.460МЧ 3 пускателя ПМЛ 3-й и 4-й величин нереверсивные на стальной ступенчатой колонне. Монтажный чертеж 5.407-84.1.470МЧ 2 пускателя ПМЛ 1-й и 2-й величин реверсивные на стальной ступенчатой колонне. Монтажный чертеж 5.407-84.1.480МЧ 2 пускателя ПМЛ 3-й и 4-й величин реверсивные на стальной ступенчатой колонне. Монтажный чертеж 5.407-84.1.490МЧ 2 пускателя ПМЛ 1-й величины нереверсивные на стойке. Монтажный чертеж 5.407-84.1.500МЧ 3 пускателя ПМЛ 1-й величины нереверсивные на стойке. Монтажный чертеж 5.407-84.1.510МЧ 2 пускателя ПМЛ 2-й величины нереверсивные на стойке. Монтажный чертеж 5.407-84.1.520МЧ 3 пускателя ПМЛ 2-й величины нереверсивные на стойке. Монтажный чертеж 5.407-84.1.530МЧ 2 пускателя ПМЛ 3-й и 4-й величин нереверсивные на стойке. Монтажный чертеж 5.407-84.1.540МЧ 3 пускателя ПМЛ 3-й и 4-й величин нереверсивные на стойке. Монтажный чертеж 5.407-84.1.550МЧ 2 пускателя ПМЛ 1-й и 2-й величин реверсивные на стойке. Монтажный чертеж 5.407-84.1.560МЧ 2 пускателя ПМЛ 3-й и 4-й величин реверсивные на стойке. Монтажный чертеж |
| Разработан: | УГППКИ Тяжпромэлектропроект |
| Утверждён: | 30.11.1987 Минмонтажспецстрой СССР (USSR Minmontazhspetsstroy ) |
| Издан: | ЦИТП Госстроя СССР (CITP, Gosstroy (USSR) 1988 г. ) |
| Расположен в: |
































































