Информационная система
«Ёшкин Кот»

Скачать базу одним архивом
Скачать обновления
История создания базы
Карта сайта

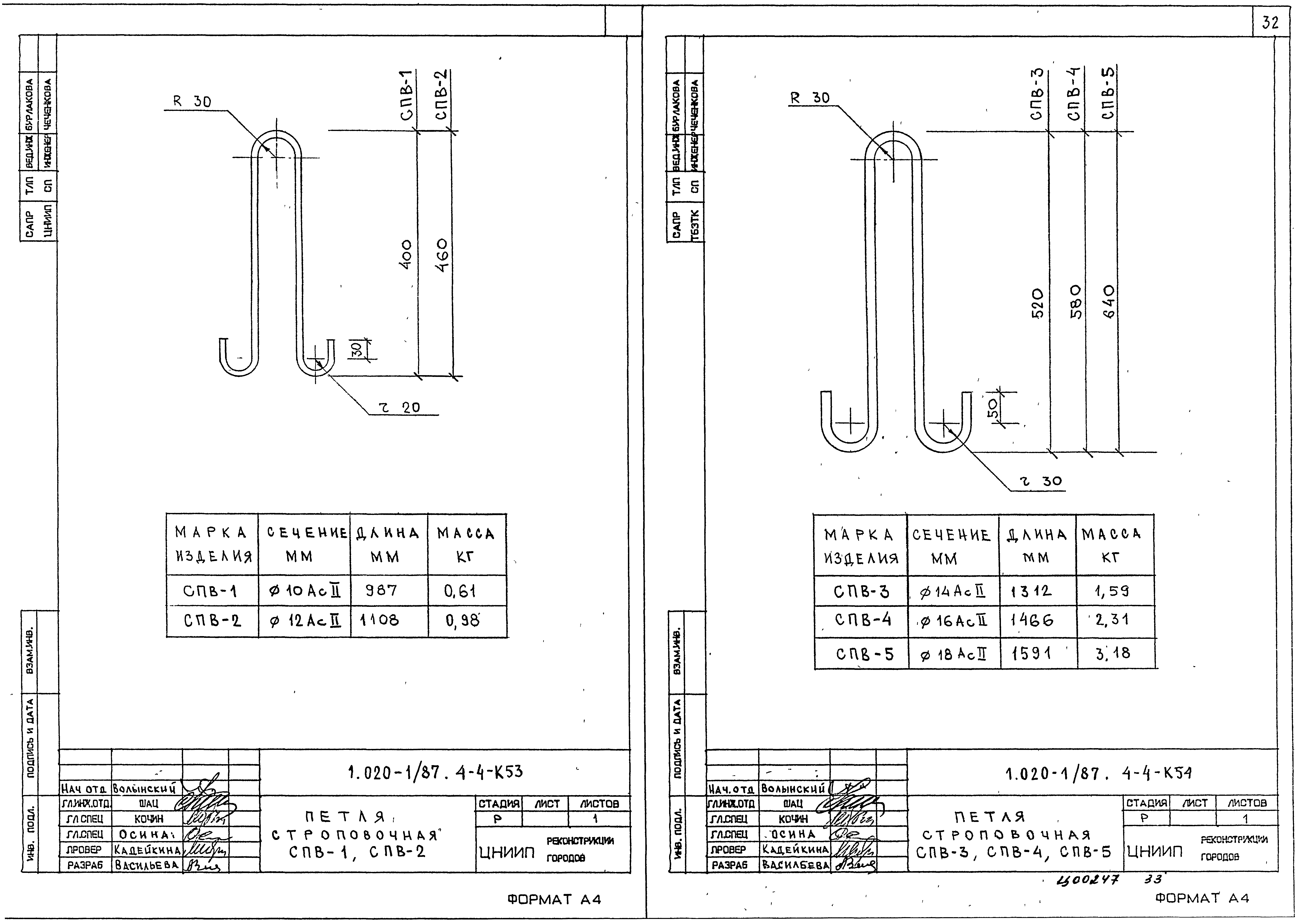
Скачать Серия 1.020-1/87 Выпуск 4-4. Диафрагмы жесткости плоские. Арматурные и закладные изделия. Рабочие чертежи

Дата актуализации: 10.08.2017

Серия 1.020-1/87

Выпуск 4-4. Диафрагмы жесткости плоские. Арматурные и закладные изделия. Рабочие чертежи

Обозначение: Серия 1.020-1/87
Обозначение англ: Series 1.020-1/87
Статус:не определен законодательством
Название рус.:Выпуск 4-4. Диафрагмы жесткости плоские. Арматурные и закладные изделия. Рабочие чертежи
Дата добавления в базу:01.09.2013
Дата актуализации:05.05.2017
Дата введения:01.12.1992
Разработан: ЦНИИП реконструкции городов Госкомархитектуры
Утверждён:08.10.1992 Минстрой России (Russian Federation Minstroy 9-1/310)
Расположен в:Техническая документация Экология СТРОИТЕЛЬНЫЕ МАТЕРИАЛЫ И СТРОИТЕЛЬСТВО Строительство Торговые и промышленные здания Общественные здания Строительство Справочные документы Типовые строительные конструкции, изделия и узлы Общероссийский строительный каталог Строительные конструкции, изделия и узлы зданий и сооружений для всех видов строительства Конструкции, изделия и узлы зданий Несущие конструкции двухэтажных и многоэтажных зданий Каркасные здания
Серия 1.020-1/87Серия 1.020-1/87Серия 1.020-1/87Серия 1.020-1/87Серия 1.020-1/87Серия 1.020-1/87Серия 1.020-1/87Серия 1.020-1/87Серия 1.020-1/87Серия 1.020-1/87Серия 1.020-1/87Серия 1.020-1/87Серия 1.020-1/87Серия 1.020-1/87Серия 1.020-1/87Серия 1.020-1/87Серия 1.020-1/87Серия 1.020-1/87Серия 1.020-1/87Серия 1.020-1/87Серия 1.020-1/87Серия 1.020-1/87Серия 1.020-1/87Серия 1.020-1/87Серия 1.020-1/87Серия 1.020-1/87Серия 1.020-1/87Серия 1.020-1/87Серия 1.020-1/87Серия 1.020-1/87Серия 1.020-1/87Серия 1.020-1/87Серия 1.020-1/87Серия 1.020-1/87Серия 1.020-1/87Серия 1.020-1/87Серия 1.020-1/87

© 2013 Ёшкин Кот :-) Карта сайта