| ||||||||||||||||||||||||||||||
Скачать Серия 1.130.1-1с Выпуск 0-2. Элементы монолитных наружных стен. Материалы для проектированияДата актуализации: 10.08.2017
|
| Обозначение: | Серия 1.130.1-1с |
| Обозначение англ: | Series 1.130.1-1с |
| Статус: | не определен законодательством |
| Название рус.: | Выпуск 0-2. Элементы монолитных наружных стен. Материалы для проектирования |
| Дата добавления в базу: | 01.09.2013 |
| Дата актуализации: | 05.05.2017 |
| Дата введения: | 01.07.1987 |
| Область применения: | Типовые решения элементов и узлов монолитных и сборно-монолитных жилых зданий высотой до 16 этажей включительно, для строительства в условиях сейсмичности 7, 8 и 9 баллов при возведении их в переставных опалубках системы "Гражданстрой" |
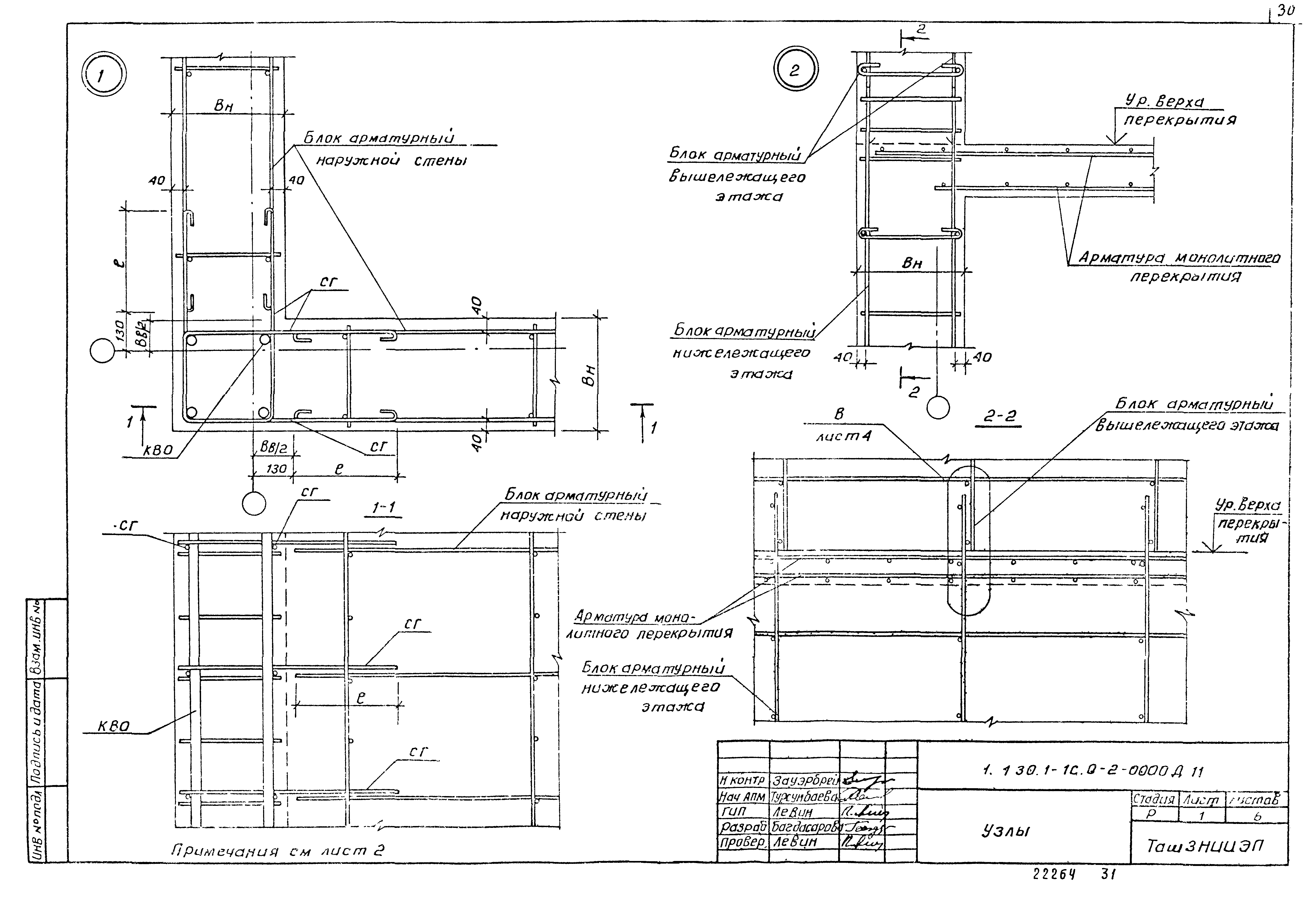
| Оглавление: | 1.130.1-1с.0-2-0000 Содержание. 1.130.1-1с.0-2-0000 ПЗ Пояснительная записка. 1.130.1-1с.0-2-0000 Д1 Схема расположения арматуры наружных стен по вертикали. 1.130.1-1с.0-2-0000 Д2 Схема расположения арматуры наружных стен в плане. Пример 1 1.130.1-1с.0-2-0000 Д3 Схема расположения арматуры наружных стен в плане. Пример 2 1.130.1-1с.0-2-0000 Д4 Схема расположения арматурных изделий в наружных стенах. Пример 1 1.130.1-1с.0-2-0000 Д5 Схема расположения арматурных изделий в наружных стенах. Пример 2 1.130.1-1с.0-2-0000 Д6 Фрагмент 2. 1.130.1-1с.0-2-0000 Д7 Фрагмент 3. 1.130.1-1с.0-2-0000 Д8 Фрагмент 4. 1.130.1-1с.0-2-0000 Д9 Конструктивные схемы плоских арматурных изделий. 1.130.1-1с.0-2-0000 Д10 Блок арматурный БО для расчетного армирования. 1.130.1-1с.0-2-0000 Д11 Узлы 1.130.1-1с.0-2-0000 СМ Ключ для подбора элементов наружных стен. 1.130.1-1с.0-2-1000 Элемент наружной стены СГ. 1.130.1-1с.0-2-1000 СБ Элемент наружной стены СГ. Сборочный чертеж. 1.130.1-1с.0-2-2000 Элемент наружной стены СО. 1.130.1-1с.0-2-2000 СБ Элемент наружной стены СО. Сборочный чертеж. 1.130.1-1с.0-2-3000 Элемент наружной стены СОО 1.130.1-1с.0-2-3000 СБ Элемент наружной стены СОО. Сборочный чертеж. 1.130.1-1с.0-2-4000 Элемент наружной стены СБ. 1.130.1-1с.0-2-4000 СБ Элемент наружной стены СБ. Сборочный чертеж. 1.130.1-1с.0-2-5000 Элемент наружной стены СОБ. 1.130.1-1с.0-2-5000 СБ Элемент наружной стены СОБ. Сборочный чертеж. 1.130.1-1с.0-2-6000 Элемент наружной стены СББ. 1.130.1-1с.0-2-6000 СБ Элемент наружной стены СББ. Сборочный чертеж. 1.130.1-1с.0-2-7000 Элемент наружной стены СД. 1.130.1-1с.0-2-7000 СБ Элемент наружной стены СД. Сборочный чертеж. 1.130.1-1с.0-2-8000 Элемент наружной стены СЛ. 1.130.1-1с.0-2-8000 СБ Элемент наружной стены СЛ. Сборочный чертеж. |
| Разработан: | ТашЗНИИЭП Госгражданстроя |
| Утверждён: | 01.06.1987 Госгражданстрой (Gosgrazhdanstroy 170) |
| Издан: | ЦИТП Госстроя СССР (CITP, Gosstroy (USSR) 1987 г. ) |
| Расположен в: |
















































































