| ||||||||||||||||||||||||||||
Скачать Серия 2.210-1 Выпуск 4. Цоколь и стены подвала зданий из кирпича. Деформационные швы. Загрузочные люки. Входы в подвалДата актуализации: 10.08.2017
|
| Обозначение: | Серия 2.210-1 |
| Обозначение англ: | Series 2.210-1 |
| Статус: | cправочные материалы, мп, тпр |
| Название рус.: | Выпуск 4. Цоколь и стены подвала зданий из кирпича. Деформационные швы. Загрузочные люки. Входы в подвал |
| Дата добавления в базу: | 01.09.2013 |
| Дата актуализации: | 05.05.2017 |
| Область применения: | Альбом разработан для применения при проектировании и строительстве зданий со стенами из кирпича для обычных условий строительства |
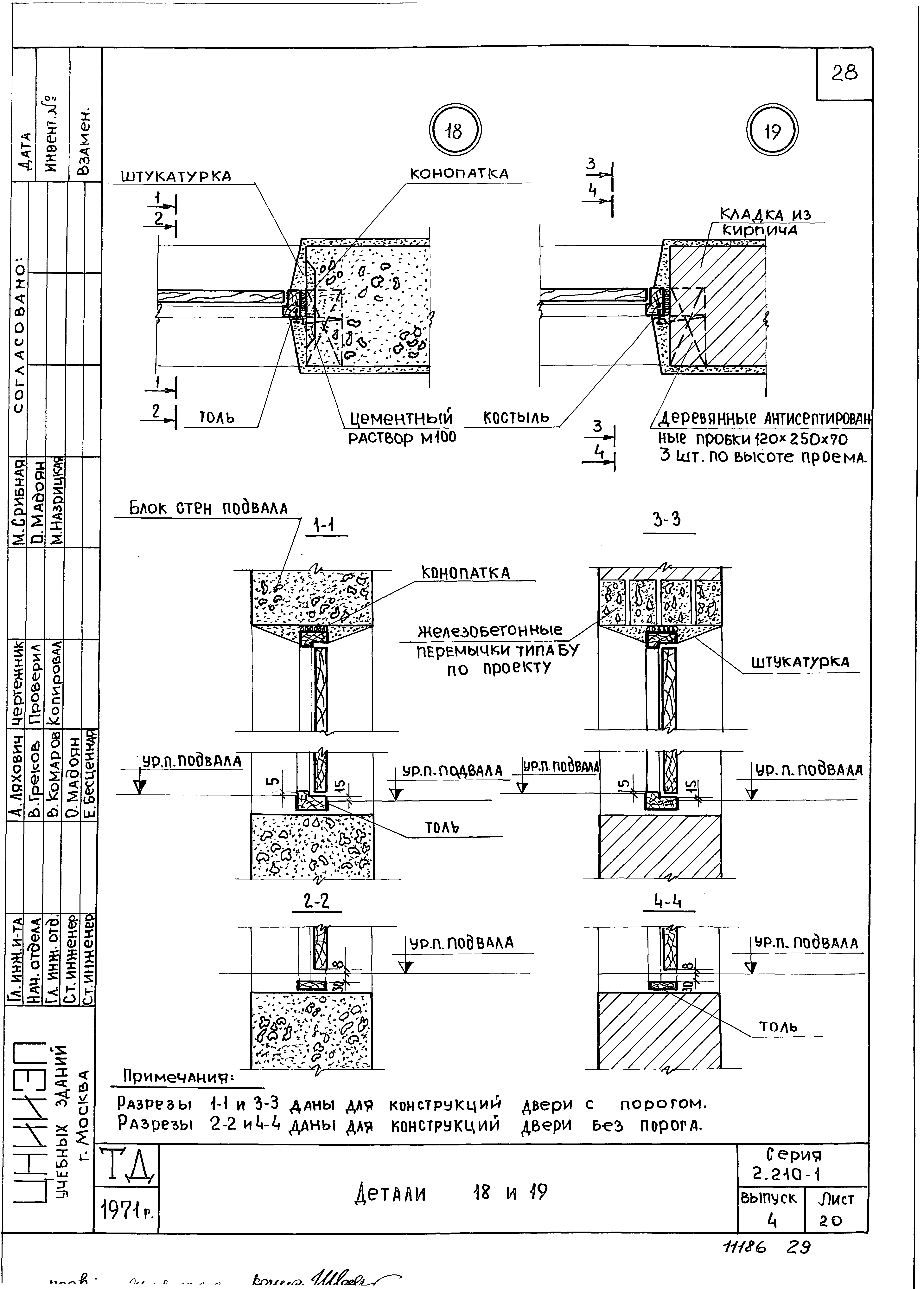
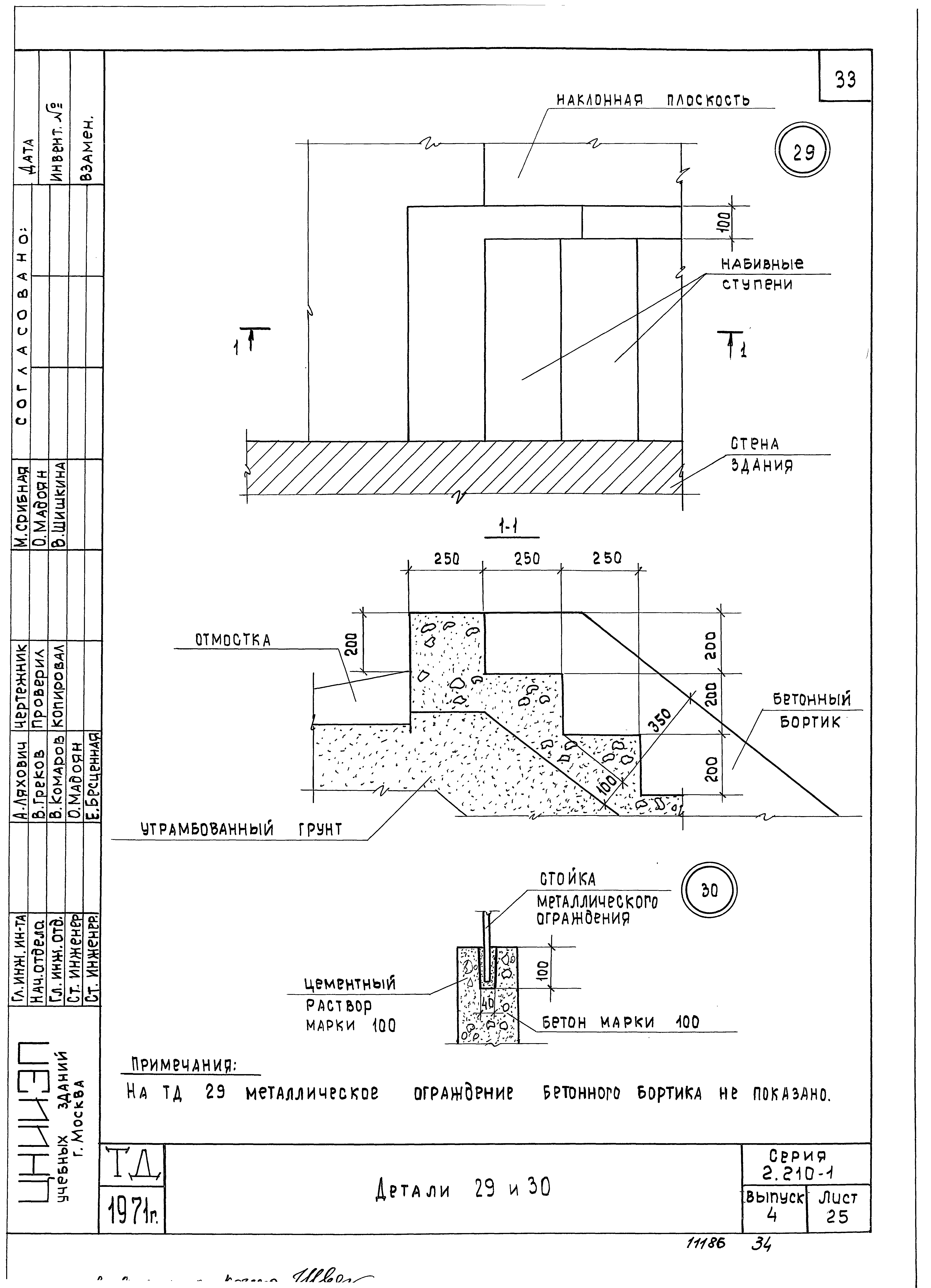
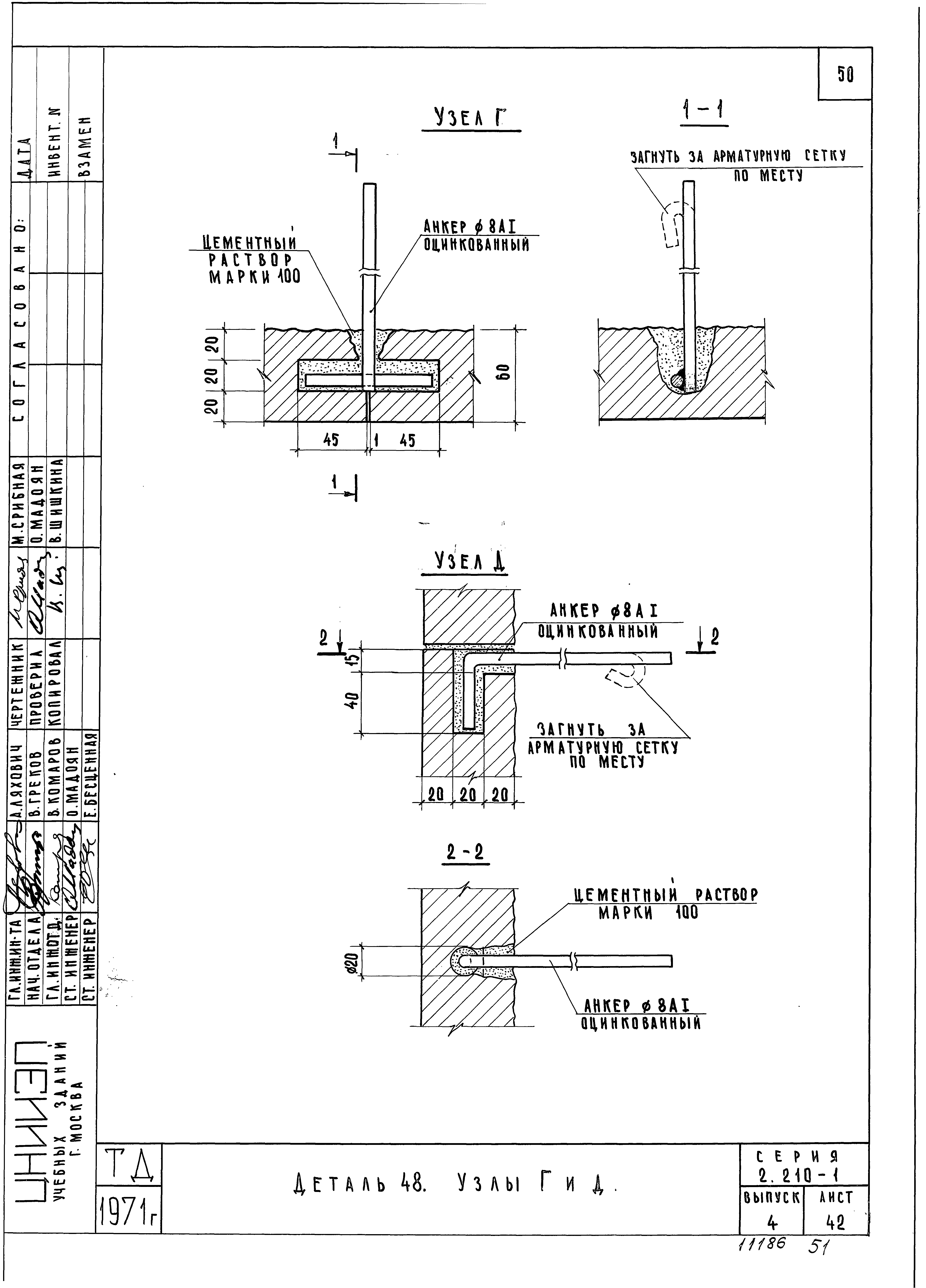
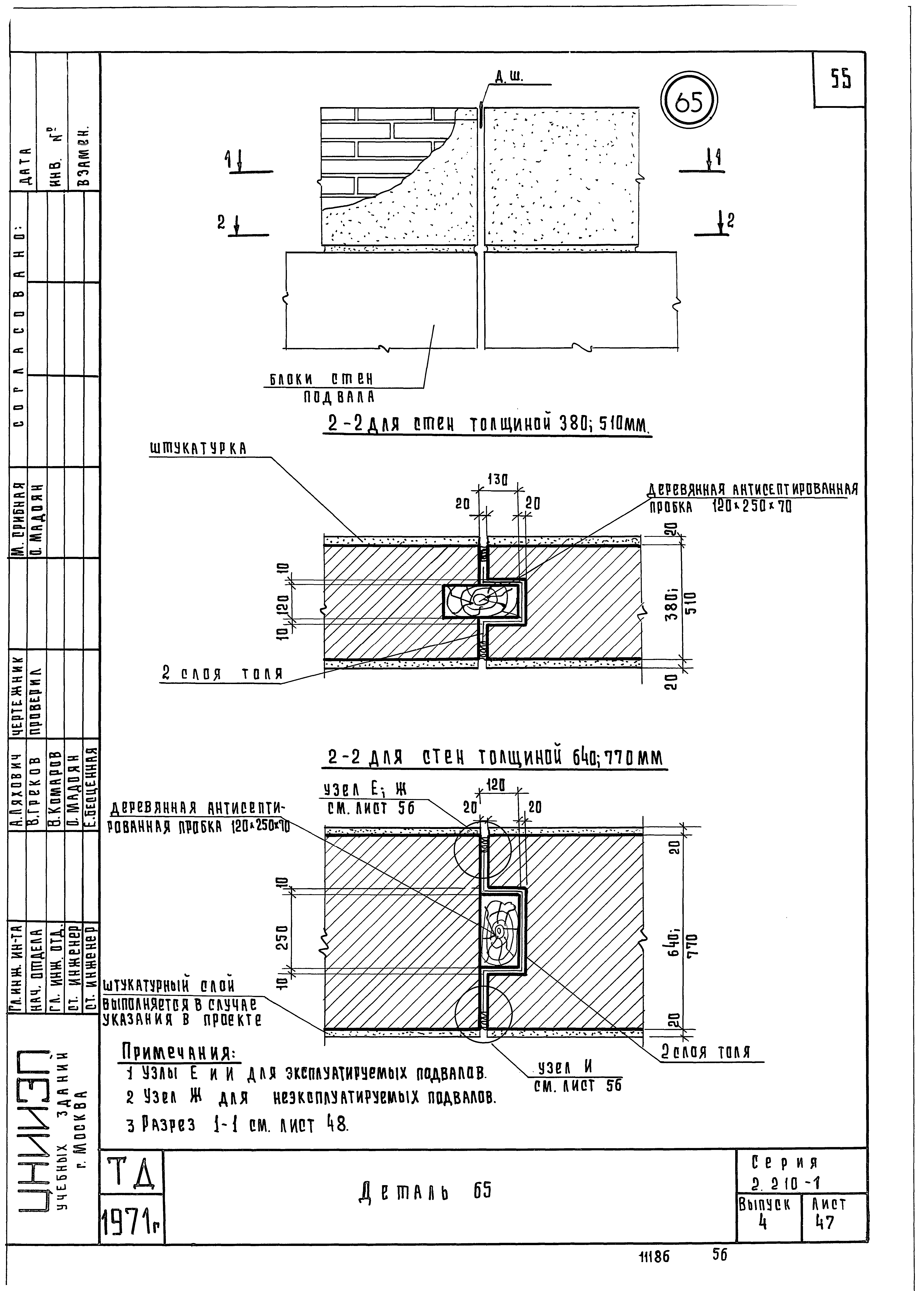
| Оглавление: | Содержание Поясинтельная записка Маркировка деталей выхода в подвал Маркировка деталей световых приямков и деталей. Устройства проемов в стеназ подвала. Маркировка деталей загрузочных люков Маркировка деталей ввода коммуникаций Маркировка деталей облицовки на цокольной части здания Маркировка деталей деформационного шва на наружной стене подвала Маркировка деталей деформации шва в наружной стене подвала во внутреннем углу здания Маркировка деталей деформациионного шва во внутренней стене подвала Детали 1 и 2 Детали 3 и 4 Детали 5 и 6. Узел "А" Детали 7 и 8 Деталь 9 Детали 10 и 11 Детали 12 и 13 Деталь 14 Детали 15; 16; 17 Детали 18 и 19 Детали 20 и 21 Детали 22 и 23 Детали 24; 25; 26 Детали 27 и 28 Детали 29 и 30 Деталь 31 Деталь 31. Узел Б Деталь 32 Деталь 33 Деталь 33. Узел В Деталь 34 Деталь 35 Деталь 36 Деталь 37 Деталь 38 Деталь 39 Детали 38 и 39. Разрез 2-2 Деталь 40 Деталь 40. Разрез 2-2 Детали 41-47 Детали 48 и 49 Деталь 48. Узлы Г и Д Детали 50-55 Детали 56-63 Варианты раскладки облицовочных керамических плиток Детали 64 и 73 Деталь 65 Деталь 66 Детали 67 и 74 Деталь 68 Деталь 69 Деталь 70 Деталь 71 Деталь72 Устройство окрасочной гидроизоляции Узлы Е; Ж; И; К Металлические монтажные детали |
| Разработан: | ЦНИИЭП учебных зданий Госгражданстроя |
| Утверждён: | 10.08.1971 Государственный комитет по гражданскому строительству и архитектуре при Госстрое СССР (150) |
| Расположен в: | |
| Нормативные ссылки: |

































































