| ||||||||||||||||||||||||||||
Скачать Серия 1.090.1-3пв Выпуск 1-1. Панели наружных стен нулевого цикла однослойные для сборного варианта. Рабочие чертежиДата актуализации: 10.08.2017
|
| Обозначение: | Серия 1.090.1-3пв |
| Обозначение англ: | Series 1.090.1-3пв |
| Статус: | не определен законодательством |
| Название рус.: | Выпуск 1-1. Панели наружных стен нулевого цикла однослойные для сборного варианта. Рабочие чертежи |
| Дата добавления в базу: | 01.09.2013 |
| Дата актуализации: | 05.05.2017 |
| Дата введения: | 01.01.1985 |
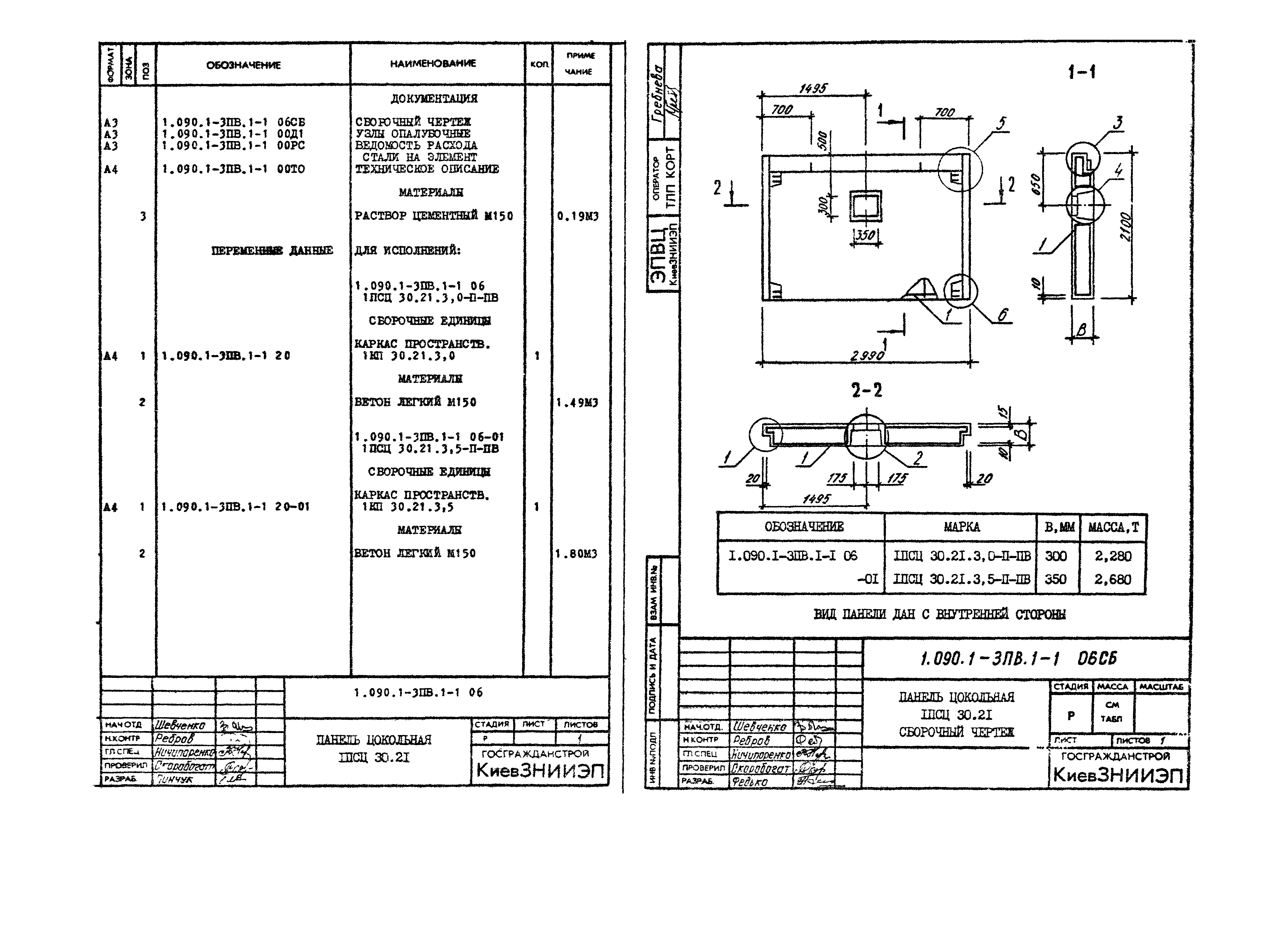
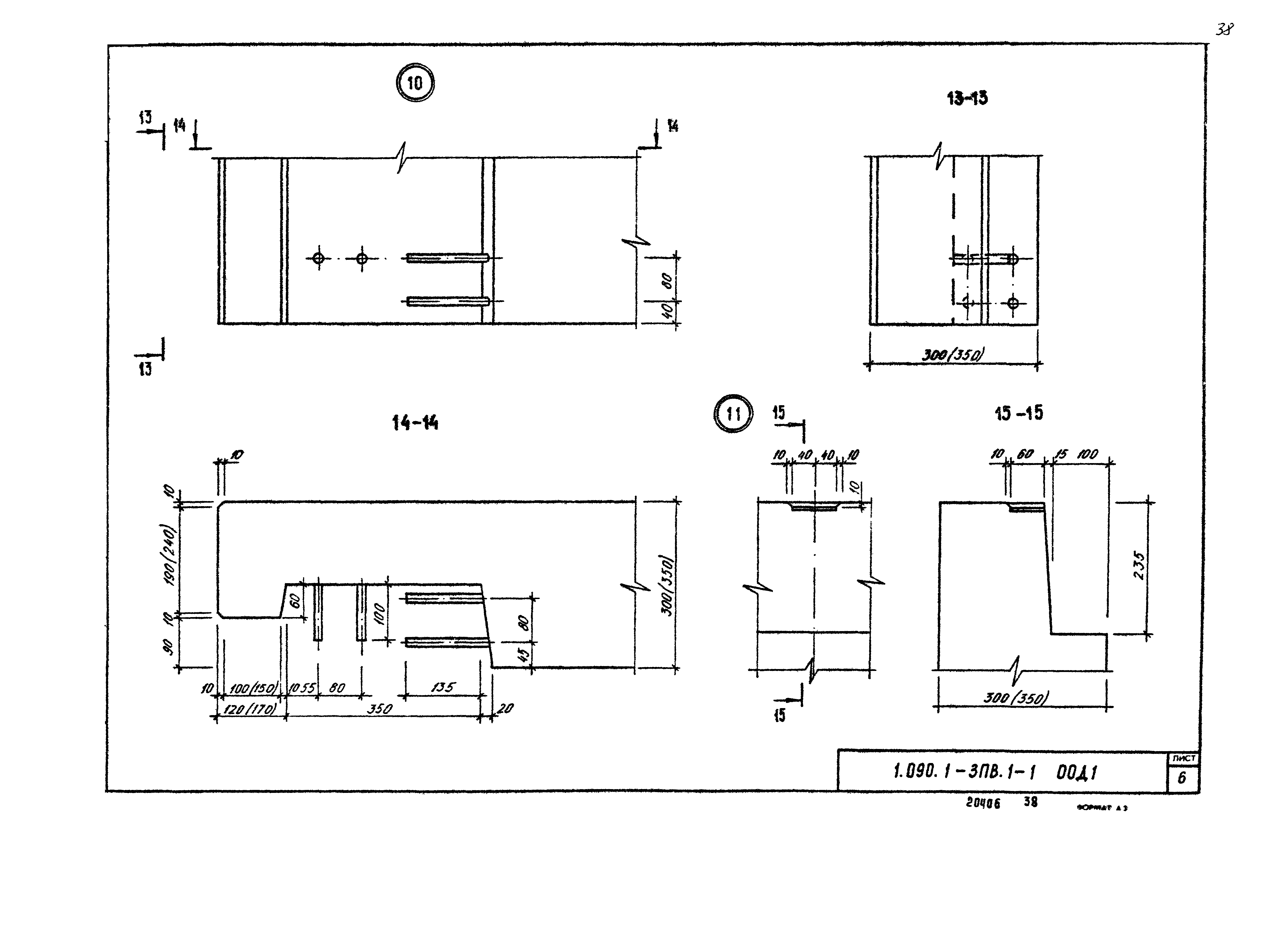
| Оглавление: | 1.090.1-3ПВ.1-1-000 Содержание 1.090.1-3ПВ.1-1-00ТО Техническое описание 1.090.1-3ПВ.1-1-01 Панель цокольная ПСЦ60.21 1.090.1-3ПВ.1-1-02 Панель цокольная ПСЦ30.21 1.090.1-3ПВ.1-1-03 Панель цокольная ПСЦ18.21 1.090.1-3ПВ.1-1-04 Панель цокольная ПСЦ12.21 1.090.1-3ПВ.1-1-05 Панель цокольная 1ПСЦ60.21 1.090.1-3ПВ.1-1-06 Панель цокольная 1ПСЦ30.21 1.090.1-3ПВ.1-1-07 Панель цокольная 2ПСЦ30.21 1.090.1-3ПВ.1-1-08 Панель цокольная 1ПСЦ29.21,2ПСЦ29.21 1.090.1-3ПВ.1-1-09 Панель цокольная 1ПСЦ17.21,2ПСЦ17.21 1.090.1-3ПВ.1-1-10 Панель цокольная 1ПСЦ11.21,2ПСЦ11.21 1.090.1-3ПВ.1-1-11 Панель цокольная ПСЦ28.21 1.090.1-3ПВ.1-1-12 Панель цокольная 1ПСЦ33.21,2ПСЦ33.21 1.090.1-3ПВ.1-1-13 Панель цокольная 1ПСЦ21.21,2ПСЦ21.21 1.090.1-3ПВ.1-1-14 Панель цокольная 1ПСЦ15.21,2ПСЦ15.21 1.090.1-3ПВ.1-1-00Д1 Узлы опалубочные 1.090.1-3ПВ.1-1-15 Каркас пространственный КП60.21 1.090.1-3ПВ.1-1-16 Каркас пространственный КП30.21 1.090.1-3ПВ.1-1-17 Каркас пространственный КП18.21 1.090.1-3ПВ.1-1-18 Каркас пространственный КП12.21 1.090.1-3ПВ.1-1-19 Каркас пространственный 1КП60.21 1.090.1-3ПВ.1-1-20 Каркас пространственный 1КП30.21 1.090.1-3ПВ.1-1-21 Каркас пространственный 2КП30.21 1.090.1-3ПВ.1-1-22 Каркас пространственный 1КП29.21,2КП29.21 1.090.1-3ПВ.1-1-23 Каркас пространственный 1КП17.21,2КП17.21 1.090.1-3ПВ.1-1-24 Каркас пространственный 1КП11.21,2КП11.21 1.090.1-3ПВ.1-1-25 Каркас пространственный КП28.21 1.090.1-3ПВ.1-1-26 Каркас пространственный 1КП33.21,2КП33.21 1.090.1-3ПВ.1-1-27 Каркас пространственный 1КП21.21,2КП21.21 1.090.1-3ПВ.1-1-28 Каркас пространственный 1КП15.21,2КП15.21 1.090.1-3ПВ.1-1-00Д2 Узлы арматурные 1.090.1-3ПВ.1-1-29 Каркас плоский КР1-КР4 1.090.1-3ПВ.1-1-30 Каркас плоский КР5-КР7 1.090.1-3ПВ.1-1-31 Каркас плоский КР8-КР11 1.090.1-3ПВ.1-1-32 Каркас плоский КР12,КР13 1.090.1-3ПВ.1-1-33 Сетка С1-С3 1.090.1-3ПВ.1-1-34 Сетка С4,С5 1.090.1-3ПВ.1-1-35 Сетка С6 1.090.1-3ПВ.1-1-36 Изделие закладное МН1-МН3 1.090.1-3ПВ.1-1-37 Петля строповочная ПС1-ПС6 1.090.1-3ПВ.1-1-38 Стержень гнутый АН1,АН2 1.090.1-3ПВ.1-1-39 Стержень отдельный ОС1-ОС4 1.090.1-3ПВ.1-1-40 Стержень отдельный ОС5-ОС8 1.090.1-3ПВ.1-1-00РС Ведомость расхода стали на элемент, кг |
| Разработан: | КиевЗНИИЭП ЦНИИЭП торгово-бытовых зданий и туристских комплексов |
| Утверждён: | 01.11.1984 Госстрой СССР (Государственный комитет Совета Министров СССР по делам строительства) (USSR Gosstroy ИИ-32) |
| Издан: | ЦИТП Госстроя СССР (CITP, Gosstroy (USSR) 1985 г. ) |
| Расположен в: |























































































