| ||||||||||||||||||||||||||||
Скачать Серия 1.090.1-7с Выпуск 7-1. Монтажные узлы с панелями наружных стен однослойными толщиной 300 мм для применения в районах сейсмичностью 7, 8 и 9 баллов. Рабочие чертежиДата актуализации: 10.08.2017
|
| Обозначение: | Серия 1.090.1-7с |
| Обозначение англ: | Series 1.090.1-7с |
| Статус: | не определен законодательством |
| Название рус.: | Выпуск 7-1. Монтажные узлы с панелями наружных стен однослойными толщиной 300 мм для применения в районах сейсмичностью 7, 8 и 9 баллов. Рабочие чертежи |
| Дата добавления в базу: | 01.09.2013 |
| Дата актуализации: | 05.05.2017 |
| Дата введения: | 01.03.1991 |
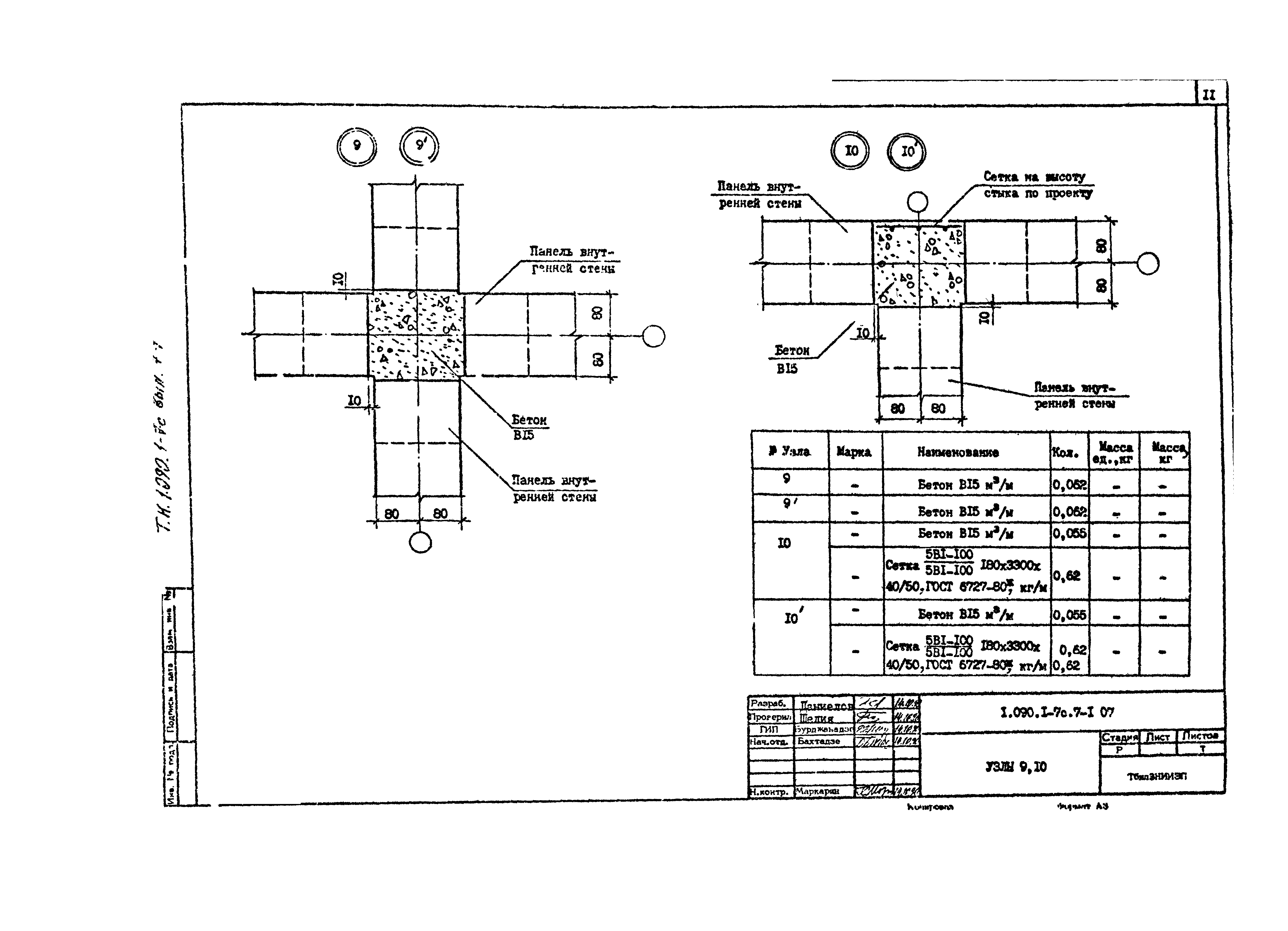
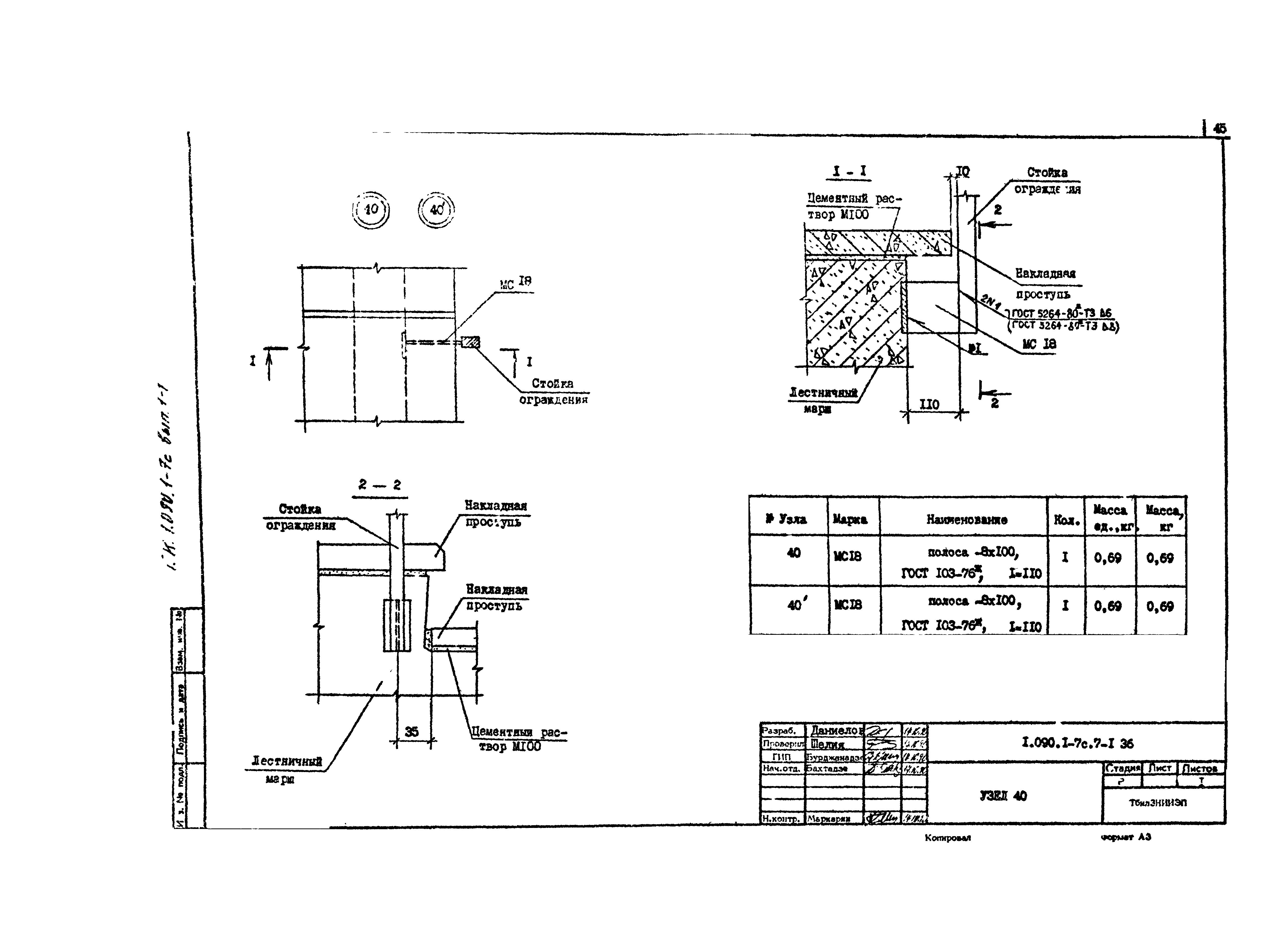
| Оглавление: | 1.090.1-7С.7-1 Содержание 1.090.1-7С.7-1-ТТ Технические требования 1.090.1-7С.7-1-01 Узел 1 1.090.1-7С.7-1-02 Узел 2 1.090.1-7С.7-1-03 Узел 3,4 1.090.1-7С.7-1-04 Узел 5 1.090.1-7С.7-1-05 Узел 6 1.090.1-7С.7-1-06 Узел 7,8 1.090.1-7С.7-1-07 Узел 9,10 1.090.1-7С.7-1-08 Узел 11,12 1.090.1-7С.7-1-09 Узел 13 1.090.1-7С.7-1-10 Узел 14 1.090.1-7С.7-1-11 Узел 15 1.090.1-7С.7-1-12 Узел 16 1.090.1-7С.7-1-13 Узел 17 1.090.1-7С.7-1-14 Узел 18 1.090.1-7С.7-1-15 Узел 19 1.090.1-7С.7-1-16 Узел 20 1.090.1-7С.7-1-17 Узел 21 1.090.1-7С.7-1-18 Узел 22 1.090.1-7С.7-1-19 Узел 23 1.090.1-7С.7-1-20 Узел 24 1.090.1-7С.7-1-21 Узел 25 1.090.1-7С.7-1-22 Узел 26 1.090.1-7С.7-1-23 Узел 27 1.090.1-7С.7-1-24 Узел 28 1.090.1-7С.7-1-25 Узел 29 1.090.1-7С.7-1-26 Узел 30 1.090.1-7С.7-1-27 Узел 31 1.090.1-7С.7-1-28 Узел 32 1.090.1-7С.7-1-29 Узел 33 1.090.1-7С.7-1-30 Узел 34 1.090.1-7С.7-1-31 Узел 35 1.090.1-7С.7-1-32 Узел 36 1.090.1-7С.7-1-33 Узел 37 1.090.1-7С.7-1-34 Узел 38 1.090.1-7С.7-1-35 Узел 39 1.090.1-7С.7-1-36 Узел 40 1.090.1-7С.7-1-37 Узел 41 1.090.1-7С.7-1-38 Узел 42 1.090.1-7С.7-1-39 Узел 43 1.090.1-7С.7-1-40 Узел 44 1.090.1-7С.7-1-41 Узел 45 1.090.1-7С.7-1-42 Узел 46 1.090.1-7С.7-1-43 Узел 47 1.090.1-7С.7-1-44 Узел 48 1.090.1-7С.7-1-45 Изделие соединительное |
| Разработан: | ТбилЗНИИЭП |
| Утверждён: | 20.11.1990 Госкомархитектура (209) |
| Расположен в: | |
| Заменяет собой: |






















































