| ||||||||||||||||||||||||||||
Скачать Серия 1.090.1-7с Выпуск 2-4. Панели наружных стен однослойные толщиной 300 мм для применения в районах сейсмичностью 9 баллов. Рабочие чертежиДата актуализации: 10.08.2017
|
| Обозначение: | Серия 1.090.1-7с |
| Обозначение англ: | Series 1.090.1-7с |
| Статус: | не определен законодательством |
| Название рус.: | Выпуск 2-4. Панели наружных стен однослойные толщиной 300 мм для применения в районах сейсмичностью 9 баллов. Рабочие чертежи |
| Дата добавления в базу: | 01.09.2013 |
| Дата актуализации: | 05.05.2017 |
| Дата введения: | 01.03.1991 |
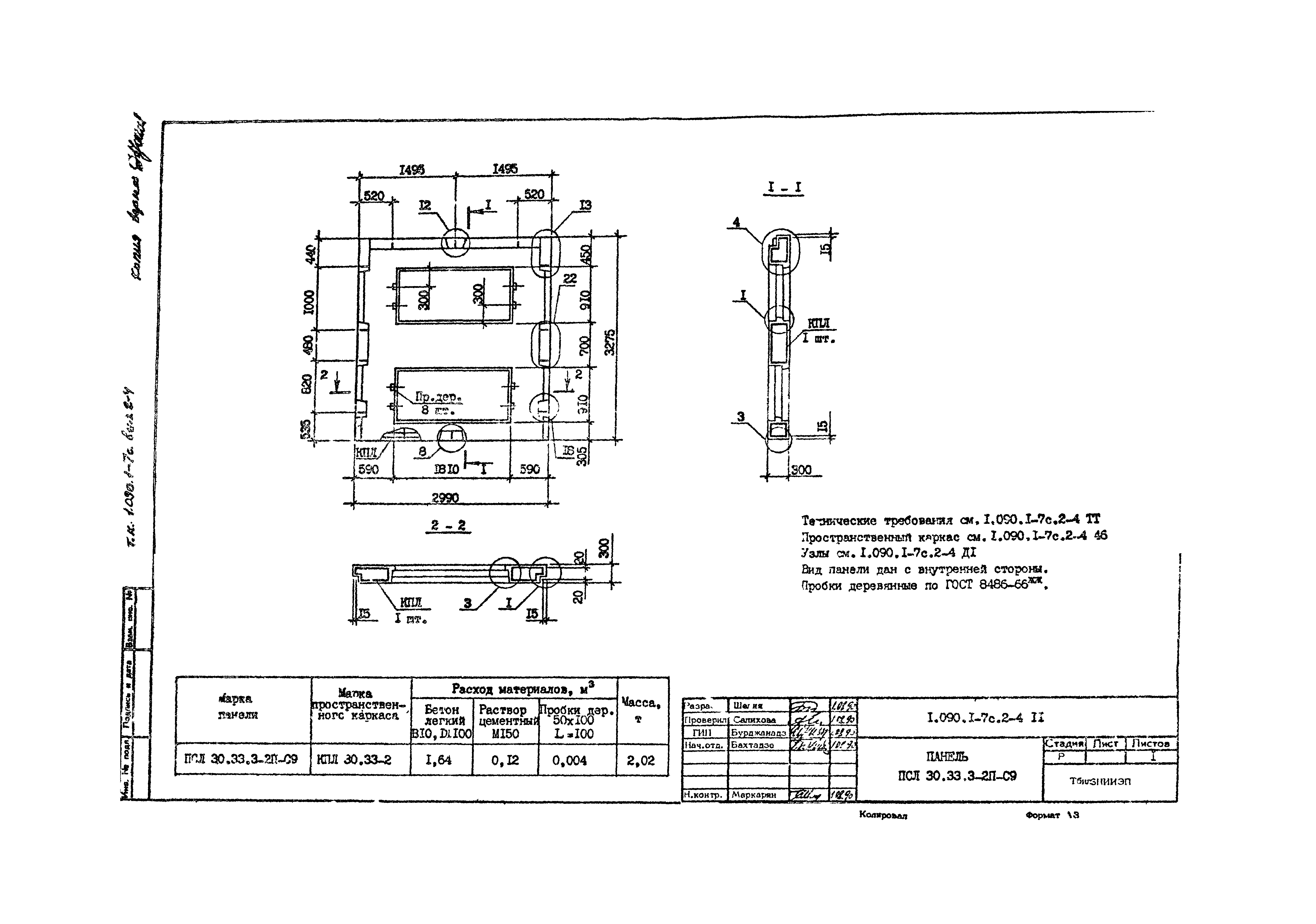
| Оглавление: | 1.090.1-7С.2-4-ТТ Технические требования 1.090.1-7С.2-4-01 Панель 1ПСО30.33.3-1П-С9,1ПСО30.33.3-2П-С9,2ПСО30.33.3-1П-С9,2ПСО30.33.3-2П-С9 1.090.1-7С.2-4-02 Панель 3ПСО30.33.3-1П-С9,3ПСО30.33.3-2П-С9,4ПСО30.33.3-1П-С9,4ПСО30.33.3-2П-С9 1.090.1-7С.2-4-03 Панель 5ПСО30.33.3-2П-С9 1.090.1-7С.2-4-04 Панель 6ПСО30.33.3-2П-С9,7ПСО30.33.3-2П-С9 1.090.1-7С.2-4-05 Панель 1ПСО32.33.3-1П-С9,1ПСО32.33.3-2П-С9 1.090.1-7С.2-4-06 Панель 2ПСО32.33.3-1П-С9,2ПСО32.33.3-2П-С9 1.090.1-7С.2-4-07 Панель 1ПСО60.33.3-1П-С9,1ПСО60.33.3-2П-С9,2ПСО60.33.3-1П-С9,2ПСО60.33.3-2П-С9 1.090.1-7С.2-4-08 Панель 3ПСО60.33.3-1П-С9,3ПСО60.33.3-2П-С9 1.090.1-7С.2-4-09 Панель 1ПСБ30.33.3-1П-С9,1ПСБ30.33.3-2П-С9 1.090.1-7С.2-4-10 Панель 2ПСБ30.33.3-1П-С9,2ПСБ30.33.3-2П-С9 1.090.1-7С.2-4-11 Панель ПСЛ30.33.3-2П-С9 1.090.1-7С.2-4-12 Панель 1ПСД30.33.3-2П-С9,2ПСД30.33.3-2П-С9 1.090.1-7С.2-4-13 Панель 3ПСД30.33.3-2П-С9 1.090.1-7С.2-4-14 Панель 4ПСД30.33.3-1П-С9,4ПСД30.33.3-2П-С9 1.090.1-7С.2-4-15 Панель ПСД30.33.3-2П-С9 1.090.1-7С.2-4-16 Панель ПС30.33.3-П-С9,ПС24.33.3-П-С9 1.090.1-7С.2-4-17 Панель ПС18.33.3-П-С9 1.090.1-7С.2-4-18 Панель ПС12.33.3-П-С9 1.090.1-7С.2-4-19 Панель ПС30.16.3-П-С9 1.090.1-7С.2-4-20 Панель 1ПС32.33.3-П-С9 1.090.1-7С.2-4-21 Панель 2ПС33.33.3-П-С9 1.090.1-7С.2-4-22 Панель 1ПС14.33.3-П-С9 1.090.1-7С.2-4-23 Панель 2ПС14.33.3-П-С9 1.090.1-7С.2-4-24 Панель ПСД60.10.3-П-С9 1.090.1-7С.2-4-25 Панель ПСП30.10.3-П-С9 1.090.1-7С.2-4-26 Панель ПСП18.10.3-П-С9 1.090.1-7С.2-4-27 Панель ПСП12.10.3-П-С9 1.090.1-7С.2-4-28 Панель 1ПСП32.10.3-П-С9 1.090.1-7С.2-4-29 Панель 2ПСП32.10.3-П-С9 1.090.1-7С.2-4-30 Панель 1ПСП14.10.3-П-С9 1.090.1-7С.2-4-31 Панель 2ПСП14.10.3-П-С9 1.090.1-7С.2-4-Д1 Узлы опалубочные 1.090.1-7С.2-4-32 Каркас пространственный 1КПО30.33-1,1КПО30.33-2 1.090.1-7С.2-4-33 Каркас пространственный 2КПО30.33-1,2КПО30.33-2 1.090.1-7С.2-4-34 Каркас пространственный 3КПО30.33-1,3КПО30.33-2 1.090.1-7С.2-4-35 Каркас пространственный 4КПО30.33-1,4КПО30.33-2 1.090.1-7С.2-4-36 Каркас пространственный 5КПО30.33-2 1.090.1-7С.2-4-37 Каркас пространственный 6КПО30.33-2 1.090.1-7С.2-4-38 Каркас пространственный 7КПО30.33-2 1.090.1-7С.2-4-39 Каркас пространственный 1КПО32.33-1,1КПО32.33-2 1.090.1-7С.2-4-40 Каркас пространственный 2КПО32.33-1,2КПО32.33-2 1.090.1-7С.2-4-41 Каркас пространственный 1КПО60.33-1,1КПО60.33-2 1.090.1-7С.2-4-42 Каркас пространственный 2КПО60.33-1,2КПО60.33-2 1.090.1-7С.2-4-43 Каркас пространственный 3КПО60.33-1,3КПО60.33-2 1.090.1-7С.2-4-44 Каркас пространственный 1КПБ30.33-1,1КПБ30.33-2 1.090.1-7С.2-4-45 Каркас пространственный 2КПБ30.33-1,2КПБ30.33-2 1.090.1-7С.2-4-46 Каркас пространственный 2КПЛ30.33-2 1.090.1-7С.2-4-47 Каркас пространственный 1КПД30.33-2 1.090.1-7С.2-4-48 Каркас пространственный 2КПД30.33-2 1.090.1-7С.2-4-49 Каркас пространственный 3КПД30.33-2 1.090.1-7С.2-4-50 Каркас пространственный 4КПД30.33-1,4КПД30.33-2 1.090.1-7С.2-4-51 Каркас пространственный КПД30.33-2 1.090.1-7С.2-4-52 Каркас пространственный КП30.33 1.090.1-7С.2-4-53 Каркас пространственный КП24.33 1.090.1-7С.2-4-54 Каркас пространственный КП18.33 1.090.1-7С.2-4-55 Каркас пространственный КП12.33 1.090.1-7С.2-4-56 Каркас пространственный КП30.16 1.090.1-7С.2-4-57 Каркас пространственный 1КП32.33 1.090.1-7С.2-4-58 Каркас пространственный 2КП32.33 1.090.1-7С.2-4-59 Каркас пространственный 1КП14.33 1.090.1-7С.2-4-60 Каркас пространственный 2КП14.33 1.090.1-7С.2-4-61 Каркас пространственный КПП60.10 1.090.1-7С.2-4-62 Каркас пространственный КПП30.10 1.090.1-7С.2-4-63 Каркас пространственный КПП18.10 1.090.1-7С.2-4-64 Каркас пространственный КПП12.10 1.090.1-7С.2-4-65 Каркас пространственный 1КПП32.10 1.090.1-7С.2-4-66 Каркас пространственный 2КПП32.10 1.090.1-7С.2-4-67 Каркас пространственный 1КПП14.10 1.090.1-7С.2-4-68 Каркас пространственный 2КПП14.10 1.090.1-7С.2-4-Д2 Узлы арматурные 1.090.1-7С.2-4-69 Каркас укрупнительной сборки СКР1...СКР4,СКР8 1.090.1-7С.2-4-70 Каркас укрупнительной сборки СКР5,СКР9 1.090.1-7С.2-4-71 Каркас укрупнительной сборки СКР6,СКР7 1.090.1-7С.2-4-72 Каркас КР1...КР3 1.090.1-7С.2-4-73 Каркас КР4...КР11 1.090.1-7С.2-4-74 Каркас КР12...КР17 1.090.1-7С.2-4-75 Сетка С1...С4 1.090.1-7С.2-4-76 Сетка С5...С7 1.090.1-7С.2-4-77 Сетка С8...С15 1.090.1-7С.2-4-78 Сетка С16...С22 1.090.1-7С.2-4-79 Изделие закладное МН1...МН3 1.090.1-7С.2-4-80 Изделие закладное МН4,МН5 1.090.1-7С.2-4-81 Изделие закладное МН6,МН7 1.090.1-7С.2-4-82 Стержень анкерный АН1...АН5 1.090.1-7С.2-4-83 Петля строповочная СП1...СП6 1.090.1-7С.2-4-РС Ведомость расхода стали |
| Разработан: | ТбилЗНИИЭП |
| Утверждён: | 20.11.1990 Госкомархитектура (209) |
| Расположен в: | |
| Заменяет собой: |










































































































