| ||||||||||||||||||||||||||
Скачать Серия 1.090.1-7с Выпуск 2-6. Панели наружных стен трехслойные на жестких связях толщиной 400 мм для применения в районах сейсмичностью 9 баллов. Рабочие чертежиДата актуализации: 10.08.2017
|
| Обозначение: | Серия 1.090.1-7с |
| Обозначение англ: | Series 1.090.1-7с |
| Статус: | не определен законодательством |
| Название рус.: | Выпуск 2-6. Панели наружных стен трехслойные на жестких связях толщиной 400 мм для применения в районах сейсмичностью 9 баллов. Рабочие чертежи |
| Дата добавления в базу: | 01.09.2013 |
| Дата актуализации: | 05.05.2017 |
| Дата введения: | 01.02.1992 |
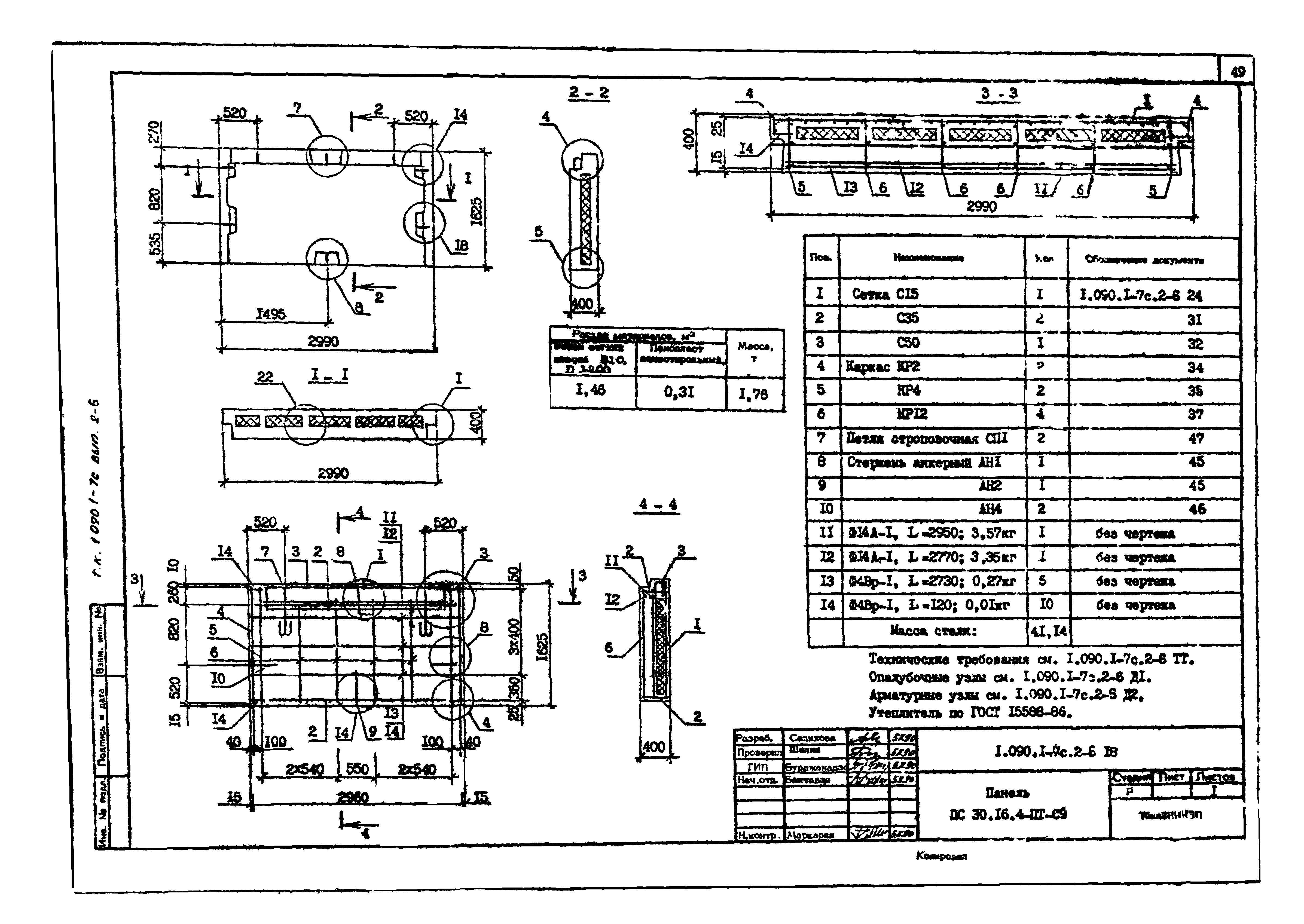
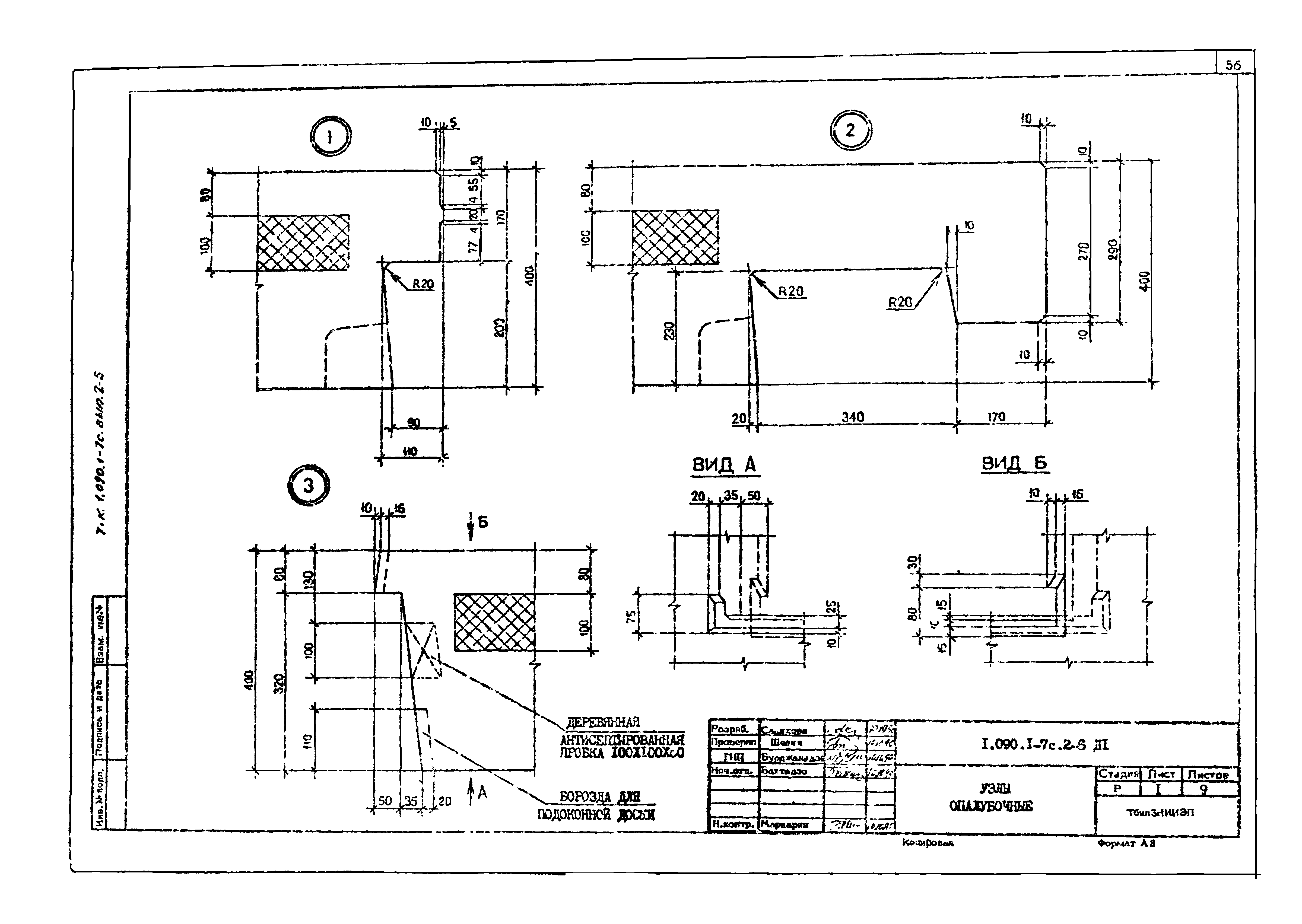
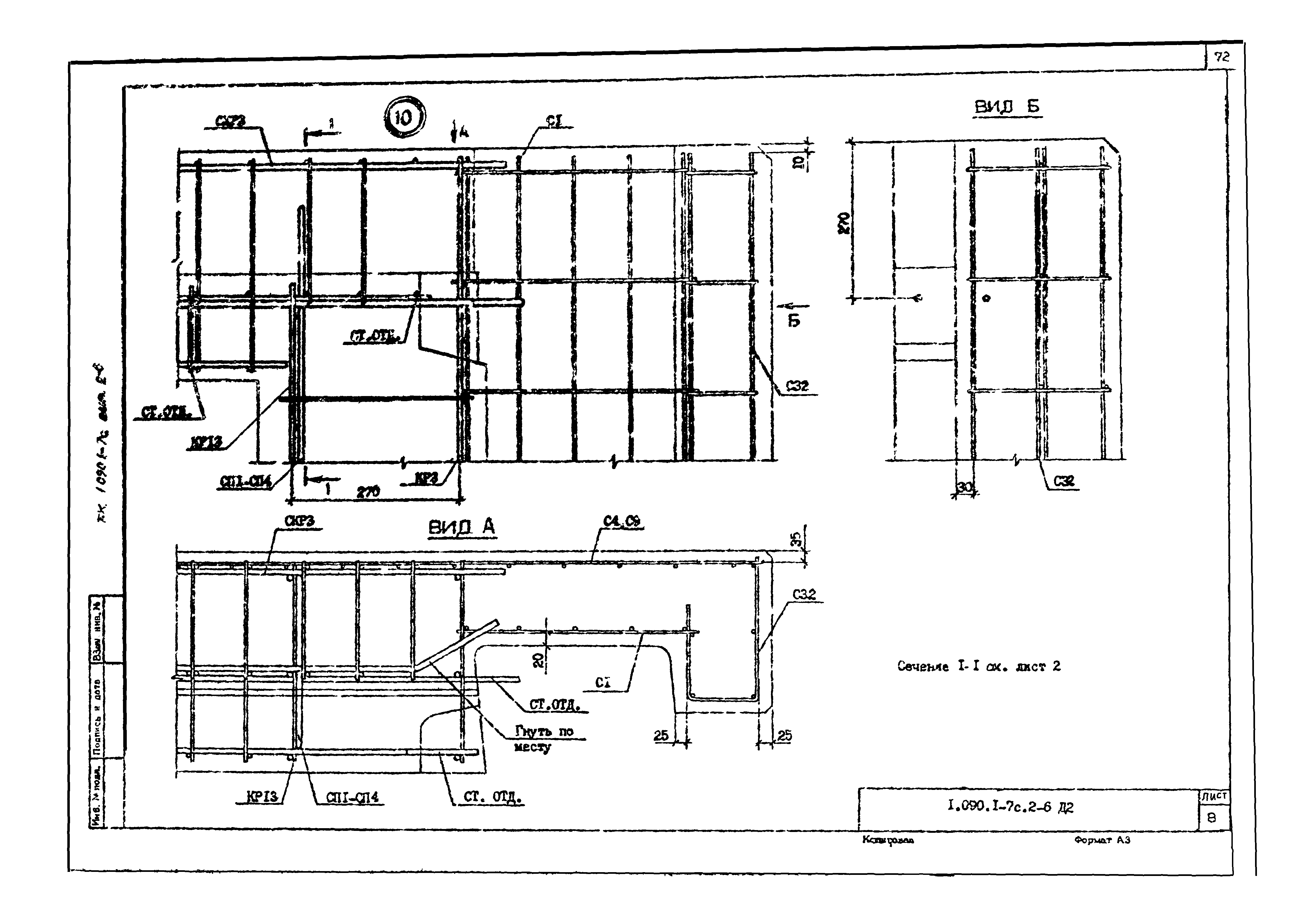
| Оглавление: | 1.090.1-А.2-6-ТТ Технические требования 1.090.1-А.2-6-01 Панель 1ПСО30.33.4-1ПТ-С9,1ПСО30.33.4-2ПТ-С9,2ПСО30.33.4-1ПТ-С9,2ПСО30.33.4-2ПТ-С9 1.090.1-А.2-6-02 Панель 3ПСО30.33.4-1ПТ-С9,3ПСО30.33.4-2ПТ-С9,4ПСО30.33.4-1ПТ-С9,4ПСО30.33.4-2ПТ-С10 1.090.1-А.2-6-03 Панель 5ПСО30.33.4-2ПТ-С9 1.090.1-А.2-6-04 Панель 6ПСО30.33.4-2ПТ-С9 1.090.1-А.2-6-05 Панель 7ПСО30.33.4-2ПТ-С9 1.090.1-А.2-6-06 Панель 1ПСО33.33.4-1ПТ-С9,1ПСО33.33.4-2ПТ-С9 1.090.1-А.2-6-07 Панель 2ПСО33.33.4-1ПТ-С9,2ПСО33.33.4-2ПТ-С9 1.090.1-А.2-6-08 Панель 1ПСО60.33.4-1ПТ-С9,1ПСО60.33.4-2ПТ-С9,2ПСО60.33.4-1ПТ-С9,2ПСО60.33.4-2ПТ-С9 1.090.1-А.2-6-09 Панель 3ПСО60.33.4-1ПТ-С9,3ПСО60.33.4-2ПТ-С9 1.090.1-А.2-6-10 Панель 1ПСБ30.33.4-1ПТ-С9,1ПСБ30.33.4-2ПТ-С9,2ПСБ30.33.4-1ПТ-С9,2ПСБ30.33.4-2ПТ-С9 1.090.1-А.2-6-11 Панель ПСЛ30.33.4-2ПТ-С9 1.090.1-А.2-6-12 Панель 1ПСД30.33.4-2ПТ-С9,2ПСД30.33.4-2ПТ-С9 1.090.1-А.2-6-13 Панель 3ПСД30.33.4-2ПТ-С9 1.090.1-А.2-6-14 Панель 4ПСД30.33.4-1ПТ-С9,4ПСД30.33.4-2ПТ-С9 1.090.1-А.2-6-15 Панель ПСД30.33.4-2ПТ-С9 1.090.1-А.2-6-16 Панель ПСД30.33.4-2ПТ-С9,ПС24.33.4-ПТ-С9,ПС18.33.4-ПТ-С9 1.090.1-А.2-6-17 Панель ПСД12.33.4-2ПТ-С9 1.090.1-А.2-6-18 Панель ПСД30.16.4-ПТ-С9 1.090.1-А.2-6-19 Панель 1ПСД33.33.4-ПТ-С9,2ПС33.33.4-ПТ-С9 1.090.1-А.2-6-20 Панель 1ПС15.33.4-ПТ-С9,2ПС15.33.4-ПТ-С9 1.090.1-А.2-6-Д1 Узлы опалубочные 1.090.1-А.2-6-Д2 Узлы арматурные 1.090.1-А.2-6-21 Каркас укрупнительной сборки СКР1,СКР2,СКР4 1.090.1-А.2-6-22 Каркас укрупнительной сборки СКР3 1.090.1-А.2-6-23 Каркас укрупнительной сборки СКР5 1.090.1-А.2-6-24 Сетка С1...С15 1.090.1-А.2-6-25 Сетка С16...С19 1.090.1-А.2-6-26 Сетка С20,С21 1.090.1-А.2-6-27 Сетка С22...С25 1.090.1-А.2-6-28 Сетка С26...С28 1.090.1-А.2-6-29 Сетка С29...С31 1.090.1-А.2-6-30 Сетка С32,С33 1.090.1-А.2-6-31 Сетка С34...С48 1.090.1-А.2-6-32 Сетка С49...С53 1.090.1-А.2-6-33 Сетка С54...С57 1.090.1-А.2-6-34 Каркас КР1,КР2 1.090.1-А.2-6-35 Каркас КР4 1.090.1-А.2-6-36 Каркас КР3,КР5 1.090.1-А.2-6-37 Каркас КР6...КР12,КР14 1.090.1-А.2-6-38 Каркас КР13,КР15 1.090.1-А.2-6-39 Каркас КР16...КР18 1.090.1-А.2-6-40 Каркас КР19 1.090.1-А.2-6-41 Каркас КР20...КР25 1.090.1-А.2-6-42 Каркас КР26 1.090.1-А.2-6-43 Изделие закладное МН1 1.090.1-А.2-6-44 Изделие закладное МН2 1.090.1-А.2-6-45 Стержень анкерный АН1,АН2 1.090.1-А.2-6-46 Стержень анкерный АН3...АН5 1.090.1-А.2-6-47 Петля строповочная 1.090.1-А.2-6-48 Расход стали |
| Разработан: | ТбилЗНИИЭП |
| Утверждён: | 13.09.1991 Госкомархитектура (128) |
| Расположен в: |































































































