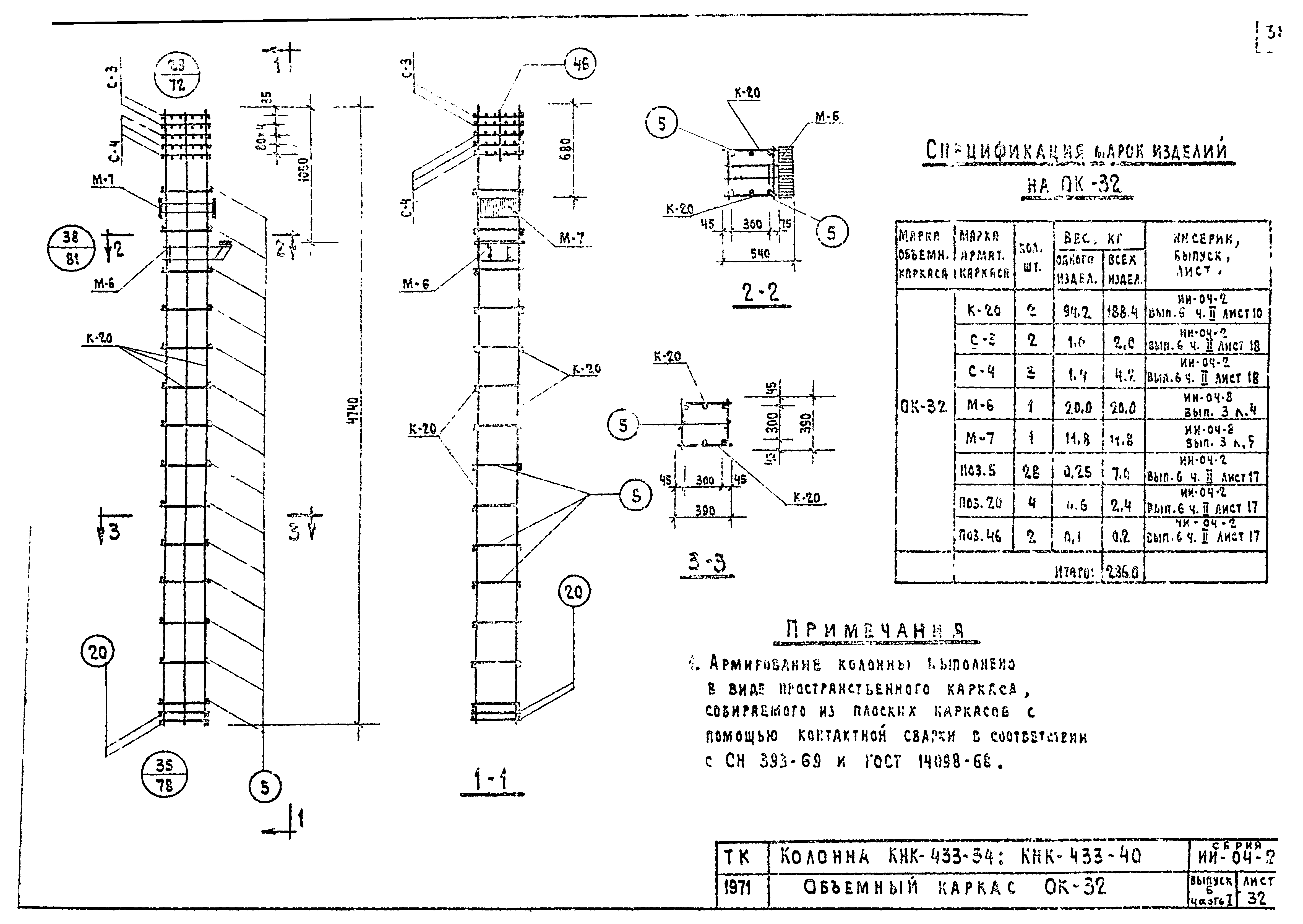
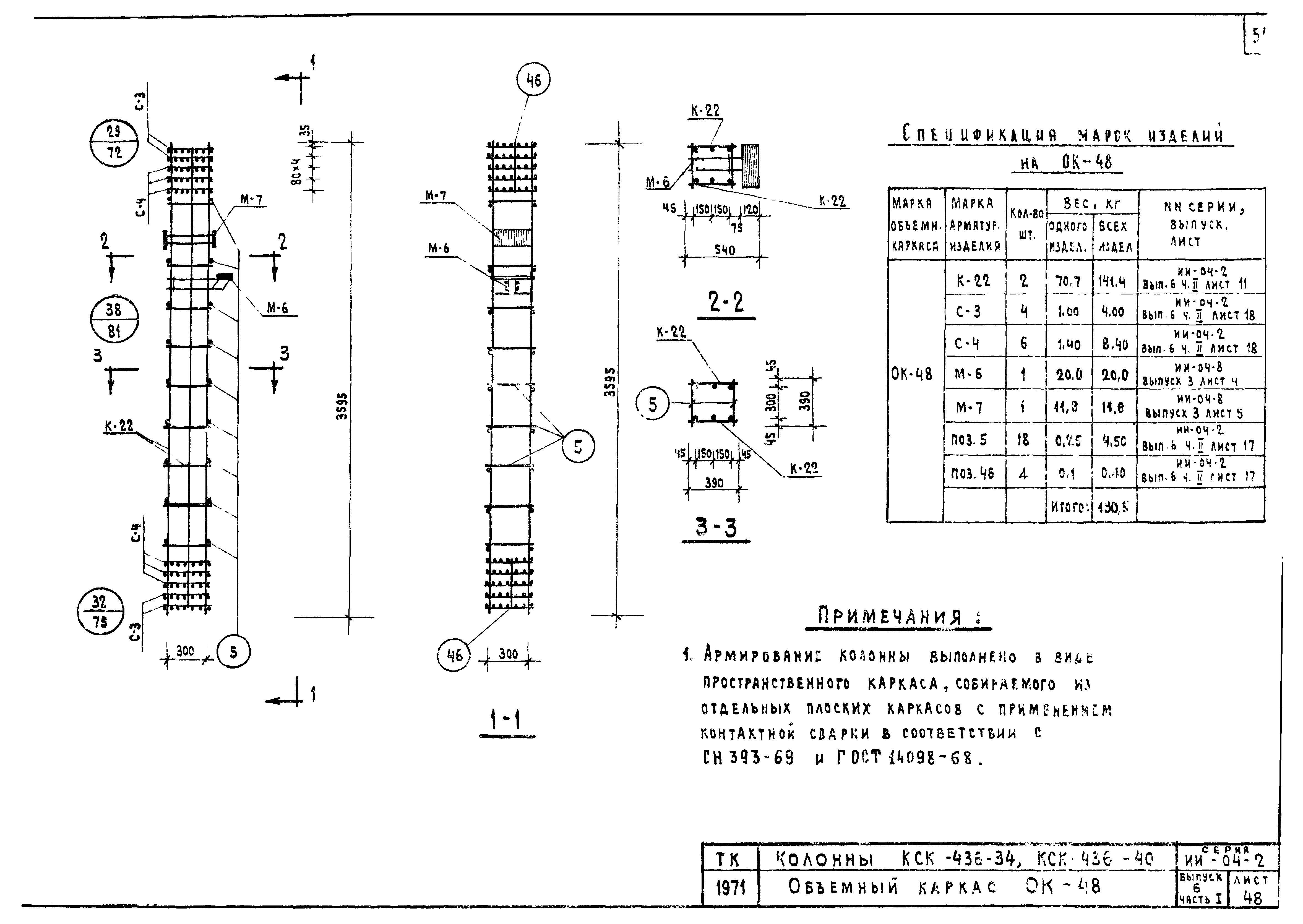
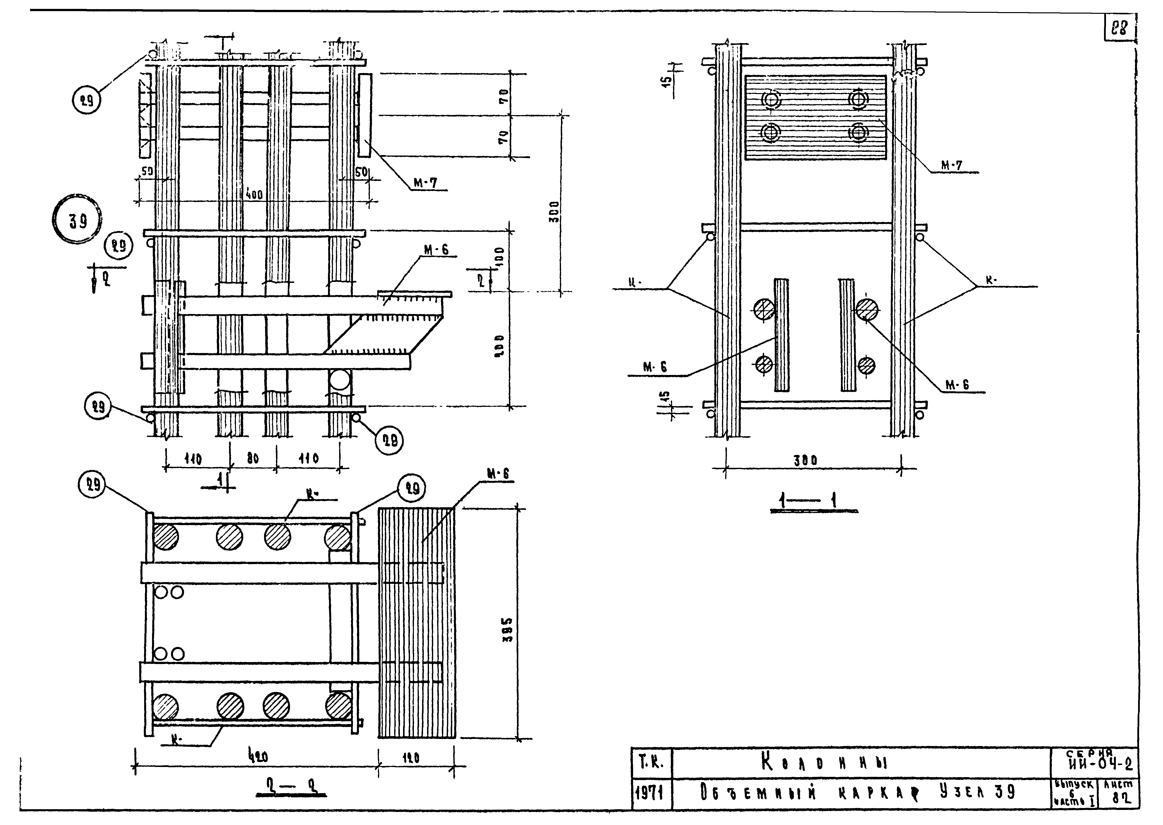
Скачать Серия ИИ-04-2 Выпуск 6. Часть I. Колонны связевого каркаса сечением 40x40 см для зданий с высотой этажа 2,4; 3,3; 3,6 и 4,2 м. Арматурные изделия. Объемные каркасы. Рабочие чертежиДата актуализации: 10.08.2017 Серия ИИ-04-2
Выпуск 6. Часть I. Колонны связевого каркаса сечением 40x40 см для зданий с высотой этажа 2,4; 3,3; 3,6 и 4,2 м. Арматурные изделия. Объемные каркасы. Рабочие чертежиОбозначение: | Серия ИИ-04-2 | Обозначение англ: | Series ИИ-04-2 | Статус: | не действует | Название рус.: | Выпуск 6. Часть I. Колонны связевого каркаса сечением 40x40 см для зданий с высотой этажа 2,4; 3,3; 3,6 и 4,2 м. Арматурные изделия. Объемные каркасы. Рабочие чертежи | Дата добавления в базу: | 01.09.2013 | Дата актуализации: | 05.05.2017 | Дата окончания срока действия: | 01.04.1982 | Разработан: | НИИЖБ Госстроя СССР ЦНИИЭП торгово-бытовых зданий и туристских комплексов
| Утверждён: | 26.01.1972 Государственный комитет по гражданскому строительству и архитектуре при Госстрое СССР (9)
| Расположен в: |
| Чем заменён: | |
                                                                                           
|