| ||||||||||||||||||||||||||
Скачать Серия 1.222.5-1 Выпуск 2. Двухшарнирные рамы с защемленными стойками и шарнирно-опертыми ригелями пролетом 9, 12, 15, 18, 21, 24 м, шаг 3 м. Рабочие чертежиДата актуализации: 10.08.2017
|
| Обозначение: | Серия 1.222.5-1 |
| Обозначение англ: | Series 1.222.5-1 |
| Статус: | не определен законодательством |
| Название рус.: | Выпуск 2. Двухшарнирные рамы с защемленными стойками и шарнирно-опертыми ригелями пролетом 9, 12, 15, 18, 21, 24 м, шаг 3 м. Рабочие чертежи |
| Дата добавления в базу: | 01.09.2013 |
| Дата актуализации: | 05.05.2017 |
| Дата введения: | 01.09.1983 |
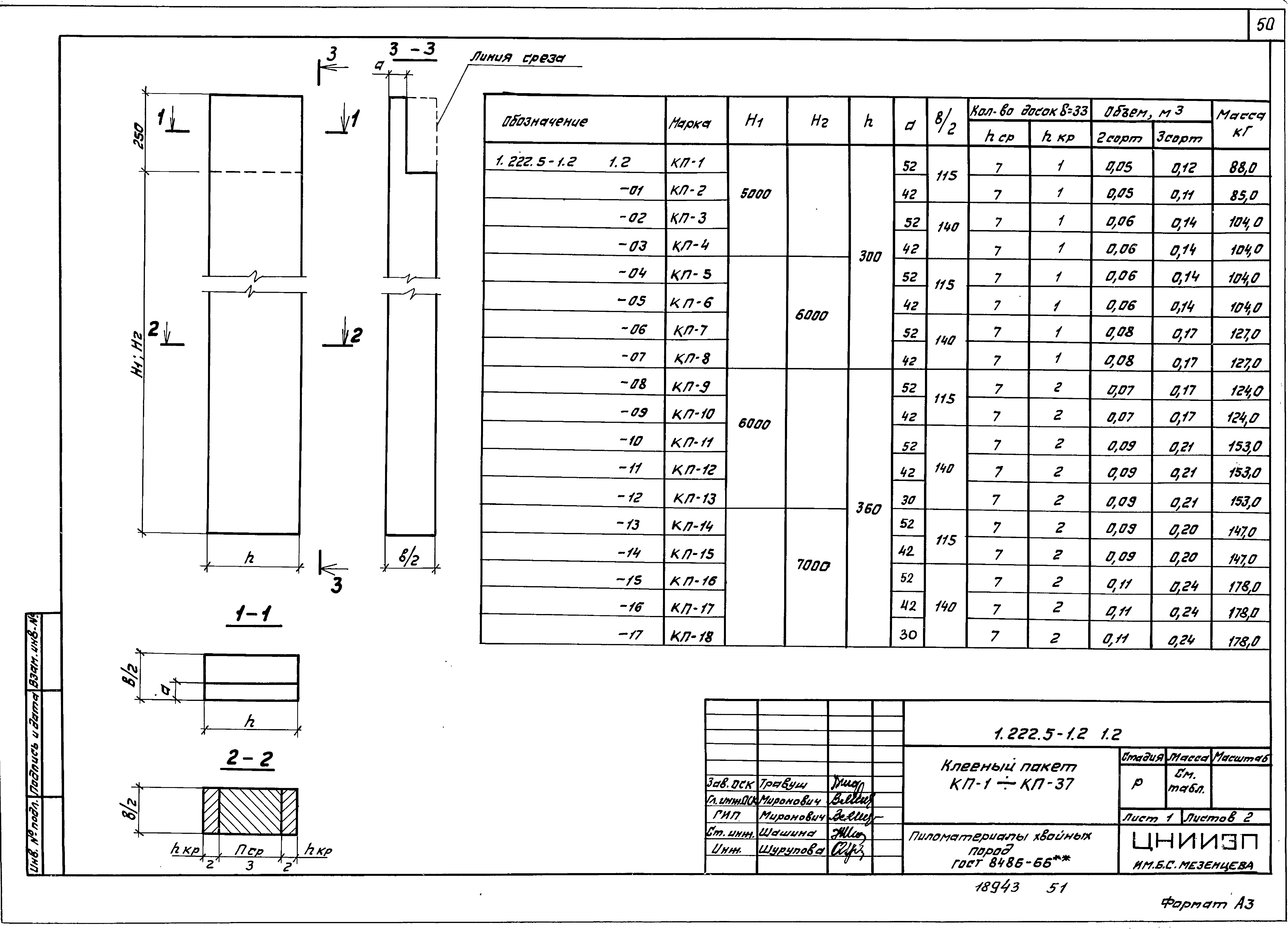
| Оглавление: | 1.222.5-1.2 Содержание 1.222.5-1.2.00ТО Техническое описание 1.222.5-1.2.1 Рама двускатная РД-9-5-750,-1000,-1250÷РД-24-8-600,-750,-1000,-1250 1.222.5-1.2.1.0 СБ Рама двускатная РД-9-5-750,-1000,01250÷РД-2,4-8-600,-750,-1000,-1250. Сборочный чертеж 1.222.5-1.2.1.1 Стойка СТ-1÷СТ-37 1.222.5-1.2.1.1 СБ Стойка СТ-1÷СТ-37. Сборочный чертеж 1.222.5-1.2.1.2 Клееный пакет КП-1÷КП-37 1.222.5-1.2.1.3 Шайба ШМ-1 1.222.5-1.2.1.4 Болт М16х330 1.222.5-1.2.1.5 Клиновая прокладка П-1÷П-29 1.222.5-1.2.2 Рама односкатная РО-9-5-600,-750,-1000,-1250÷Ро-24-8-600,-750,-1000,-1250 1.222.5-1.2.20 СБ Рама односкатная РО-9-5-600,-750,-1000,-1250÷Ро-24-8-600,-750,-1000,-1250. Сборные единицы 1.222.5-1.2.0.0ВРМ Стойка СТ-1÷СТ-37. Ведомость расхода материалов 1.222.5-1.2.0.0ВРМ Рама двускатная РЛ-9-5-750,-1000,-1250÷РД-24-8-600,-750,-1000,-1250. Ведомость расхода материалов 1.222.5-1.2.0.0ВРМ Рама двускатная РЛ-9-5-600,-750,-1000,-1250÷РО-24-8-600,-750,-1000. Ведомость расхода материалов |
| Разработан: | ЦНИИЭП им. Б.С. Мезенцева Госгражданстроя |
| Утверждён: | 21.07.1983 Государственный комитет по гражданскому строительству и архитектуре при Госстрое СССР (218) |
| Расположен в: |















































































