Информационная система
«Ёшкин Кот»

Скачать базу одним архивом
Скачать обновления
История создания базы
Карта сайта

Скачать Серия 2.400-12.93 Выпуск 1. Узлы монтажные. Рабочие чертежи

Дата актуализации: 10.08.2017

Серия 2.400-12.93

Выпуск 1. Узлы монтажные. Рабочие чертежи

Обозначение: Серия 2.400-12.93
Обозначение англ: Series 2.400-12.93
Статус:не определен законодательством
Название рус.:Выпуск 1. Узлы монтажные. Рабочие чертежи
Дата добавления в базу:01.09.2013
Дата актуализации:05.05.2017
Дата введения:01.01.1994
Оглавление:2.400-12.93.1-01 Раздел 1. Сопряжения колонн с фундаментами
2.400-12.93.1-02 Раздел 2. Сопряжения распорок и связей с колоннами
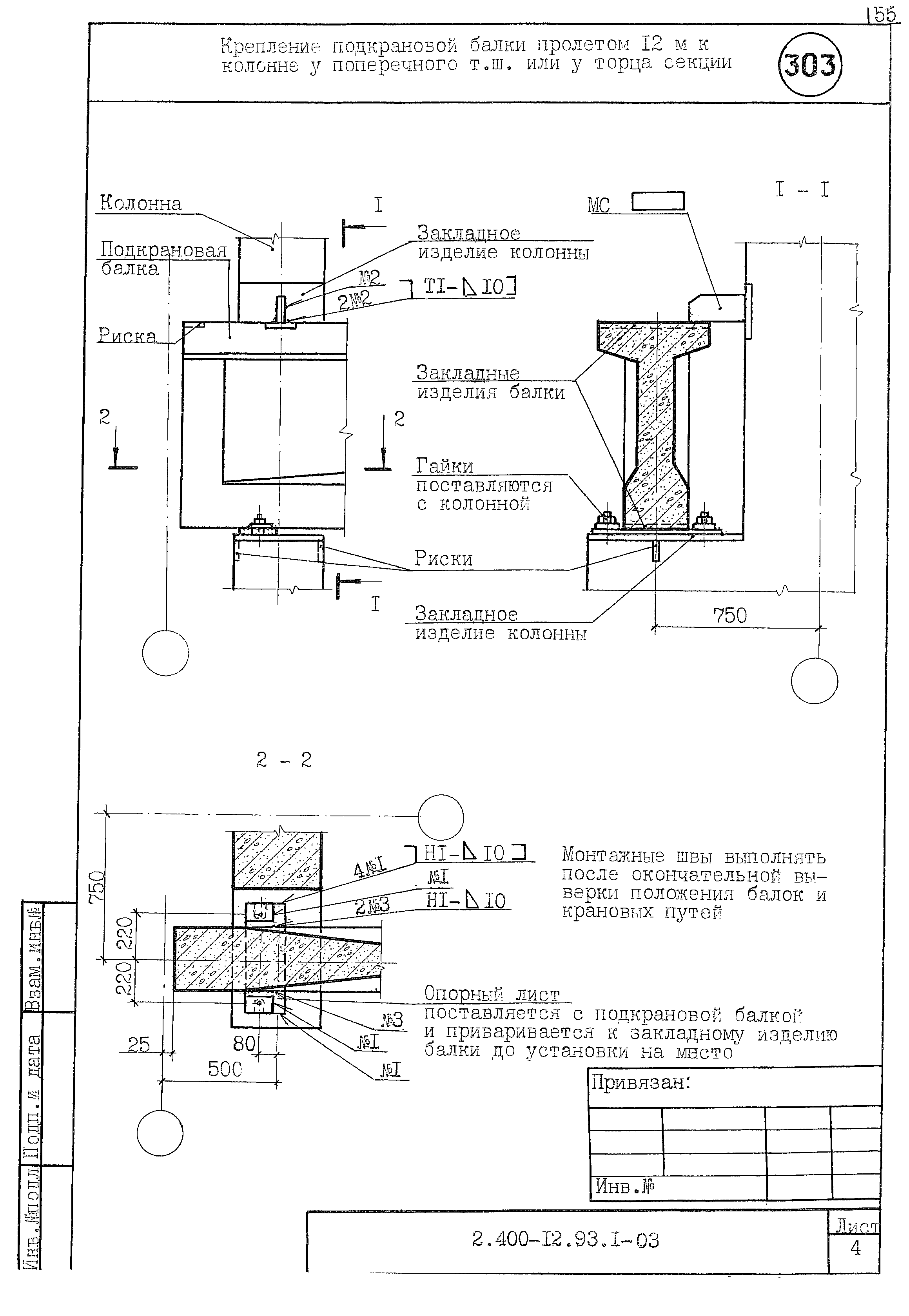
2.400-12.93.1-03 Раздел 3. Сопряжения колонн с подкрановыми балками
2.400-12.93.1-04 Раздел 4. Сопряжения подстропильных и стропильных конструкций с колоннами
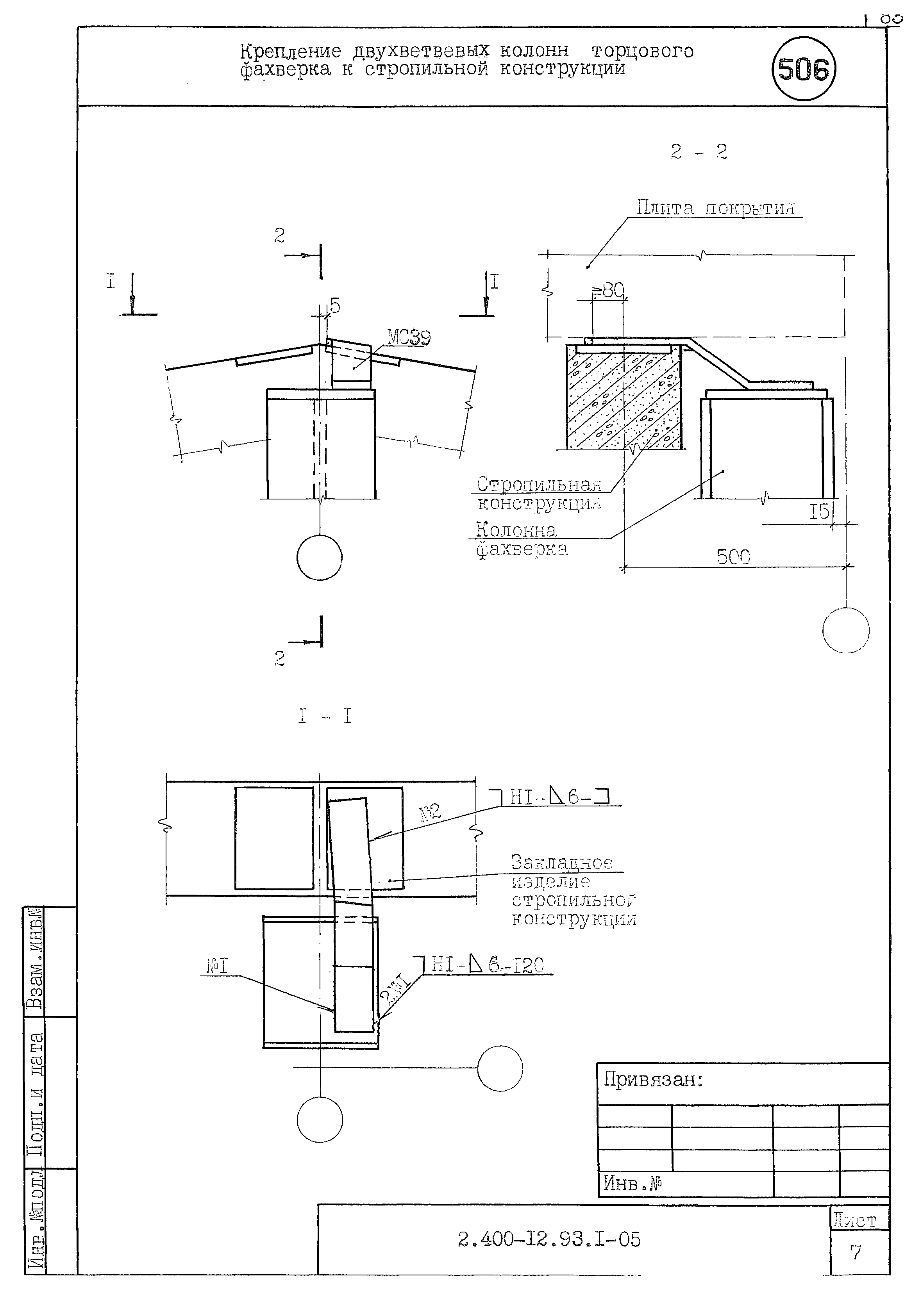
2.400-12.93.1-05 Раздел 5. Сопряжения фахверковых колонн с конструкциями покрытия
2.400-12.93.1-06 Раздел 6. Сопряжения стропильных конструкций с подстропильными
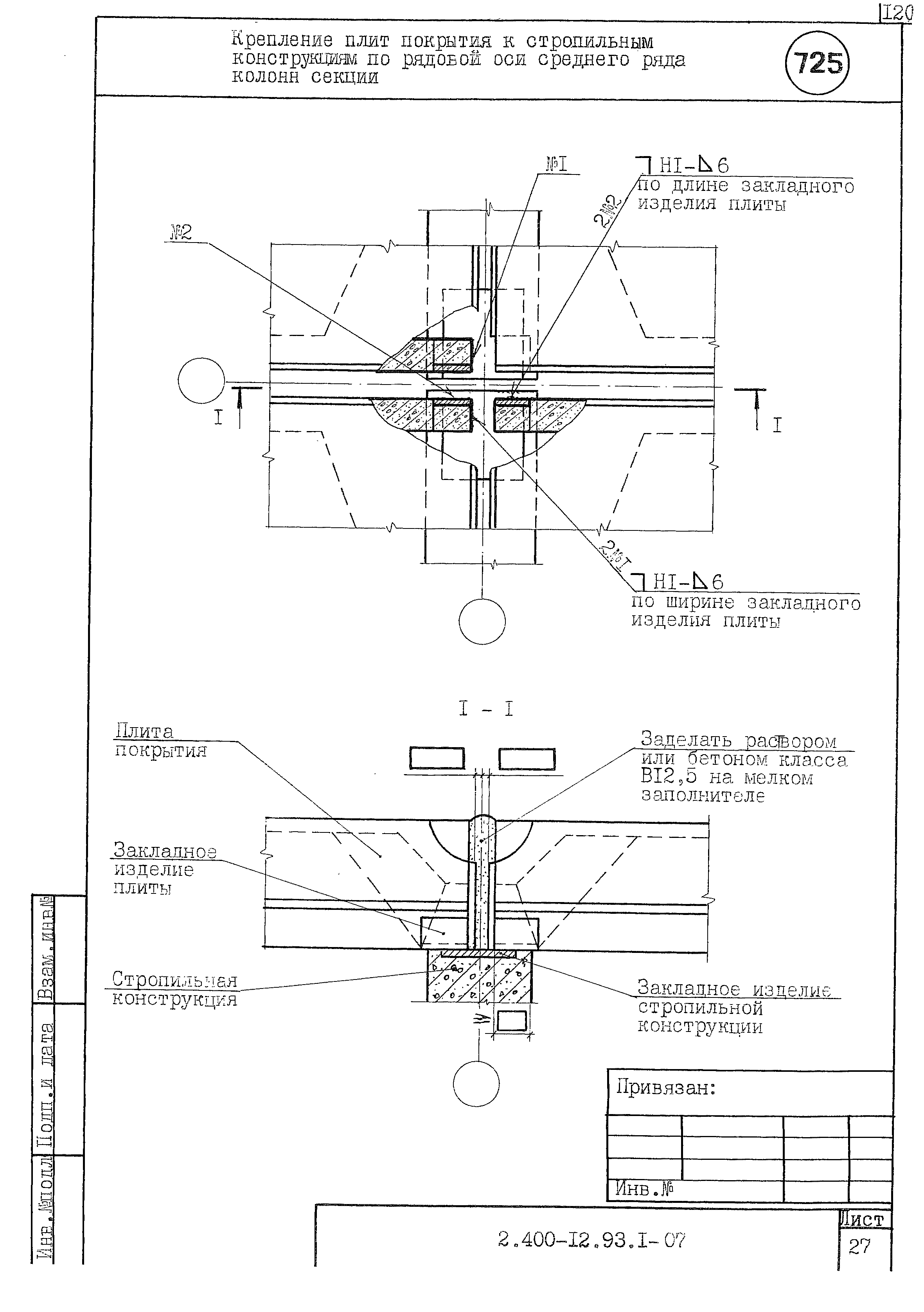
2.400-12.93.1-07 Раздел 7. Сопряжения плит с конструкциями покрытия и стальных щитов с плитами покрытия
Разработан: ЦНИИпромзданий
Утверждён:21.05.1993 Госстрой России (Russian Federation Gosstroy 9-3-2/100)
Расположен в:Техническая документация Строительство Справочные документы Типовые строительные конструкции, изделия и узлы Общероссийский строительный каталог Строительные конструкции, изделия и узлы зданий и сооружений для всех видов строительства Конструкции, изделия и узлы зданий Несущие конструкции одноэтажных зданий Узлы и детали сопряжения железобетонных и стальных конструкций
Заменяет собой:
Серия 2.400-12.93Серия 2.400-12.93Серия 2.400-12.93Серия 2.400-12.93Серия 2.400-12.93Серия 2.400-12.93Серия 2.400-12.93Серия 2.400-12.93Серия 2.400-12.93Серия 2.400-12.93Серия 2.400-12.93Серия 2.400-12.93Серия 2.400-12.93Серия 2.400-12.93Серия 2.400-12.93Серия 2.400-12.93Серия 2.400-12.93Серия 2.400-12.93Серия 2.400-12.93Серия 2.400-12.93Серия 2.400-12.93Серия 2.400-12.93Серия 2.400-12.93Серия 2.400-12.93Серия 2.400-12.93Серия 2.400-12.93Серия 2.400-12.93Серия 2.400-12.93Серия 2.400-12.93Серия 2.400-12.93Серия 2.400-12.93Серия 2.400-12.93Серия 2.400-12.93Серия 2.400-12.93Серия 2.400-12.93Серия 2.400-12.93Серия 2.400-12.93Серия 2.400-12.93Серия 2.400-12.93Серия 2.400-12.93Серия 2.400-12.93Серия 2.400-12.93Серия 2.400-12.93Серия 2.400-12.93Серия 2.400-12.93Серия 2.400-12.93Серия 2.400-12.93Серия 2.400-12.93Серия 2.400-12.93Серия 2.400-12.93Серия 2.400-12.93Серия 2.400-12.93Серия 2.400-12.93Серия 2.400-12.93Серия 2.400-12.93Серия 2.400-12.93Серия 2.400-12.93Серия 2.400-12.93Серия 2.400-12.93Серия 2.400-12.93Серия 2.400-12.93Серия 2.400-12.93Серия 2.400-12.93Серия 2.400-12.93Серия 2.400-12.93Серия 2.400-12.93Серия 2.400-12.93Серия 2.400-12.93Серия 2.400-12.93Серия 2.400-12.93Серия 2.400-12.93Серия 2.400-12.93Серия 2.400-12.93Серия 2.400-12.93Серия 2.400-12.93Серия 2.400-12.93Серия 2.400-12.93Серия 2.400-12.93Серия 2.400-12.93Серия 2.400-12.93Серия 2.400-12.93Серия 2.400-12.93Серия 2.400-12.93Серия 2.400-12.93Серия 2.400-12.93Серия 2.400-12.93Серия 2.400-12.93Серия 2.400-12.93Серия 2.400-12.93Серия 2.400-12.93Серия 2.400-12.93Серия 2.400-12.93Серия 2.400-12.93Серия 2.400-12.93Серия 2.400-12.93Серия 2.400-12.93Серия 2.400-12.93Серия 2.400-12.93Серия 2.400-12.93Серия 2.400-12.93Серия 2.400-12.93Серия 2.400-12.93Серия 2.400-12.93Серия 2.400-12.93Серия 2.400-12.93Серия 2.400-12.93Серия 2.400-12.93Серия 2.400-12.93Серия 2.400-12.93Серия 2.400-12.93Серия 2.400-12.93Серия 2.400-12.93Серия 2.400-12.93Серия 2.400-12.93Серия 2.400-12.93Серия 2.400-12.93Серия 2.400-12.93Серия 2.400-12.93Серия 2.400-12.93Серия 2.400-12.93Серия 2.400-12.93Серия 2.400-12.93Серия 2.400-12.93Серия 2.400-12.93Серия 2.400-12.93Серия 2.400-12.93Серия 2.400-12.93Серия 2.400-12.93Серия 2.400-12.93Серия 2.400-12.93Серия 2.400-12.93Серия 2.400-12.93Серия 2.400-12.93

© 2013 Ёшкин Кот :-) Карта сайта