| ||||||||||||||||||||||||||||
Скачать Серия 1.420.2-27 Выпуск 4. Фермы и прогоны покрытий. Материалы для проектированияДата актуализации: 10.08.2017
|
| Обозначение: | Серия 1.420.2-27 |
| Обозначение англ: | Series 1.420.2-27 |
| Статус: | не определен законодательством |
| Название рус.: | Выпуск 4. Фермы и прогоны покрытий. Материалы для проектирования |
| Дата добавления в базу: | 01.09.2013 |
| Дата актуализации: | 05.05.2017 |
| Дата введения: | 01.03.1990 |
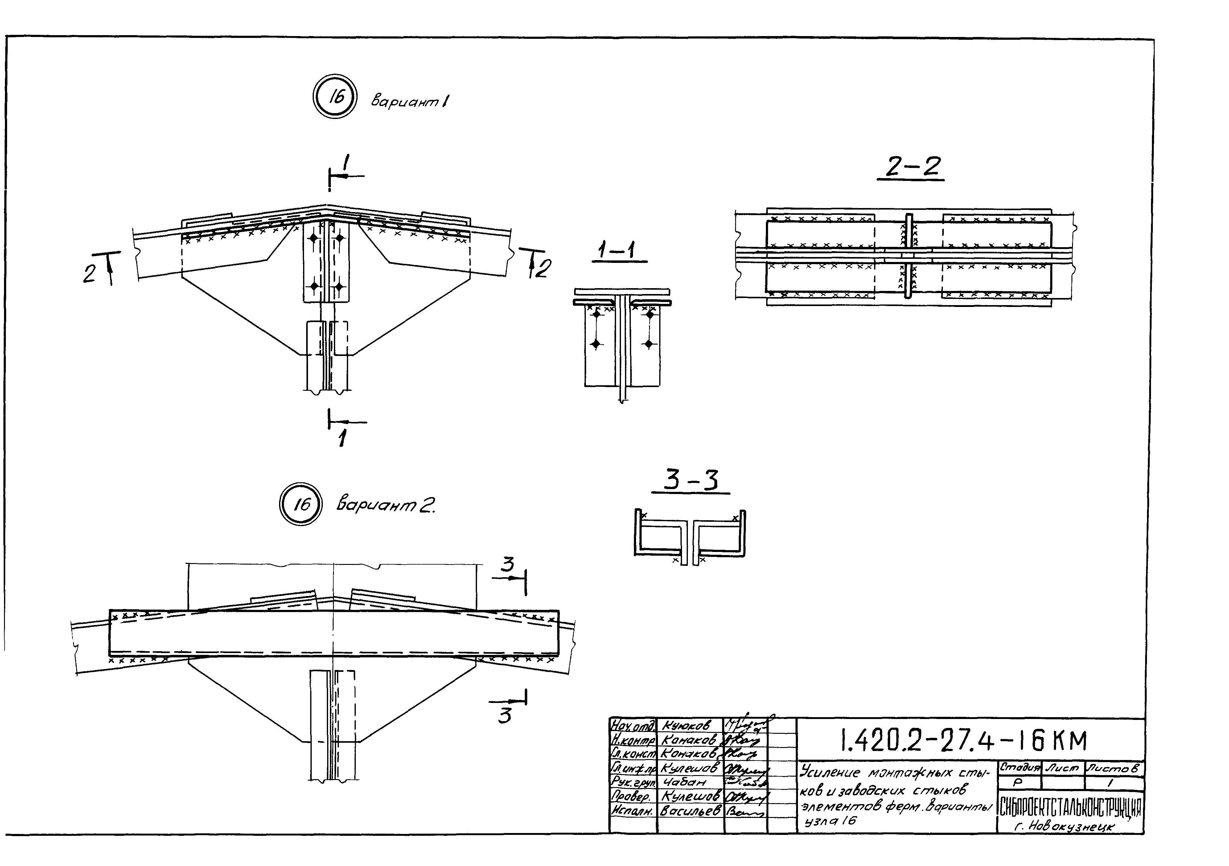
| Оглавление: | 1.420.2-27.4-ПЗКМ Пояснительная записка 1.420.2-27.4-1КМ Характерные дефекты и повреждения элементов ферм 1.420.2-27.4-2КМ Характерные дефекты и повреждения элементов узлов ферм 1.420.2-27.4-3КМ Реконструкция ферм в связи с изменением технологии 1.420.2-27.4-4КМ Схемы усиления узлов ферм 1.420.2-27.4-5КМ Схемы усиления монтажных стыков и заводских стыков элементов ферм 1.420.2-27.4-6КМ Схемы усиления элементов ферм 1.420.2-27.4-7КМ Усиление ферм. Схемы 1...5 1.420.2-27.4-8КМ Усиление ферм. Схемы 6...10 1.420.2-27.4-9КМ Усиление прогонов. Схемы 1...5 1.420.2-27.4-10КМ Усиление узлов ферм. Узлы 1...3 1.420.2-27.4-11КМ Усиление узлов ферм. Узлы 4...6 1.420.2-27.4-12КМ Усиление узлов ферм. Схемы 7...9 1.420.2-27.4-13КМ Усиление узлов ферм. Схемы 10,11 1.420.2-27.4-14КМ Усиление опорных узлов ферм. Узлы 12,13 1.420.2-27.4-15КМ Усиление монтажных стыков и заводских стыков элементов ферм. Узлы 14,15 1.420.2-27.4-16КМ Усиление монтажных стыков и заводских стыков элементов ферм. Варианты узла 16 1.420.2-27.4-17КМ Усиление монтажных стыков и заводских стыков элементов ферм. Узел 17 1.420.2-27.4-18КМ Усиление монтажных стыков и заводских стыков элементов ферм. Узел 18 1.420.2-27.4-19КМ Усиление элементов ферм. Узлы 19,20 1.420.2-27.4-20КМ Усиление элементов ферм. Узлы 21,22 1.420.2-27.4-21КМ Усиление элементов ферм. Узлы 22,24 1.420.2-27.4-22КМ Усиление элементов ферм. Узлы 25,26 1.420.2-27.4-23КМ Усиление элементов ферм. Узлы 27,28 1.420.2-27.4-24КМ Усиление элементов ферм. Узлы 29,30 1.420.2-27.4-25КМ Усиление ферм. Узлы 31...34 1.420.2-27.4-26КМ Усиление ферм. Узлы 35,36 1.420.2-27.4-27КМ Усиление ферм. Узел 37 1.420.2-27.4-28КМ Усиление ферм. Узлы 38,39 1.420.2-27.4-29КМ Усиление ферм. Узлы 40,41 1.420.2-27.4-30КМ Усиление ферм. Узлы 42,43 1.420.2-27.4-31КМ Усиление ферм. Узлы 44,45 1.420.2-27.4-32КМ Усиление ферм. Узлы 46,47 1.420.2-27.4-33КМ Усиление ферм. Узлы 48,49 1.420.2-27.4-34КМ Усиление ферм. Варианты узла 50 1.420.2-27.4-35КМ Усиление ферм. Узлы 51,52 1.420.2-27.4-36КМ Усиление прогонов. Варианты узлов 53,54 1.420.2-27.4-37КМ Усиление прогонов. Варианты узлов 55,56 1.420.2-27.4-38КМ Усиление прогонов. Варианты узлов 57,58 1.420.2-27.4-39КМ Усиление прогонов. Узел 59 1.420.2-27.4-40КМ Приложение 1. Результаты расчета элементов ферм, усиленных методом увеличения сечений 1.420.2-27.4-41КМ Приложение 2. Результаты расчета элементов ферм, усиленных с изменением схем |
| Разработан: | Сибпроектстальконструкция |
| Утверждён: | 07.02.1989 Главпроект Госстроя СССР (4/6-183) |
| Издан: | ЦИТП Госстроя СССР (CITP, Gosstroy (USSR) 1990 г. ) |
| Расположен в: |























































