| ||||||||||||||||||||||||||||
Скачать Серия 1.420.2-27 Выпуск 2. Колонны. Материалы для проектированияДата актуализации: 10.08.2017
|
| Обозначение: | Серия 1.420.2-27 |
| Обозначение англ: | Series 1.420.2-27 |
| Статус: | не определен законодательством |
| Название рус.: | Выпуск 2. Колонны. Материалы для проектирования |
| Дата добавления в базу: | 01.09.2013 |
| Дата актуализации: | 05.05.2017 |
| Дата введения: | 01.03.1990 |
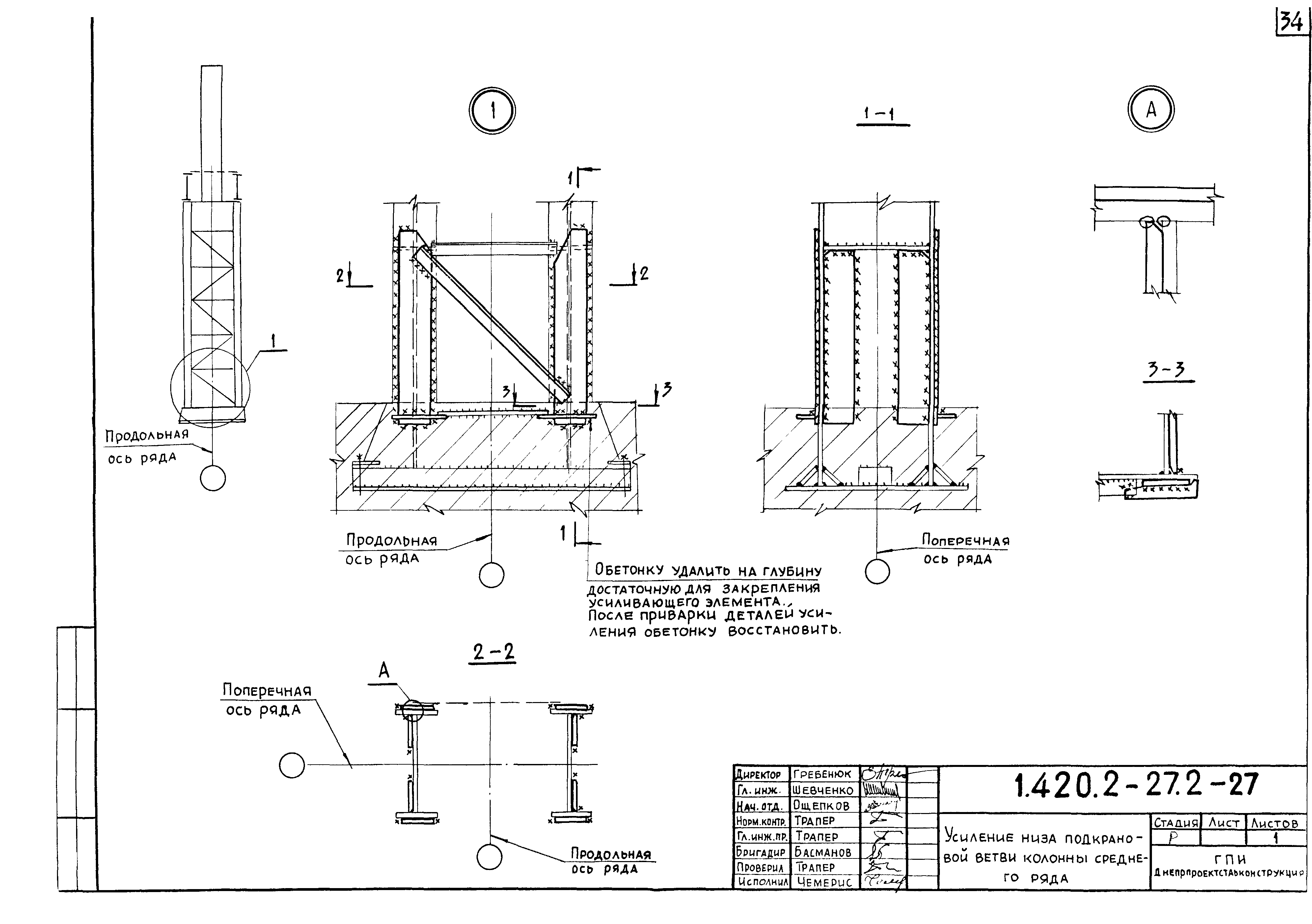
| Оглавление: | 1.420.2-27.2-ПЗ Пояснительная записка 1.420.2-27.2-1 Схемы колонн 1.420.2-27.2-2 Дефекты и повреждения колонн 1.420.2-27.2-3 Усиление местных повреждений 1.420.2-27.2-4 Реконструкция подкрановой ветви колонны. Вариант 1 1.420.2-27.2-5 Реконструкция подкрановой ветви колонны. Вариант 2 1.420.2-27.2-6 Установка дополнительной подкрановой стойки. Вариант 1 1.420.2-27.2-7 Установка дополнительной подкрановой стойки. Вариант 2 1.420.2-27.2-8 Усиление подкрановой ветви колонны. Вариант 1 1.420.2-27.2-9 Усиление подкрановой ветви колонны. Вариант 2 1.420.2-27.2-10 Усиление подкрановой ветви колонны. Вариант 3 1.420.2-27.2-11 Усиление подкрановой ветви колонны. Вариант 4 1.420.2-27.2-12 Местное усиление подкрановой ветви клепанной колонны. Вариант 1 1.420.2-27.2-13 Местное усиление подкрановой ветви решетчатой колонны. Вариант 2,3,4 1.420.2-27.2-14 Усиление шатровой ветви колонны 1.420.2-27.2-15 Усиление сплошностенчатой колонны 1.420.2-27.2-16 Усиление надкрановой части клепанной колонны. Вариант 1 1.420.2-27.2-17 Усиление надкрановой части клепанной колонны. Вариант 2,3 1.420.2-27.2-18 Усиление решетчатой надкрановой части клепанной колонны 1.420.2-27.2-19 Замена поврежденного участка клепанной колонны 1.420.2-27.2-20 Усиление надкрановой части сварной колонны среднего ряда 1.420.2-27.2-21 Увеличение габарита между мостовым краном и колонной 1.420.2-27.2-22 Усиление верха подкрановой ветви 1.420.2-27.2-23 Изменение размера консоли 1.420.2-27.2-24 Изменение размера траверсы 1.420.2-27.2-25 Реконструкция траверсы колонны 1.420.2-27.2-26 Усиление низа подкрановой ветви колонны крайнего ряда 1.420.2-27.2-72 Усиление низа подкрановой ветви колонны среднего ряда 1.420.2-27.2-82 Усиление элементов решетки 1.420.2-27.2-29 Устройство технологического прохода в колонне 1.420.2-27.2-30 Усиление опорной плиты базы колонны |
| Разработан: | Ленпроектстальконструкция |
| Утверждён: | 07.02.1989 Главпроект Госстроя СССР (4/6-183) |
| Издан: | ЦИТП Госстроя СССР (CITP, Gosstroy (USSR) 1990 г. ) |
| Расположен в: |




































