| ||||||||||||||||||||||||
Скачать Серия 1.464.2-21 Выпуск 1. Фонарь зенитный глухой с трехслойным стеклопакетом. Рабочие чертежиДата актуализации: 10.08.2017
|
| Обозначение: | Серия 1.464.2-21 |
| Обозначение англ: | Series 1.464.2-21 |
| Статус: | не определен законодательством |
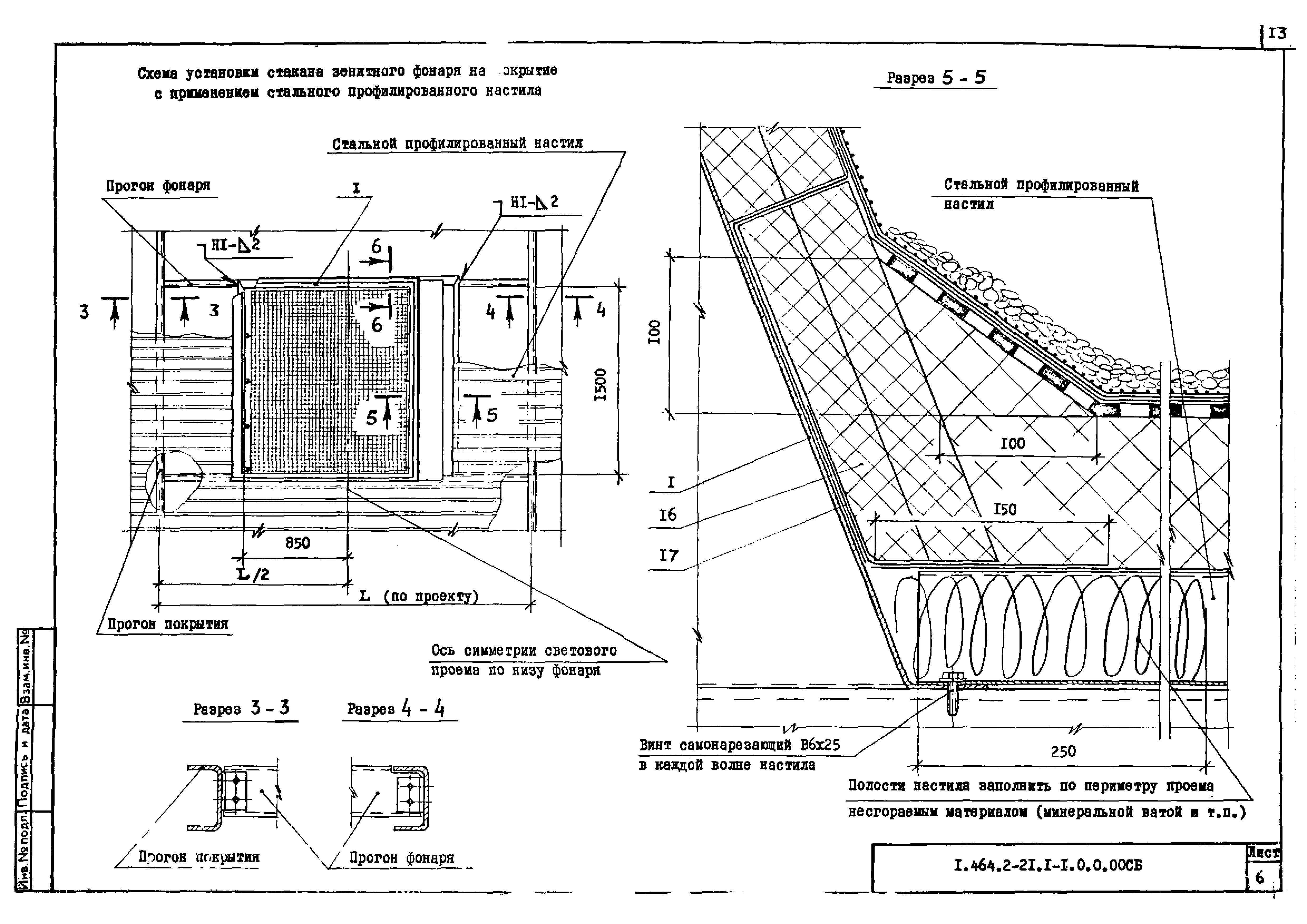
| Название рус.: | Выпуск 1. Фонарь зенитный глухой с трехслойным стеклопакетом. Рабочие чертежи |
| Дата добавления в базу: | 01.09.2013 |
| Дата актуализации: | 05.05.2017 |
| Дата введения: | 01.01.1985 |
| Разработан: | ЦНИИпромзданий Гипроспецлегконструкция |
| Утверждён: | 28.01.1985 Госстрой СССР (Государственный комитет Совета Министров СССР по делам строительства) (USSR Gosstroy ДП-4) |
| Расположен в: |



































