| ||||||||||||||||||||||||||||
Скачать Серия 1.464.2-26.93 Выпуск 2. Фонари зенитные односкатные. Рабочие чертежиДата актуализации: 10.08.2017
|
| Обозначение: | Серия 1.464.2-26.93 |
| Обозначение англ: | Series 1.464.2-26.93 |
| Статус: | не определен законодательством |
| Название рус.: | Выпуск 2. Фонари зенитные односкатные. Рабочие чертежи |
| Дата добавления в базу: | 01.09.2013 |
| Дата актуализации: | 05.05.2017 |
| Дата введения: | 01.02.1994 |
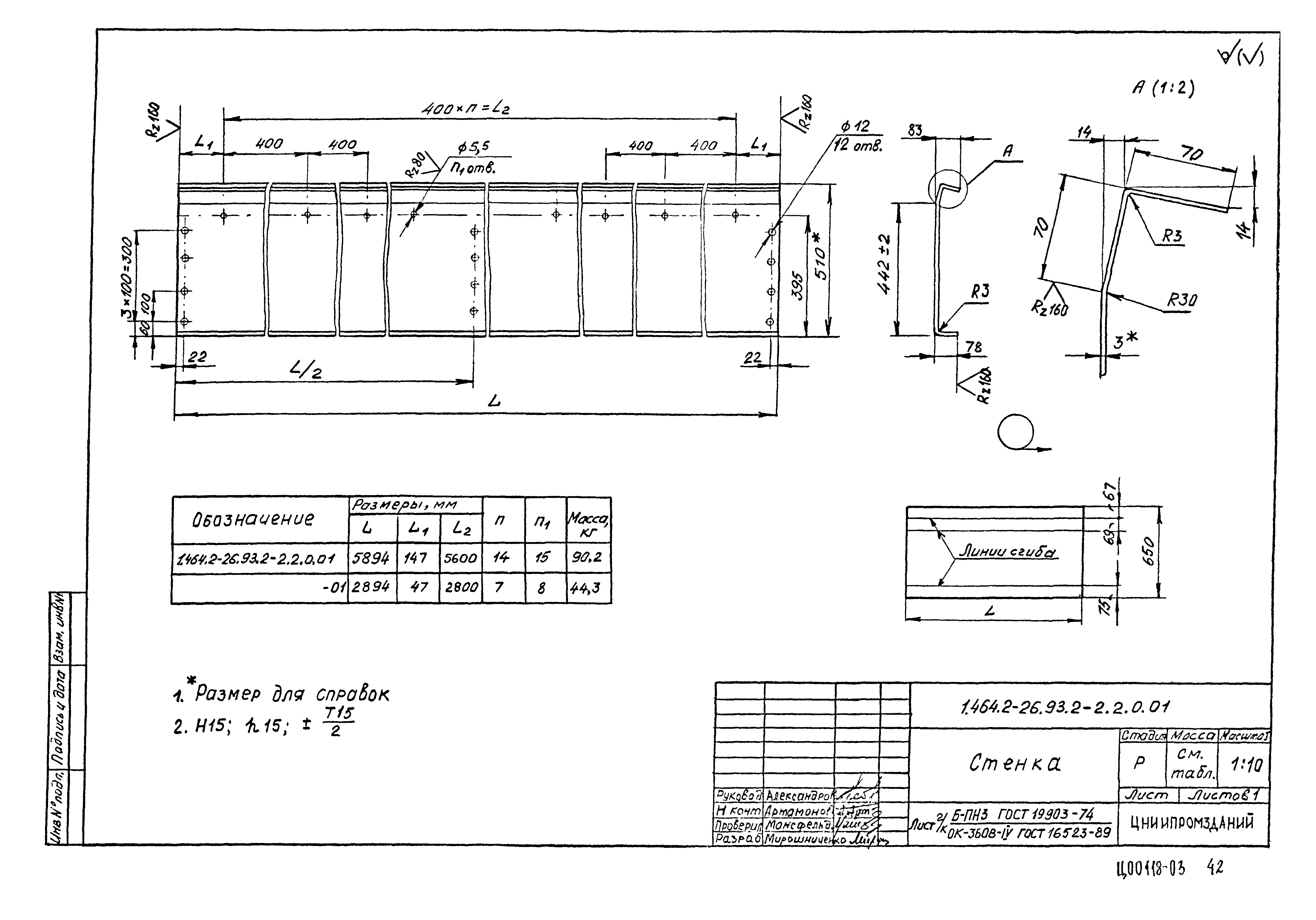
| Оглавление: | 1.464.2-26.93.2-ТТ Технические требования 1.464.2-26.93.2-1.0.0.00 Каркас 1.464.2-26.93.2-1.0.0.00 СБ Каркас. Сборочный чертеж 1.464.2-26.93.2-1.0.0.01 Уголок 1.464.2-26.93.2-1.0.0.02 Скоба 1.464.2-26.93.2-1.0.0.03 Рычаг 1.464.2-26.93.2-1.0.0.04 Скоба 1.464.2-26.93.2-1.0.0.05 Палец 1.464.2-26.93.2-1.1.0.00 Опорный стакан ОС 1.464.2-26.93.2-1.1.0.00 СБ Опорный стакан ОС. Сборочный чертеж 1.464.2-26.93.2-1.1.1.00 Борт низкий 1.464.2-26.93.2-1.1.1.01 Крюк 1.464.2-26.93.2-1.1.1.00 СБ Борт низкий. Сборочный чертеж 1.464.2-26.93.2-1.1.1.02 Стенка 1.464.2-26.93.2-1.1.1.03 Уголок 1.464.2-26.93.2-1.1.2.00 Борт высокий 1.464.2-26.93.2-1.1.2.00 СБ Борт высокий. Сборочный чертеж 1.464.2-26.93.2-1.1.2.01 Стенка 1.464.2-26.93.2-1.1.2.02 Уголок 1.464.2-26.93.2-1.1.3.00 Борт продольный 1.464.2-26.93.2-1.1.3.00 СБ Борт продольный. Сборочный чертеж 1.464.2-26.93.2-1.1.3.01 Стенка 1.464.2-26.93.2-1.2.0.00 Рама Р 1.464.2-26.93.2-1.2.0.00 СБ Рама Р. Сборочный чертеж 1.464.2-26.93.2-1.2.0.01 Уголок 1.464.2-26.93.2-1.2.0.02 Уголок 1.464.2-26.93.2-1.2.0.03 Ручка 1.464.2-26.93.2-1.3.0.00 Петля П1 1.464.2-26.93.2-1.3.0.01 Планка 1.464.2-26.93.2-1.3.0.02 Втулка 1.464.2-26.93.2-1.4.0.00 Петля П2 1.464.2-26.93.2-1.5.0.00 Кронштейн 1.464.2-26.93.2-1.5.0.01 Профиль 1.464.2-26.93.2-1.5.0.02 Ушко 1.464.2-26.93.2-1.6.0.00 Сетка защитная С3 1.464.2-26.93.2-1.6.0.00 СБ Сетка защитная С3. Сборочный чертеж 1.464.2-26.93.2-0.0.0.01 Элемент фартука ФП 1.464.2-26.93.2-0.0.0.02 Элемент фартука ФЛ 1.464.2-26.93.2-0.0.0.03 Элемент фартука ФТ 1.464.2-26.93.2-2.0.0.00 Каркас 1.464.2-26.93.2-2.0.0.00 СБ Каркас. Сборочный чертеж 1.464.2-26.93.2-2.1.0.00 Борт торцевой БТ1,5 1.464.2-26.93.2-2.1.0.02 Элемент соединительный 1.464.2-26.93.2-2.1.0.00 СБ Борт торцевой БТ1,5. Сборочный чертеж 1.464.2-26.93.2-2.1.0.01 Стенка 1.464.2-26.93.2-2.2.0.00 Борт продольный левый БПЛ 1.464.2-26.93.2-2.2.0.02 Скоба 1.464.2-26.93.2-2.2.0.00 СБ Борт продольный левый БПЛ. Сборочный чертеж 1.464.2-26.93.2-2.2.0.01 Стенка 1.464.2-26.93.2-2.3.0.00 Борт продольный правый БПП 1.464.2-26.93.2-0.0.0.12 Колпачок 1.464.2-26.93.2-2.3.0.00 СБ Борт продольный правый БПП. Сборочный чертеж 1.464.2-26.93.2-2.3.0.01 Стенка 1.464.2-26.93.2-2.4.0.00 Диафрагма Д 1.464.2-26.93.2-2.4.0.01 Элемент диафрагмы 1.464.2-26.93.2-2.4.0.00 СБ Диафрагма Д. Сборочный чертеж 1.464.2-26.93.2-2.5.0.00 Рама Р 1.464.2-26.93.2-2.5.0.00 СБ Рама Р. Сборочный чертеж 1.464.2-26.93.2-2.5.0.02 Элемент рамы 1.464.2-26.93.2-2.5.0.04 Скоба 1.464.2-26.93.2-2.5.1.00 Элемент рамы 1.464.2-26.93.2-2.5.1.01 Элемент обвязки 1.464.2-26.93.2-2.5.1.00 СБ Элемент рамы. Сборочный чертеж 1.464.2-26.93.2-2.5.2.00 Элемент рамы 1.464.2-26.93.2-2.5.2.00 СБ Элемент рамы. Сборочный чертеж 1.464.2-26.93.2-2.5.2.02 Упор 1.464.2-26.93.2-3.0.0.00 Сетка СП 1.464.2-26.93.2-3.0.0.00 СБ Сетка СП. Сборочный чертеж 1.464.2-26.93.2-0.0.0.04 Элемент фартука ФП 1.464.2-26.93.2-0.0.0.05 Элемент фартука ФЛ 1.464.2-26.93.2-0.0.0.06 Элемент фартука ФТ 1.464.2-26.93.2-0.0.0.07 Прижим ПР 1.464.2-26.93.2-0.0.0.08 Скоба 1.464.2-26.93.2-0.0.0.09 Упор 1.464.2-26.93.2-0.0.0.10 Шайба уплотнительная 1.464.2-26.93.2-0.0.0.11 Нащельник прогона НП |
| Разработан: | ЦНИИпромзданий |
| Утверждён: | 18.11.1993 Госстрой России (Russian Federation Gosstroy 9-3-3/242) |
| Расположен в: | |
| Заменяет собой: |
|






















































































