| ||||||||||||||||||||||||||||
Скачать Серия 1.222.5-1 Выпуск 6. Трехшарнирные гнутоклееные рамы пролетом 12, 15, 18, 24, 36, 42 м, шаг 3 м. Рабочие чертежиДата актуализации: 10.08.2017
|
| Обозначение: | Серия 1.222.5-1 |
| Обозначение англ: | Series 1.222.5-1 |
| Статус: | не определен законодательством |
| Название рус.: | Выпуск 6. Трехшарнирные гнутоклееные рамы пролетом 12, 15, 18, 24, 36, 42 м, шаг 3 м. Рабочие чертежи |
| Дата добавления в базу: | 01.09.2013 |
| Дата актуализации: | 05.05.2017 |
| Дата введения: | 01.01.1989 |
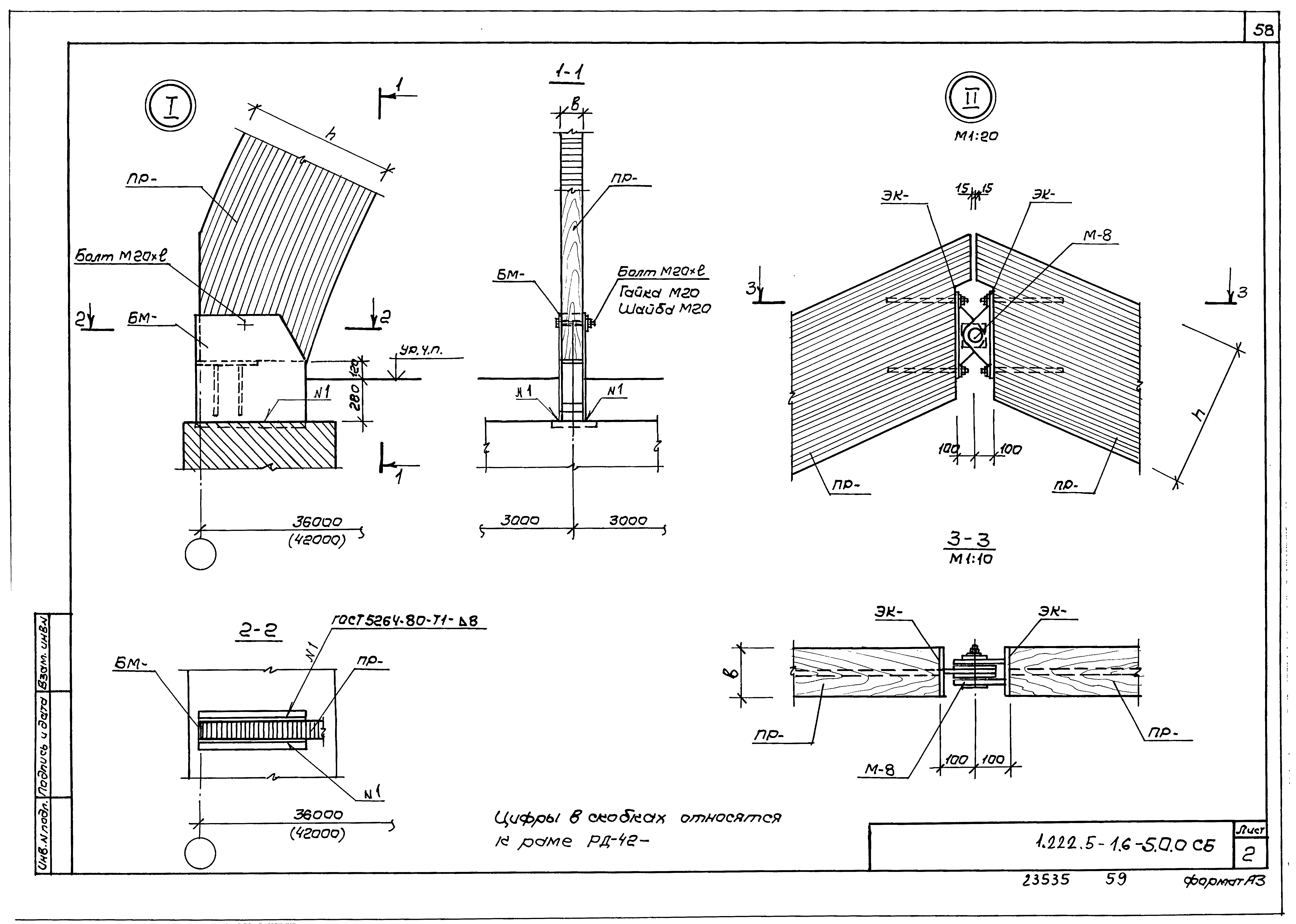
| Оглавление: | 1.222.5-1.6-0.0.0 ТО Техническое описание 1.222.5-1.6-1.0.0 Рама РД-12-5,6-3-100,РД-12-5,6-3-150,РД-12-6,3-3-100,РД-12-6,3-3-150 1.222.5-1.6-1.0.0 СБ Рама РД-12-5,6-3-100,РД-12-5,6-3-150,РД-12-6,3-3-100,РД-12-6,3-3-150. Сборочный чертеж 1.222.5-1.6-1.1.0 Полурама ПР-1...ПР-10 1.222.5-1.6-1.2.0 Башмак БМ-1...БМ-24 1.222.5-1.6-1.2.0 СБ Башмак БМ-1...БМ-24. Сборочный чертеж 1.222.5-1.6-1.2.1 Стенка боковая СБ-1...СБ-10 1.222.5-1.6-1.2.3 Стенка задняя СТ-1...СТ-8 1.222.5-1.6-1.3.0 Элемент коньковый ЭК-1...ЭК-12 1.222.5-1.6-1.3.4 Шайба ШИ-1...ШИ-4 1.222.5-1.6-1.3.0 СБ Элемент коньковый ЭК-1...ЭК-12. Сборочный чертеж 1.222.5-1.6-1.3.1 Пластина П-1...П-6 1.222.5-1.6-1.3.2 Пластина П-7...П-11 1.222.5-1.6-1.3.3 Шпилька ШП-1...ШП-4 1.222.5-1.6-7.2.0 Пакет клееный 1.222.5-1.6-1.4.0 Марка М-1...М-7 1.222.5-1.6-1.4.0 СБ Марка М-1...М-7. Сборочный чертеж 1.222.5-1.6-1.4.1 Пластина П-12 1.222.5-1.6-2.0.0 Рама РД-15-6,0-3-100,РД-15-6,0-3-150,РД-15-6,6-3-100,РД-15-6,6-3-150,РД-15-7,2-3-100,РД-15-7,2-3-150 1.222.5-1.6-2.0.0 СБ Рама РД-15-6,0-3-100,РД-15-6,0-3-150,РД-15-6,6-3-100,РД-15-6,6-3-150,РД-15-7,2-3-100,РД-15-7,2-3-150. Сборочный чертеж 1.222.5-1.6-3.0.0 Рама РД-18-7,3-3-100,РД-18-7,3-3-150,РД-18-8,0-3-100,РД-18-8,0-3-150,РД-18-8,7-3-100,РД-18-8,7-3-150,РД-18-10,6-3-100,РД-18-10,6-3-150 1.222.5-1.6-3.0.0 СБ Рама РД-18-7,3-3-100,РД-18-7,3-3-150,РД-18-8,0-3-100,РД-18-8,0-3-150,РД-18-8,7-3-100,РД-18-8,7-3-150,РД-18-10,6-3-100,РД-18-10,6-3-150. Сборочный чертеж 1.222.5-1.6-3.1.0 Полурама ПР-11...ПР-16,ПР-19,ПР-20 1.222.5-1.6-3.2.0 Полурама ПР-17,ПР-18,ПР-21...ПР-26 1.222.5-1.6-3.3.0 Ригель Р-1...Р-8 1.222.5-1.6-4.0.0 Рама РД-24-8,0-3-100,РД-24-8,0-3-150,РД-24-9,0-3-100,РД-24-9,0-3-150,РД-24-9,6-3-100,РД-24-9,6-3-150,РД-24-10,5-3-100,РД-24-10,5-150 1.222.5-1.6-4.0.0 СБ Рама РД-24-8,0-3-100,РД-24-8,0-3-150,РД-24-9,0-3-100,РД-24-9,0-3-150,РД-24-9,6-3-100,РД-24-9,6-3-150,РД-24-10,5-3-100,РД-24-10,5-150. Сборочный чертеж 1.222.5-1.6-5.0.0 Рама РД-36-12,0-3-100,РД-36-12,0-3-150 1.222.5-1.6-5.0.0 СБ Рама РД-36-12,0-3-100,РД-36-12,0-3-150. Сборочный чертеж 1.222.5-1.6-5.1.0 Полурама ПР-27,ПР-27 1.222.5-1.6-6.0.0 Рама РД-42-13,5-3-100,РД-42-13,5-3-150 1.222.5-1.6-6.0.0 СБ Рама РД-42-13,5-3-100,РД-42-13,5-3-150. Сборочный чертеж 1.222.5-1.6-6.1.0 Полурама ПР-29,ПР-30 1.222.5-1.6-6.2.0 Башмак БМ-25...БМ-28 1.222.5-1.6-6.3.0 Марка М-8 1.222.5-1.6-6.2.0 СБ Башмак БМ-25...БМ-28. Сборочный чертеж 1.222.5-1.6-7.0.0 Связь СД-1,СД-2 1.222.5-1.6-7.0.0 СБ Связь СД-1,СД-2. Сборочный чертеж 1.222.5-1.6-7.1.0 Упор нижний УН-1,УН-2 1.222.5-1.6-7.1.0 СБ Упор нижний УН-1,УН-2. Сборочный чертеж 1.222.5-1.6-7.1.1 Пластина задняя 1.222.5-1.6-7.3.0 Упор верхний УВ-1,УВ-2 1.222.5-1.6-0.0.0 ВРМС Ведомость расхода материалов на элемент связи 1.222.5-1.6-0.0.0 ВРМ Ведомость расхода материалов |
| Разработан: | ЦНИИЭП им. Б.С. Мезенцева Госгражданстроя |
| Утверждён: | 05.05.1988 Государственный комитет по гражданскому строительству и архитектуре при Госстрое СССР (121) |
| Принят: | ЦНИИСК им.Кучеренко (Kucherenko TsNIISK ) |
| Расположен в: |











































































