| ||||||||||||||||||||||||
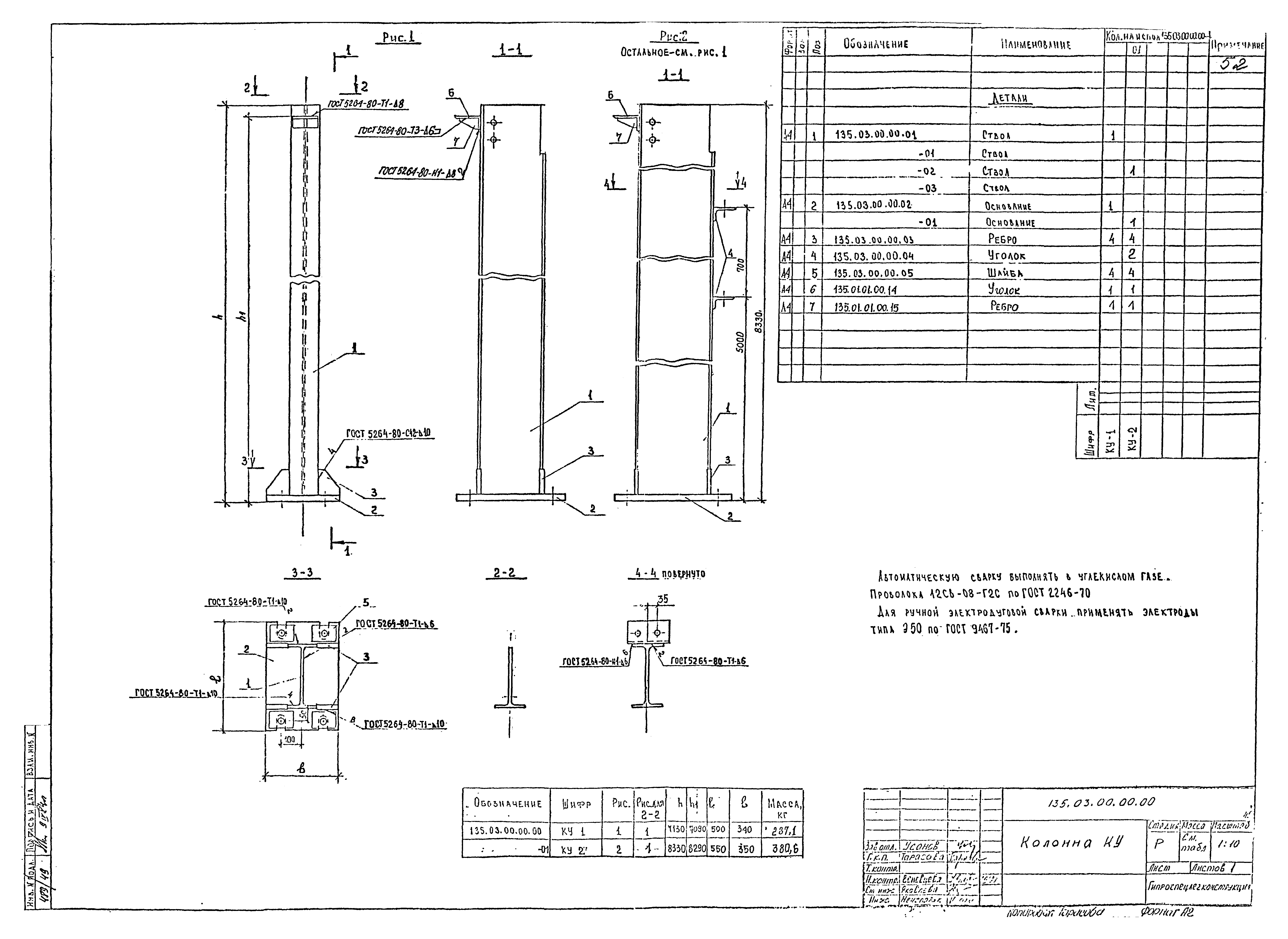
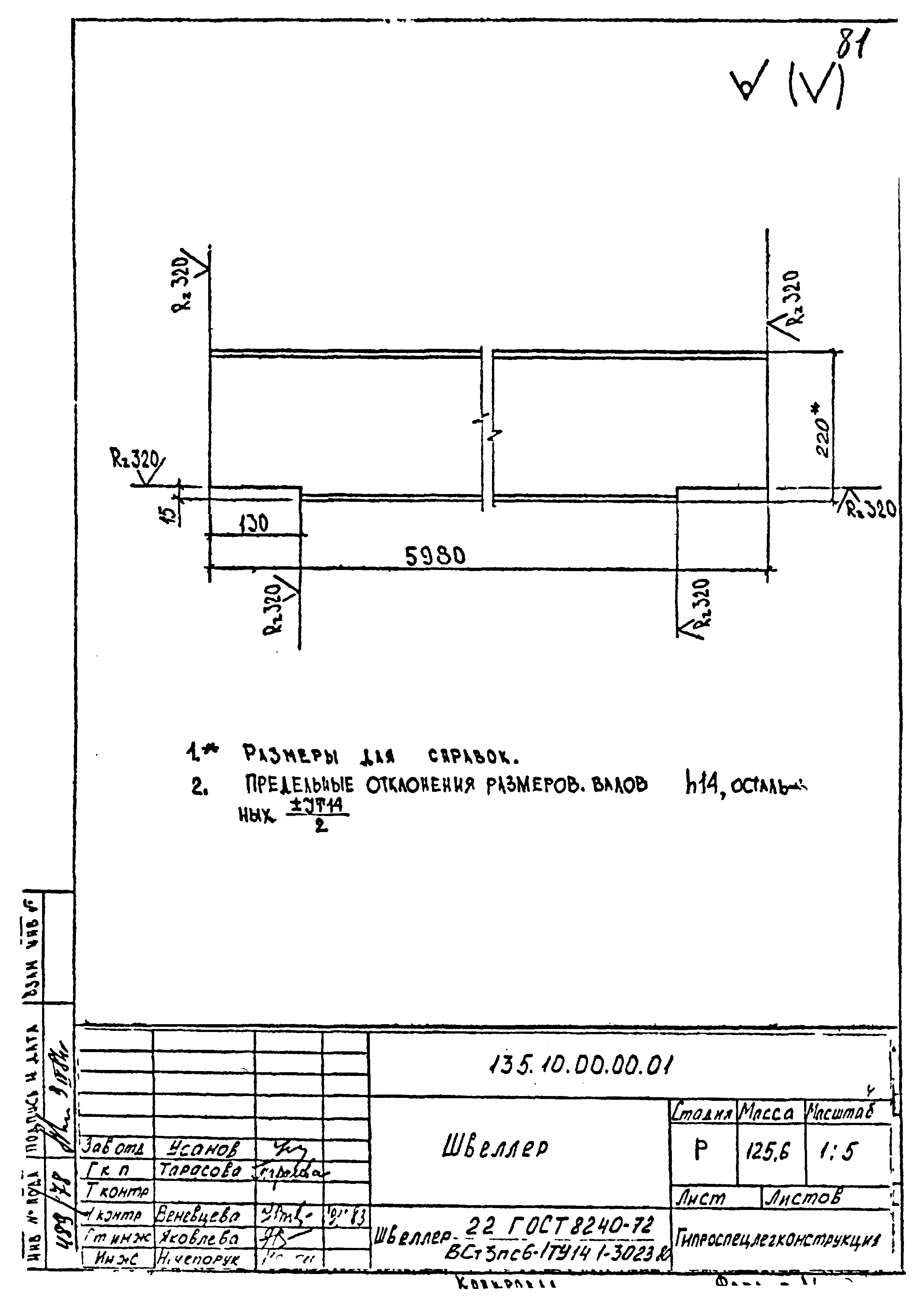
Скачать Шифр 135 Стальные рамные конструкции (коробчатого сечения) каркаса производственных зданий типа Орск. Чертежи КМДДата актуализации: 10.08.2017
|
| Обозначение: | Шифр 135 |
| Обозначение англ: | 135 |
| Статус: | не определен законодательством |
| Название рус.: | Стальные рамные конструкции (коробчатого сечения) каркаса производственных зданий типа "Орск". Чертежи КМД |
| Дата добавления в базу: | 01.09.2013 |
| Дата актуализации: | 05.05.2017 |
| Дата введения: | 15.10.1984 |
| Разработан: | Гипроспецлегконструкция ОАО ЦНИИпромзданий |
| Утверждён: | 30.08.1984 Госстрой СССР (Государственный комитет Совета Министров СССР по делам строительства) (USSR Gosstroy ИИ-23) |
| Расположен в: |


























































































