| 
 | ||||||||||||||||||||||||||
| 
 Скачать Альбом 5.1 Двери из комбинированных профилейДата актуализации: 10.08.2017
 | 
| Обозначение: |  Альбом 5.1 | 
| Обозначение англ: |  5.1 | 
| Статус: | не определен законодательством | 
| Название рус.: | Двери из комбинированных профилей | 
| Дата добавления в базу: | 01.09.2013 | 
| Дата актуализации: | 05.05.2017 | 
| Дата введения: | 01.01.1999 | 
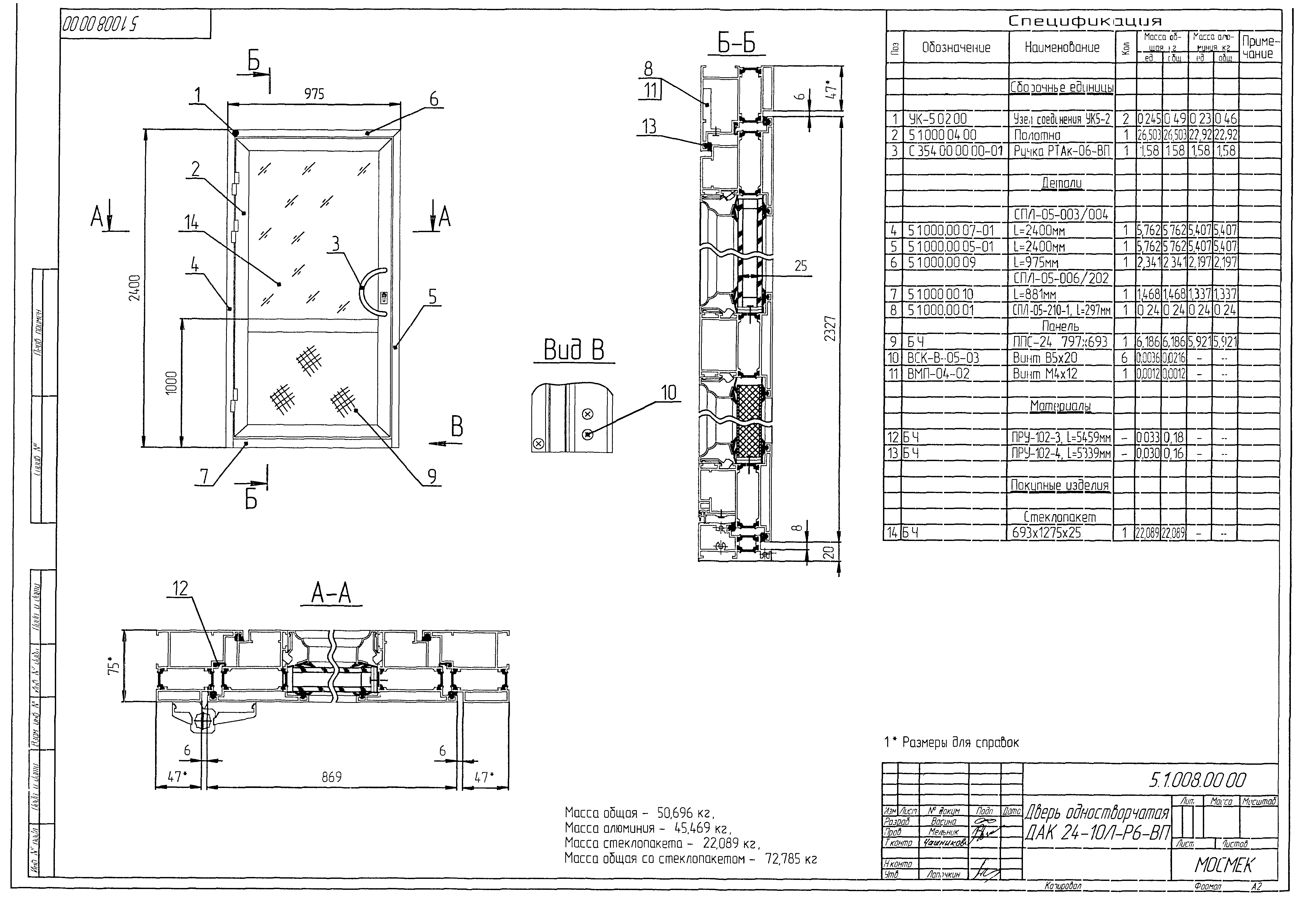
| Оглавление: | 5.1.000.00.00 ПЗ Двери из комбинированных профилей. Пояснительная записка 5.1.000.00.00 ОП Опись документов 5.1.001.00.00 Дверь одностворчатая ДАК21-10-Р6-ВП 5.1.002.00.00 Дверь одностворчатая ДАК21-10Л-Р6-ВП 5.1.003.00.00 Дверь одностворчатая ДАК21-10-Р7-ВП 5.1.004.00.00 Дверь одностворчатая ДАК21-10Л-Р7-ВП 5.1.005.00.00 Дверь одностворчатая ДАК21-10-Р11-ВП 5.1.006.00.00 Дверь одностворчатая ДАК21-10Л-Р11-ВП 5.1.007.00.00 Дверь одностворчатая ДАК24-10-Р6-ВП 5.1.008.00.00 Дверь одностворчатая ДАК24-10Л-Р6-ВП 5.1.009.00.00 Дверь одностворчатая ДАК24-10-Р7-ВП 5.1.010.00.00 Дверь одностворчатая ДАК24-10Л-Р7-ВП 5.1.011.00.00 Дверь одностворчатая ДАК24-10-Р11-ВП 5.1.012.00.00 Дверь одностворчатая ДАК24-10Л-Р11-ВП 5.1.000.01.00 Полотно 5.1.000.02.00 Полотно 5.1.000.03.00 Полотно 5.1.000.04.00 Полотно | 
| Разработан: | ЗАО Завод Мосметаллоконструкция | 
| Утверждён: | 01.01.1999 ЗАО Завод Мосметаллоконструкция | 
| Расположен в: | 





















