Информационная система
«Ёшкин Кот»

Скачать базу одним архивом
Скачать обновления
История создания базы
Карта сайта

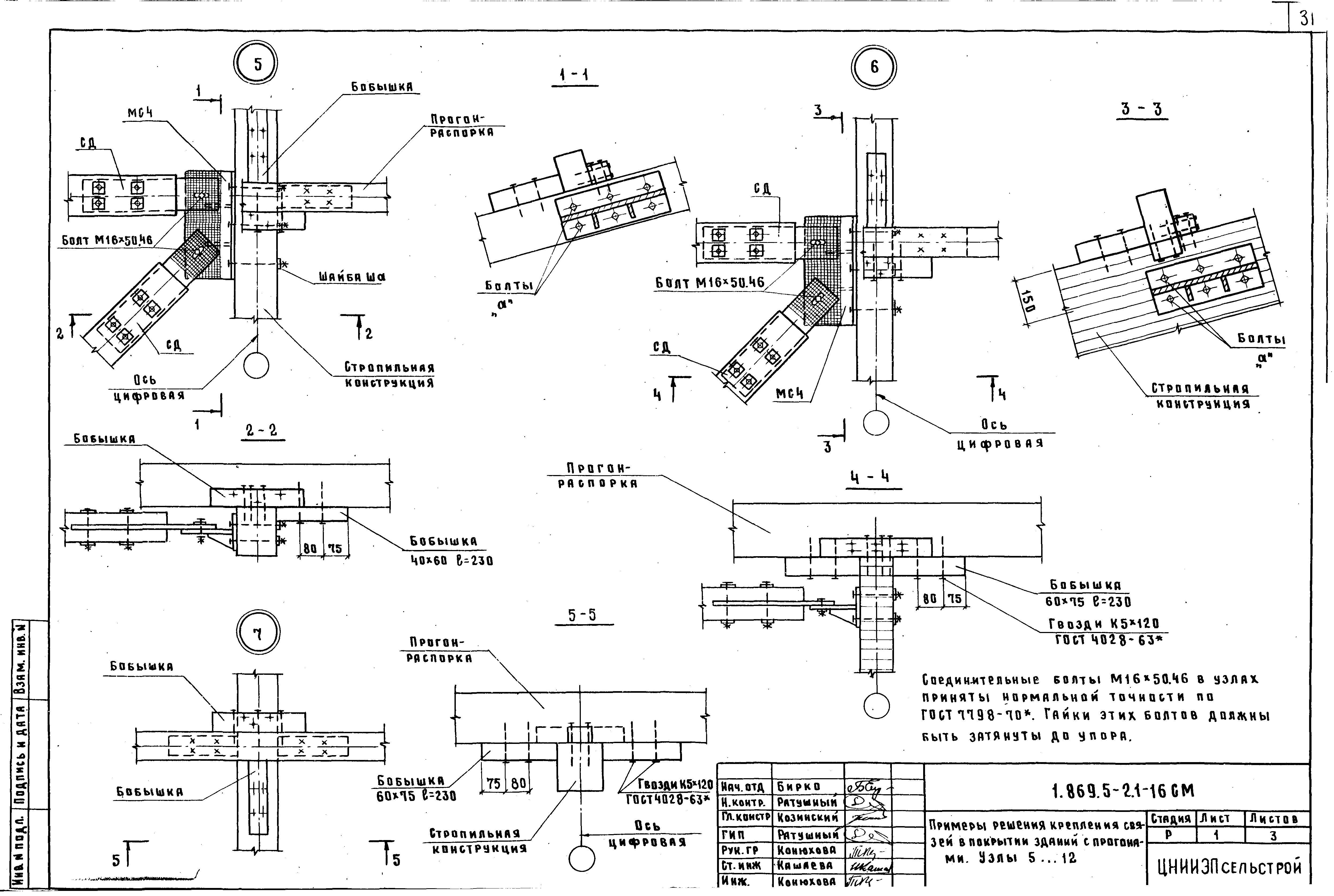
Скачать Серия 1.869.5-2 Выпуск 1. Материалы для проектирования. Технические условия. Рабочие чертежи

Дата актуализации: 10.08.2017

Серия 1.869.5-2

Выпуск 1. Материалы для проектирования. Технические условия. Рабочие чертежи

Обозначение: Серия 1.869.5-2
Обозначение англ: Series 1.869.5-2
Статус:не определен законодательством
Название рус.:Выпуск 1. Материалы для проектирования. Технические условия. Рабочие чертежи
Дата добавления в базу:01.09.2013
Дата актуализации:05.05.2017
Дата введения:01.07.1988
Разработан: ЦНИИСК им. В.А. Кучеренко
ЦНИИЭПсельстрой
ГипроНИсельхоз (Институт Гипронисельхоз )
Утверждён:20.11.1987 Госстрой СССР (Государственный комитет Совета Министров СССР по делам строительства) (USSR Gosstroy 6/6-4174)
Издан: ЦИТП Госстроя СССР (CITP, Gosstroy (USSR) 1988 г. )
Расположен в:Техническая документация Строительство Справочные документы Типовые строительные конструкции, изделия и узлы Общероссийский строительный каталог Строительные конструкции, изделия и узлы зданий и сооружений для всех видов строительства Конструкции, изделия и узлы зданий Несущие конструкции одноэтажных зданий Стропильные и подстропильные конструкции Связи
Серия 1.869.5-2Серия 1.869.5-2Серия 1.869.5-2Серия 1.869.5-2Серия 1.869.5-2Серия 1.869.5-2Серия 1.869.5-2Серия 1.869.5-2Серия 1.869.5-2Серия 1.869.5-2Серия 1.869.5-2Серия 1.869.5-2Серия 1.869.5-2Серия 1.869.5-2Серия 1.869.5-2Серия 1.869.5-2Серия 1.869.5-2Серия 1.869.5-2Серия 1.869.5-2Серия 1.869.5-2Серия 1.869.5-2Серия 1.869.5-2Серия 1.869.5-2Серия 1.869.5-2Серия 1.869.5-2Серия 1.869.5-2Серия 1.869.5-2Серия 1.869.5-2Серия 1.869.5-2Серия 1.869.5-2Серия 1.869.5-2Серия 1.869.5-2Серия 1.869.5-2Серия 1.869.5-2Серия 1.869.5-2Серия 1.869.5-2Серия 1.869.5-2Серия 1.869.5-2Серия 1.869.5-2Серия 1.869.5-2Серия 1.869.5-2Серия 1.869.5-2Серия 1.869.5-2Серия 1.869.5-2Серия 1.869.5-2Серия 1.869.5-2Серия 1.869.5-2Серия 1.869.5-2Серия 1.869.5-2Серия 1.869.5-2Серия 1.869.5-2Серия 1.869.5-2Серия 1.869.5-2Серия 1.869.5-2Серия 1.869.5-2Серия 1.869.5-2Серия 1.869.5-2Серия 1.869.5-2

© 2013 Ёшкин Кот :-) Карта сайта