Информационная система
«Ёшкин Кот»

Скачать базу одним архивом
Скачать обновления
История создания базы
Карта сайта

Скачать Серия 1.460.2-10/88 Выпуск 2. Часть 2. Покрытия пролетами 18 и 24 м с фермами высотой 2,25 м. Чертежи КМ

Дата актуализации: 10.08.2017

Серия 1.460.2-10/88

Выпуск 2. Часть 2. Покрытия пролетами 18 и 24 м с фермами высотой 2,25 м. Чертежи КМ

Обозначение: Серия 1.460.2-10/88
Обозначение англ: Series 1.460.2-10/88
Статус:действует
Название рус.:Выпуск 2. Часть 2. Покрытия пролетами 18 и 24 м с фермами высотой 2,25 м. Чертежи КМ
Дата добавления в базу:01.09.2013
Дата актуализации:05.05.2017
Оглавление:1.460.2-10/88.2-63 Крепление связей по верхним поясам стропильных ферм. Узлы 47...50
1.460.2-10/88.2-64 Крепление прогонов и связей по верхним поясам стропильных ферм. Узлы 51...54
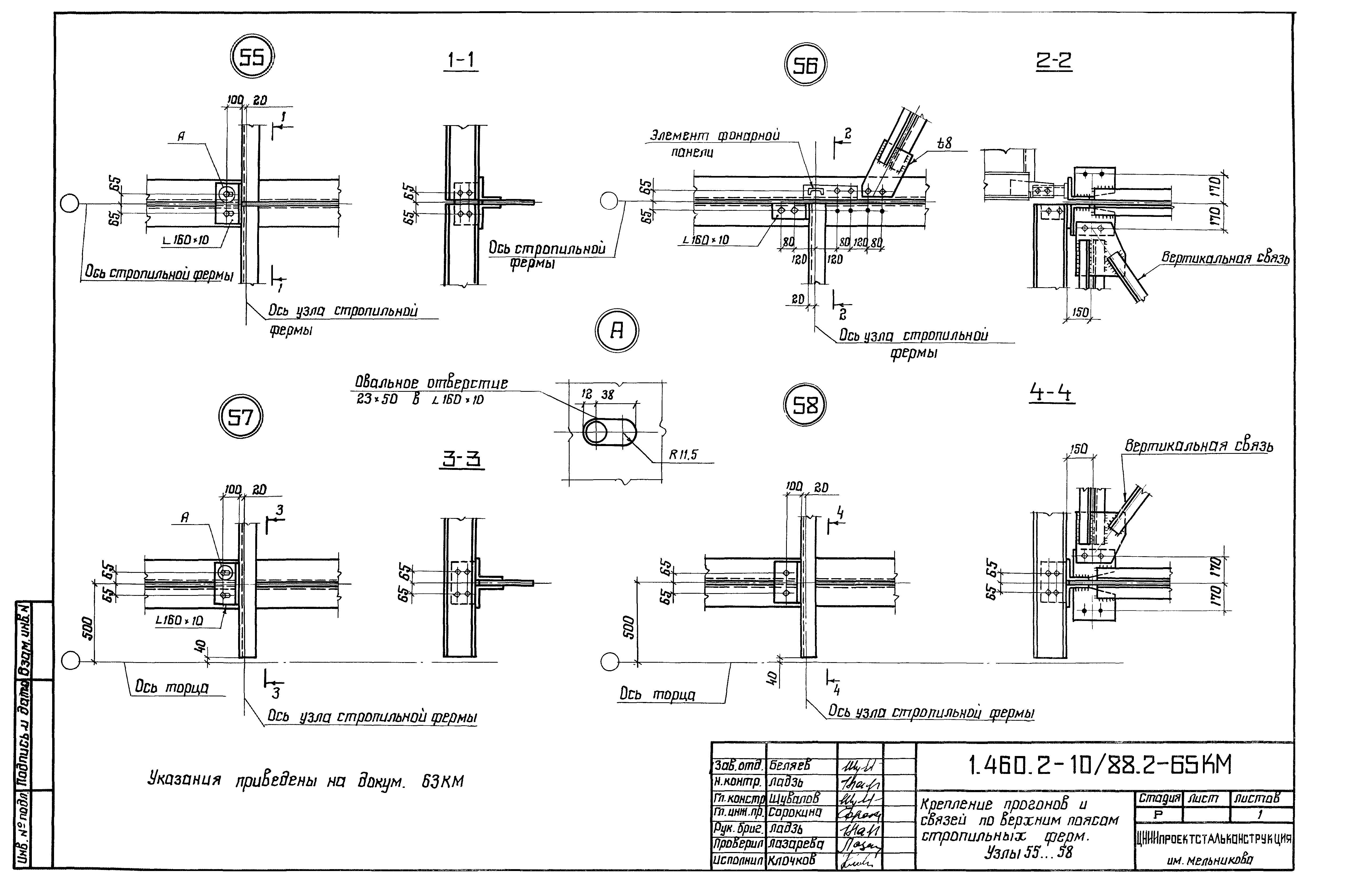
1.460.2-10/88.2-65 Крепление прогонов и связей по верхним поясам стропильных ферм. Узлы 55...58
1.460.2-10/88.2-66 Крепление прогонов и связей по верхним поясам стропильных ферм. Узлы 59...62
1.460.2-10/88.2-67 Крепление прогонов, связей и связей по верхним поясам стропильных ферм. Узлы 63...66
1.460.2-10/88.2-68 Крепление прогонов, связей и связей "ГФ"; по верхним поясам стропильных ферм. Узлы 67…71
1.460.2-10/88.2-69 Крепление прогонов, связей и связей "ГФ"; по верхним поясам стропильных ферм. Узлы 72…75
1.460.2-10/88.2-70 Крепление прогонов по верхним поясам стропильных ферм. Узлы 76...78
1.460.2-10/88.2-71 Крепление связей по нижним поясам стропильных ферм. Узлы 79...88
1.460.2-10/88.2-72 Крепление тормозных балок по нижним поясам стропильных ферм. Узлы 90...92
1.460.2-10/88.2-73 Крепление вертикальных связей, распорок, стропильных ферм к опорным стойкам и опорных стоек к колоннам. Узлы 93, 94
1.460.2-10/88.2-74 Крепление вертикальных связей, распорок, стропильных и подстропильных ферм к опорным стойкам и опорных стоек к колоннам. Узлы 95...102
1.460.2-10/88.2-75 Крепление прогонов и вертикальных связей к опорным стойкам. Узлы 103...106
1.460.2-10/88.2-76 Крепление прогонов, связей "ГФ" и вертикальных связей к опорным стойкам. Узлы 107…110
1.460.2-10/88.2-77 Крепление связей и прогонов при опирании фахверковых стоек. Узлы крепления верхних поясов стропильных ферм в перепаде высоты здания. Узлы 111...115
1.460.2-10/88.2-78 Фрагмент плана и монтажные узлы железобетонных плит покрытий с расчетной сейсмичностью 7, 8 баллов и указания по расчету швов
1.460.2-10/88.2-79 Несущая способность торцевых швов, прикрепляющих железобетонные плиты к опорным стойкам в среднем ряду колонн
1.460.2-10/88.2-80 Узлы диафрагм жесткости. Узлы 118...127
1.460.2-10/88.2-81 Расположение отверстий в поясах стропильных ферм
1.460.2-10/88.2-82 Схема раскладки профилированного настилаю Узлы крепления профилированного настила к прогонам
1.460.2-10/88.2-83 Узлы крепления профилированного настила к прогонам
1.460.2-10/88.2-84 Порядок применения материалов выпуска для зданий с расчетной сейсмичностью 7, 8 и 9 баллов
1.460.2-10/88.2-85 Спецификация стали стропильных ферм пролетом 18 м
1.460.2-10/88.2-86 Спецификация стали стропильных ферм пролетом 24 м
1.460.2-10/88.2-87 Спецификация стали подстропильных ферм
1.460.2-10/88.2-88 Усилия в стержнях стропильных ферм от единичных нагрузок
1.460.2-10/88.2-89 Усилия от единичных нагрузок в стержнях подстропильных ферм и элементах связей по нижним поясам стропильных ферм
1.460.2-10/88.2-90 Усилия от единичных нагрузок в элементах ферм "ГФ"
1.460.2-10/88.2-91 Несущая способность стержней стропильных ферм. Пояса
1.460.2-10/88.2-92 Несущая способность стержней стропильных ферм. Стойки
1.460.2-10/88.2-93 Несущая способность стержней стропильных ферм. Раскосы
1.460.2-10/88.2-94 Несущая способность стержней подстропильных ферм
1.460.2-10/88.2-95 Расчетные нагрузки от ветра с торца здания на средний ряд колонн. Здания без фонарей
1.460.2-10/88.2-96 Расчетные нагрузки от ветра с торца фонаря на средний ряд колонн
1.460.2-10/88.2-97 Расчетные значения продольных сейсмических нагрузок S1...S3 для зданий с расчетной сейсмичностью 7 баллов при коэффициенте динамичности В = 1
1.460.2-10/88.2-98 Расчетные нагрузки на фермы от подвесных кранов по ГОСТ7890-84Е
Разработан: ЦНИИПСК им. Мельникова
Утверждён:15.06.1989 Госстрой СССР (Государственный комитет Совета Министров СССР по делам строительства) (USSR Gosstroy 4/5-918)
Издан: ЦИТП Госстроя СССР (CITP, Gosstroy (USSR) 1989 г. )
Расположен в:Техническая документация Строительство Справочные документы Типовые строительные конструкции, изделия и узлы Общероссийский строительный каталог Строительные конструкции, изделия и узлы зданий и сооружений для всех видов строительства Конструкции, изделия и узлы зданий Несущие конструкции одноэтажных зданий Стропильные и подстропильные конструкции Фермы Стальные и металлодеревянные
Серия 1.460.2-10/88Серия 1.460.2-10/88Серия 1.460.2-10/88Серия 1.460.2-10/88Серия 1.460.2-10/88Серия 1.460.2-10/88Серия 1.460.2-10/88Серия 1.460.2-10/88Серия 1.460.2-10/88Серия 1.460.2-10/88Серия 1.460.2-10/88Серия 1.460.2-10/88Серия 1.460.2-10/88Серия 1.460.2-10/88Серия 1.460.2-10/88Серия 1.460.2-10/88Серия 1.460.2-10/88Серия 1.460.2-10/88Серия 1.460.2-10/88Серия 1.460.2-10/88Серия 1.460.2-10/88Серия 1.460.2-10/88Серия 1.460.2-10/88Серия 1.460.2-10/88Серия 1.460.2-10/88Серия 1.460.2-10/88Серия 1.460.2-10/88Серия 1.460.2-10/88Серия 1.460.2-10/88Серия 1.460.2-10/88Серия 1.460.2-10/88Серия 1.460.2-10/88Серия 1.460.2-10/88Серия 1.460.2-10/88Серия 1.460.2-10/88Серия 1.460.2-10/88Серия 1.460.2-10/88Серия 1.460.2-10/88Серия 1.460.2-10/88Серия 1.460.2-10/88Серия 1.460.2-10/88Серия 1.460.2-10/88Серия 1.460.2-10/88Серия 1.460.2-10/88Серия 1.460.2-10/88Серия 1.460.2-10/88Серия 1.460.2-10/88Серия 1.460.2-10/88Серия 1.460.2-10/88Серия 1.460.2-10/88Серия 1.460.2-10/88Серия 1.460.2-10/88Серия 1.460.2-10/88Серия 1.460.2-10/88Серия 1.460.2-10/88Серия 1.460.2-10/88Серия 1.460.2-10/88Серия 1.460.2-10/88Серия 1.460.2-10/88Серия 1.460.2-10/88Серия 1.460.2-10/88Серия 1.460.2-10/88Серия 1.460.2-10/88Серия 1.460.2-10/88Серия 1.460.2-10/88Серия 1.460.2-10/88Серия 1.460.2-10/88Серия 1.460.2-10/88Серия 1.460.2-10/88

© 2013 Ёшкин Кот :-) Карта сайта