Обозначение: | Серия 1.463.1-3/87 |
Обозначение англ: | Series 1.463.1-3/87 |
Статус: | не определен законодательством |
Название рус.: | Выпуск 7. Пути подвесного транспорта и элементы их крепления. Рабочие чертежи КМ |
Дата добавления в базу: | 01.09.2013 |
Дата актуализации: | 05.05.2017 |
Дата введения: | 01.09.1988 |
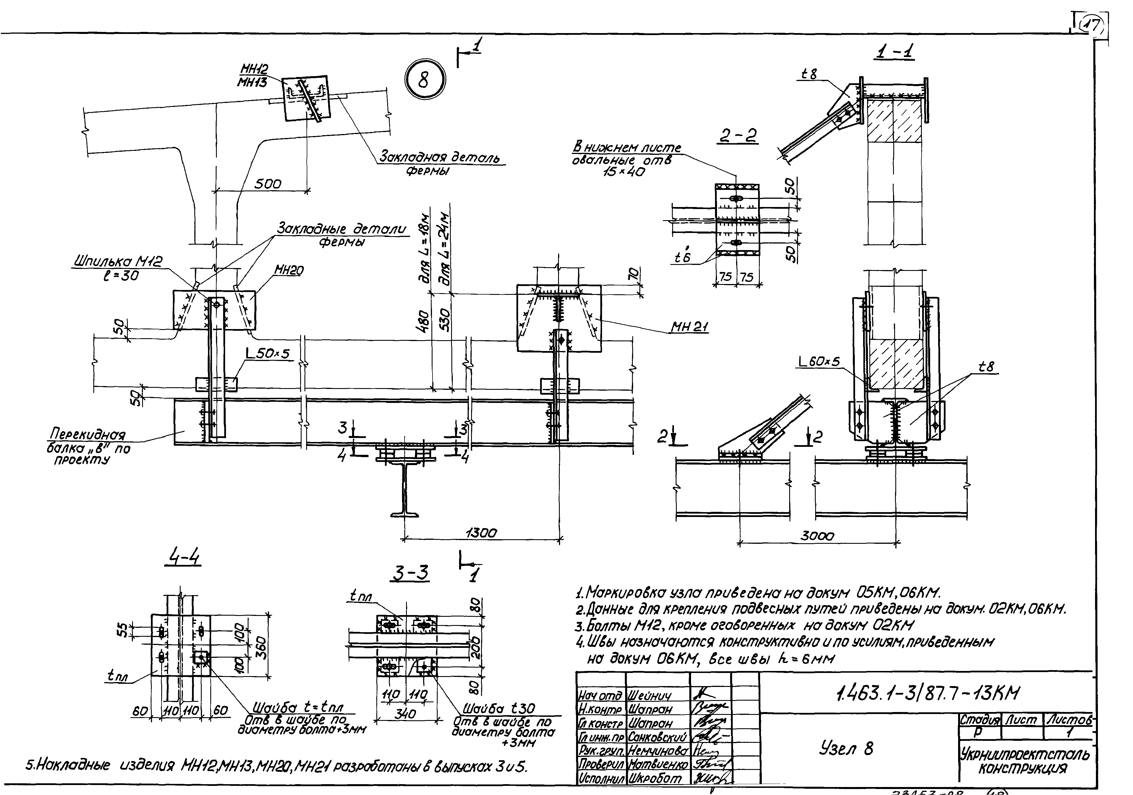
Оглавление: | 1.463.1-3/87.7-00ПЗКМ Пояснительная записка 1.463.1-3/87.7-01КМ Крановые нагрузки на подвесной путь 1.463.1-3/87.7-02КМ Данные для выбора сечений балок путей подвесных кранов пролетом 6 м и их креплений 1.463.1-3/87.7-03КМ Схема расположения подвесных путей и их креплений к фермам пролетом 18 м (вариант 1) 1.463.1-3/87.7-04КМ Схема расположения подвесных путей и их креплений к фермам пролетом 24 м (вариант 1) 1.463.1-3/87.7-05КМ Схема расположения подвесных путей и перекидных балок нижним поясом ферм пролетом 18 м (вариант 2) 1.463.1-3/87.7-06КМ Схема расположения подвесных путей и перекидных балок нижним поясом ферм пролетом 24 м (вариант 2) 1.463.1-3/87.7-07КМ Узел 1 1.463.1-3/87.7-08КМ Узлы 2,3 1.463.1-3/87.7-09КМ Узел 4 1.463.1-3/87.7-10КМ Узел 5 1.463.1-3/87.7-11КМ Узел 6 1.463.1-3/87.7-12КМ Узел 7 1.463.1-3/87.7-13КМ Узел 8 |
Разработан: | ПИ № 1 Госстроя СССР Укрниипроектстальконструкция
|
Утверждён: | 29.04.1988 Госстрой СССР (Государственный комитет Совета Министров СССР по делам строительства) (USSR Gosstroy АЧ-20)
|
Издан: | ЦИТП Госстроя СССР (CITP, Gosstroy (USSR) 1988 г. )
|
Расположен в: |
|